Projecten
Producten
Bedrijven
Vacatures
Agenda
Awards
Podcasts
more_horiz
Videos
Magazine
Favorieten
Profiel
Uitloggen
Abonneer je nu op onze nieuwsbrieven!
Abonneren
Nee, bedankt
Ja, denk met me mee rond de
materialisering van mijn project
Copyright: Fernando Guerra
Copyright: Fernando Guerra
Copyright: Fernando Guerra
Copyright: Fernando Guerra
Copyright: Fernando Guerra
Copyright: Fernando Guerra
Copyright: Fernando Guerra
Copyright: Fernando Guerra
Copyright: Fernando Guerra
Copyright: Fernando Guerra
Copyright: Fernando Guerra
Copyright: Fernando Guerra
Copyright: Fernando Guerra
Copyright: Fernando Guerra
Copyright: Fernando Guerra
Copyright: Fernando Guerra
Copyright: Fernando Guerra
Copyright: Fernando Guerra
Copyright: Fernando Guerra
Copyright: Fernando Guerra
Copyright: Fernando Guerra
Copyright: Fernando Guerra
Copyright: Fernando Guerra
Copyright: Fernando Guerra
Copyright: Fernando Guerra
Copyright: Fernando Guerra
Copyright: Fernando Guerra
Copyright: Fernando Guerra
Copyright: Fernando Guerra
Copyright: Fernando Guerra
Copyright: Fernando Guerra
Copyright: Fernando Guerra
Copyright: Fernando Guerra
Copyright: KAAN Architecten
Copyright: KAAN Architecten
Copyright: KAAN Architecten
Copyright: KAAN Architecten
Copyright: KAAN Architecten
Copyright: KAAN Architecten
Copyright: KAAN Architecten
Copyright: KAAN Architecten
Copyright: KAAN Architecten
Copyright: KAAN Architecten
Nieuwe rechtbank van Amsterdam heeft rijke binnenwereld
29 april 2021, 14:38
Komende maandag vinden de eerste zittingen plaats in de nieuwe rechtbank van Amsterdam. Het gebouw aan de Zuidas is ontworpen door
KAAN Architecten
, als onderdeel van consortium NACH. Architectenweb kreeg de gelegenheid om het gebouw alvast te bezoeken en was met name onder de indruk van de binnenwereld.
De nieuwe rechtbank van Amsterdam is voor een bedrag van 235 miljoen euro gerealiseerd, volgens een DBFMO-constructie met een looptijd van dertig jaar. Dat vertaalt zich in de basis in een zakelijk, strak en functioneel pand zonder de monumentaliteit van een klassiek gerechtsgebouw. Het streven van de architecten om een uitnodigend maar tegelijkertijd gezagwekkend (die term is bedacht door het consortium) gebouw is mede hierom slechts gedeeltelijk geslaagd.
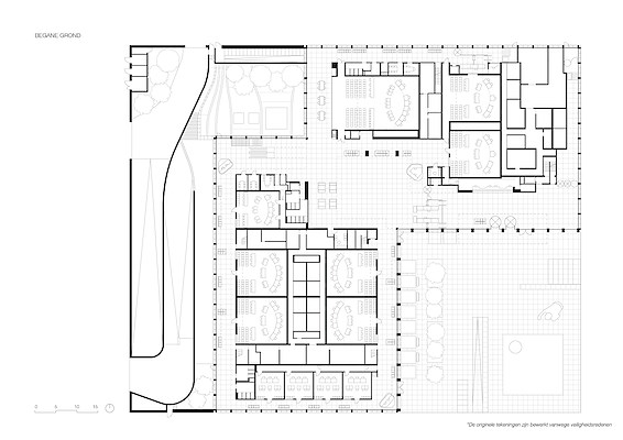
De gevel is goed afleesbaar en op de lagen waar zich de publieke functies bevinden is de buitenkant zeer transparant. Hierdoor toont de rechtbank zich in bijna alle geledingen aan de buitenwereld en wordt de drempel voor bezoekers verlaagd. Daarnaast trekt de natuursteen waarmee het interieur is bekleed (en die van buitenaf prominent zichtbaar is) continu de aandacht. Hoewel het materiaal past bij de functie van het gebouw, is het ook nog verrassend, zeker in contrast met het metaal en glas van de gevel.
Ietwat geforceerd
De schoen wringt wat meer als het aankomt op het ‘gezagwekkend’ maken van het gebouw, althans wat het exterieur betreft. Het voorplein en de gevel aan deze kant spelen hier een belangrijke rol in en je
voelt
ook wel dat je hier een plek betreedt met meer status dan de rest van de omgeving, maar toch doet het ietwat geforceerd aan. Dat zit hem met name in de natuurstenen kolommen rond het plein, die vreemd ogen binnen het totale gevelbeeld. Omdat ze afwijkend zijn gematerialiseerd en ook nog uitsteken, zou je bijvoorbeeld een subtiele overgang naar de bovengelegen geveldelen verwachten, maar die ontbreekt. Anderzijds dragen ze er wel aan bij dat het interieur vanzelfsprekend overloopt in het plein van lichtgrijze natuursteen en de grens tussen binnen en buiten vervaagt.
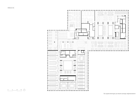
En dat interieur – of beter gezegd, de gehele binnenkant van het gebouw – is een topstuk geworden. Ga er maar aan staan, vijftig zittingszalen, zeventien verhoorkamers, duizend medewerkers plus een ingewikkelde logistiek voor binnengebrachte gedetineerden moeten huisvesten in een complex, dat bovendien een heldere structuur dient te krijgen. De architecten hebben deze bijzonder lastige 3D-puzzel opgelost door eerst het programma te verdelen over twee volumes (met een totaaloppervlak van 60.000 vierkante meter) en die vervolgens in beiden gebouwdelen verticaal te verdelen in drie verschillende zones.
Het bovenste deel bestaat uit de kantoren en andere faciliteiten voor de rechtbankmedewerkers (van rechters tot secretaresses), het middendeel is bestemd voor de rechtspraak zelf (hier bevinden zich de zittingszalen en de publieke voorzieningen) en ondergronds liggen de aanvoerroutes en 69 cellen voor de gedetineerden. Deze opzet heeft ook een al dan niet bedoelde symbolische lading; bij een rechtszaak komen de rechters van bovenaf naar de zaal, de verdachten van beneden en de toeschouwers vanuit de ruimtes rondom. Anders dan in het vorige pand zijn de verschillende zalen eenvoudig te vinden en mochten de bezoekers er onverhoopt zelf niet uitkomen, staat op bijna elke hoek een balie met een bode die hen alsnog de weg wijst.
Centrale hal
Beide volumes van het rechtbankcomplex worden verbonden door een centrale hal die zicht biedt op het voorplein en een binnentuin aan de andere kant. Hier bevinden zich ook de roltrappen die de bezoekers tot aan de vierde verdieping brengen. Daarboven ligt een overgangsgebied dat tevens de ‘begane grond’ voor het deel van de medewerkers vormt. Op deze vijfde verdieping zijn onder meer een restaurant en informele werkplekken aanwezig, ook begint hier een trappartij die doorloopt tot de top van het gebouw en grappend
Klein Guggenheim
wordt genoemd. De ruimte heeft wel wat van de beroemde ‘rotunda’ van het Guggenheim Museum in New York en de kunst van de rechtbank concentreert zich hier. Het grootste verschil zit hem in de kruisende trappen, die weer aan Piranesi doen denken.
Zo bevat de nieuwe rechtbank van Amsterdam vooral een rijke binnenwereld, geaccentueerd door luxe materialen, meubilair en kunstwerken. Neemt niet weg dat het complex over twee prettige patio’s beschikt, waaromheen de kantoren zijn gegroepeerd. Ook wordt met het voorplein nieuwe openbare ruimte toegevoegd aan de Parnassusweg en de Zuidas in bredere zin (het is bovendien een voorschot op de extra publieke ruimte die ontstaat na de voltooiing van het Zuidasdok). Het beeld
Love or Generosity
van kunstenares Nicole Eisenman op dit plein vormt alvast een publiekstrekker en selfie-hotspot. Als een goedaardige reus buigt dit mensfiguur in trainingspak en bergschoenen naar de bezoekers, met enkele symbolische attributen in de hand. Een geruststellend gebaar.
Consortium NACH is een samenwerking tussen Macquarie Capital, ABT, DVP, KAAN Architecten, Heijmans en Facilicom.
Trefwoorden
zuidas
heijmans
abt
dvp
kaan architecten
macquarie capital group
rechtbank amsterdam
nach
rechtbank
Locatie
Best gelezen
1
44 woningen op bosrijke locatie in Driebergen
vrijdag, 15 mei
2
Parkeerplein naast Tilburgse schouwburg maakt plaats voor multifunctionele gebouwen
woensdag, 13 mei
3
Neprom-prijs 2026 toegekend aan De Groene Loper Maastricht
maandag, 11 mei
4
Vandersalm Architecten herinterpreteert historisch erf bij Zwolse stadsboerderij
maandag, 11 mei
5
Schoonhovens College van Geurst & Schulze architecten stimuleert vakmanschap, ontmoeting en leerprestaties
dinsdag, 12 mei
Gerelateerde nieuwsberichten
KAAN Architecten geselecteerd voor ontwerp gerechtsgebouw in Nancy
28 september 2022
Oud kantongerecht Amsterdam wordt verbouwd tot Hartwig Museum
30 januari 2025
Gerechtsgebouw Sint Annadal geschikt gemaakt voor inhuizing OM
21 maart 2024
Paul de Ruiter Architects ontwerpt nieuw gerechtsgebouw Almelo
17 januari 2024
Intentieovereenkomst getekend voor extra beveiligde rechtbank in Lelystad
8 april 2024
'Elegant brutalisme' voor nieuw hoofdkantoor Philips aan de Zuidas
27 maart 2024
Team met Mecanoo en BOOM Landscape ontwerpt woongebouw aan Beatrixpark Zuidas
14 december 2022
Woontoren voor starters op de Zuidas klaar
29 februari 2024
Team met KAAN Architecten ontwerpt nieuw havencoördinatiecentrum Antwerpen
17 november 2023
KAAN Architecten breidt bureauleiding uit
18 december 2025
Boeken verschenen over Forum Groningen en rechtbank Amsterdam
7 april 2023
KMSKA heropent na verbouwing van elf jaar
26 september 2022
Eerste monografie van KAAN Architecten verschenen
24 juni 2022
Renovatie en uitbreiding Singer Laren verkozen tot BNA Beste Gebouw van het Jaar
12 mei 2022
KAAN Architecten geselecteerd voor verbouwing Museum Catharijneconvent
20 april 2022
Nominaties BNA Beste Gebouw van het Jaar 2022 bekend
28 maart 2022
Amsterdam tendert complex met woningen bij St. Nicolaaslyceum
17 februari 2022
Duits faculteitgebouw naar ontwerp van KAAN Architecten opgeleverd
15 februari 2022
Demontage tijdelijke rechtbank Amsterdam gestart
9 november 2021
Zuidas in Amsterdam houdt open dag
27 oktober 2021
Tegenvaller rond project smet op 'uitstekend' half jaar Heijmans
20 augustus 2021
Gebouw tijdelijke rechtbank krijgt tweede leven in Enschede
2 juli 2021
De ongewenste Walvis werd een luchtige buurtgenoot
8 juni 2021
KAAN Architecten presenteert eerste film op platform Minutes
21 mei 2021
Video: rechtbank Amsterdam
7 mei 2021
Tien genonimeerden voor Gouden A.A.P. 2021
12 maart 2021
KAAN Architecten geeft KMSKA in Antwerpen nieuwe dimensie
3 maart 2021
Transformatie Galeries Modernes Rotterdam tot hotel gestart
22 februari 2021
Multifunctioneel complex met hoge toren op plek Lumièrepand Rotterdam
16 december 2020
Hoogste punt voor woontorens Zalmhaven II en III Rotterdam
15 december 2020
Ruimtelijke en ingetogen herdenkingsplek te midden van de natuur
26 november 2020
KAAN Architecten presenteert bezoekerscentrum Amerikaanse Begraafplaats Margraten
23 november 2020
KAAN Architecten presenteert The Stack op Overhoeks
24 april 2020
KAAN Architecten geselecteerd voor onderwijscentrum RuG
9 maart 2020
Bouw van Rechtbank Amsterdam vordert gestaag
25 februari 2020
KAAN Architecten realiseert compact multifunctioneel gebouw in Nantes
20 februari 2020
Gouden A.A.P. 2017 voor tijdelijke rechtbank
13 april 2017
Tijdelijke rechtbank Amsterdam in gebruik genomen
17 november 2016
Schiphol maakt nieuwe 'huisarchitecten' bekend
26 maart
KAAN Architecten en De Zwarte Hond winnen tender voor Area 19 TU Eindhoven
20 maart
KAAN Architecten wint aanbesteding voor gebouw Europees parlement
29 september 2025
Nominaties Schoolgebouw van het Jaar 2025 bekend
17 september 2025
Woontoren door KAAN Architecten in Eindhovense wijk De Caai opgeleverd
28 mei 2025
Zeven nominaties BNA Beste Gebouw van het Jaar 2025
31 maart 2025
Eco-museum en Orla Piratininga Park in Rio de Janeiro door team met KAAN Architecten voltooid
27 februari 2025
Gemeenteraad Rotterdam stelt bestemmingsplannen RISE en Lumière vast
25 februari 2025
KAAN Architecten ontwerpt multifunctioneel gebouw op CERN-campus
28 januari 2025
Nederlandse bureaus gelauwerd bij Prix Versailles
12 december 2024
Team onder leiding van KAAN Architecten ontwerpt geavanceerd onderzoeksgebouw in Lausanne
18 november 2024
Rotterdamse raad beslist over bestemmingsplannen RISE en Lumière
7 november 2024
Nominaties Publiek gebouw van het Jaar 2024 bekend
9 oktober 2024
Multifunctioneel gebouw door KAAN Architecten in Parijs opgeleverd
23 juli 2024
KAAN Architecten en LOW Architecten renoveren hoofdkantoor Belgische Nationale Bank
21 juni 2024
Kees Kaan opgenomen als lid in de Franse Academie van Bouwkunst
17 juni 2024
Faculteit ITC van Universiteit Twente uitgeroepen tot BNA Beste Gebouw van het Jaar 2024
23 mei 2024
Woningbouwproject The Stack in Amsterdamse wijk Aan het IJ opgeleverd
25 april 2024
Bouwstart voor gebouw Matchbox van KAAN Architecten
19 maart 2024
Dick van Wageningen roemt gestopte Felix Claus: 'Hij puzzelde altijd door'
7 februari 2024
Bezoekerscentrum Amerikaanse begraafplaats Margraten opent deuren
11 december 2023
Francon opent tijdelijke winkelinstallatie 'Scene' in samenwerking met KAAN Architecten
30 november 2023
Nominaties Publiek gebouw van het Jaar 2023 bekend
9 oktober 2023
Bouwvergunning aangevraagd voor Lumière in Rotterdam
28 september 2023
Paleis Het Loo – ondergrondse uitbreiding door KAAN Architecten ingepast in barok landschap
18 april 2023
Vlaamse overheid verwerft originele plannen KMSKA
4 november 2022
Voorlopig ontwerp hoogbouwproject Lumière Rotterdam gepresenteerd
16 juni 2022
Zalmhaventorens KAAN Architecten slaan brug tussen hele hoge buur en omgeving
13 mei 2022
Architecten presenteren visie op vernieuwing Museum Catharijneconvent
11 maart 2022
Vijf lessen over ‘Het nieuwe hybride stadsblok’
3 februari 2022
Architectenweb symposium 'Het nieuwe hybride stadsblok' uitgesteld naar 1 februari 2022
18 november 2021
Architectenweb symposium: het nieuwe hybride stadsblok
26 oktober 2021
Zalmhaventoren bereikt hoogste punt van 215 meter
12 oktober 2021
Nominaties Kantoorgebouw van het Jaar 2021 bekend
13 september 2021
KAAN Architecten presenteert ontwerp Onderwijscentrum RuG
3 september 2021
Paleis Het Loo pas medio 2022 weer open
27 juli 2021
Interieur met transparantie en discretie voor advocatenkantoor
29 juni 2021
Nanne de Ru en Dikkie Scipio op 'Nederlandse' editie Architects, Not Architecture
2 maart 2021
Nieuwbouw in Rotterdamse zuidelijke tuinstad opgeleverd
16 november 2020
Plannen voor een veerkrachtige stad; KAAN Architecten in Amsterdam
16 september 2020
Mei en Marc Koehler presenteren ontwerp Toren E in wijk SPOT
23 juni 2020
Vernieuwd en uitgebreid Nationaal Museum Kamp Vught geopend
5 december 2019
Nominaties ‘Schoolgebouw van het Jaar 2019’ bekend
18 september 2019
Ingrijpende verbouwing van De Walvis naar ontwerp van KAAN
24 juni 2019
KAAN Architecten opent vestiging in Parijs
11 maart 2019
Bouw hoogste woontoren van Nederland gestart
26 oktober 2018
KAAN Architecten
24 september 2018
Wetenschapsinstituut ISMO van KAAN in gebruik genomen
12 september 2018
KAAN Architecten ontwerpt centrum voor Nationaal Ereveld Loenen
28 juni 2018
Braziliaanse universiteitsgebouwen KAAN Architecten klaar
12 juni 2018
AIT Award voor bezoekerscentrum Park Vijversburg
27 maart 2018
KAAN ontwerpt gevels voor drie kantoorpanden in München
20 december 2017
Ontwerp terminal bouwt voort op 'DNA' Schiphol
20 september 2017
KAAN Architecten ontwerpt nieuwe terminal Schiphol
12 september 2017
Bestemmingsplan Zalmhaven Rotterdam blijft overeind
9 augustus 2017
KAAN Architecten opent vestiging in Brazilië
28 juni 2017
Keynotes van Het Grote Publieke Gebouwen Congres bekend
19 april 2017
KAAN presenteert ontwerp nieuw Paleis Het Loo
7 maart 2017
2016: woningbouw kent veel ambities
23 december 2016
2016: belangrijkste projecten
23 december 2016
Winnaars ARC16 Awards bekend
21 november 2016
Winnaars Daylight Awards 2016 bekend
10 oktober 2016
Groen licht voor bouw 215 meter hoge Zalmhaventoren
9 september 2016
Nederlands hoogste gebouw krijgt uitkijkplatform
22 juni 2016
Rechtbank Zuidas 'gezagwekkend en herkenbaar'
26 mei 2016
KAAN ontwerpt OZC Tilburg University
26 april 2016
Voorlopige gunning rechtbank voor NACH
14 april 2016
KAAN Architecten wint opdracht Paleis Het Loo
8 april 2016
Hoge Raad: één gebouw, twee werelden
6 april 2016
Hoge Raad verhuist naar nieuwbouw
22 januari 2016
Hoogste punt A'DAM Toren bereikt
26 oktober 2015
Bouwstart project van KAAN in Lille
26 mei 2015
Bouw ISMO Parijs van KAAN Architecten gestart
21 januari 2015
Koning opent Nationaal Militair Museum
19 november 2014
Museum als deel van het landschap
21 juli 2014
Nederlandse bureaus maken studie voor São Paulo
18 maart 2014
Ontwerpers huisvesting Planbureaus bekend
10 maart 2014
KAAN en EGM in race voor ziekenhuis Nantes
13 februari 2014
Nieuw woonblok voor Laan van Spartaan
13 februari 2014
Benelux Aluminium Awards 2013 bekend
27 januari 2014
Plannen A'dam Toren Overhoeks gepresenteerd
13 januari 2014
Winnaars Rotterdam Architectuurprijs bekend
20 december 2013
Claus: “Een echt Amsterdams gebouw”
14 augustus 2013
Koning opent nieuwe gerechtshof in Amsterdam
1 augustus 2013
Inrichting CJIB kost 1,7 miljoen euro
31 juli 2013
Video: NIOO-KNAW
26 april 2013
Winnaars Nederlandse Bouwprijs 2013 bekend
7 februari 2013
Bouw Nationaal Militair Museum van start
16 januari 2013
Ontwerp nieuwbouw Hoge Raad gepresenteerd
3 januari 2013
Drie partijen door voor vernieuwing VROM-gebouw
20 december 2012
Claus en Kaan ontwerpt nieuwbouw Hoge Raad
27 november 2012
Gouden Piramide 2012 voor NIOO-KNAW
26 november 2012
Elf nominaties Nederlandse Bouwprijs 2013
19 november 2012
Twenty4Amsterdam wint tender Toren Overhoeks
8 oktober 2012
Zes consortia voor aanbesteding VROM-gebouw
5 oktober 2012
2011: De belangrijkste gebouwen
23 december 2011
Winnaars Betonprijs 2011 bekend
17 november 2011
De Tribune aan Laan van Spartaan geopend
16 november 2011
Central Post wint Duurzame Architectuur-prijs
30 september 2011
KAAN Architecten geselecteerd voor ontwerp gerechtsgebouw in Nancy
28 september 2022
Oud kantongerecht Amsterdam wordt verbouwd tot Hartwig Museum
30 januari 2025
Gerechtsgebouw Sint Annadal geschikt gemaakt voor inhuizing OM
21 maart 2024
Paul de Ruiter Architects ontwerpt nieuw gerechtsgebouw Almelo
17 januari 2024
Intentieovereenkomst getekend voor extra beveiligde rechtbank in Lelystad
8 april 2024
'Elegant brutalisme' voor nieuw hoofdkantoor Philips aan de Zuidas
27 maart 2024
Team met Mecanoo en BOOM Landscape ontwerpt woongebouw aan Beatrixpark Zuidas
14 december 2022
Woontoren voor starters op de Zuidas klaar
29 februari 2024
Team met KAAN Architecten ontwerpt nieuw havencoördinatiecentrum Antwerpen
17 november 2023
KAAN Architecten breidt bureauleiding uit
18 december 2025
Boeken verschenen over Forum Groningen en rechtbank Amsterdam
7 april 2023
KMSKA heropent na verbouwing van elf jaar
26 september 2022
Eerste monografie van KAAN Architecten verschenen
24 juni 2022
Renovatie en uitbreiding Singer Laren verkozen tot BNA Beste Gebouw van het Jaar
12 mei 2022
KAAN Architecten geselecteerd voor verbouwing Museum Catharijneconvent
20 april 2022
Nominaties BNA Beste Gebouw van het Jaar 2022 bekend
28 maart 2022
Amsterdam tendert complex met woningen bij St. Nicolaaslyceum
17 februari 2022
Duits faculteitgebouw naar ontwerp van KAAN Architecten opgeleverd
15 februari 2022
Demontage tijdelijke rechtbank Amsterdam gestart
9 november 2021
Zuidas in Amsterdam houdt open dag
27 oktober 2021
Tegenvaller rond project smet op 'uitstekend' half jaar Heijmans
20 augustus 2021
Gebouw tijdelijke rechtbank krijgt tweede leven in Enschede
2 juli 2021
De ongewenste Walvis werd een luchtige buurtgenoot
8 juni 2021
KAAN Architecten presenteert eerste film op platform Minutes
21 mei 2021
Video: rechtbank Amsterdam
7 mei 2021
Tien genonimeerden voor Gouden A.A.P. 2021
12 maart 2021
KAAN Architecten geeft KMSKA in Antwerpen nieuwe dimensie
3 maart 2021
Transformatie Galeries Modernes Rotterdam tot hotel gestart
22 februari 2021
Multifunctioneel complex met hoge toren op plek Lumièrepand Rotterdam
16 december 2020
Hoogste punt voor woontorens Zalmhaven II en III Rotterdam
15 december 2020
Ruimtelijke en ingetogen herdenkingsplek te midden van de natuur
26 november 2020
KAAN Architecten presenteert bezoekerscentrum Amerikaanse Begraafplaats Margraten
23 november 2020
KAAN Architecten presenteert The Stack op Overhoeks
24 april 2020
KAAN Architecten geselecteerd voor onderwijscentrum RuG
9 maart 2020
Bouw van Rechtbank Amsterdam vordert gestaag
25 februari 2020
KAAN Architecten realiseert compact multifunctioneel gebouw in Nantes
20 februari 2020
Gouden A.A.P. 2017 voor tijdelijke rechtbank
13 april 2017
Tijdelijke rechtbank Amsterdam in gebruik genomen
17 november 2016
Schiphol maakt nieuwe 'huisarchitecten' bekend
26 maart
KAAN Architecten en De Zwarte Hond winnen tender voor Area 19 TU Eindhoven
20 maart
KAAN Architecten wint aanbesteding voor gebouw Europees parlement
29 september 2025
Nominaties Schoolgebouw van het Jaar 2025 bekend
17 september 2025
Woontoren door KAAN Architecten in Eindhovense wijk De Caai opgeleverd
28 mei 2025
Zeven nominaties BNA Beste Gebouw van het Jaar 2025
31 maart 2025
Eco-museum en Orla Piratininga Park in Rio de Janeiro door team met KAAN Architecten voltooid
27 februari 2025
Gemeenteraad Rotterdam stelt bestemmingsplannen RISE en Lumière vast
25 februari 2025
KAAN Architecten ontwerpt multifunctioneel gebouw op CERN-campus
28 januari 2025
Nederlandse bureaus gelauwerd bij Prix Versailles
12 december 2024
Team onder leiding van KAAN Architecten ontwerpt geavanceerd onderzoeksgebouw in Lausanne
18 november 2024
Rotterdamse raad beslist over bestemmingsplannen RISE en Lumière
7 november 2024
Nominaties Publiek gebouw van het Jaar 2024 bekend
9 oktober 2024
Multifunctioneel gebouw door KAAN Architecten in Parijs opgeleverd
23 juli 2024
KAAN Architecten en LOW Architecten renoveren hoofdkantoor Belgische Nationale Bank
21 juni 2024
Kees Kaan opgenomen als lid in de Franse Academie van Bouwkunst
17 juni 2024
Faculteit ITC van Universiteit Twente uitgeroepen tot BNA Beste Gebouw van het Jaar 2024
23 mei 2024
Woningbouwproject The Stack in Amsterdamse wijk Aan het IJ opgeleverd
25 april 2024
Bouwstart voor gebouw Matchbox van KAAN Architecten
19 maart 2024
Dick van Wageningen roemt gestopte Felix Claus: 'Hij puzzelde altijd door'
7 februari 2024
Bezoekerscentrum Amerikaanse begraafplaats Margraten opent deuren
11 december 2023
Francon opent tijdelijke winkelinstallatie 'Scene' in samenwerking met KAAN Architecten
30 november 2023
Nominaties Publiek gebouw van het Jaar 2023 bekend
9 oktober 2023
Bouwvergunning aangevraagd voor Lumière in Rotterdam
28 september 2023
Paleis Het Loo – ondergrondse uitbreiding door KAAN Architecten ingepast in barok landschap
18 april 2023
Vlaamse overheid verwerft originele plannen KMSKA
4 november 2022
Voorlopig ontwerp hoogbouwproject Lumière Rotterdam gepresenteerd
16 juni 2022
Zalmhaventorens KAAN Architecten slaan brug tussen hele hoge buur en omgeving
13 mei 2022
Architecten presenteren visie op vernieuwing Museum Catharijneconvent
11 maart 2022
Vijf lessen over ‘Het nieuwe hybride stadsblok’
3 februari 2022
Architectenweb symposium 'Het nieuwe hybride stadsblok' uitgesteld naar 1 februari 2022
18 november 2021
Architectenweb symposium: het nieuwe hybride stadsblok
26 oktober 2021
Zalmhaventoren bereikt hoogste punt van 215 meter
12 oktober 2021
Nominaties Kantoorgebouw van het Jaar 2021 bekend
13 september 2021
KAAN Architecten presenteert ontwerp Onderwijscentrum RuG
3 september 2021
Paleis Het Loo pas medio 2022 weer open
27 juli 2021
Interieur met transparantie en discretie voor advocatenkantoor
29 juni 2021
Nanne de Ru en Dikkie Scipio op 'Nederlandse' editie Architects, Not Architecture
2 maart 2021
Nieuwbouw in Rotterdamse zuidelijke tuinstad opgeleverd
16 november 2020
Plannen voor een veerkrachtige stad; KAAN Architecten in Amsterdam
16 september 2020
Mei en Marc Koehler presenteren ontwerp Toren E in wijk SPOT
23 juni 2020
Vernieuwd en uitgebreid Nationaal Museum Kamp Vught geopend
5 december 2019
Nominaties ‘Schoolgebouw van het Jaar 2019’ bekend
18 september 2019
Ingrijpende verbouwing van De Walvis naar ontwerp van KAAN
24 juni 2019
KAAN Architecten opent vestiging in Parijs
11 maart 2019
Bouw hoogste woontoren van Nederland gestart
26 oktober 2018
KAAN Architecten
24 september 2018
Wetenschapsinstituut ISMO van KAAN in gebruik genomen
12 september 2018
KAAN Architecten ontwerpt centrum voor Nationaal Ereveld Loenen
28 juni 2018
Braziliaanse universiteitsgebouwen KAAN Architecten klaar
12 juni 2018
AIT Award voor bezoekerscentrum Park Vijversburg
27 maart 2018
KAAN ontwerpt gevels voor drie kantoorpanden in München
20 december 2017
Ontwerp terminal bouwt voort op 'DNA' Schiphol
20 september 2017
KAAN Architecten ontwerpt nieuwe terminal Schiphol
12 september 2017
Bestemmingsplan Zalmhaven Rotterdam blijft overeind
9 augustus 2017
KAAN Architecten opent vestiging in Brazilië
28 juni 2017
Keynotes van Het Grote Publieke Gebouwen Congres bekend
19 april 2017
KAAN presenteert ontwerp nieuw Paleis Het Loo
7 maart 2017
2016: woningbouw kent veel ambities
23 december 2016
2016: belangrijkste projecten
23 december 2016
Winnaars ARC16 Awards bekend
21 november 2016
Winnaars Daylight Awards 2016 bekend
10 oktober 2016
Groen licht voor bouw 215 meter hoge Zalmhaventoren
9 september 2016
Nederlands hoogste gebouw krijgt uitkijkplatform
22 juni 2016
Rechtbank Zuidas 'gezagwekkend en herkenbaar'
26 mei 2016
KAAN ontwerpt OZC Tilburg University
26 april 2016
Voorlopige gunning rechtbank voor NACH
14 april 2016
KAAN Architecten wint opdracht Paleis Het Loo
8 april 2016
Hoge Raad: één gebouw, twee werelden
6 april 2016
Hoge Raad verhuist naar nieuwbouw
22 januari 2016
Hoogste punt A'DAM Toren bereikt
26 oktober 2015
Bouwstart project van KAAN in Lille
26 mei 2015
Bouw ISMO Parijs van KAAN Architecten gestart
21 januari 2015
Koning opent Nationaal Militair Museum
19 november 2014
Museum als deel van het landschap
21 juli 2014
Nederlandse bureaus maken studie voor São Paulo
18 maart 2014
Ontwerpers huisvesting Planbureaus bekend
10 maart 2014
KAAN en EGM in race voor ziekenhuis Nantes
13 februari 2014
Nieuw woonblok voor Laan van Spartaan
13 februari 2014
Benelux Aluminium Awards 2013 bekend
27 januari 2014
Plannen A'dam Toren Overhoeks gepresenteerd
13 januari 2014
Winnaars Rotterdam Architectuurprijs bekend
20 december 2013
Claus: “Een echt Amsterdams gebouw”
14 augustus 2013
Koning opent nieuwe gerechtshof in Amsterdam
1 augustus 2013
Inrichting CJIB kost 1,7 miljoen euro
31 juli 2013
Video: NIOO-KNAW
26 april 2013
Winnaars Nederlandse Bouwprijs 2013 bekend
7 februari 2013
Bouw Nationaal Militair Museum van start
16 januari 2013
Ontwerp nieuwbouw Hoge Raad gepresenteerd
3 januari 2013
Drie partijen door voor vernieuwing VROM-gebouw
20 december 2012
Claus en Kaan ontwerpt nieuwbouw Hoge Raad
27 november 2012
Gouden Piramide 2012 voor NIOO-KNAW
26 november 2012
Elf nominaties Nederlandse Bouwprijs 2013
19 november 2012
Twenty4Amsterdam wint tender Toren Overhoeks
8 oktober 2012
Zes consortia voor aanbesteding VROM-gebouw
5 oktober 2012
2011: De belangrijkste gebouwen
23 december 2011
Winnaars Betonprijs 2011 bekend
17 november 2011
De Tribune aan Laan van Spartaan geopend
16 november 2011
Central Post wint Duurzame Architectuur-prijs
30 september 2011
Toon alles
Gerelateerde podcasts
Toren van Babel
Gesprek met Paco Bunnik over hoogbouw op de Zuidas
13 april 2023
Toren van Babel
Gesprek met Aldo Trim over complexe binnenstedelijke hoogbouw
10 april 2025
Andere nieuwsberichten
Stuur nu jullie project in voor de prijs voor Kantoorgebouw van het Jaar 2026
1 minuut geleden
Hebben jullie een kantoorgebouw in Nederland ontworpen dat in de periode van 1 september 2025 tot en met 31 augustus 2026 opgeleverd of voltooid is? Stuur dat dan nu in voor de Architectenweb Awards 2026! Deadline is 19 juni 2026.
Tien nominaties voor NRP Gulden Feniks 2026
15 mei, 2:20
In november wijst de jury een aantal winnaars aan uit deze selectie voor de nationale prijs voor renovatie en transformatie van de gebouwde omgeving.
Nieuwe Instituut brengt rijkscollectie architectuur en stedenbouw tot leven in Collection Gallery
15 mei, 1:17
Op donderdag 18 juni opent het Nieuwe Instituut de zogeheten Collection Gallery. In deze nieuwe interactieve ruimte wil de instelling in Rotterdam de Rijkscollectie voor Nederlandse Architectuur en Stedenbouw tot leven brengen.
44 woningen op bosrijke locatie in Driebergen
15 mei, 9:26
De gemeente Utrechtse Heuvelrug selecteerde het plan Bosrand Heidestein. Het team dat het ontwerp en de realisatie verzorgt, bestaat uit KRKTR Projectontwikkeling, Reuvers Ontwik-keling en Bouw, MIX architectuur, MAAK space, Merosch en Kwirkey.
ITA Ensemble speelt 'De Architect' van sterregisseur Rebecca Frecknall
15 mei, 3:11
De voorstelling is een hedendaagse bewerking van Henirik Ibsens 'Bouwmeester Solness'.
Commissie: milieustudie Schiphol schiet tekort voor omwonenden
15 mei, 12:08
De Commissie voor de milieueffectrapportage stelt zelfs dat het rapport herzien zou moeten worden.
Koen Pörtzgen benoemd tot partner bij Zecc Architecten
15 mei, 10:15
Samen met Marnix van der Meer (54) en Bart Kellerhuis (47) vormt de 39-jarige Pörtzgen vanaf dit jaar de directie van het Utrechtse bureau.
Consortium met RxDomi en TU/e ontwikkelt netbewuste woning
13 mei, 2:56
In het project CoLiBRIE ontwikkelt een consortium, met onder meer RxDomi en TU/e, een nieuw type woning die comfortabel, duurzaam en betaalbaar is, zonder het energienet extra te belasten.
Minimaal half miljard extra nodig voor verbreding A27
13 mei, 1:38
Op het traject van 47 kilometer moeten extra rijbanen komen om de dagelijkse files te verlichten. Ook worden bruggen vervangen.
RVO constateert laagste groei windenergie op land in jaren
13 mei, 10:02
De uitbreiding van windenergie op land in Nederland is op een historisch laag niveau.
Ga naar het nieuws-archief
Ronnie Weessies
Redacteur
2
0
0
0
Voor een optimale gebruikservaring plaatst Architectenweb functionele cookies. Wat de verschillende cookies precies doen leggen we uit in een
overzicht
. Cookies van social media kun je optioneel
aanzetten
.
Akkoord
Instellingen
Annuleren
OK
Sluiten
Doorgaan
Inloggen
Maak een gratis persoonlijk account aan
Feedback
Feedback
Wij horen graag jouw feedback. Laat je reactie achter en eventueel jouw e-mail adres.
Reactie
Verstuur