Projecten
Producten
Bedrijven
Vacatures
Agenda
Awards
Podcasts
more_horiz
Videos
Magazine
Thema's
Favorieten
Profiel
Uitloggen
Abonneer je nu op onze nieuwsbrieven!
Abonneren
Nee, bedankt
Ja, denk met me mee rond de
materialisering van mijn project
Copyright: Achterzijde, landschappelijke omgeving. KAAN Architecten
Copyright: Lobby. KAAN Architecten
Copyright: Patio. KAAN Architecten
Copyright: Multimediaruimte. KAAN Architecten
Copyright: Doorsnede. KAAN Architecten
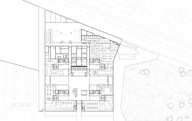
Copyright: Begane grond. KAAN Architecten
Copyright: Situatie. KAAN Architecten
Bouwstart project van KAAN in Lille
26 mei 2015, 14:14
In Lille is de bouw van Chambre de Métiers et de l'Artisanat (CMA) gestart, zo laat
KAAN Architecten
weten. Samen met
Pranlas-Descours Architect & Associates
maakte het Rotterdamse architectenbureau het winnende ontwerp bij een internationale competitie in 2007.
Het gebouw van CMA is gesitueerd aan de rand van de oude versterkingen van de stad. Het ligt tevens nabij de verkeersader die de stad en de voorstedelijke gebieden met elkaar verbindt. Het landschap kenmerkt zich hier door een netwerk van sporen, wegen en dijken enerzijds, weelderig groen anderzijds.
Horizontaliteit
Bij het ontwerp zijn KAAN Architecten en Pranlas-Descours Architect & Associates (Parijs) uitgegaan van de geschiedenis en de geografie van de plek. De bureaus hebben de locatie benaderd op het niceau van het landschap en van de omliggende wijk. De horizontaliteit van de omgeving keert terug in het gebouwontwerp; het CMA heeft daardoor een monolithische uitstraling.
Het multifunctionele gebouw heeft een gevarieerd programma. De begane grond heeft een publieke functie met onder meer tentoonstellingsruimten. De eerste verdieping huisvest het onderwijsprogramma en de tweede verdieping kantoren. In het hart van het gebouw is het auditorium gesitueerd.
Het auditorium en de representatieve lobby kunnen op verschillende manieren worden gebruikt. Voorts omvat het programma een bibliotheek en een restaurant. In totaal betreft het gebouw een vloeroppervlak van 17.300 vierkante meter.
Overzichtelijk
Verschillende gebieden zijn van elkaar gescheiden door twee afzonderlijke ingangen, een onderscheid in programmaonderdelen en een heldere circulatie, aldus KAAN Architecten. Het resultaat is volgens het bureau een solide en tegelijkertijd gecompartimenteerd gebouw.
Vanzelfsprekende routes moeten bezoekers op heldere en overzichtelijke wijze door het gebouw leiden. De toepassing van transparantie en groene patio's draagt bij aan de overzichtelijkheid. De ruimtes zijn met aandacht voor de menselijke maat ontworpen. Het ontwerp wordt uitgevoerd in moderne en robuuste materialen.
De eerste steen is afgelopen vrijdag officieel gelegd. De oplevering van het CMA staat gepland voor maart 2017.
Trefwoorden
pranlas-descours architect associates
cma
kaan architecten
frankrijk
kantoren
lille
Best gelezen
1
MVSA Architects en Powerhouse Company ontwerpen dubbele woontoren bij Den Haag Centraal
maandag, 30 maart
2
Schiphol maakt nieuwe 'huisarchitecten' bekend
donderdag, 26 maart
3
Amsterdam wil hiphopcentrum realiseren in stadsdeel Zuidoost
vrijdag, 27 maart
4
Jan Knikker vertrekt bij MVRDV
maandag, 30 maart
5
Menselijk contact, licht en lucht staan centraal bij appartementencomplex van SO-IL
donderdag, 26 maart
Gerelateerde nieuwsberichten
KAAN Architecten – genomineerd voor de Architect van het Jaar-prijs
9 oktober 2018
KAAN verbindt CMA-gebouw bij Lille met landschap
5 september 2019
OMA ontwerpt gerechtsgebouw Lille
19 februari 2018
Video: binnenkijken bij KAAN Architecten
26 augustus 2016
Voorlopige gunning rechtbank voor NACH
14 april 2016
ABC Lille van Julien De Smedt opgeleverd
8 januari 2016
Balans en openheid voor provinciehuis Brabant
5 november 2015
Bouw ISMO Parijs van KAAN Architecten gestart
21 januari 2015
Museum als deel van het landschap
21 juli 2014
Nederlandse bureaus maken studie voor São Paulo
18 maart 2014
Ontwerpers huisvesting Planbureaus bekend
10 maart 2014
KAAN Architecten – genomineerd voor de Architect van het Jaar-prijs
9 oktober 2018
KAAN verbindt CMA-gebouw bij Lille met landschap
5 september 2019
OMA ontwerpt gerechtsgebouw Lille
19 februari 2018
Video: binnenkijken bij KAAN Architecten
26 augustus 2016
Voorlopige gunning rechtbank voor NACH
14 april 2016
ABC Lille van Julien De Smedt opgeleverd
8 januari 2016
Balans en openheid voor provinciehuis Brabant
5 november 2015
Bouw ISMO Parijs van KAAN Architecten gestart
21 januari 2015
Museum als deel van het landschap
21 juli 2014
Nederlandse bureaus maken studie voor São Paulo
18 maart 2014
Ontwerpers huisvesting Planbureaus bekend
10 maart 2014
Toon alles
Andere nieuwsberichten
Voormalige verffabriek in Overschie omgevormd tot buurt met 125 woningen
Gisteren, 16:29
Op de plek van een voormalige verffabriek aan de Schansweg in Rotterdam worden 125 woningen gerealiseerd. Ook biedt het plan ruimte voor achthonderd tot duizend vierkante meter aan bedrijfsruimte.
Woningbouwproject Nieuw Zuid in Hilversum voltooid
Gisteren, 15:31
Op de plek van het voormalige zorgcomplex Zuiderheide zijn vijf appartementengebouwen voor verschillende doelgroepen gerealiseerd, naar ontwerp van verschillende architectenbureaus.
BURA publiceert resultaten ontwerpend onderzoek Marineterrein Amsterdam
Gisteren, 13:52
Onder de titel Postgroei Marineterrein deed BURA onderzoek naar de contouren van een proeftuin voor sociaal-economische innovatie.
'Materialenwerf' in M4H vormt festivalhart Rotterdam Architectuur Maand
31 maart, 2:05
Op 3 juni opent het flexibel opgezette bouwwerk in M4H, waar gebruikte bouwmaterialen worden verzameld, bewerkt en opnieuw ingezet. Gedurende de hele maand juni wordt er getest hoe een circulaire stad eruit kan zien, meldt AIR Rotterdam.
Amsterdam krijgt dertig meter hoge Self Storage Tower naar ontwerp dedato
Gisteren, 14:42
Minerva Development heeft de onherroepelijke bouwvergunning voor een dertig meter hoge ‘Self Storage Tower’ in het Amsterdamse Westpoortgebied.
Prijzen van nieuwbouwkavels verder gestegen
Gisteren, 12:30
De prijzen van nieuwbouwkavels zijn in het vierde kwartaal met gemiddeld 15,3 procent gestegen vergeleken met een jaar eerder.
Kamer: onderhoud en veiligheid voorop bij keuzes infrastructuur
Gisteren, 09:32
Onderhoud en veiligheid moeten volgens de Tweede Kamer vooropstaan bij pijnlijke keuzes die het kabinet gaat maken over infrastructuur.
Michael Braungart luistert vijftienjarig jubileum Cradle to Cradle Café op
31 maart, 11:27
Op dinsdag 14 april organiseert het Cradle to Cradle Café een speciaal jubileumfestival in Utrecht ter gelegenheid van zijn vijftienjarig bestaan.
PBL: politieke keuzes nodig voor aanpassing klimaatverandering
31 maart, 10:23
Een verstandige keuze is alvast om alles klimaatadaptief aan te pakken, aldus het Planbureau voor de Leefomgeving.
OM vervolgt oud-werknemers Strukton na Saudische omkopingskwestie
30 maart, 4:52
Eerder werd al bekend dat het bouwbedrijf voor tien miljoen euro heeft geschikt in de corruptiezaak.
Ga naar het nieuws-archief
0
0
0
0
Voor een optimale gebruikservaring plaatst Architectenweb functionele cookies. Wat de verschillende cookies precies doen leggen we uit in een
overzicht
. Cookies van social media kun je optioneel
aanzetten
.
Akkoord
Instellingen
Annuleren
OK
Sluiten
Doorgaan
Inloggen
Maak een gratis persoonlijk account aan
Feedback
Feedback
Wij horen graag jouw feedback. Laat je reactie achter en eventueel jouw e-mail adres.
Reactie
Verstuur