Projecten
Producten
Bedrijven
Vacatures
Agenda
Awards
Podcasts
more_horiz
Videos
Magazine
Thema's
Favorieten
Profiel
Uitloggen
Abonneer je nu op onze nieuwsbrieven!
Abonneren
Nee, bedankt
Ja, denk met me mee rond de
materialisering van mijn project
Copyright: Sebastian van Damme
Copyright: Sebastian van Damme
Copyright: Sebastian van Damme
Copyright: Sebastian van Damme
Copyright: Sebastian van Damme
Copyright: Sebastian van Damme
Copyright: Sebastian van Damme
Copyright: Sebastian van Damme
Copyright: Sebastian van Damme
Copyright: Sebastian van Damme
Copyright: Sebastian van Damme
Copyright: Sebastian van Damme
Copyright: Sebastian van Damme
Copyright: Sebastian van Damme
Copyright: Sebastian van Damme
Copyright: Sebastian van Damme
Copyright: Sebastian van Damme
Copyright: Sebastian van Damme
Copyright: Sebastian van Damme
Copyright: Sebastian van Damme
Copyright: Sebastian van Damme
Copyright: Sebastian van Damme
Copyright: KAAN Architecten
Copyright: KAAN Architecten
Copyright: KAAN Architecten
Copyright: KAAN Architecten
Copyright: KAAN Architecten
Copyright: KAAN Architecten
Copyright: KAAN Architecten
Copyright: KAAN Architecten
Copyright: KAAN Architecten
Copyright: KAAN Architecten
Copyright: KAAN Architecten
Copyright: KAAN Architecten
Copyright: KAAN Architecten
Copyright: KAAN Architecten
Copyright: KAAN Architecten
Copyright: KAAN Architecten
Copyright: KAAN Architecten
KAAN Architecten realiseert compact multifunctioneel gebouw in Nantes
20 februari 2020, 15:36
In het nieuwe gebied Bottière Chénaie, in het noordoosten van de Franse stad Nantes, is een gebouw met gemengd programma naar ontwerp van
KAAN Architecten
verrezen. Het gebouw oogt aanvankelijk monolithisch, maar de regelmatige betonstructuur laat overvloedig daglicht toe.
Het
ontwerp
van KAAN Architecten voor het gebouw in de nieuwe buitenwijk van Nantes was de winnende inzending bij een internationale competitie in 2013. Het project maakt deel uit van een omvangrijk stedenbouwkundig plan, opgesteld door Jean-Pierre Pranlas Descours en de landschapsarchitecten van Atelier Bruel-Delmar.
De locatie ligt ingesloten door bestaande infrastructuur van een tramlijn, een oude spoorlijn en de belangrijke verkeersader van de Route de Sainte Luce; ze lijkt daardoor geïsoleerd te liggen. De wijk heeft voornamelijk wonen als functie.
Gemengd programma
KAAN
Architecten heeft voorgesteld om, naast de Place du Commandant Cousteau, in dit gebied een tweede stedelijk brandpunt te creëren, door het gebouw te voorzien van een gemengd programma en publieke ruimte. Het bureau ontwierp een bijzonder compacte en uitgebalanceerde compositie van volumes.
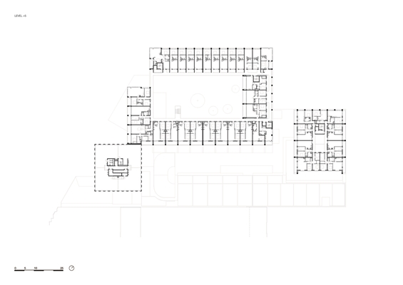
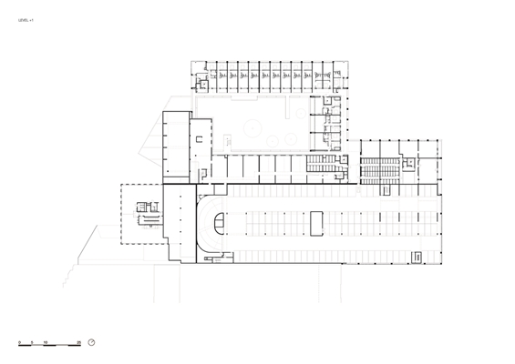
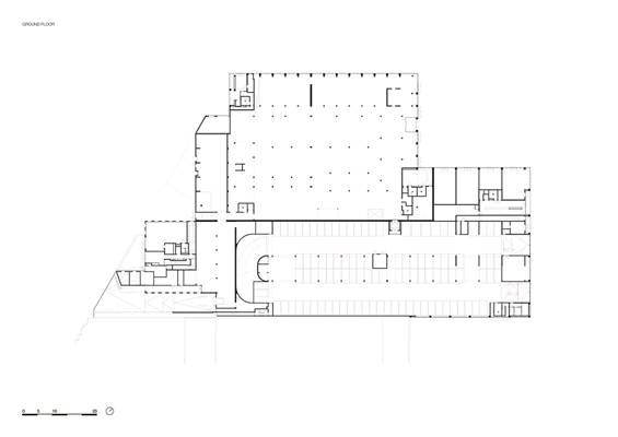
De plint biedt plaats aan een supermarkt, andersoortige commerciële functies en een parkeergarage. Daarboven verrijzen twee woonvolumes van elk vijf verdiepingen, die samen 172 appartementen omvatten. Een volume is bestemd voor marktconforme woningen, het andere volume betreft sociale woningbouw.
Verschillende configuraties
Het noordwestelijk gelegen en grootste volume vouwt zich rond een royaal binnenhof met beplanting. Galerijen rond dit binnenhof geven toegang tot de tweezijdig georiënteerde appartementen. Minimalisering van de verticale verbindingen heeft verschillende configuraties van woningen mogelijk gemaakt, legt het architectenbureau uit.
Het oostelijk gelegen volume biedt plek aan 39 sociale woonappartementen. Afhankelijk van hun positie profiteren deze woningen van een dubbele oriëntatie, loggia’s en uitzicht over de bomen of richting de stad. Tot slot behoort een zuidwestelijk gesitueerd kantoorgebouw tot het complex; dit gebouw versterkt de tegenover elkaar plaatsing van de volumes en voltooit het nieuwe stedelijke landschap, stellen de architecten.
Oppervlakken
De ‘eenheid met verschillen’ die het ensemble kenmerkt, heeft het architectenbureau doorgezet in een samenhangende reeks aan oppervlakken. Het gebouw oogt aanvankelijk monolithisch, maar de regelmatige structuur uit prefab betonnen balken van 60 x 60 cm resulteert in grote, transparante oppervlakken en maakt volledig beglaasde hoeken mogelijk, legt het bureau uit.
Langs het binnenhof, de galerijen en andere looproutes zijn de gevels bekleed met grijs gekleurd hout. De kleur is zorgvuldig afgestemd op de overige materiaaltinten; het hout is gekozen als contrast met de buitenzijde van de volumes en met het oog op een warmere, ‘huiselijke’ sfeer, aldus KAAN Architecten.
Trefwoorden
frankrijk
kaan architecten
woningbouw
nantes
Best gelezen
1
Luxe appartementengebouw naast klooster Etten-Leur door Studio AAAN klaar
donderdag, 19 maart
2
BureauVanEig verbetert uitstraling Haagse rijtjeswoningen bij verduurzaming
dinsdag, 17 maart
3
Houten Stelthuis van Woonpioniers is aardbevings- en klimaatbestendig
woensdag, 18 maart
4
De nieuwe kleren van de keizer
dinsdag, 17 maart
5
Duncan Stutterheim en SOM maken plannen voor meerdere locaties Sloterdijk I
maandag, 16 maart
Gerelateerde nieuwsberichten
Vanavond: Nanne de Ru en Dikkie Scipio bij Architects, Not Architecture
10 maart 2021
Team met KAAN Architecten ontwerpt nieuw havencoördinatiecentrum Antwerpen
17 november 2023
KAAN verbindt CMA-gebouw bij Lille met landschap
5 september 2019
Ingrijpende verbouwing van De Walvis naar ontwerp van KAAN
24 juni 2019
KAAN Architecten opent vestiging in Parijs
11 maart 2019
Crematorium van KAAN Architecten ligt waardig in het landschap
13 november 2018
Bouw hoogste woontoren van Nederland gestart
26 oktober 2018
Ingetogen en krachtig gebouw voor Tilburg University van KAAN Architecten
25 september 2018
Wetenschapsinstituut ISMO van KAAN in gebruik genomen
12 september 2018
KAAN Architecten ontwerpt centrum voor Nationaal Ereveld Loenen
28 juni 2018
Utopia van KAAN Architecten in Aalst geopend
26 juni 2018
KAAN ontwerpt gevels voor drie kantoorpanden in München
20 december 2017
Bouw van Rechtbank Amsterdam vordert gestaag
25 februari 2020
KAAN Architecten presenteert bezoekerscentrum Amerikaanse Begraafplaats Margraten
23 november 2020
Ruimtelijke en ingetogen herdenkingsplek te midden van de natuur
26 november 2020
KAAN Architecten geeft KMSKA in Antwerpen nieuwe dimensie
3 maart 2021
Nieuwe rechtbank van Amsterdam heeft rijke binnenwereld
29 april 2021
De ongewenste Walvis werd een luchtige buurtgenoot
8 juni 2021
Eerste monografie van KAAN Architecten verschenen
24 juni 2022
KMSKA heropent na verbouwing van elf jaar
26 september 2022
Vanavond: Nanne de Ru en Dikkie Scipio bij Architects, Not Architecture
10 maart 2021
Team met KAAN Architecten ontwerpt nieuw havencoördinatiecentrum Antwerpen
17 november 2023
KAAN verbindt CMA-gebouw bij Lille met landschap
5 september 2019
Ingrijpende verbouwing van De Walvis naar ontwerp van KAAN
24 juni 2019
KAAN Architecten opent vestiging in Parijs
11 maart 2019
Crematorium van KAAN Architecten ligt waardig in het landschap
13 november 2018
Bouw hoogste woontoren van Nederland gestart
26 oktober 2018
Ingetogen en krachtig gebouw voor Tilburg University van KAAN Architecten
25 september 2018
Wetenschapsinstituut ISMO van KAAN in gebruik genomen
12 september 2018
KAAN Architecten ontwerpt centrum voor Nationaal Ereveld Loenen
28 juni 2018
Utopia van KAAN Architecten in Aalst geopend
26 juni 2018
KAAN ontwerpt gevels voor drie kantoorpanden in München
20 december 2017
Bouw van Rechtbank Amsterdam vordert gestaag
25 februari 2020
KAAN Architecten presenteert bezoekerscentrum Amerikaanse Begraafplaats Margraten
23 november 2020
Ruimtelijke en ingetogen herdenkingsplek te midden van de natuur
26 november 2020
KAAN Architecten geeft KMSKA in Antwerpen nieuwe dimensie
3 maart 2021
Nieuwe rechtbank van Amsterdam heeft rijke binnenwereld
29 april 2021
De ongewenste Walvis werd een luchtige buurtgenoot
8 juni 2021
Eerste monografie van KAAN Architecten verschenen
24 juni 2022
KMSKA heropent na verbouwing van elf jaar
26 september 2022
Toon alles
Andere nieuwsberichten
PSV presenteert plannen voor uitbreiding Philips Stadion
Gisteren, 15:37
De Eindhovense club wil de capaciteit van zijn onderkomen opschroeven met maximaal 25.000 bezoekers. Om dit te bewerkstelligen, komt er een nieuwe schil rond het stadion waarin een derde ring is opgenomen.
Rijkswaterstaat staakt renovatie markante houten Krùsrak-brug in Sneek
Gisteren, 11:32
Tijdens de renovatie werd duidelijk dat de constructieve veiligheid van de brug niet langer kan worden verzekerd, laat RWS weten. De uit 2008 stammende Krúsrak-brug over de rijksweg 7 is ontworpen door Onix en Archterbosch Architecten.
KAAN Architecten en De Zwarte Hond winnen tender voor Area 19 TU Eindhoven
Gisteren, 10:35
De opdracht omvat het ontwerp van een nieuw onderzoeks- en onderwijsgebouw en de stedenbouwkundige ontwikkeling van een nieuw campusgebied.
Projecten gezocht voor vijfde Adriaan Dessingprijs
19 maart, 2:42
De tweejaarlijkse architectuurprijs vestigt de aandacht op bijzondere, gerealiseerde plannen in de Zuid-Hollandse gemeenten Westland en Midden-Delfland. Het kan gaan om nieuwbouw, restauratie of landschappelijke projecten.
Friesland brengt duizenden karakteristieke boerderijen in kaart
Gisteren, 14:16
Door alle informatie over de voor het landschap kenmerkende gebouwen op één plek te brengen, moet het makkelijker worden om ze te behouden.
ING: bijna de helft van de huiseigenaren stelt verduurzaming uit
Gisteren, 12:18
De meeste mensen vinden dat de overheid te weinig doet om dit te stimuleren.
Rekenkamer kraakt resultaten EU-innovatiefonds voor verduurzaming
Gisteren, 09:25
Het Innovatiefonds van de Europese Unie levert veel minder resultaat op dan verwacht op het gebied van verduurzaming en innovatie.
Provincie schrapt beoogde locaties windturbines in Groene Hart
19 maart, 1:35
De provincie had twaalf plekken op het oog, maar dat leidde tot maatschappelijk en politiek verzet.
Staten Utrecht willen netcongestie versneld aanpakken
19 maart, 9:44
De fracties wezen op de noodzaak van het zo snel mogelijk realiseren van een hoogspanningsstation dat essentieel is voor het opsplitsen van het elektriciteitsnetwerk tussen de Flevopolder, Gelderland en Utrecht.
Rotterdam wil woningbouw versnellen met pilot ‘Ontwikkelaar aan Zet’
18 maart, 4:33
De gemeente Rotterdam start een pilot waarbij projectontwikkelaars een grotere rol krijgen bij de voorbereiding van woningbouwprojecten.
Ga naar het nieuws-archief
Robert Muis
Redacteur
0
0
0
0
Voor een optimale gebruikservaring plaatst Architectenweb functionele cookies. Wat de verschillende cookies precies doen leggen we uit in een
overzicht
. Cookies van social media kun je optioneel
aanzetten
.
Akkoord
Instellingen
Annuleren
OK
Sluiten
Doorgaan
Inloggen
Maak een gratis persoonlijk account aan
Feedback
Feedback
Wij horen graag jouw feedback. Laat je reactie achter en eventueel jouw e-mail adres.
Reactie
Verstuur