Copyright: Mediamixer
Entreehal
Copyright: Sebastian van Damme
Trap van entreehal naar garderobe eronder
Copyright: Stijn Bollaert
Gerenoveerde tentoonstellingszalen op secondo piano nobile
Copyright: Stijn Bollaert
Gerenoveerde tentoonstellingszalen op piano nobile
Copyright: Stijn Bollaert
Gerenoveerde tentoonstellingszalen op secondo piano nobile
Copyright: Sebastian van Damme
Gerenoveerde tentoonstellingszalen op secondo piano nobile
Copyright: Sebastian van Damme
Gerenoveerde tentoonstellingszalen op secondo piano nobile
Copyright: Sebastian van Damme
Gerenoveerde tentoonstellingszalen op secondo piano nobile
Copyright: Stijn Bollaert
Copyright: Stijn Bollaert
Nieuwe tentoonstellingszaal op piano nobile
Copyright: Stijn Bollaert
Nieuwe tentoonstellingszaal op piano nobile
Copyright: Stijn Bollaert
Nieuwe tentoonstellingszaal op piano nobile
Copyright: Stijn Bollaert
Nieuwe tentoonstellingszaal op piano nobile
Copyright: Stijn Bollaert
Doorzicht naar dakverdieping
Copyright: Stijn Bollaert
Lichthof
Copyright: Stijn Bollaert
Zicht op lichthof vanuit tussenverdieping met prenten
Copyright: Stijn Bollaert
Zicht op lichthof vanuit tussenverdieping met prenten
Copyright: Stijn Bollaert
Nieuwe tentoonstellingszaal op dakverdieping
Copyright: Stijn Bollaert
Nieuwe tentoonstellingszaal op dakverdieping
Copyright: Stijn Bollaert
Detail dak
Copyright: Sebastian van Damme
Nieuwe tentoonstellingszaal op dakverdieping
Copyright: Sebastian van Damme
Lange steektrap met lichtkunstwerk
Copyright: Stijn Bollaert
Lange steektrap met lichtkunstwerk
Copyright: Stijn Bollaert
Copyright: Mediamixer
Opslag
Copyright: Karin Borghouts
Copyright: Mediamixer
Layout negentiende eeuwse buurt
Copyright: KAAN Architecten
Nieuwbouw vanaf de straat niet zichtbaar
Copyright: KAAN Architecten
Twee musea in één gebouw
Copyright: KAAN Architecten
Twee musea in één gebouw
Copyright: KAAN Architecten
Copyright: KAAN Architecten
Verdeling programma
Copyright: KAAN Architecten
Routing museum
Copyright: KAAN Architecten
Situatie 1:2000
Copyright: KAAN Architecten
Begane grond 1:500
Copyright: KAAN Architecten
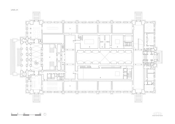
Eerste verdieping 1:500
Copyright: KAAN Architecten
Tweede verdieping 1:500
Copyright: KAAN Architecten
Blauwe kabinetten 1:500
Copyright: KAAN Architecten
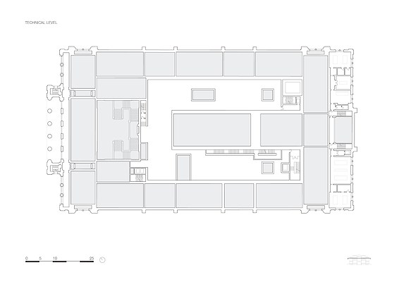
Tussenverdieping voor techniek 1:500
Copyright: KAAN Architecten
Derde verdieping 1:500
Copyright: KAAN Architecten
Dak 1:500
Copyright: KAAN Architecten
Doorsnede AA 1:500
Copyright: KAAN Architecten
Doorsnede BB 1:500
Copyright: KAAN Architecten
KAAN Architecten geeft KMSKA in Antwerpen 
nieuwe dimensie
Over een periode van maar liefst zeventien jaar is het Koninklijke Museum voor Schone Kunsten Antwerpen (KMSKA) naar ontwerp van KAAN Architecten gerenoveerd en uitgebreid. Architect Dikkie Scipio, die het project al die tijd begeleidt, gaf Architectenweb een rondleiding door het opgeleverde gebouw, waar de komende periode de kunstwerken in teruggeplaatst worden.
In de zuidelijke binnenstad van Antwerpen lijken alle straten er wel op uit te komen: het monumentale gebouw van het Koninklijk Museum voor Schone Kunsten Antwerpen, kortweg KMSKA. Het enorme gebouw ligt aan alle zijden vrij van de omliggende bebouwing en rijst er net bovenuit. Het is eind negentiende eeuw ontworpen als het centerpiece van de stadsuitbreiding hier, en na de renovatie en uitbreiding maakt het museum die centrale positie in de buurt opnieuw waar.

Bij de vernieuwing van het museum heeft KAAN Architecten een tweesporenbeleid gehanteerd: de bestaande tentoonstellingsruimtes zijn zoveel mogelijk teruggebracht in hun oorspronkelijke vorm en de nieuwe tentoonstellingsruimtes voegen daar een heel andere ruimtelijkheid aan toe.

“Tegenover de krachtige architectuur van het bestaande museum wilden wij in de uitbreiding iets even krachtigs stellen”, vertelt architect Dikkie Scipio van KAAN Architecten. “Een bewuste keuze daarbij was om de uitbreiding het bestaande museum niet te laten raken.” Het oude en nieuwe zijn twee werelden die samen het vernieuwde museum vormen.
“Waar de oude tentoonstellingszalen georganiseerd zijn als een enfilade, met de ruimtes georganiseerd langs monumentale assen, daar hebben wij de nieuwe tentoonstellingszalen een vrijere vorm gegeven en hebben we die voorzien van verticale doorzichten”, vertelt Scipio. “En waar de oude zalen zich uitstekend lenen voor het tonen van schilderijen, daar bieden de nieuwe zalen grote vrijheid in wat er getoond kan worden. Daar kunnen bijvoorbeeld ook hoge installaties in een plek krijgen.”

De nieuwe tentoonstellingszalen hebben een plek gekregen in de oude binnenhoven van het museumgebouw en zijn georganiseerd in drie lagen: een hoge verdieping, waar grote kunstwerken tentoongesteld kunnen worden, een lagere tussenverdieping, waar prenten getoond worden, en vervolgens weer een middelhoge verdieping, de dakverdieping. Ertussen zit dan ook nog een verborgen laag met installaties. Om te laten zien dat de vides door al die lagen heen gaan, zijn die gematerialiseerd als een ‘spekkoek’, waardoor je echt de massa voelt, legt Scipio uit.

Het letterlijke en figuurlijke hoogtepunt in de uitbreiding door KAAN Architecten is het transparante dak over de bovenste tentoonstellingsruimte. Het is een grid van kleine schaaldaken die, onder een hoek, het diffuse daglicht op het noorden vangen.
Concept
De renovatie en uitbreiding van het KMSKA is het langste project waar Scipio ooit aan heeft gewerkt. Met haar bureau won ze al in 2003 de prijsvraag voor de vernieuwing van het museum. Maar budget was er toen eigenlijk nog niet. Het is in onderdelen door de Vlaamse overheid gefinancierd. Daarbij is de uitwerking van het ontwerp ook steeds per onderdeel aanbesteed, waardoor KAAN Architecten daar steeds opnieuw voor moest inschrijven en uiteindelijk de renovatie van het exterieur niet begeleid heeft, maar gelukkig wel het interieur van de ontvangstruimtes, de nieuwe tentoonstellingszalen en de renovatie van de oude tentoonstellingszalen.

“Het is een gigantisch groot gebouw”, zegt Scipio over het ruim 30.000 vierkante meter grote gebouw. “Niet alleen in vierkante meters, maar vooral ook in kubieke meters.” Het was sterk verrommeld en technisch in zeer slechte staat. “Maar mede dankzij zijn schaal, waardoor aanpassingen toch duur zijn, was er ook weinig verpest aan het gebouw.”

Het concept dat KAAN Architecten bij de vernieuwing van het museum gehanteerd heeft, zag er zo uit:
- Nieuwe zonering met voorin het gebouw de publieke functies, in het midden het feitelijke museum en achterin de expeditie en kantoren;
- Gevraagde uitbreiding volledig inpandig oplossen door parallel museum van drie lagen in de oude binnenhoven op te nemen. Deze nieuwe tijdlaag steekt minimaal uit boven bestaande dak, zodat deze bij een wandeling rond het gebouw niet zichtbaar is;
- Bestaande gebouw met zijn bestaande tentoonstellingsruimtes is onderdeel van de collectie van het museum. Dit geldt
met name voor de oude daglichtzalen bovenin het museum.

Nu ruim zeventien jaar later is de kracht van deze benadering zichtbaar geworden. De grootse opeenvolging van voorplein - voorportaal - entreehal - trappenhal - tussenzalen - grote zalen is door KAAN Architecten hersteld.

Belangrijk bij het herstel van die opeenvolging van ruimtes was om alle functies, die in de tussentijd in de entreehal een plek hadden gekregen, er nu omheen een plek te geven. De garderobe en groepsentree liggen een niveau lager, net als bij theaters vaak het geval is, in een filmische, witte wereld. De winkel en het café liggen nu aan weerszijden van de entreehal, uitermate logisch. De oude ticketbooths in de entreehal zijn in ere hersteld, waarbij er eentje subtiel verlaagd is om ook bezoekers ‘met een wiel’ te kunnen bedienen. Het eindresultaat is een serene entreehal, zoals die ook ooit bedoeld was. Met een online gekochte ticket kun je in basis direct doorlopen, het museum in.
Piano Nobile en Secondo Piano Nobile
De bestaande tentoonstellingszalen zijn georganiseerd over twee lagen. De begane grond van het gebouw wordt gevormd door een lage verdieping waar de kunstcollectie die niet ‘op zaal’ hangt ligt opgeslagen. Die verdieping functioneert eigenlijk als een soort kelder. Bezoekers komen via de brede buitentrap in basis binnen op de eerste verdieping, die een veel grotere hoogte heeft. Dat is dus een hoofdverdieping, een piano nobile. Maar de tweede verdieping is dat vervolgens ook. Sterker nog, de bekendste schilderijen van het museum hangen op de tweede verdieping, die daarom een secondo piano nobile genoemd kan worden.

Beide hoofdverdiepingen bieden een andere architectonische beleving. Het museum is in aanleg ontworpen als een daglichtmuseum en op de piano nobile werd het daglicht via de buitengevel en de binnenhoven naar binnen gehaald, terwijl dat op de secondo piano nobile via het dak gebeurde. De subtiele hiërarchie die daar toch uit spreekt, daglicht van boven werkt uiteindelijk toch beter, is ook in de renovatie terug te zien. Waar de piano nobile gewoon goede tentoonstellingsruimtes heeft, met vanwege de nieuwbouw in de binnenhoven nu daglicht van een zijde, daar zijn de tentoonstellingsruimte op de secondo piano nobile van heel hoog niveau - een feest om doorheen te wandelen.
Op de secondo piano nobile heeft KAAN Architecten, in nauwe samenwerking met restauratiearchitect Maarten Fritz, de houten vloeren, de houten lambriseringen en deuren, het behang, de plafonds en de glazen daken allemaal in oude glorie teruggebracht. Het geheel is zo logisch en waardig, dat het bijna lijkt alsof er niks gebeurd is. “Maar vergis je niet”, geeft Scipio aan. “Veel van de houten kozijnen en deuren hebben we opnieuw moeten laten maken, net als veel van de lambriseringen.”

Ook het velum moest bijna overal gerestaureerd worden. Het is bewust voorzien van restauratieglas, dat met zijn oppervlak bestaande uit kleine piramides het licht optimaal verstrooid. Boven het velum zijn nieuwe, automatische zonweringen in de vorm van doeken toegevoegd.

Centraal op de secondo piano nobile ligt de grote zaal waar straks weer de topstukken van het museum hangen: de Rubens en Van Dyck zaal. Als reactie op het afbranden van de kunstacademie kort voor de bouw van het museum, bedacht men hier om onder de grote zaal een bomvrije ruimte te bouwen. Bij brand en andere calamiteiten zoals oorlog konden de schilderijen, via luiken in de vloer, snel daar naartoe getakeld worden. Dit systeem is lang in bedrijf geweest en is ook een aantal keer gebruikt. Omdat de brandweer de luiken ondertussen als schoorstenen zag, eiste die dat ze nu als brandscheidingen uitgevoerd zouden worden. Vanwege de hoge kosten daarvan is er in de restauratie voor gekozen om één groot luik brandwerend te maken en de anderen definitief te sluiten. In de vloer zijn alle luiken nog wel zichtbaar.

Bij zijn oplevering had het museum eigenlijk geen klimatisering. Alleen de bankjes die centraal in de ruimtes stonden waren verwarmd. Nu zijn die bankjes voor een deel weer teruggebracht, maar de klimatisering werkt ondertussen heel anders. Frisse lucht wordt langs het plafond ingebracht, zakt langs de kunstwerken naar beneden, wordt vervolgens door de verwarming in de ruimte opgewarmd en wordt dan centraal, bovenin de ruimte afgezogen.
Rondwandeling
Een wandeling door de gerestaureerde tentoonstellingszalen doet je terugdenken aan de beginperiode van het museum. “Het bezoek aan het museum was destijds gedacht als een alternatief voor een wandeling door het park”, vertelt Scipio. “Doordat iedere zaal weer op een volgende opent, is het ook nu weer mogelijk om een rondwandeling te maken.”

De nieuwbouw in de binnenhoven voegt ook aan dat idee nog een dimensie toe. Om de beleving van de oude tentoonstellingszalen zo puur mogelijk te houden, is alleen op de piano nobile op twee plekken een
verbinding gemaakt tussen de oude, gerestaureerde tentoonstellingszalen en de helemaal nieuwe tentoonstellingszalen. Op de secondo piano nobile is geen enkele verbinding met de uitbreiding gemaakt. Het betekent dat de nieuwbouw daar in de beleving helemaal afwezig is. Een subtiel opgedikte wand verbergt er een passage tussen twee delen van die nieuwbouw. Maar je moet een Sherlock Holmes zijn om dat te zien.

De nieuwbouw in de binnenhoven heeft eigen verbindingen tussen de verdiepingen. Los van het bestaande gebouw kon Scipio aan die ontsluiting een heel eigen draai geven en die ruimte heeft ze volledig benut. Er zijn grote liften die via spleten subtiel een blik naar buiten gunnen op de weg omhoog of omlaag. Er is een prachtige ‘bordestrap’. En er is een smalle en hele lange steektrap voorzien van een lichtkunstwerk ontworpen door Scipio zelf. Zeer Instagrammable!

De eigen indeling van de nieuwbouw (drie lagen met tentoonstellingsruimtes) ten opzichte van de oudbouw (twee lagen met tentoonstellingsruimtes) in combinatie met de eigen ontsluiting van die nieuwe delen, geeft het museum een zeldzame mystiek. Het geeft het museum iets labyrintisch, in de positieve zin van het woord. Voor bezoekers zal het even wennen zijn en Scipio vindt dat juist ook het interessante eraan. “Als bezoeker heb je hier kans om iedere keer nieuwe ruimtes te ontdekken. De ene keer ga je met de lift naar de nieuwe dakverdieping, de andere keer duik je de donkere tussenverdieping met de prenten in. De ene keer neem je de lift. De volgende keer de trap.”

Een wandeling door het museum is nu een wandeling door verschillende werelden, een negentiende eeuwse wereld en een eenentwintigste eeuwse wereld. En als de kunst straks weer in het museum hangt zal het ook een wandeling zijn langs kunst uit allerlei perioden, van de zeventiende eeuw tot de huidige tijd. “Een wandeling vol verhalen en contrasten”, vat Scipio het samen.
Roemruchte geschiedenis van de plek
Op de plek waar het KMSKA staat, stond eeuwenlang een citadel. Deze was in de zestiende eeuw gebouwd in opdracht van de hertog van Alva, om van daaruit in naam van de Spaanse koning de stad eronder te houden. In de eeuwen erna zijn de versterkingen rond het kasteel door de Vlamingen zelf stapsgewijs uitgebreid. En in de negentiende eeuw speelde het vervolgens nog een belangrijke rol tijdens de Belgische Revolutie. In 1830 is de stad vanuit het citadel door het Nederlandse leger beschoten, in een ultieme poging om de Vlaamse afscheiding de kop in te drukken. In 1832 maakten Franse troepen een definitief einde aan het Nederlandse bewind.

Vanwege de zeer negatieve betekenis van het citadel onder de Antwerpse bevolking is het daarna snel afgebroken en is eind negentiende eeuw op die plek een nieuwe wijk gebouwd, Het Zuid, met centraal daarin het KMSKA, dat grofweg op de plek van één van de bastions van de oude citadel staat. Met zijn toch wat massieve voorkomen heeft het museum ironisch genoeg ook nog wel iets va
n een burcht, al is het nu in ieder geval een burcht van het volk, een tempel voor de kunsten.

“Het is inderdaad een stevig gebouw”, zegt Scipio over het door architecten Jean-Jacques Winders en Frans Van Dijk ontworpen museum. “Maar er zitten een hoop slimme dingen in. Zo heeft het gebouw op zijn hoeken kleine loggia’s van waaruit je even zicht hebt op de omliggende buurt en in de straten kunt kijken.”

Na de oorlogen met Spanje en Nederland resteerde er weinig kunst in Vlaanderen. Er was vooral veel religieus werk overgebleven en daarnaast was er een grote collectie van de kunstacademie. “Die collecties vormden de basis van het museum”, legt Scipio uit. In de loop van de tijd is de collectie wel uitgebreid, maar de collectie die niet op zaal getoond wordt is nog altijd zo compact dat deze in het, ook gerestaureerde, depot op de begane grond opgeslagen kan worden.

Het museum was onderdeel van de eerste wereldtentoonstelling in Antwerpen en startte eind negentiende eeuw met een wandvullende presentatie”, vertelt Scipio, dus met alle schilderijen direct boven en naast elkaar gehangen. “Toen er werd overgestapt op de presentatie van de schilderijen naast elkaar, ontstond er zo’n gebrek aan tentoontstellingsruimte dat op de piano nobile meteen extra tussenwanden geplaatst zijn en de ramen richting de patio’s dichtgemaakt zijn.” Dat loste het ruimtegebrek maar deels op. Pas in deze nieuwe uitbreiding krijgt het museum weer echt lucht.

Na een restauratie en uitbreiding van zeventien jaar zit het werk voor KAAN Architecten er bijna op. Alleen aan de kantoren wordt nog gewerkt. In het museum worden de komende periode de kuntwerken teruggehangen. Wanneer het museum vervolgens officieel geopend zal worden is nog niet bekend.

Gerelateerde nieuwsberichten

Gerelateerde podcasts

Andere nieuwsberichten

Hans Been Architecten en LAP Landscape & Urban Design winnen tender in Hoeven

59 minuten geleden

RoosRos ontwerpt circulaire gym/beweegbox in Tilburg – eerste toepassing sorghumvezelisolatie

1 uur geleden

Studioninedots deelt nieuwe beelden van project Spark op Smakkelaarsveld in Utrecht

2 uur geleden

MVRDV ontwerpt groene woontoren met gemeenschappelijke balkons en dakterras in Taiwan

3 uur geleden

Gemeente Den Haag komt met meldpunt voor onveilige plekken

1 uur geleden

Vervoersregio's Rotterdam, Den Haag en Amsterdam willen miljard extra voor OV

21 november, 11:29

Mogelijke proef zelfrijdende pendelbussen tussen station Hoofddorp en Schiphol Trade Park

20 november, 2:15

Fietsflat bij Amsterdam Centraal wordt na 25 jaar gesloopt

20 november, 1:45

Maastricht grootste stijger op lijst van beste steden om te wonen

20 november, 1:15

Minder infraprojecten gaan door na bezuinigingen Prinsjesdag

20 november, 10:40
Michiel van RaaijHoofdredacteur
ATAG Nederland
KUBUS | Specialist in BIM-software
SAPA
Reynaers Aluminium Nederland
Jansen
SAB-profiel bv
Aliplast Aluminium Systems
Kingspan Light & Air
Hagemeister GmbH & Co. KG
ALUCOBOND®
Tarkett BV
Kawneer
Grohe Nederland B.V.
Malaysian Timber Council
OCS | Office Cabling Systems
Swisspearl Nederland
Forster Nederland N.V.
VELUX Commercial Benelux B.V.
Sempergreen
Houthandel van Dam
Aluprof Nederland BV
QbiQ Wall Systems
Forbo Flooring
Schüco Nederland
Cedral
Sto Isoned bv
Triflex bv
Gorter Luiken BV
wienerberger
Knauf Insulation
DUCO Ventilation & Sun Control
BEWI IsoBouw
Mview+
Rockfon (ROCKWOOL B.V.)
Gira Nederland B.V.
Kingspan Geïsoleerde Panelen
GEZE Benelux  B.V.
Renson
Metaglas Groep
ABB | Busch-Jaeger
Jung | Hateha B.V.
Knauf B.V.
Saint-Gobain Glass Benelux
Faay Vianen B.V.
objectflor
Boon Edam Nederland B.V.
Hunter Douglas Architectural
VOLA Nederland BV
Forbo Eurocol Nederland B.V.
EQUITONE gevelpanelen
Holonite B.V.
AXOR + hansgrohe
Tata Steel Colorcoat®
Architectenweb
Over ons
Contact

© 2002 - 2025 Architectenweb BV / Voorwaarden / Privacy / Disclaimer / Sitemap
Annuleren
OK
Sluiten
Doorgaan
Inloggen
Maak een gratis persoonlijk account aan