Projecten
Producten
Bedrijven
Vacatures
Agenda
Awards
Podcasts
more_horiz
Videos
Magazine
Thema's
Favorieten
Profiel
Uitloggen
Bezoekerscentrum Park Vijversburg
Copyright: Iwan Baan
Bezoekerscentrum Park Vijversburg
Copyright: Iwan Baan
Bezoekerscentrum Park Vijversburg
Copyright: Iwan Baan
Bezoekerscentrum Park Vijversburg
Copyright: Iwan Baan
Bezoekerscentrum Park Vijversburg
Copyright: Iwan Baan
Bezoekerscentrum Park Vijversburg
Copyright: Iwan Baan
Bezoekerscentrum Park Vijversburg
Copyright: Iwan Baan
Bezoekerscentrum Park Vijversburg
Copyright: Iwan Baan
Copyright: Studio MAKS
Copyright: Studio MAKS
Copyright: Studio MAKS
Copyright: Studio MAKS
Copyright: Studio MAKS
Copyright: Studio MAKS
Copyright: Studio MAKS
Copyright: Studio MAKS
AIT Award voor bezoekerscentrum Park Vijversburg
27 maart 2018, 10:27
Het bezoekerscentrum van Park Vijversburg in het Friese Tietjerk is onderscheiden met een AIT Award. Het project, waarbij
Studio MAKS
en
Junya Ishigami
als architecten zijn betrokken, won in de categorie publieke gebouwen. Twee andere Nederlandse projecten behaalden een eervolle vermelding in hun categorie.
Het bezoekerscentrum Park Vijversburg
is vorig jaar geopend
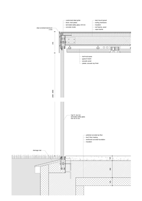
. Studio MAKS heeft een historische villa op het achttiende-eeuwse landgoed gerenoveerd en uitgebreid met een paviljoen dat op subtiele wijze is ingebed in het landschap. Het bouwwerk bestaat uit drie glazen ‘lijnen’ die zich uitstrekken in het park en de natuurlijke omgeving weerspiegelen.
De
AIT Awards
, die zijn vernoemd naar het gelijknamige architectuurmagazine, werden in twaalf verschillende categorieën uitgereikt tijdens de beurs Light+Building in Frankfurt. Er waren 723 projecten uit 36 landen ingezonden.
De
Hoge Raad in Den Haag
van KAAN Architecten kreeg een eervolle vermelding in de categorie kantoren/overheid, het concept
Urby
van architectenbureau concrete viel deze eer ten deel in de categorie wonen in de toekomst.
Park Vijversburg behoort ook tot
de genomineerden
voor BNA Beste Gebouw van het Jaar 2018.
Trefwoorden
park vijversburg
kaan architecten
urby
concrete
hoge raad
studio maks
Locatie
Best gelezen
1
Rotterdam verleent bouwvergunning voor Schieblokken
vrijdag, 28 november
2
MORE Architecture en Studio Nauta ontwerpen woontoren midden op Katendrecht
donderdag, 27 november
3
Gemeenteraad stelt gebiedsvisie voor Bussum-Zuid vast
donderdag, 27 november
4
Schiphol investeert tien miljard in nieuwe terminal en andere infrastructuur
woensdag, 26 november
5
Dolmen – mysterieus object aan de rand van de Veluwe
vrijdag, 28 november
Gerelateerde nieuwsberichten
Jaarboek Architectuur in Nederland 2017/2018 gepresenteerd
8 mei 2018
Eerste fase URBY Staten Island opgeleverd
2 augustus 2016
Negen genomineerden voor BNA Beste Gebouw van het Jaar 2018
21 maart 2018
Woontoren Urby Jersey City opgeleverd
24 mei 2017
Hoge Raad: één gebouw, twee werelden
6 april 2016
Minimalistisch paviljoen in Park Vijversburg groeit uit landschapslijnen
23 oktober 2017
Derde Urby van concrete gerealiseerd in Harrison
10 oktober 2017
Park Vijversburg uitgebreid met nieuw parkdeel LOLA en Piet Oudolf
24 oktober 2017
Europe 40 under 40 Award voor Marieke Kums
16 april 2018
Studio MAKS maakt winnend ontwerp bezoekerscentrum IST Austria
25 maart 2019
Winnend ontwerp van Mulder Zonderland voor bezoekerscentrum Schwarzwald
31 maart 2022
Jaarboek Architectuur in Nederland 2017/2018 gepresenteerd
8 mei 2018
Eerste fase URBY Staten Island opgeleverd
2 augustus 2016
Negen genomineerden voor BNA Beste Gebouw van het Jaar 2018
21 maart 2018
Woontoren Urby Jersey City opgeleverd
24 mei 2017
Hoge Raad: één gebouw, twee werelden
6 april 2016
Minimalistisch paviljoen in Park Vijversburg groeit uit landschapslijnen
23 oktober 2017
Derde Urby van concrete gerealiseerd in Harrison
10 oktober 2017
Park Vijversburg uitgebreid met nieuw parkdeel LOLA en Piet Oudolf
24 oktober 2017
Europe 40 under 40 Award voor Marieke Kums
16 april 2018
Studio MAKS maakt winnend ontwerp bezoekerscentrum IST Austria
25 maart 2019
Winnend ontwerp van Mulder Zonderland voor bezoekerscentrum Schwarzwald
31 maart 2022
Toon alles
Andere nieuwsberichten
Gemeente Haarlemmermeer kiest plan Ons Erf voor deelgebied Lincolnpark Hoofddorp
2 uur geleden
Bij het plan zijn vier architectenbureaus betrokken: White Arkitekter, Space&Matter, Atlas Architects, SeARCH. DS Landschapsarchitecten verzorgt het landschapsontwerp.
BRTArchitecten onderzoekt of in traditioneel polderlandschap subtiel woningbouw ingevoegd kan worden
3 uur geleden
In opdracht van Stichting Architecten Werkgemeenschap Tauber onderzocht BRTArchitecten drie mogelijke alternatieve woontypologieën voor in het traditionele polderlandschap in het noorden van het land.
Nederlands Fotomuseum toont fotografische verbeelding van Rotterdam
Gisteren, 15:16
Op 7 februari opent het Nederlands Fotomuseum zijn deuren in het voormalige pakhuis Santos in Rotterdam. Een van de openingstentoonstellingen is Rotterdam in focus. Fotografie van de stad 1843.
Vocus Architecten verbouwt historische tramremise tot supermarkt
Gisteren, 14:23
In Elburg heeft Vocus Architecten een voormalige tramremise getransformeerd tot supermarkt. De twee historische bouwdelen uit het einde van de achttiende eeuw zijn gerenoveerd en er is een nieuw entreegebouw aan het complex toegevoegd.
Verduurzaming Nederland moet veel eerlijker, vindt adviesraad
1 uur geleden
De verduurzaming van Nederland dreigt vast te lopen, doordat grote groepen mensen de voordelen mislopen en daardoor het draagvlak afbrokkelt,stelt de RLi.
Gelderland wil duurzame ‘havenhub’ aanleggen bij IJzendoorn
Gisteren, 13:13
Bij een Clean Energy Hub kunnen binnenvaartschepen schonere brandstoffen zoals bio-LNG bunkeren en groene stroom laden.
Schoof ziet actiepunten in klimaatadvies burgerberaad
Gisteren, 10:22
De demissionair premier herkent de wens van het kabinet voor een ‘haalbaar en betaalbaar’ klimaatbeleid in de aanbevelingen van 175 burgers.
Besluit over verdwijnen dorp Moerdijk halfjaar uitgesteld
1 december, 3:27
Het Rijk en de provincie Noord-Brabant willen pas in juni een besluit nemen over uitbreiding van het haven- en industriegebied in Moerdijk.
Amsterdam overweegt hogere toeristenbelasting in herbestemming panden te stoppen
1 december, 10:30
Het stadsbestuur overweegt de toeristenbelasting te verhogen als de landelijke btw-verhoging niet leidt tot een daling van het aantal toeristenovernachtingen.
Amsterdam zoekt vastgoedpartij die 'werkcorporatie' wil opzetten
28 november, 5:16
De Werkcorporatie Amsterdam moet helpen om kleinschalige en betaalbare bedrijfsruimtes voor bijvoorbeeld meubelmakers en loodgieters in de stad te realiseren.
Ga naar het nieuws-archief
Ronnie Weessies
Redacteur
0
0
0
0
Voor een optimale gebruikservaring plaatst Architectenweb functionele cookies. Wat de verschillende cookies precies doen leggen we uit in een
overzicht
. Cookies van social media kun je optioneel
aanzetten
.
Akkoord
Instellingen
Annuleren
OK
Sluiten
Doorgaan
Inloggen
Maak een gratis persoonlijk account aan
Feedback
Feedback
Wij horen graag jouw feedback. Laat je reactie achter en eventueel jouw e-mail adres.
Reactie
Verstuur