Projecten
Producten
Bedrijven
Vacatures
Agenda
Awards
Podcasts
more_horiz
Videos
Magazine
Thema's
Favorieten
Profiel
Uitloggen
Abonneer je nu op onze nieuwsbrieven!
Abonneren
Nee, bedankt
Ja, denk met me mee rond de
materialisering van mijn project
Copyright: ( Fernando Guerra, FG+SG)
Copyright: ( Sebastian van Damme)
Copyright: ( Sebastian van Damme)
Copyright: ( Fernando Guerra, FG+SG)
Copyright: ( Fernando Guerra, FG+SG)
Copyright: Foyer ( Fernando Guerra, FG+SG)
Copyright: Kleine rechtzaal ( Fernando Guerra, FG+SG)
Copyright: Grote rechtzaal ( Fernando Guerra, FG+SG)
Copyright: Atrium Raad ( Fernando Guerra, FG+SG)
Copyright: Atrium Raad ( Fernando Guerra, FG+SG)
Copyright: Atrium Raad ( Fernando Guerra, FG+SG)
Copyright: Atrium Raad ( Fernando Guerra, FG+SG)
Copyright: Atrium Parket ( Fernando Guerra, FG+SG)
Copyright: Atrium Parket ( Fernando Guerra, FG+SG)
Copyright: Atrium Procureur-Generaal en President ( Fernando Guerra, FG+SG)
Copyright: Atrium Procureur-Generaal en President ( Fernando Guerra, FG+SG)
Copyright: Restaurant ( Fernando Guerra, FG+SG)
Copyright: ( Sebastian van Damme)
Copyright: ( Fernando Guerra, FG+SG)
Copyright: ( Fernando Guerra, FG+SG)
Hoge Raad: één gebouw, twee werelden
6 april 2016, 13:13
In Den Haag is de nieuwe huisvesting voor de Hoge Raad afgerond. Voor de hoogste gerechtelijke instantie van Nederland op civielrechtelijk, strafrechtelijk en belastingrechtelijk gebied ontwierp
KAAN Architecten
een gebouw met een zeer publieke onderbouw en een veel beslotener bovenbouw. Zaterdag 2 april kreeg Architectenweb een rondleiding.
Als organisatie heeft de Hoge Raad twee heel verschillende kanten, legt architect Kees Kaan van KAAN Architecten uit. Aan de ene kant vindt er in de rechtszalen een publiek debat plaats, aan de andere kant wordt er in kantoren in afzondering op de dossiers gestudeerd.
Binnen de beschikbare bouwenvelop was het volgens Kaan een optie om het publieke programma aan één zijde van het gebouw te concentreren. Het Korte Voorhout, waaraan het gebouw staat, vormt echter een belangrijke groene verbinding tussen het Haagse Bos met het Malieveld, en het Lange Voorhout en de Hofvijver met het Binnenhof. Het Korte Voorhout verbindt zodoende enkele van de belangrijkste plaatsen van onze democratie met elkaar, analyseert Kaan.
Het architectenbureau vond het daarom gepaster om het publieke programma niet te concentreren, maar wilde deze zo lang mogelijk te maken langs het Korte Voorhout, om de route over het Korte Voorhout te begeleiden. Onder meer door deze keuze won KAAN Architecten binnen het consortium geleid door BAM in 2012 de aanbesteding voor de nieuwbouw van de Hoge Raad.
De bouwenvelop voor de nieuwbouw van de Hoge Raad was door het Rijksvastgoedbedrijf en de gemeente Den Haag precies uitonderhandeld op het noodzakelijke bouwvolume. Met de keuze om het publieke programma in de plint op te nemen, kwamen de kantoorruimtes automatisch hierboven te liggen. De afstand van de kantoren tot de straat heeft KAAN Architecten nog iets vergroot door boven de dubbelhoge plint een verdieping op te nemen voor de ondersteunende diensten en het gezamenlijke restaurant.
Verticaal schisma
Deze tussenverdieping heeft ook architectonisch een dienende functie. Hierin is een stelsel van vierendeelliggers opgenomen dat de 104 meter lange foyer op de begane grond kolomvrij houdt. Voor de erboven gelegen verdiepingen vormt de tussenverdieping een ‘tafel’ waarop een geheel nieuwe draagconstructie geplaatst kan worden – een draagconstructie die geoptimaliseerd is voor de kantoorruimtes daar.
In het gebouw introduceert de tussenverdieping een verticaal schisma, zoals Rem Koolhaas dat in zijn boek Delirious New York noemt, dat zowel de plint als de kantoren erboven de vrijheid geeft om hun eigen logica te volgen. In de onder- en bovenbouw van het gebouw konden zo twee verschillende werelden ontstaan, passend bij de dualiteit in het programma van de Hoge Raad.
Twee heel verschillende glazen gevels
Dankzij de tussenverdieping heeft KAAN Architecten op de begane grond een glazen gevel kunnen maken over de volledige lengte van het gebouw. Deze glazen gevel, die aan hoge veiligheidseisen voldoet, wordt binnen ondersteund door grote glazen windstijlen. Zowel vanaf buiten als van binnen gezien maakt deze gevel een spectaculair en genereus gebaar.
Waar het architectenbureau in de plint de draagconstructie zoveel mogelijk uit de gevel heeft gehouden, daar heeft het bij de kantoorverdiepingen de draagconstructie juist doelbewust in de gevel geplaatst. Elke 45 cm is daar een dragende stijl in de gevel opgenomen.
De kantoorverdiepingen zijn traditioneel opgedeeld in kamers, maar de kamers zelf zijn meestal niet zo groot, legt projectarchitect Vincent Panhuysen van KAAN Architecten uit. Juist dan zijn kolommen achter de gevel zeer onwenselijk. Door de draagconstructie in de gevel op te nemen blijven de kantoorruimtes, ook al zijn ze soms klein, toch zeer functioneel.
De gevels van de kantoorverdiepingen op het oosten, zuiden en westen zijn dubbel uitgevoerd. Net zo belangrijk als de klimatologische functie hiervan, vond het architectenbureau de architectonische functie van de dubbele gevel. Kaan verwijst hiervoor naar de toga die zowel advocaten als rechters in Nederland dragen en de pruiken die in sommige andere landen hier nog aan toegevoegd worden.
Deze kleding anonimiseert en institutionaliseert de rechtspraak, analyseert Kaan, die in het ontwerp gezocht heeft naar een architectonisch equivalent hiervan en dit in de dubbele glazen gevel vond. Deze onttrekt veel van wat erachter gebeurt aan het oog, stelt Kaan, terwijl het toch een transparante uitstraling heeft.
De dubbele gevel is zo opgebouwd dat voor ieder raam een aparte glazen cassette is gevormd. De ruimte die tussen de cassettes is open gelaten, laat afwisselend frisse lucht toe en voert opgewarmde lucht af. Onderin iedere cassette laten hiervoor drie ronde openingen frisse lucht toe, diagonaal hier tegenover laten drie ronde openingen bovenin de cassette de lucht ontsnappen. Aan de binnenzijde van de cassetten zijn alle ramen in de gevel te openen. Ongetwijfeld een groot plezier voor de gebruikers van het gebouw.
Meanderende foyer
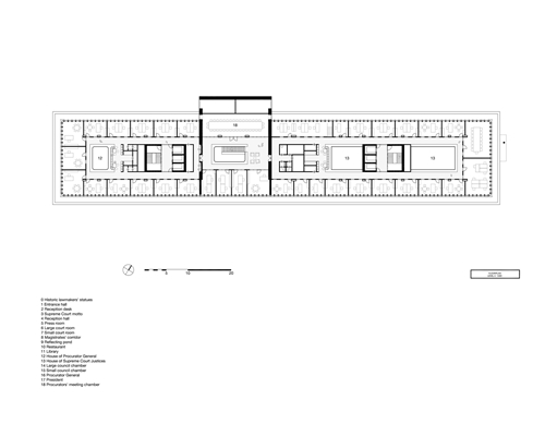
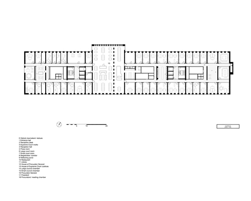
De ruimtelijke opbouw van de onderbouw en de bovenbouw verschillen net zo sterk van elkaar als hun gevels. Aan de straat heeft KAAN Architecten een meanderende foyer ontworpen, die zich rond de rechtszalen vouwt. Direct aan de glazen gevel ligt de foyer exact op straatniveau. Hierachter ligt deze iets verdiept, om momenten van iets meer privacy en geborgenheid te introduceren, legt Kaan uit.
De Hoge Raad heeft een grote zaal met 400 zitplaatsen en kleine zaal met 80 zitplaatsen. De zalen zijn identiek gematerialiseerd in hout en met een spectaculair alabaster wand achter de lange tafel waar de rechters plaatsnemen. Het natuursteen dat deze wand vormt is 4 mm dik en laat volop daglicht door. Achter de alabaster wand bevindt zich een dubbele glazen wand, waarvan het onderste deel is verduisterd om de rechters van buitenaf aan het zicht te onttrekken.
De alabaster panelen zijn zo opgehangen dat er flinke ruimtes tussen zijn opengelaten. Op het moment van het bezoek aan de Hoge Raad scheen de zon en vormden deze tussenruimtes een verlicht grid, dat door de iets wisselende maat van de tussenruimtes een onregelmatige vorm had. In de heldere ruimten van rechtszalen is dat een kleine dissonant.
Uitsnede uit blok natuursteen
Voor de onderbouw als geheel gebruikt Kaan de metafoor van het basement van een sculptuur. Hij omschrijft de onderbouw als een natuurstenen blok waaruit de foyer is gesneden. Binnen dit architectonische concept bekroont de natuurstenen gevel van de tussenverdieping de onderbouw.
De onderzijde van de beschreven ‘uitsnede uit een natuurstenen blok’, de begane grondvloer, loopt door naar buiten, waar het de basis vormt voor zes bronzen beelden van rechtsgeleerden. Deze beelden stonden oorspronkelijk bij de huisvesting van de Hoge Raad op het Binnenhof en zijn via het Lange Voorhout, waar de Hoge Raad in de tussentijd gehuisvest was, nu hier naartoe verplaatst.
In de praktijk is dit architectonische concept vooral binnen goed te ervaren. Hier beweeg je langs de gevel in een ruimte die gevormd wordt door een natuurstenen vloer, natuurstenen wanden en een natuurstenen plafond. Een werkelijk prachtige ruimte.
Vanaf de straat gezien spiegelt de glazen gevel echter behoorlijk en helpt het niet mee dat deze precies op de lijn van de gevel erboven ligt. Hierdoor is de uitsnede binnen minder goed te ervaren, net als de gelegde verbinding van binnen naar buiten. Hier wreekt de krappe bouwenvelop zich. Voor het architectonische concept was het mogelijk beter geweest als de glazen gevel hier iets naar achteren had gelegen. Die ruimte was er echter niet.
Een bijzonder element in de onderbouw is de entree. Bij een eerste bezoek loop je er gemakkelijk aan voorbij. Als contrast met de glazen gevel is de entree opgenomen in een natuurstenen wand. Maar de deur zelf is daarbij nauwelijks gearticuleerd. Alleen de grote luifel boven de entree vormt een vertrouwd welkomstgebaar. Die enigszins verborgen entree kan voor bezoekers aan de Hoge Raad verwarrend zijn.
Drie huizen
De bovenbouw van de Hoge Raad, via de tussenverdieping afgesneden van de plint, vormt een wereld op zich. De bovenbouw is ingedeeld in drie huizen, zoals KAAN Architecten het noemt, met ieder een eigen atrium.
Aan de kant van het Malieveld ligt het grootste huis, voor de Raad. Dit huis heeft een dubbel, rechthoekig atrium uitgevoerd in grijs-blauw gestreept Turks marmer. Aan de kant van de Amerikaanse ambassade ligt het huis van het Parket. Dit huis heeft een enkel atrium met afgeronde hoeken en is uitgevoerd in lichtgrijs Turks marmer.
Tussen deze huizen in ligt het huis voor de Procureur-Generaal en de President van de Hoge Raad. Het atrium hier heeft eveneens afgeronde hoeken en is uitgevoerd in grijs-groen Grieks marmer, net als de vorige huisvesting van de Hoge Raad. Aan de achterzijde van het gebouw is dit huis te herkennen aan het ‘rugzakje’ dat de gemeente in de bouwenvelop toestond. Dankzij deze uitkraging hebben de kamers van de Procureur-Generaal en President als enigen ook zijdelings zicht over de gracht achter het gebouw.
Waar het huis voor de Raad en het Parket vier verdiepingen hoog is, daar ligt het kleinere huis van de Procureur-Generaal en de President alleen op de bovenste twee verdiepingen van het gebouw. De twee verdiepingen eronder zijn ingericht als bibliotheek.
Indrukwekkend vakmanschap
Doordat de atria zo verschillend gematerialiseerd zijn, ervaar je de verschillende huizen in de bovenbouw in de praktijk heel goed. In het gebouw werken zo’n 350 mensen, toch een aanzienlijk aantal, maar de atria geven het een gebouw echt een menselijke schaal, zelfs een intimiteit, die goed past bij het type werk dat hier wordt gedaan.
Naar de atria toe hebben de kantoren volledig glazen wanden die voorzien zijn van een print. Een mooi detail is de schaduwrand rond de deuren: hierdoor stroomt de lucht uit de kantoren naar het atrium, waar het wordt afgezogen. Door de ‘schaduwrand’ uit te voeren als een grote suskast, wordt geen geluid overgedragen. Oplossingen zoals deze schelen lelijke roosters en ruimte in het plafond, verklaart Panhuysen, die stelt dat mede hierdoor de plafondhoogte in de kantoren meer dan drie meter kon worden.
Van de slimme dubbele gevel met geïntegreerde draagconstructie, via de ventilerende deurposten, tot het ontwerp van de atria: in de bovenbouw toont KAAN Architecten op indrukwekkende wijze zijn vakmanschap. De atria hier excelleren wat betreft functionaliteit, ruimtelijkheid en materialisering, en vormen misschien wel het hoogtepunt van het gebouw.
De nieuwbouw van de Hoge Raad is gebouwd door een consortium onder leiding van BAM. Naast KAAN Architecten maken ook PGGM, Arup, DGMR en ISS hier onderdeel van uit. De Hoge Raad is gebouwd onder een DBFMO-contract, waar ook 25 jaar onderhoud deel van uitmaakt.
Op zaterdag 23 april 2016 houdt de Hoge Raad zijn eerste open dag.
Trefwoorden
den haag
michiel van raaij
kaan architecten
rechtbank
hoge raad
vincent panhuysen
kees kaan
Locatie
Best gelezen
1
De Urbanisten schetst perspectief voor vitale en aantrekkelijke Rotterdamse binnenstad
vrijdag, 13 maart
2
Nominaties Amsterdamse Architectuurprijs 2026 bekend
vrijdag, 13 maart
3
Studio Vinke en Loos van Vliet ontwerpen blok met woningen in haven Lelystad
vrijdag, 13 maart
4
Houten Stelthuis van Woonpioniers is aardbevings- en klimaatbestendig
woensdag, 18 maart
5
BureauVanEig verbetert uitstraling Haagse rijtjeswoningen bij verduurzaming
dinsdag, 17 maart
Gerelateerde nieuwsberichten
Gerechtsgebouw Sint Annadal geschikt gemaakt voor inhuizing OM
21 maart 2024
KAAN Architecten – genomineerd voor de Architect van het Jaar-prijs
9 oktober 2018
Team met KAAN Architecten ontwerpt nieuw havencoördinatiecentrum Antwerpen
17 november 2023
Video: binnenkijken bij KAAN Architecten
26 augustus 2016
AIT Award voor bezoekerscentrum Park Vijversburg
27 maart 2018
Verhuizingsplannen Binnenhof gewijzigd
23 november 2016
Ontwerp terminal bouwt voort op 'DNA' Schiphol
20 september 2017
Publieke kant WTC The Hague versterkt
21 oktober 2016
KAAN Architecten wint opdracht Paleis Het Loo
8 april 2016
Themaperiode ‘Kantoren’ van start
19 september 2016
Het Timmermansoog: Zivilarchitektur
8 mei 2018
KAAN Architecten opent vestiging in Brazilië
28 juni 2017
Braziliaanse universiteitsgebouwen KAAN Architecten klaar
12 juni 2018
Verslag van eerste lezingenavond Stichting Living Daylights
15 maart 2017
KAAN presenteert ontwerp nieuw Paleis Het Loo
7 maart 2017
Voorlopige gunning rechtbank voor NACH
14 april 2016
Amerikaanse ambassade rijksmonument
20 januari 2017
Demonstratieterrein Malieveld op de schop
18 juni 2018
KAAN Architecten toont vakmanschap met huisvesting planbureaus
26 april 2017
KAAN ontwerpt OZC Tilburg University
26 april 2016
Ontbijten rond duurzaamheid en Het Nieuwe Werken
26 september 2016
KAAN Architecten ontwerpt stadsbibliotheek Aalst
6 juli 2016
Claus en Kaan ontwerpt nieuwbouw Hoge Raad
27 november 2012
Financiering nieuwbouw Hoge Raad is rond
23 januari 2013
Internationaal Strafhof: megasculptuur in Haagse duinen
27 november 2015
Hoge Raad verhuist naar nieuwbouw
22 januari 2016
Ontwerp nieuwbouw Hoge Raad gepresenteerd
3 januari 2013
KAAN Architecten
24 september 2018
Ontwerp tijdelijke plenaire zaal Eerste Kamer gepresenteerd
3 januari 2019
Verbouwing voor provinciehuis Zuid-Holland
24 juni 2019
Eerste monografie van KAAN Architecten verschenen
24 juni 2022
Gerechtsgebouw Sint Annadal geschikt gemaakt voor inhuizing OM
21 maart 2024
KAAN Architecten – genomineerd voor de Architect van het Jaar-prijs
9 oktober 2018
Team met KAAN Architecten ontwerpt nieuw havencoördinatiecentrum Antwerpen
17 november 2023
Video: binnenkijken bij KAAN Architecten
26 augustus 2016
AIT Award voor bezoekerscentrum Park Vijversburg
27 maart 2018
Verhuizingsplannen Binnenhof gewijzigd
23 november 2016
Ontwerp terminal bouwt voort op 'DNA' Schiphol
20 september 2017
Publieke kant WTC The Hague versterkt
21 oktober 2016
KAAN Architecten wint opdracht Paleis Het Loo
8 april 2016
Themaperiode ‘Kantoren’ van start
19 september 2016
Het Timmermansoog: Zivilarchitektur
8 mei 2018
KAAN Architecten opent vestiging in Brazilië
28 juni 2017
Braziliaanse universiteitsgebouwen KAAN Architecten klaar
12 juni 2018
Verslag van eerste lezingenavond Stichting Living Daylights
15 maart 2017
KAAN presenteert ontwerp nieuw Paleis Het Loo
7 maart 2017
Voorlopige gunning rechtbank voor NACH
14 april 2016
Amerikaanse ambassade rijksmonument
20 januari 2017
Demonstratieterrein Malieveld op de schop
18 juni 2018
KAAN Architecten toont vakmanschap met huisvesting planbureaus
26 april 2017
KAAN ontwerpt OZC Tilburg University
26 april 2016
Ontbijten rond duurzaamheid en Het Nieuwe Werken
26 september 2016
KAAN Architecten ontwerpt stadsbibliotheek Aalst
6 juli 2016
Claus en Kaan ontwerpt nieuwbouw Hoge Raad
27 november 2012
Financiering nieuwbouw Hoge Raad is rond
23 januari 2013
Internationaal Strafhof: megasculptuur in Haagse duinen
27 november 2015
Hoge Raad verhuist naar nieuwbouw
22 januari 2016
Ontwerp nieuwbouw Hoge Raad gepresenteerd
3 januari 2013
KAAN Architecten
24 september 2018
Ontwerp tijdelijke plenaire zaal Eerste Kamer gepresenteerd
3 januari 2019
Verbouwing voor provinciehuis Zuid-Holland
24 juni 2019
Eerste monografie van KAAN Architecten verschenen
24 juni 2022
Toon alles
Andere nieuwsberichten
Projecten gezocht voor vijfde Adriaan Dessingprijs
Gisteren, 14:42
De tweejaarlijkse architectuurprijs vestigt de aandacht op bijzondere, gerealiseerde plannen in de Zuid-Hollandse gemeenten Westland en Midden-Delfland. Het kan gaan om nieuwbouw, restauratie of landschappelijke projecten.
Nora Prins en Floor Marree versterken directie ECHO
Gisteren, 12:24
Met de uitbreiding verstevigt ECHO naar eigen zeggen de aansturing van zowel het ontwerpbureau als de adviespraktijk voor gebiedsontwikkeling.
Luxe appartementengebouw naast klooster Etten-Leur door Studio AAAN klaar
Gisteren, 10:50
Bij klooster ’t Withof in Etten-Leur is afgelopen jaar woongebouw De Hoogschout opgeleverd. Het door Studio AAAN ontworpen complex bestaat uit veertig ruime appartementen.
Hogeschool InHolland realiseert nieuw hoofdgebouw op campus Alkmaar
18 maart, 3:38
Het gebouw, dat is ontworpen door BRTArchitecten, moet een plek worden waar studenten, docenten en andere betrokkenen samenkomen om te leren, onderzoeken en samenwerken. Spil in het ontwerp vormt een doorlopende verbindende ruimte.
Provincie schrapt beoogde locaties windturbines in Groene Hart
Gisteren, 13:35
De provincie had twaalf plekken op het oog, maar dat leidde tot maatschappelijk en politiek verzet.
Staten Utrecht willen netcongestie versneld aanpakken
Gisteren, 09:44
De fracties wezen op de noodzaak van het zo snel mogelijk realiseren van een hoogspanningsstation dat essentieel is voor het opsplitsen van het elektriciteitsnetwerk tussen de Flevopolder, Gelderland en Utrecht.
Rotterdam wil woningbouw versnellen met pilot ‘Ontwikkelaar aan Zet’
18 maart, 4:33
De gemeente Rotterdam start een pilot waarbij projectontwikkelaars een grotere rol krijgen bij de voorbereiding van woningbouwprojecten.
Veel meer financieringsaanvragen Warmtefonds om hogere gasprijzen
18 maart, 2:31
De gestegen gasprijzen zorgen ervoor dat veel meer huiseigenaren financiering aanvragen voor het energiezuiniger maken van hun woning.
Grondprijs voor landbouwgrond loopt op tot bijna een ton
18 maart, 9:36
Ook overheden en andere partijen zoeken naar grond voor onder meer woningbouw, natuur en infrastructuur.
ANWB: betrek bewoners beter bij parkeerplannen in de wijk
17 maart, 2:00
Bewoners vinden naast parkeerruimte groen en leefbaarheid in hun wijk ook belangrijk, stelt de organisatie.
Ga naar het nieuws-archief
Michiel van Raaij
Hoofdredacteur
1
0
0
0
Voor een optimale gebruikservaring plaatst Architectenweb functionele cookies. Wat de verschillende cookies precies doen leggen we uit in een
overzicht
. Cookies van social media kun je optioneel
aanzetten
.
Akkoord
Instellingen
Annuleren
OK
Sluiten
Doorgaan
Inloggen
Maak een gratis persoonlijk account aan
Feedback
Feedback
Wij horen graag jouw feedback. Laat je reactie achter en eventueel jouw e-mail adres.
Reactie
Verstuur