Projecten
Producten
Bedrijven
Vacatures
Agenda
Awards
Podcasts
more_horiz
Videos
Magazine
Favorieten
Profiel
Uitloggen
Abonneer je nu op onze nieuwsbrieven!
Abonneren
Nee, bedankt
Ja, denk met me mee rond de
materialisering van mijn project
Producten
Copyright: Roos Aldershoff
Copyright: Roos Aldershoff
Copyright: Roos Aldershoff
Copyright: Roos Aldershoff
Copyright: Roos Aldershoff
Copyright: Roos Aldershoff
Copyright: Roos Aldershoff
Copyright: Theo Kupers Architecten bv
Producttags
AAN
UIT
Paviljoen KC Leyenburgschool
23 juni 2025
1
0
0
0
Het vrijstaande, op maat ontworpen en over enige tijd te verplaatsen paviljoen huisvest twee lokalen voor kinderopvang ‘2Samen’. Zij verzorgt de kinderopvang voor de Leyenburg school in Den Haag. Er is op die locatie dringend en langdurig behoefte aan uitbreiding met twee groepsruimtes.
Door de realisatie als verplaatsbaar paviljoen kan er met de investering een hoogwaardigere architectonische en ruimtelijke kwaliteit behaald worden dan met tijdelijke huisvesting gangbaar is. Door het gebouw verplaatsbaar te ontwerpen, energieneutraal en grotendeels ‘Biobased’, proberen we een antwoord te geven op de dringende maatschappelijke vraag naar een meer duurzame, circulaire bouwpraktijk.
In het groen
Van buiten gezien ademt het paviljoen de sfeer van een clubhuis in een natuurlijke omgeving, met een entree die al op afstand herkenbaar is. Het gebouw is ontworpen vanuit circulaire, biobased principes. Casco, draagconstructie en gevelmaterialen zijn van hout. Het dak is een ‘groen dak’ en PV panelen dragen bij aan een energieneutraal gebouw.
De opbouw in prefab houten modules met een dragende CLT hout constructie maakt het eenvoudig mogelijk om ook het interieur een bepaalde kwaliteit te geven. Het hout is binnen overal zichtbaar gebleven. Dit zorgt voor een vriendelijke binnenwereld met aangenaam binnenklimaat.
Flexibel en transparant
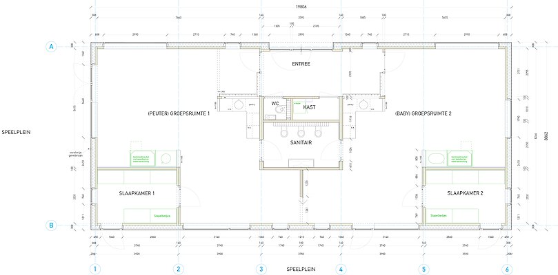
Het paviljoen heeft twee groepsruimtes, voor respectievelijk peuters en baby’s. Iedere groep heeft een slaapkamer met stapelbedjes. Centraal tussen de groepsruimtes is het sanitair geplaatst. De groepsruimtes zijn veelvormig, wat de indelingsmogelijkheden vergroot. Ze kunnen door een schuifdeur op ieder gewenst moment met elkaar verbonden worden. Dat maakt het gebouw op meerdere manieren bruikbaar.
Doorkijkjes in het interieur, naar de andere ruimtes maar ook naar buiten, zorgen ervoor dat begeleiders goed zicht hebben op alles wat er in en om het gebouw gebeurt.
Houten prefab
De modules zijn op een andere locatie, in een werkplaats geproduceerd. En vervolgens in één dag op locatie in elkaar gezet.
Download brochures
Paviljoen KC Leyenburg
Brochure
Stel jezelf kort voor! Dan weet het betreffende bedrijf wie hun brochure gedownload heeft.
Wil je niet bij elke download jouw gegevens in hoeven voeren?
Klik dan hier om in te loggen
. Heb je nog geen account?
Maak dan hier een gratis account aan
.
Voornaam
Achternaam
E-mailadres
Downloaden
Wanneer je brochures downloadt op Architectenweb.nl worden relevante gegevens van jou – zoals jouw naam en e-mailadres – met het betreffende bedrijf gedeeld. Meer hierover lees je in ons
privacybeleid
.
Wanneer je brochures downloadt op Architectenweb.nl worden relevante gegevens van jou – zoals jouw naam en e-mailadres – met het betreffende bedrijf gedeeld. Meer hierover lees je in ons
privacybeleid
.
Brochure
Stel jezelf kort voor! Dan weet het betreffende bedrijf wie hun model gedownload heeft.
Wil je niet bij elke download jouw gegevens in hoeven voeren?
Klik dan hier om in te loggen
.
Heb je nog geen account?
Maak dan hier een gratis account aan
.
Voornaam
Achternaam
E-mailadres
Downloaden
Wanneer je modellen downloadt op Architectenweb.nl worden relevante gegevens van jou – zoals jouw naam en e-mailadres – met het betreffende bedrijf gedeeld. Meer hierover lees je in ons
privacybeleid
.
Locatie
Trefwoorden
prefab
kleinschalig
kinderdagverblijf
clt
Theo Kupers Architecten bv
Download brochures (1)
Neem contact op
Projectdata
Staat van realisatie
Voltooid
Start ontwerpproces
2023
Start bouw
2024
Oplevering
2024
Ingebruikname
2024
Plaats
Den Haag
Meewerkende partijen
Architect
Theo Kupers Architecten bv
Interieurarchitect
Theo Kupers Architecten bv
Projectarchitect
Theo Kupers
Ontwerpteam
Theo Kupers met Iris van Velzen
Opdrachtgever
S.C.O.H.
Aannemer
Strandbaak bv
Constructeur
Van Rossum Rotterdam
Fotograaf
Roos Aldershoff Fotografie
Leveranciers
Vloerafwerking
Forbo Flooring
Werkvoorbereiding en bouw organisatie
JM Concepten
Binnenkozijnen hout
Blokland timmerfabriek
Neem contact op met
Theo Kupers Architecten bv
Je bent momenteel niet ingelogd. Hierdoor is het alleen mogelijk om meer informatie per e-mail op te vragen. Wil je liever gebeld worden of documentatie per post ontvangen?
Klik dan hier om in te loggen
.
Heb je nog geen account?
Maak dan hier een gratis account aan
.
Voornaam
Achternaam
E-mailadres
Opmerkingen
Bij iedere aanvraag worden relevante gegevens van jou gedeeld met het betreffende bedrijf. Meer hierover lees je in ons
privacybeleid
.
Ja, denk met me mee rond de
materialisering van mijn project
Meer projecten van Theo Kupers Architecten bv
De Hoekstee, woonzorggebouw met een gouden randje
Theo Kupers Architecten bv
Nieuwbouw Insp. W.P. Blokpoelschool
Theo Kupers Architecten bv
Huis Maas
Theo Kupers Architecten bv
Dorpsschoolhuis Pingjum
Theo Kupers Architecten bv
ZMLK Scholen
Theo Kupers Architecten bv
Korte Mouwen
Theo Kupers Architecten bv
De Wereld Op Zuid, brede school
Theo Kupers Architecten bv
de Olieberg in Scheveningen
Theo Kupers Architecten bv
5x2 Ypenburg
Theo Kupers Architecten bv
Cité des Arts
Theo Kupers Architecten bv
Vierkanthuis, Berg en Dal
Theo Kupers Architecten bv
De Hoekstee, woonzorggebouw met een gouden randje
Theo Kupers Architecten bv
Nieuwbouw Insp. W.P. Blokpoelschool
Theo Kupers Architecten bv
Huis Maas
Theo Kupers Architecten bv
Dorpsschoolhuis Pingjum
Theo Kupers Architecten bv
ZMLK Scholen
Theo Kupers Architecten bv
Korte Mouwen
Theo Kupers Architecten bv
De Wereld Op Zuid, brede school
Theo Kupers Architecten bv
de Olieberg in Scheveningen
Theo Kupers Architecten bv
5x2 Ypenburg
Theo Kupers Architecten bv
Cité des Arts
Theo Kupers Architecten bv
Vierkanthuis, Berg en Dal
Theo Kupers Architecten bv
Toon alles
Andere Projecten
Padoek Schuurwoning
Houthandel van Dam
Duurzaam kantoorpand - Obèche Noir gevelbekleding
Houthandel van Dam
IKC Droomhof
Houthandel van Dam
Villa - Broek in Waterland
Houthandel van Dam
Vliesgevel screens Netceed kantoorgebouw
Renson
DEZA Kozijnen - Heerhugowaard
DUCO Ventilation & Sun Control
Passiefwoning met geïntegreerde vouwhefluiken
Artino
Villa Oegstgeest
Station-D Architects
Project Safestore Amersfoort
Dupral B.V.
Stalen uitbouw aan de Amsterdamse grachtengordel
Perfect View Windows
0739 Bornerveld – zuidwijk Rotterdam
Zijdekwartier architecten bv
Kantoor Apollolaan 171 Amsterdam
Boon Edam Nederland B.V.
Ga naar het projecten-overzicht
Voor een optimale gebruikservaring plaatst Architectenweb functionele cookies. Wat de verschillende cookies precies doen leggen we uit in een
overzicht
. Cookies van social media kun je optioneel
aanzetten
.
Akkoord
Instellingen
Annuleren
OK
Sluiten
Doorgaan
Inloggen
Maak een gratis persoonlijk account aan
Feedback
Feedback
Wij horen graag jouw feedback. Laat je reactie achter en eventueel jouw e-mail adres.
Reactie
Verstuur