Projecten
Producten
Bedrijven
Vacatures
Agenda
Awards
Podcasts
more_horiz
Videos
Magazine
Favorieten
Profiel
Uitloggen
Abonneer je nu op onze nieuwsbrieven!
Abonneren
Nee, bedankt
Ja, denk met me mee rond de
materialisering van mijn project
Producten
Producttags
AAN
UIT
Dorpsschoolhuis Pingjum
14 september 2016
1
0
0
0
Door de verschraling van het voorzieningenniveau op het platteland spelen Dorpshuizen een steeds belangrijkere voorwaardenscheppende rol voor de leefbaarheid van kleine kernen. Deze ontwikkelingen hebben aanleiding gegeven om dorpshuizen en multifunctionele accommodaties als één van de speerpunten van het provinciale plattelandsbeleid te benoemen.
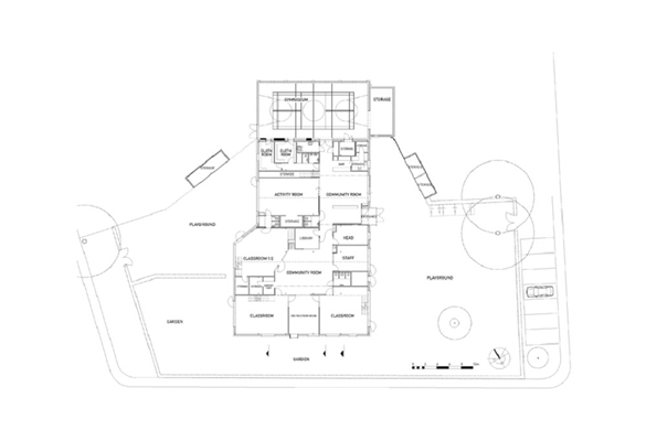
Dit ontwerp voegt dorpshuis en basisschool samen tot één laagdrempelige mini-MFA. Multifunctioneel gebruik van ruimten zorgt voor meerwaarde op het gebied van kinderwelzijn (VSO/NSO/beweging) en het verenigingsleven. Daarnaast creëert het nieuwe ontmoetingskansen voor de dorpsgemeenschap.
Het gebouw sluit in schaal en vorm aan op de kleinschalige woonomgeving met hellende daken. Gevelmaterialen refereren aan het nabije platteland met metalen golfplaten en houten latten. Het project is geheel energieneutraal door sterk doorgedreven isolatiepakketten, warmtepomp, zonnecellen en pv-panelen. Vloerkoeling en precies gesitueerde te openen dakramen, samen met het ventilatieconcept (frisse scholen klasse B) dragen bij aan een gezond gebouw.
Fotografie: Roos Aldershoff
Download brochures
Scholen Theo Kupers Architecten bv
Brochure
Stel jezelf kort voor! Dan weet het betreffende bedrijf wie hun brochure gedownload heeft.
Wil je niet bij elke download jouw gegevens in hoeven voeren?
Klik dan hier om in te loggen
. Heb je nog geen account?
Maak dan hier een gratis account aan
.
Voornaam
Achternaam
E-mailadres
Downloaden
Wanneer je brochures downloadt op Architectenweb.nl worden relevante gegevens van jou – zoals jouw naam en e-mailadres – met het betreffende bedrijf gedeeld. Meer hierover lees je in ons
privacybeleid
.
Wanneer je brochures downloadt op Architectenweb.nl worden relevante gegevens van jou – zoals jouw naam en e-mailadres – met het betreffende bedrijf gedeeld. Meer hierover lees je in ons
privacybeleid
.
Brochure
Stel jezelf kort voor! Dan weet het betreffende bedrijf wie hun model gedownload heeft.
Wil je niet bij elke download jouw gegevens in hoeven voeren?
Klik dan hier om in te loggen
.
Heb je nog geen account?
Maak dan hier een gratis account aan
.
Voornaam
Achternaam
E-mailadres
Downloaden
Wanneer je modellen downloadt op Architectenweb.nl worden relevante gegevens van jou – zoals jouw naam en e-mailadres – met het betreffende bedrijf gedeeld. Meer hierover lees je in ons
privacybeleid
.
Locatie
Theo Kupers Architecten bv
Download brochures (1)
Neem contact op
Projectdata
Staat van realisatie
Voltooid
Start bouw
2012
Plaats
Pingjum
Kosten
1200000
Bruto m
2
980
Neem contact op met
Theo Kupers Architecten bv
Je bent momenteel niet ingelogd. Hierdoor is het alleen mogelijk om meer informatie per e-mail op te vragen. Wil je liever gebeld worden of documentatie per post ontvangen?
Klik dan hier om in te loggen
.
Heb je nog geen account?
Maak dan hier een gratis account aan
.
Voornaam
Achternaam
E-mailadres
Opmerkingen
Bij iedere aanvraag worden relevante gegevens van jou gedeeld met het betreffende bedrijf. Meer hierover lees je in ons
privacybeleid
.
Ja, denk met me mee rond de
materialisering van mijn project
Meer projecten van Theo Kupers Architecten bv
Paviljoen KC Leyenburgschool
Theo Kupers Architecten bv
De Hoekstee, woonzorggebouw met een gouden randje
Theo Kupers Architecten bv
Nieuwbouw Insp. W.P. Blokpoelschool
Theo Kupers Architecten bv
Huis Maas
Theo Kupers Architecten bv
ZMLK Scholen
Theo Kupers Architecten bv
Korte Mouwen
Theo Kupers Architecten bv
De Wereld Op Zuid, brede school
Theo Kupers Architecten bv
de Olieberg in Scheveningen
Theo Kupers Architecten bv
5x2 Ypenburg
Theo Kupers Architecten bv
Cité des Arts
Theo Kupers Architecten bv
Vierkanthuis, Berg en Dal
Theo Kupers Architecten bv
Paviljoen KC Leyenburgschool
Theo Kupers Architecten bv
De Hoekstee, woonzorggebouw met een gouden randje
Theo Kupers Architecten bv
Nieuwbouw Insp. W.P. Blokpoelschool
Theo Kupers Architecten bv
Huis Maas
Theo Kupers Architecten bv
ZMLK Scholen
Theo Kupers Architecten bv
Korte Mouwen
Theo Kupers Architecten bv
De Wereld Op Zuid, brede school
Theo Kupers Architecten bv
de Olieberg in Scheveningen
Theo Kupers Architecten bv
5x2 Ypenburg
Theo Kupers Architecten bv
Cité des Arts
Theo Kupers Architecten bv
Vierkanthuis, Berg en Dal
Theo Kupers Architecten bv
Toon alles
Andere Projecten
Vliesgevel screens Netceed kantoorgebouw
Renson
DEZA Kozijnen - Heerhugowaard
DUCO Ventilation & Sun Control
Passiefwoning met geïntegreerde vouwhefluiken
Artino
Kantoor Apollolaan 171 Amsterdam
Boon Edam Nederland B.V.
Project Safestore Amersfoort
Dupral B.V.
Duurzaam maatwerk voor Hogeschool Rotterdam
Mapro
Skistation Monte Zoncolan
SSAB Swedish Steel BV
CPO Vondelstaete Amersfoort: Passief Wonen
Sto Isoned bv
Solar groendak bij afvalbrengpunt Oldenzaal
Sempergreen
Esthetische dakoplossingen in Nederland
Joris Ide
Nieuw interieur Holiday Inn
Kronospan
Circulaire primeur: eerste Second High-gevel
Pretty Plastic
Ga naar het projecten-overzicht
Voor een optimale gebruikservaring plaatst Architectenweb functionele cookies. Wat de verschillende cookies precies doen leggen we uit in een
overzicht
. Cookies van social media kun je optioneel
aanzetten
.
Akkoord
Instellingen
Annuleren
OK
Sluiten
Doorgaan
Inloggen
Maak een gratis persoonlijk account aan
Feedback
Feedback
Wij horen graag jouw feedback. Laat je reactie achter en eventueel jouw e-mail adres.
Reactie
Verstuur