Projecten
Producten
Bedrijven
Vacatures
Agenda
Awards
Podcasts
more_horiz
Videos
Magazine
Thema's
Favorieten
Profiel
Uitloggen
Abonneer je nu op onze nieuwsbrieven!
Abonneren
Nee, bedankt
Ja, denk met me mee rond de
materialisering van mijn project
Copyright: Studio Maks
Copyright: Studio Maks
Doorsnede
Copyright: Studio Maks
Doorsnede
Copyright: Studio Maks
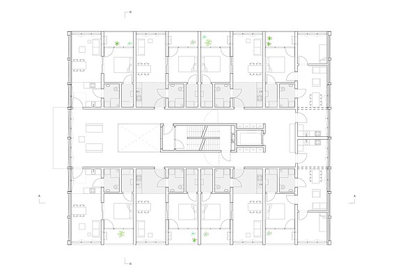
Begane grond
Copyright: Studio Maks
Eerste verdieping
Copyright: Studio Maks
Tweede en derde verdieping
Copyright: Studio Maks
Vierde verdieping
Copyright: Studio Maks
Vierde verdieping
Copyright: Studio Maks
Studio Maks ontwerpt woongebouw volgens buddy-concept voor Oostenburg
10 juli 2025, 13:21
Naar verwachting wordt volgend jaar gestart met de bouw van een door
Studio Maks
ontworpen woongebouw in de Amsterdamse wijk Oostenburg. Het gebouw biedt ruimte aan 42 sociale huurwoningen binnen een zogenoemd
buddy
-woonconcept, waarbij collectieve ruimten centraal staan. De gevel is bekleed met zacht reflecterende materialen, die volgens het architectenbureau subtiel van de omgeving weerspiegelen. De golvende daklijn verwijst naar een eigentijdse interpretatie van het historische pakhuis.
Alle gevelzijden zijn gelijkwaardig ontworpen, waardoor het gebouw geen ‘achterkant’ heeft. Aan het Buurtplein bevindt zich de hoofdentree, met erboven een groot collectief balkon. De langsgevels bieden zicht op de houtkleurige interieurs met loggia’s. Er is gekozen voor loggia’s in plaats van balkons, zodat er een compact bouwvolume met een open straatbeeld gerealiseerd kon worden. Daarnaast beschikken de bewoners zo over beschutte, geluidsluwe buitenruimten. De spoorzijde van het gebouw is vormgegeven als een dove gevel met een sculpturaal karakter.
Op de begane grond bevinden zich bedrijfsruimten, atelierwoningen en een fietsenstalling. Op de verdiepingen erboven liggen twee- en driekamerwoningen. Op de bovenste etage bevinden zich maisonnettes met dubbelhoge loggia’s. Flexibele zones tussen de woningen bieden plaats aan gemeenschappelijke woonkamers en maken het mogelijk de tweekamerappartementen uit te breiden. Een vide, die alle verdiepingen verbindt, vormt een ruimtelijke en lichte verbinding tussen de collectieve ruimten, wat een belangrijk onderdeel is van het woonconcept.
In de wijk Oostenburg in Amsterdam-Oost worden ongeveer 1.800 woningen gerealiseerd. In 2023 won Studio Maks een door woningcorporatie Stadgenoot uitgeschreven prijsvraag voor het ontwerp van de laatste bouwkavel (Kavel 10), die tevens fungeert als poortgebouw voor de wijk. Nu er een aannemer is gevonden, werkt het bouwteam het project in de komende maanden verder uit.
Trefwoorden
woongebouw
woningbouw
buddy
oostenburg
studio maks
amsterdam
Best gelezen
1
MVSA Architects en Powerhouse Company ontwerpen dubbele woontoren bij Den Haag Centraal
maandag, 30 maart
2
Schiphol maakt nieuwe 'huisarchitecten' bekend
donderdag, 26 maart
3
Amsterdam wil hiphopcentrum realiseren in stadsdeel Zuidoost
vrijdag, 27 maart
4
Jan Knikker vertrekt bij MVRDV
maandag, 30 maart
5
Menselijk contact, licht en lucht staan centraal bij appartementencomplex van SO-IL
donderdag, 26 maart
Gerelateerde nieuwsberichten
Woongebouw in hout en metaal markeert de kop van de Oostenburgervaart
25 april 2025
HOH Architecten presenteert hoekgebouw en binnentuin kavel 6 Oostenburg
13 september 2024
De Oosterlingen vormt sluitstuk Oostenburg
29 mei 2024
Woontoren voor jongeren op Oostenburg vormt roestbruin accent langs het spoor
26 april 2024
Ontsluiting via collectieve ruimtes op hoogte stimuleert beweging en ontmoeting in De Draaier
3 november 2023
Studio Drift krijgt eigen museum in Amsterdam
2 november 2023
Bouw houten woongebouw in gebiedsontwikkeling Oostenburg gestart
25 september 2023
Dubbel woongebouw Space Encounters op Oostenburg opgeleverd
5 juni 2023
Winkel met hotelproducten ontworpen als een hotel
23 maart 2023
Compact woonensemble met binnenhof op smalle kavel in Oostenburg
5 december 2022
Overeenkomst voor woongebouwen Houtrak op Oostenburg
15 februari 2022
Bouw blok met sociale huurwoningen Amsterdam Oostenburg van start
27 januari 2022
Nieuwe Gezichten: Studio Pallesh
20 januari 2022
Woongebouw in hout en metaal markeert de kop van de Oostenburgervaart
25 april 2025
HOH Architecten presenteert hoekgebouw en binnentuin kavel 6 Oostenburg
13 september 2024
De Oosterlingen vormt sluitstuk Oostenburg
29 mei 2024
Woontoren voor jongeren op Oostenburg vormt roestbruin accent langs het spoor
26 april 2024
Ontsluiting via collectieve ruimtes op hoogte stimuleert beweging en ontmoeting in De Draaier
3 november 2023
Studio Drift krijgt eigen museum in Amsterdam
2 november 2023
Bouw houten woongebouw in gebiedsontwikkeling Oostenburg gestart
25 september 2023
Dubbel woongebouw Space Encounters op Oostenburg opgeleverd
5 juni 2023
Winkel met hotelproducten ontworpen als een hotel
23 maart 2023
Compact woonensemble met binnenhof op smalle kavel in Oostenburg
5 december 2022
Overeenkomst voor woongebouwen Houtrak op Oostenburg
15 februari 2022
Bouw blok met sociale huurwoningen Amsterdam Oostenburg van start
27 januari 2022
Nieuwe Gezichten: Studio Pallesh
20 januari 2022
Toon alles
Gerelateerde podcasts
Toren van Babel
Gesprek met Evert Klinkenberg over bewegen en ontmoeten in hoogbouw
21 december 2023
Gesprek met Tess Broekmans over Oostenburg
8 december 2023
Andere nieuwsberichten
Voormalige verffabriek in Overschie omgevormd tot buurt met 125 woningen
Gisteren, 16:29
Op de plek van een voormalige verffabriek aan de Schansweg in Rotterdam worden 125 woningen gerealiseerd. Ook biedt het plan ruimte voor achthonderd tot duizend vierkante meter aan bedrijfsruimte.
Woningbouwproject Nieuw Zuid in Hilversum voltooid
Gisteren, 15:31
Op de plek van het voormalige zorgcomplex Zuiderheide zijn vijf appartementengebouwen voor verschillende doelgroepen gerealiseerd, naar ontwerp van verschillende architectenbureaus.
BURA publiceert resultaten ontwerpend onderzoek Marineterrein Amsterdam
Gisteren, 13:52
Onder de titel Postgroei Marineterrein deed BURA onderzoek naar de contouren van een proeftuin voor sociaal-economische innovatie.
'Materialenwerf' in M4H vormt festivalhart Rotterdam Architectuur Maand
31 maart, 2:05
Op 3 juni opent het flexibel opgezette bouwwerk in M4H, waar gebruikte bouwmaterialen worden verzameld, bewerkt en opnieuw ingezet. Gedurende de hele maand juni wordt er getest hoe een circulaire stad eruit kan zien, meldt AIR Rotterdam.
Amsterdam krijgt dertig meter hoge Self Storage Tower naar ontwerp dedato
Gisteren, 14:42
Minerva Development heeft de onherroepelijke bouwvergunning voor een dertig meter hoge ‘Self Storage Tower’ in het Amsterdamse Westpoortgebied.
Prijzen van nieuwbouwkavels verder gestegen
Gisteren, 12:30
De prijzen van nieuwbouwkavels zijn in het vierde kwartaal met gemiddeld 15,3 procent gestegen vergeleken met een jaar eerder.
Kamer: onderhoud en veiligheid voorop bij keuzes infrastructuur
Gisteren, 09:32
Onderhoud en veiligheid moeten volgens de Tweede Kamer vooropstaan bij pijnlijke keuzes die het kabinet gaat maken over infrastructuur.
Michael Braungart luistert vijftienjarig jubileum Cradle to Cradle Café op
31 maart, 11:27
Op dinsdag 14 april organiseert het Cradle to Cradle Café een speciaal jubileumfestival in Utrecht ter gelegenheid van zijn vijftienjarig bestaan.
PBL: politieke keuzes nodig voor aanpassing klimaatverandering
31 maart, 10:23
Een verstandige keuze is alvast om alles klimaatadaptief aan te pakken, aldus het Planbureau voor de Leefomgeving.
OM vervolgt oud-werknemers Strukton na Saudische omkopingskwestie
30 maart, 4:52
Eerder werd al bekend dat het bouwbedrijf voor tien miljoen euro heeft geschikt in de corruptiezaak.
Ga naar het nieuws-archief
Ronnie Weessies
Redacteur
2
0
0
0
Voor een optimale gebruikservaring plaatst Architectenweb functionele cookies. Wat de verschillende cookies precies doen leggen we uit in een
overzicht
. Cookies van social media kun je optioneel
aanzetten
.
Akkoord
Instellingen
Annuleren
OK
Sluiten
Doorgaan
Inloggen
Maak een gratis persoonlijk account aan
Feedback
Feedback
Wij horen graag jouw feedback. Laat je reactie achter en eventueel jouw e-mail adres.
Reactie
Verstuur