Projecten
Producten
Bedrijven
Vacatures
Agenda
Awards
Podcasts
more_horiz
Videos
Magazine
Favorieten
Profiel
Uitloggen
Abonneer je nu op onze nieuwsbrieven!
Abonneren
Nee, bedankt
Ja, denk met me mee rond de
materialisering van mijn project
Copyright: Stijn Bollaert
Copyright: Max Hart Nibbrig
Ontsluiting met collectieve ruimtes
Copyright: BETA
Woningtypologieën
Copyright: BETA
Copyright: Max Hart Nibbrig
Copyright: Stijn Bollaert
Copyright: Max Hart Nibbrig
Copyright: Max Hart Nibbrig
Copyright: Max Hart Nibbrig
Copyright: Max Hart Nibbrig
Copyright: Stijn Bollaert
Copyright: Stijn Bollaert
Copyright: Stijn Bollaert
Copyright: Stijn Bollaert
Copyright: Stijn Bollaert
Copyright: Max Hart Nibbrig
Copyright: Stijn Bollaert
Copyright: Max Hart Nibbrig
Copyright: Stijn Bollaert
Copyright: Stijn Bollaert
Copyright: Stijn Bollaert
Copyright: Stijn Bollaert
Copyright: Stijn Bollaert
Copyright: Stijn Bollaert
Copyright: Stijn Bollaert
Copyright: Stijn Bollaert
Copyright: Stijn Bollaert
Copyright: Stijn Bollaert
Situatie
Copyright: BETA
Gevelaanzicht zuid
Copyright: BETA
Gevelaanzicht west
Copyright: BETA
Dwarsdoorsnede
Copyright: BETA
Langsdoorsnede
Copyright: BETA
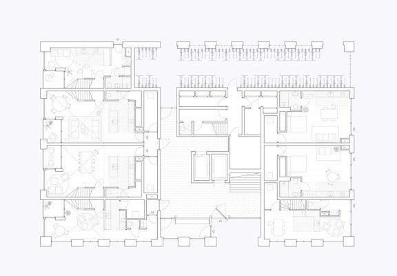
Begane grond
Copyright: BETA
Eerste verdieping
Copyright: BETA
Vierde verdieping
Copyright: BETA
Vijfde verdieping
Copyright: BETA
Negende verdieping
Copyright: BETA
Tiende verdieping
Copyright: BETA
Dakverdieping
Copyright: BETA
Ontsluiting via collectieve ruimtes op hoogte stimuleert beweging en ontmoeting in De Draaier
3 november 2023, 14:34
In de nieuwe Amsterdamse buurt Oostenburg is woontoren De Draaier opgeleverd. Het door
BETA
ontworpen gebouw bestaat uit 95 woningen in verschillende typologieën. Bijzonder is de ontsluiting van de woningen: via een lift worden bewoners naar een van de drie strategisch gepositioneerde collectieve ruimtes in het gebouw gebracht. Zij komen dan aan in een geprogrammeerde ‘lobby’, van waar een open trap ze verder voert naar hun verdieping erboven of beneden.
De lobby’s zijn zo gepositioneerd in het gebouw dat bewoners hooguit twee verdiepingen hoeven traplopen naar hun woning. Het doel van deze opzet is dat de bewoners elkaar kunnen ontmoeten; niet alleen toevallig in het voorbijgaan, maar ook in de daartoe geprogrammeerde lobby’s.
“Door de collectieve ruimtes te verbinden met een aantrekkelijk vormgegeven ontsluiting, wordt de woontoren als het ware opgedeeld in meerdere, kleinere gebouwen. Bewoners worden gestimuleerd om zowel door het gebouw te bewegen als elkaar te ontmoeten”, meldt BETA.
De laagstgelegen lobby is bedacht als een intieme leesruimte, terwijl de middelste lobby is ontworpen als een gemeenschappelijke keuken met wintertuin. De bovenste lobby biedt toegang tot het dakterras met een uitzicht op het stadscentrum. De lobby’s en trappenhuizen zorgen dankzij de royale glaspartijen tevens voor extra inval van daglicht, waardoor de gangen niet alleen verlicht hoeven te worden met kunstlicht.
https://vimeo.com/839017876
Werkspoorhal
De Draaier maakt deel uit van een gebouwenensemble rond de monumentale Werkspoorhal. Binnen een stedenbouwkundig plan van Urhahn is rond dit complex een aantal gebouwen opgetrokken naar ontwerp van BETA, OZ, Workshop Architecten en Space Encounters. De openbare ruimte rondom de gebouwen is ontworpen door LOLA Landscape Architects. Dit bureau verzorgt ook het ontwerp voor de herinrichting van de Werkspoorhal tot een overdekt plein voor de buurt. De hal is vrijgespeeld van programma, doordat de omringende gebouwen commerciële ruimtes (zoals horeca) huisvesten.
Het 41 meter hoge gebouw is de laagste van vier hoogteaccenten in Oostenburg. Vanwege de hoge dichtheid van de locatie zijn op de eerste negen verdiepingen loftwoningen en grotere appartementen met hun slaapkamer aan de kant van de (donkerder) steeg gerealiseerd. In het deel dat boven de aangrenzende bebouwing uitsteekt en waar het uitzicht en de inval van daglicht niet worden belemmerd, is een mix van grotere appartementen en studio’s gerealiseerd. De woningen zijn voorzien van balkons of loggia’s als buitenruimte.
De Draaier heeft een betonnen gevel met een lichtblauwe tint, die is geïnspireerd op de kleur van de grote blauwe kraan die voor het gebouw staat. Op subtiele wijze is er gespeeld met de plasticiteit van de gevel. In de plint is een afwijkende diepte toegepast en heeft het beton een grovere structuur met extra grote kiezels. Ter plekke van de hoofdentree is het beton veredeld tot een glanzend vlak om de toegang te accentueren. In het interieur is deze subtiele werkwijze, evenals het in het zicht toepassen van robuuste materialen consequent doorgevoerd.
De Lasser
Behalve De Draaier ontwierp BETA ook het naastgelegen kleinere gebouw De Lasser. In dit pand, dat tussen De Draaier en Werkspoorhal ligt ingeklemd zijn vier woningen van ieder een verdieping groot gerealiseerd. Op de begane grond bevindt zich een horecagelegenheid, dat zowel aan het water als in de nog op te leveren vernieuwde Werkspoorhal een terras kan openen.
Trefwoorden
woontoren
beta - office for architecture and the city
amsterdam
woningbouw
oostenburg
beta
Best gelezen
1
Woontoren Front door Monadnock wint tiende Architectuurprijs Nijmegen
donderdag, 9 april
2
Spoorwegverleden inspireert ontwerp woonblok Wisselspoor 10 in Utrecht
woensdag, 8 april
3
Rotterdam mag woningen gaan bouwen aan de Parkhaven
woensdag, 8 april
4
RED Company vraagt vergunning aan voor productie- en onderzoeksfaciliteit Lilly
dinsdag, 7 april
5
KOW wint met Marker Woods tender voor nieuwe wijk Eschmarkerveld
woensdag, 8 april
Gerelateerde nieuwsberichten
Woontoren voor jongeren op Oostenburg vormt roestbruin accent langs het spoor
26 april 2024
Studio Drift krijgt eigen museum in Amsterdam
2 november 2023
Bouw houten woongebouw in gebiedsontwikkeling Oostenburg gestart
25 september 2023
Van oud schoolgebouw naar buurtgebouw met breed sociaal programma
11 maart 2025
HOH Architecten presenteert hoekgebouw en binnentuin kavel 6 Oostenburg
13 september 2024
Dubbel woongebouw Space Encounters op Oostenburg opgeleverd
5 juni 2023
Winkel met hotelproducten ontworpen als een hotel
23 maart 2023
Studio Maks ontwerpt woongebouw volgens buddy-concept voor Oostenburg
10 juli 2025
Compact woonensemble met binnenhof op smalle kavel in Oostenburg
5 december 2022
Overeenkomst voor woongebouwen Houtrak op Oostenburg
15 februari 2022
Bouw blok met sociale huurwoningen Amsterdam Oostenburg van start
27 januari 2022
Bouw cpo-project Jenga House op Oostenburgereiland van start
15 oktober 2021
Woongebouw van Workshop Architecten op Oostenburg opgeleverd
16 september 2021
MVRDV ontwerpt blok met zeven gebouwen op Oostenburgereiland
15 juni 2021
Kantoorpand refereert aan industrieel verleden Oostenburgereiland
8 juni 2021
Bouw woontoren De Prins op Amsterdam Oostenburg gestart
18 mei 2021
Bureau Fraai presenteert opgeleverde Red Ruby op Oostenburgereiland
10 februari 2021
BETA en AM presenteren boek over meergeneratiewonen
13 juli 2023
Woongebouw in hout en metaal markeert de kop van de Oostenburgervaart
25 april 2025
Woontoren voor jongeren op Oostenburg vormt roestbruin accent langs het spoor
26 april 2024
Studio Drift krijgt eigen museum in Amsterdam
2 november 2023
Bouw houten woongebouw in gebiedsontwikkeling Oostenburg gestart
25 september 2023
Van oud schoolgebouw naar buurtgebouw met breed sociaal programma
11 maart 2025
HOH Architecten presenteert hoekgebouw en binnentuin kavel 6 Oostenburg
13 september 2024
Dubbel woongebouw Space Encounters op Oostenburg opgeleverd
5 juni 2023
Winkel met hotelproducten ontworpen als een hotel
23 maart 2023
Studio Maks ontwerpt woongebouw volgens buddy-concept voor Oostenburg
10 juli 2025
Compact woonensemble met binnenhof op smalle kavel in Oostenburg
5 december 2022
Overeenkomst voor woongebouwen Houtrak op Oostenburg
15 februari 2022
Bouw blok met sociale huurwoningen Amsterdam Oostenburg van start
27 januari 2022
Bouw cpo-project Jenga House op Oostenburgereiland van start
15 oktober 2021
Woongebouw van Workshop Architecten op Oostenburg opgeleverd
16 september 2021
MVRDV ontwerpt blok met zeven gebouwen op Oostenburgereiland
15 juni 2021
Kantoorpand refereert aan industrieel verleden Oostenburgereiland
8 juni 2021
Bouw woontoren De Prins op Amsterdam Oostenburg gestart
18 mei 2021
Bureau Fraai presenteert opgeleverde Red Ruby op Oostenburgereiland
10 februari 2021
BETA en AM presenteren boek over meergeneratiewonen
13 juli 2023
Woongebouw in hout en metaal markeert de kop van de Oostenburgervaart
25 april 2025
Toon alles
Gerelateerde podcasts
Toren van Babel
Gesprek met Evert Klinkenberg over bewegen en ontmoeten in hoogbouw
21 december 2023
Gesprek met Tess Broekmans over Oostenburg
8 december 2023
Andere nieuwsberichten
Restauratie Atlasbeeld op dak Koninklijk Paleis Amsterdam afgerond
Gisteren, 15:38
Het beeld op het fronton van het paleis was in juli van zijn plek gehaald voor een uitgebreide onderhoudsbeurt in Antwerpen.
Nieuw zitgebied Lounge 2 Schiphol geïnspireerd door overgangsfase in oeuvre Mondriaan
Gisteren, 14:16
Op luchthaven Schiphol is de derde en laatste fase van door Beyond Space ontworpen zitgebieden opgeleverd. Net als de eerste twee fases van het project is dit gedeelte geïnspireerd door het werk van Mondriaan, maar dan uit een eerdere periode.
SeARCH en Heutink Groep winnen tender voor woongebouw Sluisbuurt
Gisteren, 11:15
Gebouw Radius biedt plek aan zo’n honderd appartementen, een stadskamer, een binnentuin, daktuinen en andere gemeenschappelijke ruimtes. Het gebouw wordt gerealiseerd van natuurlijke materialen als hout, stampleem en leemsteen.
Woontoren Front door Monadnock wint tiende Architectuurprijs Nijmegen
9 april, 10:00
“Front is een optimistisch icoon, gemaakt met lef, dat ambachtelijkheid en vakmanschap uitstraalt”, stelt de jury in zijn rapport.
Grote en kleine gemeenten balen van bouwregels Zuid-Holland
Gisteren, 16:31
Grote en kleine gemeenten in Zuid-Holland hebben hun zorgen geuit over nieuwe regels van de provincie, die volgens hen de woningbouw belemmeren.
Twijfels in Zuid-Holland over halen van doelen landelijk gebied
Gisteren, 12:18
De meeste partijen in de Zuid-Hollandse politiek hebben twijfels over de plannen die in zestien deelgebieden zijn gemaakt voor de aanpak van het landelijk gebied.
Huurprijzen stijgen harder dan koopwoningprijzen
Gisteren, 09:31
Volgens Huurwoningen.nl en Pararius moesten nieuwe huurders in het eerste kwartaal gemiddeld 21,12 euro per vierkante meter per maand neerleggen.
ABN AMRO: investeringen defensie vergroten druk op bouwcapaciteit
9 april, 12:29
Kazernes, opslagplaatsen en oefenterreinen dingen om dezelfde aannemers, ingenieurs en installateurs die ook nodig zijn voor bijvoorbeeld woningbouw.
Europa kent 831 miljoen euro subsidie toe aan Utrechtse projecten
9 april, 9:27
Het gaat onder meer om projecten tegen oververhitting van gebouwen, slimmer gebruik van energie en het hergebruik van materialen en grondstoffen.
Rotterdam mag woningen gaan bouwen aan de Parkhaven
8 april, 3:38
De Raad van State maakte woensdag bekend dat alle bezwaren tegen het bestemmingsplan zijn verworpen.
Ga naar het nieuws-archief
Ronnie Weessies
Redacteur
0
0
0
0
Voor een optimale gebruikservaring plaatst Architectenweb functionele cookies. Wat de verschillende cookies precies doen leggen we uit in een
overzicht
. Cookies van social media kun je optioneel
aanzetten
.
Akkoord
Instellingen
Annuleren
OK
Sluiten
Doorgaan
Inloggen
Maak een gratis persoonlijk account aan
Feedback
Feedback
Wij horen graag jouw feedback. Laat je reactie achter en eventueel jouw e-mail adres.
Reactie
Verstuur