Projecten
Producten
Bedrijven
Vacatures
Agenda
Awards
Podcasts
more_horiz
Videos
Magazine
Thema's
Favorieten
Profiel
Uitloggen
Copyright: Studio de Nooyer
Copyright: Studio de Nooyer
Copyright: Studio de Nooyer
Copyright: Studio de Nooyer
Copyright: Studio de Nooyer
Copyright: Studio de Nooyer
Copyright: Studio de Nooyer
Copyright: Studio de Nooyer
Copyright: Studio de Nooyer
Copyright: Studio de Nooyer
Copyright: Studio de Nooyer
Copyright: Studio de Nooyer
Copyright: Studio de Nooyer
Copyright: Bureau Fraai
Copyright: Bureau Fraai
Copyright: Bureau Fraai
Kantoorpand refereert aan industrieel verleden Oostenburgereiland
8 juni 2021, 11:56
Op het Oostenburgereiland in Amsterdam is het door
Bureau Fraai
ontworpen kantoorpand The Modular opgeleverd. De gevel refereert aan de opbollende zeilen van de VOC-schepen die ooit op dezelfde plek werden gebouwd. Daarnaast weerspiegelt de gevel zowel in de uitstraling als het achterliggende productieproces aan het industriële verleden van het eiland.
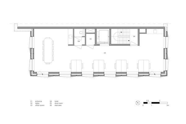
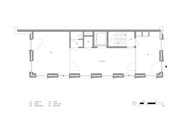
Het compacte kantoorpand is in opdracht van Stadgenoot Ontwikkeling gerealiseerd op een smal hoekperceel midden op het Oostenburgereiland, dat momenteel wordt getransformeerd naar een gemengde buurt. Het masterplan schrijft contrasterende panden voor met een sterke identiteit en een industrieel karakter dat voortborduurt op het industriële verleden van het eiland.
In de zeventiende eeuw lag op het Oostenburgereiland een scheepswerf van de VOC, later werden in de nog bestaande Van Gendthallen locomotieven en machines gebouwd. Het ontwerp van het vijf verdiepingen tellende kantoorgebouw is door Bureau Fraai aangevlogen als een industrieel product, samengesteld uit eenvoudig te assembleren geprefabriceerde onderdelen.
Repetitieve elementen
Resultaat is een gevel opgebouwd uit 25 identieke prefab betonnen gevelelementen, die in een zeer kort tijdsbestek op de bouwplaats geassembleerd konden worden. Met de gefacetteerde repetitieve elementen wordt verwezen naar de opbollende zeilen van de VOC-schepen die ooit vanaf het eiland het ruime sop kozen.
De facetten hebben bovendien een zonwerende functies en ze dragen ertoe bij dat het gebouw dat op geen enkel moment hetzelfde oogt. Dit, vanwege de continu veranderende reflecties, texturen en schaduwen die ze veroorzaken.
Het gebouw heeft een vrije vloerhoogte van bijna vier meter en is voorzien van raampartijen die bijna net zo hoog zijn. De gevels en open plattegronden zijn bewust zo ontworpen dat het gebouw in de toekomst ruimte biedt voor verschillende wijzen van gebruik, indelingen en/of gebruikers.
Red Ruby
Dankzij de toepassing van een grondwarmtepompsysteem en een groen dak voldoet het gebouw aan de hoogste duurzaamheidsnormen, meldt Bureau Fraai. Onlangs werd vlak naast The Modular het door hetzelfde bureau ontworpen woongebouw
Red Ruby
opgeleverd.
Trefwoorden
bureau fraai
oostenburg
kantoren
oostenburgereiland
kantoorgebouw
amsterdam
Locatie
Best gelezen
1
Het streven naar nieuw is ouderwets
donderdag, 20 november
2
SAWA officieel geopend door Koningin Máxima
donderdag, 20 november
3
Space&Matter ontwerpt ingetogen houten paviljoen voor BSO in Zeist
vrijdag, 21 november
4
Studioninedots deelt nieuwe beelden van project Spark op Smakkelaarsveld in Utrecht
maandag, 24 november
5
MoederscheimMoonen Architects ontwerpt eigen kantoor in historische vertrekhal Oranjelijn Rotterdam
woensdag, 19 november
Gerelateerde nieuwsberichten
Woongebouw van Workshop Architecten op Oostenburg opgeleverd
16 september 2021
Een dansende toren van hout
14 december 2023
Uitbreiding met afgeronde luifel voor Eindhovense jarenvijftigvilla
4 november
Compact woonensemble met binnenhof op smalle kavel in Oostenburg
5 december 2022
Bureau Fraai versmelt interieur psychologenpraktijk met monumentale kapel
26 maart 2024
Bouw houten woongebouw in gebiedsontwikkeling Oostenburg gestart
25 september 2023
Studio Drift krijgt eigen museum in Amsterdam
2 november 2023
Ontsluiting via collectieve ruimtes op hoogte stimuleert beweging en ontmoeting in De Draaier
3 november 2023
Woontoren voor jongeren op Oostenburg vormt roestbruin accent langs het spoor
26 april 2024
HOH Architecten presenteert hoekgebouw en binnentuin kavel 6 Oostenburg
13 september 2024
Woongebouw in hout en metaal markeert de kop van de Oostenburgervaart
25 april
Bureau Fraai presenteert opgeleverde Red Ruby op Oostenburgereiland
10 februari 2021
Privéshowroom en bijpassende dakopbouw voor Amsterdams stel
10 september 2020
Kantoormantels van woontorens getransformeerd naar woningen
30 november 2018
Bureau Fraai presenteert herenhuis in oud klooster
24 september 2018
Bouw woontoren De Prins op Amsterdam Oostenburg gestart
18 mei 2021
Van Gendthallen worden onderkomen voor bedrijven en kunstenaars
11 mei 2020
Robuuste parkeergarage met tactiele gevel voor Oostenburg Amsterdam
22 april 2020
Woongebouw in hout met intern hof
8 januari 2020
Winnaars ontwerpwedstrijd kavel 6 Oostenburg Amsterdam bekend
13 maart 2019
MVRDV ontwerpt blok met zeven gebouwen op Oostenburgereiland
15 juni 2021
Bouw cpo-project Jenga House op Oostenburgereiland van start
15 oktober 2021
Bouw blok met sociale huurwoningen Amsterdam Oostenburg van start
27 januari 2022
Overeenkomst voor woongebouwen Houtrak op Oostenburg
15 februari 2022
Clair-obscurtechniek als inspiratie nieuwe interieurs monumentaal pand
7 juni 2022
Bureau Fraai presenteert luxe penthouse zonder binnenwanden
10 januari 2023
Woongebouw van Workshop Architecten op Oostenburg opgeleverd
16 september 2021
Een dansende toren van hout
14 december 2023
Uitbreiding met afgeronde luifel voor Eindhovense jarenvijftigvilla
4 november
Compact woonensemble met binnenhof op smalle kavel in Oostenburg
5 december 2022
Bureau Fraai versmelt interieur psychologenpraktijk met monumentale kapel
26 maart 2024
Bouw houten woongebouw in gebiedsontwikkeling Oostenburg gestart
25 september 2023
Studio Drift krijgt eigen museum in Amsterdam
2 november 2023
Ontsluiting via collectieve ruimtes op hoogte stimuleert beweging en ontmoeting in De Draaier
3 november 2023
Woontoren voor jongeren op Oostenburg vormt roestbruin accent langs het spoor
26 april 2024
HOH Architecten presenteert hoekgebouw en binnentuin kavel 6 Oostenburg
13 september 2024
Woongebouw in hout en metaal markeert de kop van de Oostenburgervaart
25 april
Bureau Fraai presenteert opgeleverde Red Ruby op Oostenburgereiland
10 februari 2021
Privéshowroom en bijpassende dakopbouw voor Amsterdams stel
10 september 2020
Kantoormantels van woontorens getransformeerd naar woningen
30 november 2018
Bureau Fraai presenteert herenhuis in oud klooster
24 september 2018
Bouw woontoren De Prins op Amsterdam Oostenburg gestart
18 mei 2021
Van Gendthallen worden onderkomen voor bedrijven en kunstenaars
11 mei 2020
Robuuste parkeergarage met tactiele gevel voor Oostenburg Amsterdam
22 april 2020
Woongebouw in hout met intern hof
8 januari 2020
Winnaars ontwerpwedstrijd kavel 6 Oostenburg Amsterdam bekend
13 maart 2019
MVRDV ontwerpt blok met zeven gebouwen op Oostenburgereiland
15 juni 2021
Bouw cpo-project Jenga House op Oostenburgereiland van start
15 oktober 2021
Bouw blok met sociale huurwoningen Amsterdam Oostenburg van start
27 januari 2022
Overeenkomst voor woongebouwen Houtrak op Oostenburg
15 februari 2022
Clair-obscurtechniek als inspiratie nieuwe interieurs monumentaal pand
7 juni 2022
Bureau Fraai presenteert luxe penthouse zonder binnenwanden
10 januari 2023
Toon alles
Gerelateerde podcasts
Gesprek met Tess Broekmans over Oostenburg
8 december 2023
Andere nieuwsberichten
RxDOMI ontwikkelt modulaire, biobased mantelzorgwoning op basis van WikiHouse-systeem
Gisteren, 16:06
Met 3D-modules van 10 m2 kunnen kleinere en grote woonruimtes gerealiseerd worden. RxDOMI ontwikkelt en bouwt de modulaire mantelzorgwoning.
Open oproep: deel jullie ontwerp binnen de Merwedekanaalzone
Gisteren, 12:30
Half december willen we op Architectenweb.nl een overzichtsartikel van de verschillende ontwerpen publiceren en nemen jullie ontwerp daar dan graag in mee!
Stad Villingen-Schwenningen kiest VenhoevenCS en RKW Architektur voor nieuw Zentralbad
Gisteren, 12:00
VenhoevenCS heeft, in samenwerking met RKW Architektur +, de aanbesteding gewonnen voor het nieuwe Zentralbad in Villingen-Schwenningen, Duitsland.
Compacter schoolgebouw in Klein-Zundert maakt veel groener schoolplein mogelijk
Gisteren, 10:30
In Klein-Zundert, een dorp in Noord-Brabant, heeft een uitgestrekte, eenlaagse school plaats gemaakt voor een tweelaagse, duurzame school met houten aula als hart. Door de compactere opzet van de nieuwe school kon de omgeving ervan vergroend worden.
Kennisinstituut: reizen met auto, vliegtuig en e-bike in de lift
Gisteren, 12:56
Het wegverkeer, het aantal vliegtuigpassagiers, en het gebruik van de elektrische fiets zijn in 2024 gegroeid en naar verwachting zet die stijging door.
Amsterdam koppelt metrolijn 50 en 53 om capaciteit metronetwerk te verhogen
Gisteren, 10:00
Op het nieuwe netwerk kunnen de metro's vaker rijden: acht keer per uur overdag en tien keer per uur in de spits. Door de ontvlechting rijden er straks minder lijnen op hetzelfde spoor.
Gemeente Den Haag komt met meldpunt voor onveilige plekken
24 november, 12:11
De gemeente Den Haag heeft een meldpunt gecreëerd waar mensen melding kunnen maken van onveilige plekken. Experts bekijken de locaties vervolgens om vast te stellen welke maatregelen er nodig zijn om het gevoel van veiligheid te verbeteren.
Vervoersregio's Rotterdam, Den Haag en Amsterdam willen miljard extra voor OV
21 november, 11:29
Volgens burgemeester Jan van Zanen van Den Haag is 500 miljoen euro extra nodig "om niet achteruit te gaan door indexering en bezuinigingen". En nog eens 500 miljoen euro is nodig "om het OV mee te laten groeien met het aantal inwoners.
Mogelijke proef zelfrijdende pendelbussen tussen station Hoofddorp en Schiphol Trade Park
20 november, 2:15
De provincie Noord-Holland onderzoekt of het zelfrijdende pendelbussen zonder chauffeur kan laten rijden in de buurt van Schiphol. Als dit qua veiligheid en techniek haalbaar is, wil de provincie in 2027 een proef starten.
Fietsflat bij Amsterdam Centraal wordt na 25 jaar gesloopt
20 november, 1:45
Voor de door VMX Architects ontworpen fietsenstalling is geen nieuwe plek gevonden. Daarom wordt de 'fietsflat' nu gesloopt.
Ga naar het nieuws-archief
Ronnie Weessies
Redacteur
2
0
0
0
Voor een optimale gebruikservaring plaatst Architectenweb functionele cookies. Wat de verschillende cookies precies doen leggen we uit in een
overzicht
. Cookies van social media kun je optioneel
aanzetten
.
Akkoord
Instellingen
Annuleren
OK
Sluiten
Doorgaan
Inloggen
Maak een gratis persoonlijk account aan
Feedback
Feedback
Wij horen graag jouw feedback. Laat je reactie achter en eventueel jouw e-mail adres.
Reactie
Verstuur