Projecten
Producten
Bedrijven
Vacatures
Agenda
Awards
Podcasts
more_horiz
Videos
Magazine
Favorieten
Profiel
Uitloggen
Abonneer je nu op onze nieuwsbrieven!
Abonneren
Nee, bedankt
Ja, denk met me mee rond de
materialisering van mijn project
De Stoomkracht
Copyright: Anna Odulinska
De Stoomkracht
Copyright: Anna Odulinska
De Stoomkracht
Copyright: Anna Odulinska
Entreehal De Stoomkracht
Copyright: Anna Odulinska
Binnentuin kavel 6
Copyright: Anna Odulinska
Binnentuin kavel 6 met tuingevel De Stoomkracht
Copyright: Anna Odulinska
Binnentuin kavel 6
Copyright: Anna Odulinska
Binnentuin kavel 6
Copyright: Anna Odulinska
Overgang binnentuin naar De Stoomkracht
Copyright: Anna Odulinska
Buitenruimte De Stoomkracht
Copyright: Anna Odulinska
Zicht op binnentuin vanuit buitenruimte De Stoomkracht
Copyright: Anna Odulinska
Leefgalerij De Stoomkracht
Copyright: Anna Odulinska
Appartement De Stoomkracht
Copyright: Anna Odulinska
Appartement De Stoomkracht
Copyright: Anna Odulinska
Appartement De Stoomkracht
Copyright: Anna Odulinska
Appartement De Stoomkracht
Copyright: Anna Odulinska
Buitengevel De Stoomkracht
Copyright: Anna Odulinska
Maquette De Stoomkracht
Copyright: HOH Architecten
Plattegrond kavel 6 met binnentuin
Copyright: HOH Architecten
Beplantingsplan kavel 6
Copyright: HOH Architecten
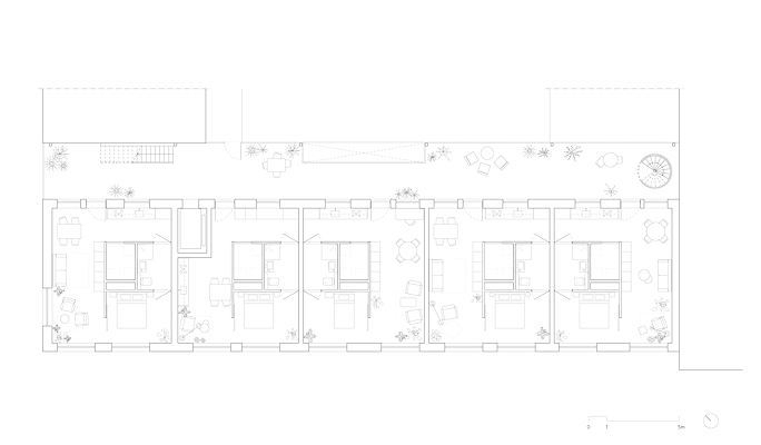
De Stoomkracht, begane grond
Copyright: HOH Architecten
De Stoomkracht, verdieping
Copyright: HOH Architecten
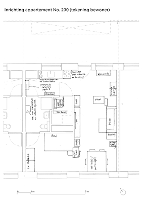
Bewoners van De Stoomkracht konden zelf een plattegrond tekenen voor de inrichting van hun woning
Copyright: HOH Architecten
Bewoners van De Stoomkracht konden zelf een plattegrond tekenen voor de inrichting van hun woning
Copyright: HOH Architecten
Bewoners van De Stoomkracht konden zelf een plattegrond tekenen voor de inrichting van hun woning
Copyright: HOH Architecten
HOH Architecten presenteert hoekgebouw en binnentuin kavel 6 Oostenburg
13 september 2024, 15:33
Op kavel 6 in de Amsterdamse nieuwbouwbuurt Oostenburg is dit jaar een blok naar ontwerp van NEXT architects, Urban Echoes en HOH Architecten opgeleverd. Het laatstgenoemde bureau is ook verantwoordelijk voor het stedenbouwkundig plan voor het ensemble en de binnentuin. Verder ontwierp het bureau het hoekgebouw met dertig appartementen voor senioren.
Kavel 6 is een stedenbouwkundig ensemble met sociale huurwoningen dat bestaat uit 170 studio's voor jongeren en 30 appartementen voor senioren. Het project maakt deel uit van de transformatie van het voorheen industriële Oostenburgereiland naar een buurt met ongeveer 1500 woningen. Het stedenbouwkundig plan en het masterplan voor de openbare ruimte voor het nieuwe Oostenburg is gemaakt door Urhahn. Eind vorig jaar sprak stedenbouwkundige Tess Broekmans over de buurt
in de Architectenweb Podcast
.
Binnen kavel 6 ontwierp NEXT architects
woontoren Stork
, terwijl Urban Echoes het ontwerp voor de woonblokken De Sluis en De Werkplaats voor zijn rekening nam. HOH Architecten verzorgde het ontwerp voor hoekgebouw De Stoomkracht, evenals het stedenbouwkundig plan en de binnentuin.
Het gebouwenensemble sluit aan op de stedenbouwkundige context van Oostenburgereiland en de kenmerkende pandenstructuur. Qua bebouwing is de woontoren het herkenningspunt vanaf het spoor aan de noordkant van het ensemble. Met het lange en smalle hoekgebouw aan de zuidkant sluit het ensemble aan op de robuuste schaal van het bekende INIT-gebouw.
Binnentuin
De gemeenschappelijke binnentuin biedt de bewoners van kavel 6 juist een rustige en intieme plek. De tuin bevindt zich op twee niveaus met elk een eigen karakter en beplantingsplan. Op het ene niveau ligt een schaduwrijke tuin met bomen in volle grond, terwijl op een logistieke corridor die over de kavel loopt een tuin is aangelegd waar veel zon kan komen.
De niveaus van de binnentuin worden met elkaar verbonden door een ruime trap die voorzien is van plantenbakken. De trap en de corridor zijn voorzien van een mat spiegelende beplating, waardoor de relatief kleine tuin optisch groter lijkt en het licht dat in de tuin valt zoveel mogelijk wordt weerkaatst, verklaart HOH Architecten. Ook het aangrenzende parkeerhuis is voorzien van begroeiing.
Het hoekgebouw is in feite een dubbelpand. Een bouwdeel van drie meter breed herbergt de entree, bevat de trappen en liften voor het woongebouw en voorziet de bewoners van de appartementen voor senioren van buitenruimte. De gevel aan de tuinzijde is afgewerkt met roestvrijstalen gaaswerk, die fungeert als doorvalbeveiliging die tevens begroeid raakt met klimplanten, zodat het aansluit op de begroeiing van de binnentuin.
Appartementen voor senioren
Het andere bouwdeel huisvest op de begane grond een open werkruimte en op de verdiepingen appartementen voor senioren. De gevel is opgetrokken uit metselwerk van zwarte moduulstenen. De grote vierkante raamopeningen verspringen ten opzichte van elkaar binnen het strakke vierkante grid van de stenen, waardoor een ‘zwaar’ gebouw toch speels wordt en de individuele woning meer opgaat in het collectieve geheel, aldus de architecten.
De compacte appartementen met een gebruiksoppervlak van 40m2 hebben een flexibele en (voor senioren die later mogelijk te maken krijgen met een beperkte mobiliteit) gebruiksvriendelijke indeling. Een kern met badkamer, toilet, berging en installaties vormt het centrale element van de woning. De ruimte eromheen kan flexibel worden ingedeeld. Bewoners hebben zelf meegedacht over de indeling van hun woning door onder meer zelf een plattegrond te tekenen.
Trefwoorden
woningbouw
next architects
oostenburg
urhahn
hoh architecten
oostenburgereiland
amsterdam
Locatie
Best gelezen
1
AM en Amvest zoeken architecten voor herontwikkeling Draka-terrein
dinsdag, 19 mei
2
Woningbouwproject KAAP langs het IJ in Amsterdam voltooid
dinsdag, 19 mei
3
Renovatie station Leeuwarden door Movares afgerond
woensdag, 20 mei
4
Dam & Partners ontwerpt multifunctioneel gebouw in Schinkelhaven
dinsdag, 19 mei
5
Utrechtse flats gerenoveerd volgens 'chassis-carrosseriemethode'
donderdag, 21 mei
Gerelateerde nieuwsberichten
De Oosterlingen vormt sluitstuk Oostenburg
29 mei 2024
Studio Maks ontwerpt woongebouw volgens buddy-concept voor Oostenburg
10 juli 2025
Hanami
13 februari 2025
Servicestation met opvallende houten constructie door NEXT architects
1 oktober 2024
Woontoren voor jongeren op Oostenburg vormt roestbruin accent langs het spoor
26 april 2024
Tien columns door Jarrik Ouburg over hergebruik in Japan en Nederland
14 november 2025
In beeld: Tabula Scripta Tokyo
1 november 2024
Ontsluiting via collectieve ruimtes op hoogte stimuleert beweging en ontmoeting in De Draaier
3 november 2023
De waarde van tijd
27 maart 2025
Studio Drift krijgt eigen museum in Amsterdam
2 november 2023
Bouw houten woongebouw in gebiedsontwikkeling Oostenburg gestart
25 september 2023
Houten uitkijktoren Einderheide vormt tevens verblijfplaats voor vleermuizen
7 oktober 2024
Dubbel woongebouw Space Encounters op Oostenburg opgeleverd
5 juni 2023
Winkel met hotelproducten ontworpen als een hotel
23 maart 2023
Compact woonensemble met binnenhof op smalle kavel in Oostenburg
5 december 2022
Overeenkomst voor woongebouwen Houtrak op Oostenburg
15 februari 2022
Bouw blok met sociale huurwoningen Amsterdam Oostenburg van start
27 januari 2022
Woningbouwproject Switi trekt 'verloren strook' alsnog bij de omgeving
11 mei
Nieuwe Gezichten: Studio Pallesh
20 januari 2022
Bouw cpo-project Jenga House op Oostenburgereiland van start
15 oktober 2021
Woongebouw van Workshop Architecten op Oostenburg opgeleverd
16 september 2021
MVRDV ontwerpt blok met zeven gebouwen op Oostenburgereiland
15 juni 2021
Kantoorpand refereert aan industrieel verleden Oostenburgereiland
8 juni 2021
Bouw woontoren De Prins op Amsterdam Oostenburg gestart
18 mei 2021
Bureau Fraai presenteert opgeleverde Red Ruby op Oostenburgereiland
10 februari 2021
Woongebouw in hout en metaal markeert de kop van de Oostenburgervaart
25 april 2025
Robuuste parkeergarage met tactiele gevel voor Oostenburg Amsterdam
22 april 2020
Winnaars ontwerpwedstrijd kavel 6 Oostenburg Amsterdam bekend
13 maart 2019
Woonproject Tree House rijst letterlijk op tussen de bomen
11 juni 2025
De Oosterlingen vormt sluitstuk Oostenburg
29 mei 2024
Studio Maks ontwerpt woongebouw volgens buddy-concept voor Oostenburg
10 juli 2025
Hanami
13 februari 2025
Servicestation met opvallende houten constructie door NEXT architects
1 oktober 2024
Woontoren voor jongeren op Oostenburg vormt roestbruin accent langs het spoor
26 april 2024
Tien columns door Jarrik Ouburg over hergebruik in Japan en Nederland
14 november 2025
In beeld: Tabula Scripta Tokyo
1 november 2024
Ontsluiting via collectieve ruimtes op hoogte stimuleert beweging en ontmoeting in De Draaier
3 november 2023
De waarde van tijd
27 maart 2025
Studio Drift krijgt eigen museum in Amsterdam
2 november 2023
Bouw houten woongebouw in gebiedsontwikkeling Oostenburg gestart
25 september 2023
Houten uitkijktoren Einderheide vormt tevens verblijfplaats voor vleermuizen
7 oktober 2024
Dubbel woongebouw Space Encounters op Oostenburg opgeleverd
5 juni 2023
Winkel met hotelproducten ontworpen als een hotel
23 maart 2023
Compact woonensemble met binnenhof op smalle kavel in Oostenburg
5 december 2022
Overeenkomst voor woongebouwen Houtrak op Oostenburg
15 februari 2022
Bouw blok met sociale huurwoningen Amsterdam Oostenburg van start
27 januari 2022
Woningbouwproject Switi trekt 'verloren strook' alsnog bij de omgeving
11 mei
Nieuwe Gezichten: Studio Pallesh
20 januari 2022
Bouw cpo-project Jenga House op Oostenburgereiland van start
15 oktober 2021
Woongebouw van Workshop Architecten op Oostenburg opgeleverd
16 september 2021
MVRDV ontwerpt blok met zeven gebouwen op Oostenburgereiland
15 juni 2021
Kantoorpand refereert aan industrieel verleden Oostenburgereiland
8 juni 2021
Bouw woontoren De Prins op Amsterdam Oostenburg gestart
18 mei 2021
Bureau Fraai presenteert opgeleverde Red Ruby op Oostenburgereiland
10 februari 2021
Woongebouw in hout en metaal markeert de kop van de Oostenburgervaart
25 april 2025
Robuuste parkeergarage met tactiele gevel voor Oostenburg Amsterdam
22 april 2020
Winnaars ontwerpwedstrijd kavel 6 Oostenburg Amsterdam bekend
13 maart 2019
Woonproject Tree House rijst letterlijk op tussen de bomen
11 juni 2025
Toon alles
Gerelateerde podcasts
Toren van Babel
Gesprek met Evert Klinkenberg over bewegen en ontmoeten in hoogbouw
21 december 2023
Gesprek met Tess Broekmans over Oostenburg
8 december 2023
Andere nieuwsberichten
SOME architects presenteert resultaten van onderzoek naar woonwensen 55-plussers
22 mei, 4:09
Publicatie ‘Woontitanen’ biedt inspiratie en handvatten om kloof tussen vraag en aanbod in woningaanbod voor 55-plussers te dichten.
In beeld: inschuiven dakdeel van 2,4 miljoen kilo over Vivaldipassage
22 mei, 2:43
Bij station Amsterdam Zuid vond afgelopen week een bijzondere inschuifoperatie plaats. Ten oosten van het station werd een nieuw dakdeel met een gewicht van 2,4 miljoen kilo over de toekomstige Vivalipassage geschoven.
Brug van hergebruikte materialen over Papaverkanaal in Buiksloterham
22 mei, 1:15
Knipscheer Infra en Rademacher / De Vries Architecten hebben de aanbesteding gewonnen voor een brug van hergebruikte materialen in de Amsterdamse wijk Buiksloterham.
OZ transformeert kantoorgebouw achter voormalig hoofdkantoor Shell tot Ypsilon Park
22 mei, 10:41
OZ transformeert een kantoorgebouw uit de jaren zeventig aan de Wassenaarseweg in Den Haag tot een woongebouw. Ypsilon Park bestaat uit 79 appartementen en penthouses, die in grootte variëren van 75 tot 280 vierkante meter.
Amsterdam wil woningbezitters weren uit sociale huurwoning
22 mei, 12:23
Het stadsbestuur wil daarmee duidelijk maken dat het onwenselijk is dat huizenbezitters sociale huurwoningen bezet houden.
Mogelijk minder ruimte nodig voor uitbreidingsplannen Moerdijk
22 mei, 9:47
Het dorp Moerdijk zou in dat geval kunnen blijven bestaan, aldus de gemeente.
Museum Rotterdam ontvangt sleutels van Citykerk Het Steiger
21 mei, 3:01
Citykerk Het Steiger, een wederopbouwmonument in de Rotterdamse binnenstad, ondergaat in de komende jaren een transformatie naar onderkomen voor Museum Rotterdam, alsook naar woon- en kantoorruimte.
Naturalis: Nederlandse natuur verbetert, maar niet snel genoeg
21 mei, 1:50
Het gaat beter met de natuur in Nederland, maar niet snel genoeg om aan afspraken te voldoen.
Bouw van flexwoningen valt tegen, ziet Rekenkamer
21 mei, 9:50
De 948 miljoen euro die sinds 2021 opzij is gezet om meer flexwoningen te bouwen, is pas deels uitgegeven.
Binnenhof al bij voorbaat te klein voor alle organisaties
20 mei, 2:47
Nog voordat de verbouwing van het Binnenhof klaar is, is het complex te klein voor alle organisaties die erin moeten.
Ga naar het nieuws-archief
Ronnie Weessies
Redacteur
2
0
0
0
Voor een optimale gebruikservaring plaatst Architectenweb functionele cookies. Wat de verschillende cookies precies doen leggen we uit in een
overzicht
. Cookies van social media kun je optioneel
aanzetten
.
Akkoord
Instellingen
Annuleren
OK
Sluiten
Doorgaan
Inloggen
Maak een gratis persoonlijk account aan
Feedback
Feedback
Wij horen graag jouw feedback. Laat je reactie achter en eventueel jouw e-mail adres.
Reactie
Verstuur