Projecten
Producten
Bedrijven
Vacatures
Agenda
Awards
Podcasts
more_horiz
Videos
Magazine
Thema's
Favorieten
Profiel
Uitloggen
Nieuw
Populair
Toon alles
Architectenweb magazine #14
Architectenweb magazine #13
Publieke gebouwen
Architectenweb magazine #12
Kantoren
Architectenweb magazine #11
Scholen
Architectenweb magazine #10
Zorg
Architectenweb magazine #14
Architectenweb magazine #10
Zorg
Architectenweb magazine #12
Kantoren
Architectenweb magazine #13
Publieke gebouwen
Architectenweb magazine #6
Transformatie en Renovatie
Om direct naar je favorieten te kunnen gaan is het nodig om eerst in te loggen.
Nieuw
Architectenweb Awards 2025
Architectenweb Awards 2024
Architectenweb Awards 2023
Architectenweb Awards 2022
Architectenweb Awards 2021
Architectenweb Awards 2020
Architectenweb Awards 2019
Architectenweb Awards 2018
Om direct naar je favorieten te kunnen gaan is het nodig om eerst in te loggen.
Nieuw
Populair
Favorieten
Toon alles
Vakwerk Architecten
Nominatie voor de prijs voor Architect van het Jaar 2025
Sanne van Manen
Nominatie voor de prijs voor Architect van het Jaar 2025
KSA
Nominatie voor de prijs voor Architect van het Jaar 2025
KRFT
Nominatie voor de prijs voor Architect van het Jaar 2025
Joost Ector
Nominatie voor de prijs voor Architect van het Jaar 2025
Prijsuitreiking Architectenweb Awards 2024
Impressie van een feestelijke avond
Martens, Willems & Humblé Architecten
Nominatie voor de prijs voor Architect van het Jaar 2024
Uitreiking van Architectenweb Awards 2020
Impressie van de prijsuitreiking via Zoom
De Zwarte Hond
Nominatie voor de prijs voor Architect van het Jaar 2024
Avond met De Zwarte Hond
Symposium
Om direct naar je favorieten te kunnen gaan is het nodig om eerst in te loggen.
Nieuw
Populair
Categorieën
Favorieten
Toon alles
Brandpreventie Academy BV
Cay Circulaire Keukens
Circulaire keukens en pantry's
Studio Kirsten Reith
Interieurontwerp
Studio175
Interieuradvies in regio Utrecht
Orange Automatic Doors
Indoorwrap
De specialist in Keukenwrappen
Cay Circulaire Keukens
Circulaire keukens en pantry's
Studio Kirsten Reith
Interieurontwerp
Studio175
Interieuradvies in regio Utrecht
Interior & Co
Orange Automatic Doors
Karakter Erfgoed
Architecten
Architectuur
Mobiliteit en infrastructuur
Stedenbouw en landschapsarchitectuur
Leveranciers
Gevels
Daken
Ramen en deuren
Trappen, liften en balustrades
Binnenwanden
Vloeren
Plafonds
Verlichting
Sanitair
Projectinrichting
Installaties
Constructies
Buitenruimte
Software
Adviseurs
Bestekschrijvers
Bouwmanagement
Installatie adviseurs E
Bouwfysica
Calculators
Installatie adviseurs G/W
Bouwkundig tekenwerk
Constructeurs
Lichtadviseurs
Adviseur beveiliging
Juristen
Intermediairs, Payrolling
Aannemers
Overig
Presentatie
Instellingen / onderwijs
Overig
Om direct naar je favorieten te kunnen gaan is het nodig om eerst in te loggen.
Nieuw
Populair
Favorieten
Toon alles
Gesprek met Stephan Sliepenbeek over hoogbouw in Amstel III
Gesprek met Ellen van Bueren over gebiedsontwikkeling en hoogbouw
Gesprek met Ma Yansong over ontwerpen die emotie oproepen
Gesprek met Paul de Ruiter over innovatieve en duurzame hoogbouw
Gesprek met Pi de Bruijn over zijn ontwerpen voor de Tweede Kamer toen en nu
Gesprek met Ellen van Bueren over gebiedsontwikkeling en hoogbouw
Gesprek met Oresti Sarafopoulos over het ontwerpen van een kantoorgebouw met bijna geen installaties
Gesprek met Stijn Steenbakkers over verdichting en hoogbouw in Eindhoven
Gesprek met Pi de Bruijn over zijn ontwerpen voor de Tweede Kamer toen en nu
Gesprek met Paul de Ruiter over innovatieve en duurzame hoogbouw
Om direct naar je favorieten te kunnen gaan is het nodig om eerst in te loggen.
Nieuw
Populair
Categorieën
Favorieten
Toon alles
Alphen aan de Rijn - Park 100
Berkel Noordersingel
Berkel-Rodenrijs - Gouden Buurten
Unieke transformatie spreekkamers gemeente
Magura Bosch Onderdelen & Services
Prinsenpark, Rotterdam
ASML Gebouw 3
IVY, Amsterdam
IKC De Brug
Houthavens, Amsterdam
Architectuur
Woningbouw
Zorg
Hotels
Restaurants en café’s
Winkels
Sportgebouwen
Culturele gebouwen
Overheidsgebouwen
Scholen
Kantoren
Bedrijfsgebouwen
Paviljoens en kunst
Overig
Mobiliteit en infrastructuur
Trein- en metrostations
Luchthavens
Busstations
Parkeergarages
Fietsparkeren
Wegen
Bruggen
Water
Energie
Tankstations en laadstations
Waterzuivering en afvalverwerking
Overig
Stedenbouw en landschapsarchitectuur
Regionale visies
Gebiedsvisies
Plannen stedelijk weefsel
Amusementsparken en dierentuinen
Lichtontwerpen
Openbare ruimte
Pleinen
Parken
Tuinen
Speelplaatsen
Uitkijktorens
Overige (bijv. begraafplaatsen)
Om direct naar je favorieten te kunnen gaan is het nodig om eerst in te loggen.
Nieuw
Populair
Categorieën
Favorieten
Toon alles
Schindler 3000
Stijlvol, comfortabel, essentieel
ACO Qmax
Lijngoot en verzamelleiding
DINrail Zigbee dimmer
Centrale dimoplossing voor slimme verlichting
Vario Therm
Gebogen lichtstraat voor optimale daglichttoetreding en energie-efficiëntie
HomeComfort
Create your ambiance in a touch
Element+ H-I
Hout - Aluminium Elementgevel
Digital Prints
Meer mogelijkheden in gekleurd staal
Schüco Zonweringsysteem Integralmaster in FWS
Bescherming tegen zon, verblinding en privacy – verborgen en volledig geïntegreerd
Vierkante vluchtroutearmaturen voor grote ruimtes
Zichtbare veiligheid van alle kanten
GROHE Cubeo: kranen voor elke badkamer
Stijlvol en duurzaam design voor jarenlang plezier
Gevels
Gevelbekleding
Vliesgevels
Zonwering buiten
Isolatie
Gevelconstructies
Signing
Overig
Daken
Dakafwerkingen
Dakisolatie
Dakconstructies
Dakranden, dakgoten en HWA's
Dakramen
Lichtkoepels
Lichtstraten
Schoorstenen
Overig
Dakluiken
Ramen en deuren
Raam- en deursystemen / kozijnen
Vliesgevels
Hang- en sluitwerk
Beveiliging en luiken
Dorpels en vensterbanken
Lateien
Roosters
Glas
Dakramen
Dakkoepels
Lichtstraten
Zonwering buiten
Zonwering binnen
Buitendeuren
Binnendeuren
Postvakken en brievenbussen
Overig
Dakluiken
Trappen, liften en balustrades
Trappen
Roltrappen
Liften
Balustrades en hekwerken
Galerijen
Binnenwanden
Binnenwanden
Wandafwerking
Vloeren
Constructieve vloeren
Verhoogde vloeren
Vloerafwerkingen
Overig
Plafonds
Tegels
Lineair
Grill
Open en roosters
Naadloos
Eilanden en baffles
Plafondafwerkingen
Ophangsystemen
Overig
Klimaatplafonds
Verlichting
Binnenverlichting
Buitenverlichting
Sanitair
Kranen en douchesets
Wastafels
Douchewanden en douchebakken
Baden
Waterclosets
Accessoires
Overig
Projectinrichting
Stoelen
Banken
Tafels
Kasten
Balies
Vrijstaande wanden
Keukens
Accessoires
Overig
Cabines
Interieurbeplanting
Stoffering
Installaties
Verwarming, koeling en ventilatie
Elektrotechnische installaties
Schakelmateriaal
Domotica
Deurcommunicatie
Beveiliging
Liften
Onderhoudsinstallaties
Overig
Brandbeveiliging
Constructies
Draagconstructies
Funderingen en kelders
Overig
Brandbeveiliging
Buitenruimte
Bestratingen en verhardingen
Afwateringen
Terreinafscheidingen en geluidsschermen
Buitenmeubilair
Fietsparkeren
Terrassen
Terrasoverkappingen
Bruggen
Accessoires
Overig
Beplanting
Sport- en speeltoestellen
Software
Tekenen 2D
Modelleren 3D / BIM
Visualisatie / rendering
Parametrisch ontwerpen
Bouwfysica
Draagconstructie
Overig
Virtual Reality
Cloudoplossingen
Om direct naar je favorieten te kunnen gaan is het nodig om eerst in te loggen.
Nieuw
Populair
Favorieten
Toon alles
LIAG over duurzaamheid centraal in project
Online
Zomerwandelingen Nieuwe Stad op Zondag 2025
Amsterdam
Prefab beurs - 7 t/m 9 oktober 2025
Brabanthallen 's-Hertogenbosch
Boekpresentatie en panelgesprek met Floor Milikows
Prins Hendrikkade 600, 1011 VX Amsterdam
Architects Table ’25: Lunch & Inspiratie in HAUT Amsterdam
ATAG LIVE – HAUT gebouw, Spaklerweg 10F, 1096 BA Amsterdam (tegenover metrostation Spaklerweg)
Architects Table ’25: Lunch & Inspiratie in HAUT Amsterdam
ATAG LIVE – HAUT gebouw, Spaklerweg 10F, 1096 BA Amsterdam (tegenover metrostation Spaklerweg)
Ontdek het seminarieprogramma van Architect@Work Amsterdam
De Kromhouthal, Gedempt Hamerkanaal 231, Amsterdam
LIAG over duurzaamheid centraal in project
Online
Carbon Stories: Architects taking sustainable initiatives
Keilepand Rotterdam
1.Lectures HouseEurope! Renovate, don’t speculate
Pakhuis de Zwijger
Om direct naar je favorieten te kunnen gaan is het nodig om eerst in te loggen.
Nieuw
Toon alles
Design
Duurzaamheid
Gevel
Infrastructuur
Interieur
Kantoren
Leisure
Openbare ruimte
Publieke gebouwen
Scholen
Transformatie en Renovatie
Woningbouw
Zorg
Om direct naar je favorieten te kunnen gaan is het nodig om eerst in te loggen.
Nieuw
Populair
Toon alles
(assistent) Architect by Bassie Architectuur in Gouda.
Stedenbouwkundige Van Tuijn Stedenbouw (32 - 40 uur)
Stagiair bouwkunde Leusden
Junior Bim Modelleur
Architect
Studio Nauta zoekt projectleider
Assistent Ontwerper & vakidioot
Junior Architect gezocht!
wUrck zoekt junior Architect
Project Architect
Urban Climate Architects zoekt een architect(e) voor ons kantoor in Delft.
Shift zoekt medior/senior architect
Om direct naar je favorieten te kunnen gaan is het nodig om eerst in te loggen.
Copyright: Jeroen Musch
Copyright: Jeroen Musch
Copyright: Jeroen Musch
Copyright: Jeroen Musch
Copyright: Jeroen Musch
Copyright: Jeroen Musch
Copyright: Jeroen Musch
Copyright: Jeroen Musch
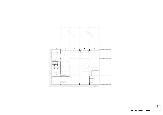
Situatie begane grond
Copyright: NEXT architects
Situatie dak
Copyright: NEXT architects
Noordgevel
Copyright: NEXT architects
Oostgevel
Copyright: NEXT architects
Westgevel
Copyright: NEXT architects
Begane grond
Copyright: NEXT architects
Entresol
Copyright: NEXT architects
Dak
Copyright: NEXT architects
Servicestation met opvallende houten constructie door NEXT architects
1 oktober 2024, 10:54
In Purmerend is het door
NEXT architects
ontworpen Servicestation Verzetslaan opgeleverd. Het gebouw biedt ruimte aan onder meer een tankstation en een autowerkplaats. Kenmerkend aan het bouwwerk zijn de prominente houten hoofddraagconstructie en luifel.
Servicestation Verzetslaan vervangt een bestaande werkplaats en tankstation, die zich voorheen op twee verschillende locaties bevonden. Behalve de genoemde functies is er een autowasstraat in het gebouw aanwezig. Aan de zuidzijde is het gebouw voorzien van een groene gevel, op het dak liggen zonnepanelen en in de toekomst kunnen snellaadpalen worden geplaatst.
Een serie houten gelamineerde liggers die kruislings op elkaar gestapeld zijn bepalen de vorm van het gebouw. De bovenste serie liggers in noord-zuid richting vormen het hogere deel van de werkplaats, zodat op voldoende hoogte gewerkt kan worden. Deze liggers kragen vervolgens uit om zo de benodigde vrije onderdoorgang voor het tankstation te creëren.
De onderste serie liggers in oost-west richting koppelen de drie verschillende programmaonderdelen aan elkaar in één volume: lobby, werkplaats en wasboxen. Door op verschillende plekken in de gevel een aantal openingen te maken wordt gezorgd voor goede permanente daglichtinval. Zo ontstaat een compacte bouwvorm die qua ligging past binnen het stedenbouwkundige patroon in de omgeving, terwijl het de belangrijke oost-west doorzichten respecteert, aldus NEXT architects.
Trefwoorden
purmerend
tankstation
next architects
hout
Locatie
Best gelezen
1
Na renovatie en verduurzaming heeft Aquarium van Artis zijn helderheid terug
donderdag, 25 september
2
Bouw Daniel den Hoedbrug tussen Erasmus MC en Little C van start
woensdag, 24 september
3
Architectenweb symposium: klein maar fijn wonen?
donderdag, 25 september
4
KAAN Architecten wint aanbesteding voor gebouw Europees parlement
maandag, 29 september
5
Startsein gegeven voor bouw De Scharnier op Katendrecht
maandag, 29 september
Gerelateerde nieuwsberichten
Bouwstart Roof Garden bij station Amsterdam Sloterdijk nabij
18 september 2024
HOH Architecten presenteert hoekgebouw en binnentuin kavel 6 Oostenburg
13 september 2024
NEXT architects ontwerpt Kindcentrum Middenwaard in Amstelveen
7 januari
Paris Proof zónder biogene opslag? Dat vraagt om radicale keuzes, constateert NEXT architects in onderzoek
5 juli 2024
NEXT architects ontwerpt cultuurhuis voor Banne-Noord in Amsterdam
3 juli 2024
Houten uitkijktoren Einderheide vormt tevens verblijfplaats voor vleermuizen
7 oktober 2024
TconcepT ontwerpt modulaire hub voor Tango
29 april
CO2-gestuurd ontwerpen is efficiënt ontwerpen. Levert dat ruimtelijk nog wat op? Jazeker!
15 juli
Bouw Huis voor de Amateurkunst Vrijdag in Groningen kan starten
1 juli 2024
Woontoren voor jongeren op Oostenburg vormt roestbruin accent langs het spoor
26 april 2024
CO2-gestuurd ontwerpen moeilijk? Iedereen kan meteen beginnen!
16 juni
CO2-gestuurd ontwerpen is oog hebben voor kosten. Betaalbaar is duurzamer!
28 augustus
NEXT architects ontwerpt onderwijs- en sportcomplex in nieuwe wijk Voorhout
4 september
NEXT biedt ander perspectief met paviljoen
25 maart 2024
Grondige transformatie voor stationsgebied Purmerend
23 juni 2021
CO2-gestuurd ontwerpen is focus op constructie én installaties!
18 september
Nieuw woongebouw bij Melkwegbrug Purmerend
30 mei 2017
Vernieuwd Tramplein voor Purmerend
6 september 2016
Purmerend wijdt markante Melkwegbrug in
8 oktober 2012
Jaarboek Architectuur in Nederland 2024/2025 gepresenteerd
22 mei
Bouwstart Roof Garden bij station Amsterdam Sloterdijk nabij
18 september 2024
HOH Architecten presenteert hoekgebouw en binnentuin kavel 6 Oostenburg
13 september 2024
NEXT architects ontwerpt Kindcentrum Middenwaard in Amstelveen
7 januari
Paris Proof zónder biogene opslag? Dat vraagt om radicale keuzes, constateert NEXT architects in onderzoek
5 juli 2024
NEXT architects ontwerpt cultuurhuis voor Banne-Noord in Amsterdam
3 juli 2024
Houten uitkijktoren Einderheide vormt tevens verblijfplaats voor vleermuizen
7 oktober 2024
TconcepT ontwerpt modulaire hub voor Tango
29 april
CO2-gestuurd ontwerpen is efficiënt ontwerpen. Levert dat ruimtelijk nog wat op? Jazeker!
15 juli
Bouw Huis voor de Amateurkunst Vrijdag in Groningen kan starten
1 juli 2024
Woontoren voor jongeren op Oostenburg vormt roestbruin accent langs het spoor
26 april 2024
CO2-gestuurd ontwerpen moeilijk? Iedereen kan meteen beginnen!
16 juni
CO2-gestuurd ontwerpen is oog hebben voor kosten. Betaalbaar is duurzamer!
28 augustus
NEXT architects ontwerpt onderwijs- en sportcomplex in nieuwe wijk Voorhout
4 september
NEXT biedt ander perspectief met paviljoen
25 maart 2024
Grondige transformatie voor stationsgebied Purmerend
23 juni 2021
CO2-gestuurd ontwerpen is focus op constructie én installaties!
18 september
Nieuw woongebouw bij Melkwegbrug Purmerend
30 mei 2017
Vernieuwd Tramplein voor Purmerend
6 september 2016
Purmerend wijdt markante Melkwegbrug in
8 oktober 2012
Jaarboek Architectuur in Nederland 2024/2025 gepresenteerd
22 mei
Toon alles
Andere nieuwsberichten
Leiden wil verhoogd busstation naast treinperrons centraal station
Gisteren, 13:55
De gemeente heeft voor die variant gekozen na overleg met verschillende belanghebbenden. Vanaf 2030 ondergaat Leiden Centraal een grote verbouwing waarbij het station een ander aanzicht krijgt.
Halfopen buitenruimte vormt hart van prefab gebouwde studentenhuisvesting Delft
Gisteren, 11:19
Op de campus van de TU Delft is een gebouw met 137 zelfstandige studentenwoningen opgeleverd. Het door Studioninedots ontworpen Suite 9 is dankzij prefab bouw in slechts 26 weken tijd gebouwd.
‘Gat van Middelland’ ingevuld met woongebouw dat qua energie en materialisering Paris Proof is
Gisteren, 10:15
Aan de Claes de Vrieselaan in Rotterdam, op de plek waar begin 2024 nog een blindganger uit de Tweede Wereldoorlog verwijderd moest worden, komt een woongebouw met elf appartementen dat zowel qua energie als materialisering Paris Proof wordt.
Natrufied Architecture deelt lessen houten woongebouwen IJburg in gratis publicatie
29 september, 4:55
In opdracht van de gemeente Amsterdam stelde het bureau Natrufied Architecture een inspiratieboek over biobased bouwen samen. Daarin illustreren vijf bijzondere woningbouwprojecten de mogelijkheden.
Veelzijdig ontwerper Mathieu Bruls verzorgt 21e Peutz-lezing
Gisteren, 15:05
Bruls (1960) is een veelzijdig ontwerper, die naast gebouwen en stedenbouwkundige plannen onder meer interieurs, meubels en tentoonstellingen ontwerpt.
Rekenkamer betwijfelt of miljoenen voor Woningbouwimpuls nuttig waren
Gisteren, 12:03
Het is ‘twijfelachtig’ of honderden miljoenen euro's overheidsgeld hebben geleid tot meer woningen, schrijft de Rekenkamer.
Rapport: rijke Amsterdammers leven steeds vaker apart van rest
Gisteren, 09:44
Het wel of niet bezitten van een woning zorgt voor een steeds grotere welvaartskloof tussen Amsterdammers.
Meer nieuwbouw van woningcorporaties in eerste jaarhelft
29 september, 1:54
Volgens het Centraal Bureau voor de Statistiek kwamen er ruim 9100 nieuwbouwwoningen van corporaties bij.
Kabinet zet Groningenwet door na kritisch advies Raad van State
29 september, 11:01
In de wet wordt vastgelegd dat schades tot 60.000 euro worden vergoed, ook zonder dat een oorzakelijk verband met de gaswinning is aangetoond.
Vliet wordt nieuwe drinkwaterbron voor Zuid-Holland
26 september, 12:12
Waterbedrijf Dunea schat dat de aanleg van de benodigde infrastructuur zo'n 500 miljoen euro kost.
Ga naar het nieuws-archief
Ronnie Weessies
Redacteur
0
0
0
0
Voor een optimale gebruikservaring plaatst Architectenweb functionele cookies. Wat de verschillende cookies precies doen leggen we uit in een
overzicht
. Cookies van social media kun je optioneel
aanzetten
.
Akkoord
Instellingen
Annuleren
OK
Sluiten
Doorgaan
Inloggen
Maak een gratis persoonlijk account aan
Feedback
Feedback
Wij horen graag jouw feedback. Laat je reactie achter en eventueel jouw e-mail adres.
Reactie
Verstuur