Projecten
Producten
Bedrijven
Vacatures
Agenda
Awards
Podcasts
more_horiz
Videos
Magazine
Favorieten
Profiel
Uitloggen
Abonneer je nu op onze nieuwsbrieven!
Abonneren
Nee, bedankt
Ja, denk met me mee rond de
materialisering van mijn project
Copyright: Zes X Zes
Copyright: Zes X Zes
Copyright: Zes X Zes
Copyright: Zes X Zes
Copyright: VKV visuals
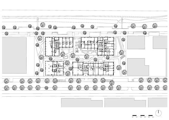
Situatie
Copyright: NEXT architects
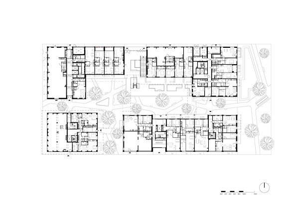
Begane grond
Copyright: NEXT architects
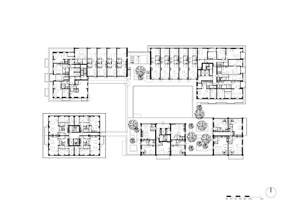
Vierde verdieping
Copyright: NEXT architects
Bouwstart Roof Garden bij station Amsterdam Sloterdijk nabij
18 september 2024, 14:56
Naar verwachting wordt eind dit jaar gestart met de bouw van woningbouwproject Roof Garden in Amsterdam. Het complex nabij station Amsterdam Sloterdijk bestaat uit vier gebouwen met in totaal 236 woningen, die worden verbonden door twaalf meter hoge luchtbruggen. Het ontwerp is gemaakt door NEXT architects en Juurlink[+]Geluk, in opdracht van ontwikkelaar Local.
Roof Garden, dat verrijst op de plek van een bestaand bedrijfspand tussen de Naritaweg en de Plesostraat, bestaat uit vier afzonderlijke gebouwen met elk een eigen karakter. De gebouwen worden met elkaar verbonden door galerijen en loopbruggen die in een herkenbare messing kleur zijn gegoten.
De loopbruggen zijn net als de terrassen op dezelfde (vierde) verdieping voorzien van groen, zodat ook de bewoners van de hoger gelegen appartementen in een groene omgeving wonen. Daarnaast komen er daktuinen, een verhoogde binnentuin (de centraal gelegen ‘hoftuin’) en andere plekken waar de bewoners elkaar kunnen ontmoeten.
Van de vier gebouwen wordt er een volledig gerealiseerd van hout. Volgens eigen onderzoek van NEXT architects heeft een materiaalgebonden CO
2
-uitstoot van 170 kg CO
2
/m
2
. Hiermee is het Paris Proof, zonder de biogene opslag mee te rekenen, zo concludeerde het bureau eerder dit jaar in
een artikel over het onderzoek
op Architectenweb.
Verschillende typologieën
De woningen zijn bestemd voor meerdere segmenten (van sociale huur tot koop) en bestaan uit verschillende typologieën en oppervlaktematen. “We zijn trots dat we in de complexe binnenstedelijke context van Sloterdijk een divers project hebben ontworpen dat ruimte biedt voor wonen in een groene omgeving, met plek voor ontspanning en informele ontmoeting tussen bewoners en bezoekers”, stelt Joost Lemmens van NEXT architects.
Afgelopen zomer heeft het Amsterdamse stadsdeel West de omgevingsvergunning verleend voor het 19.500 m
2
omvattend project. Naar verwachting wordt Roof Garden in 2027 opgeleverd.
Trefwoorden
local
juurlink [ ] geluk
sloterdijk
amsterdam sloterdijk
amsterdam
groen
woningbouw
next architects
roof garden
hout
Locatie
Best gelezen
1
AM en Amvest zoeken architecten voor herontwikkeling Draka-terrein
dinsdag, 19 mei
2
Woningbouwproject KAAP langs het IJ in Amsterdam voltooid
dinsdag, 19 mei
3
Renovatie station Leeuwarden door Movares afgerond
woensdag, 20 mei
4
Dam & Partners ontwerpt multifunctioneel gebouw in Schinkelhaven
dinsdag, 19 mei
5
Utrechtse flats gerenoveerd volgens 'chassis-carrosseriemethode'
donderdag, 21 mei
Gerelateerde nieuwsberichten
Servicestation met opvallende houten constructie door NEXT architects
1 oktober 2024
Paris Proof zónder biogene opslag? Dat vraagt om radicale keuzes, constateert NEXT architects in onderzoek
5 juli 2024
Woongebouw MO*town Track 8 nabij station Sloterdijk opgeleverd
26 november 2024
Oud datacentrum wordt complex met 300 woningen in Stationskwartier Sloterdijk
18 juni 2024
NEXT architects ontwerpt Kindcentrum Middenwaard in Amstelveen
7 januari 2025
Team met diederendirrix ontwerpt grootschalig nieuwbouwproject bij Amsterdam Sloterdijk
9 december 2024
Grotendeels houten uitbreiding voor vernieuwd DW02 Lighthouse
11 juni 2024
Multifunctioneel gebouw Floating Gardens in Sloterdijk biedt plek aan woningen en een IKC
17 juli 2025
Studie naar bouwen boven spoor bij Sloterdijk krijgt vervolg
9 maart 2023
CO2-gestuurd ontwerpen is efficiënt ontwerpen. Levert dat ruimtelijk nog wat op? Jazeker!
15 juli 2025
Team V maakt ontwerp voor renovatie en uitbreiding Hout- en Meubileringscollege Amsterdam
25 november 2024
Houten uitkijktoren Einderheide vormt tevens verblijfplaats voor vleermuizen
7 oktober 2024
Spectaculair dak vervult sleutelrol binnen EDGE Amsterdam West
12 september 2022
Duncan Stutterheim en SOM maken plannen voor meerdere locaties Sloterdijk I
16 maart
Intentieovereenkomst voor zevenhonderd woningen Sloterdijk I Zuid
9 februari 2022
Amsterdam start selectie voor circulair en gestapeld bedrijfsgebouw langs A5
18 mei
Synchroon en BPD ontwikkelen meer dan vierhonderd woningen in Sloterdijk I
22 april
NEXT architects ontwerpt onderwijs- en sportcomplex in nieuwe wijk Voorhout
4 september 2025
CO2-gestuurd ontwerpen is oog hebben voor kosten. Betaalbaar is duurzamer!
28 augustus 2025
CO2-gestuurd ontwerpen moeilijk? Iedereen kan meteen beginnen!
16 juni 2025
NEXT architects en Juurlink+Geluk presenteren woningbouwproject HOOF
17 januari 2022
Handboek gepresenteerd voor realiseren van 'superplinten'
25 oktober 2021
CO2-gestuurd ontwerpen is focus op constructie én installaties!
18 september 2025
Markante woontoren van TPDVSP in Sloterdijk opgeleverd
12 oktober 2021
Kantoorgebouwen Basisweg Amsterdam herontwikkeld tot District West
15 april 2021
Caro van de Venne supervisor voor transformatieproject Sloterdijk I Zuid
15 maart 2021
Wake-up calls from China
3 februari
Servicestation met opvallende houten constructie door NEXT architects
1 oktober 2024
Paris Proof zónder biogene opslag? Dat vraagt om radicale keuzes, constateert NEXT architects in onderzoek
5 juli 2024
Woongebouw MO*town Track 8 nabij station Sloterdijk opgeleverd
26 november 2024
Oud datacentrum wordt complex met 300 woningen in Stationskwartier Sloterdijk
18 juni 2024
NEXT architects ontwerpt Kindcentrum Middenwaard in Amstelveen
7 januari 2025
Team met diederendirrix ontwerpt grootschalig nieuwbouwproject bij Amsterdam Sloterdijk
9 december 2024
Grotendeels houten uitbreiding voor vernieuwd DW02 Lighthouse
11 juni 2024
Multifunctioneel gebouw Floating Gardens in Sloterdijk biedt plek aan woningen en een IKC
17 juli 2025
Studie naar bouwen boven spoor bij Sloterdijk krijgt vervolg
9 maart 2023
CO2-gestuurd ontwerpen is efficiënt ontwerpen. Levert dat ruimtelijk nog wat op? Jazeker!
15 juli 2025
Team V maakt ontwerp voor renovatie en uitbreiding Hout- en Meubileringscollege Amsterdam
25 november 2024
Houten uitkijktoren Einderheide vormt tevens verblijfplaats voor vleermuizen
7 oktober 2024
Spectaculair dak vervult sleutelrol binnen EDGE Amsterdam West
12 september 2022
Duncan Stutterheim en SOM maken plannen voor meerdere locaties Sloterdijk I
16 maart
Intentieovereenkomst voor zevenhonderd woningen Sloterdijk I Zuid
9 februari 2022
Amsterdam start selectie voor circulair en gestapeld bedrijfsgebouw langs A5
18 mei
Synchroon en BPD ontwikkelen meer dan vierhonderd woningen in Sloterdijk I
22 april
NEXT architects ontwerpt onderwijs- en sportcomplex in nieuwe wijk Voorhout
4 september 2025
CO2-gestuurd ontwerpen is oog hebben voor kosten. Betaalbaar is duurzamer!
28 augustus 2025
CO2-gestuurd ontwerpen moeilijk? Iedereen kan meteen beginnen!
16 juni 2025
NEXT architects en Juurlink+Geluk presenteren woningbouwproject HOOF
17 januari 2022
Handboek gepresenteerd voor realiseren van 'superplinten'
25 oktober 2021
CO2-gestuurd ontwerpen is focus op constructie én installaties!
18 september 2025
Markante woontoren van TPDVSP in Sloterdijk opgeleverd
12 oktober 2021
Kantoorgebouwen Basisweg Amsterdam herontwikkeld tot District West
15 april 2021
Caro van de Venne supervisor voor transformatieproject Sloterdijk I Zuid
15 maart 2021
Wake-up calls from China
3 februari
Toon alles
Andere nieuwsberichten
SOME architects presenteert resultaten van onderzoek naar woonwensen 55-plussers
22 mei, 4:09
Publicatie ‘Woontitanen’ biedt inspiratie en handvatten om kloof tussen vraag en aanbod in woningaanbod voor 55-plussers te dichten.
In beeld: inschuiven dakdeel van 2,4 miljoen kilo over Vivaldipassage
22 mei, 2:43
Bij station Amsterdam Zuid vond afgelopen week een bijzondere inschuifoperatie plaats. Ten oosten van het station werd een nieuw dakdeel met een gewicht van 2,4 miljoen kilo over de toekomstige Vivalipassage geschoven.
Brug van hergebruikte materialen over Papaverkanaal in Buiksloterham
22 mei, 1:15
Knipscheer Infra en Rademacher / De Vries Architecten hebben de aanbesteding gewonnen voor een brug van hergebruikte materialen in de Amsterdamse wijk Buiksloterham.
OZ transformeert kantoorgebouw achter voormalig hoofdkantoor Shell tot Ypsilon Park
22 mei, 10:41
OZ transformeert een kantoorgebouw uit de jaren zeventig aan de Wassenaarseweg in Den Haag tot een woongebouw. Ypsilon Park bestaat uit 79 appartementen en penthouses, die in grootte variëren van 75 tot 280 vierkante meter.
Amsterdam wil woningbezitters weren uit sociale huurwoning
22 mei, 12:23
Het stadsbestuur wil daarmee duidelijk maken dat het onwenselijk is dat huizenbezitters sociale huurwoningen bezet houden.
Mogelijk minder ruimte nodig voor uitbreidingsplannen Moerdijk
22 mei, 9:47
Het dorp Moerdijk zou in dat geval kunnen blijven bestaan, aldus de gemeente.
Museum Rotterdam ontvangt sleutels van Citykerk Het Steiger
21 mei, 3:01
Citykerk Het Steiger, een wederopbouwmonument in de Rotterdamse binnenstad, ondergaat in de komende jaren een transformatie naar onderkomen voor Museum Rotterdam, alsook naar woon- en kantoorruimte.
Naturalis: Nederlandse natuur verbetert, maar niet snel genoeg
21 mei, 1:50
Het gaat beter met de natuur in Nederland, maar niet snel genoeg om aan afspraken te voldoen.
Bouw van flexwoningen valt tegen, ziet Rekenkamer
21 mei, 9:50
De 948 miljoen euro die sinds 2021 opzij is gezet om meer flexwoningen te bouwen, is pas deels uitgegeven.
Binnenhof al bij voorbaat te klein voor alle organisaties
20 mei, 2:47
Nog voordat de verbouwing van het Binnenhof klaar is, is het complex te klein voor alle organisaties die erin moeten.
Ga naar het nieuws-archief
Ronnie Weessies
Redacteur
0
0
0
0
Voor een optimale gebruikservaring plaatst Architectenweb functionele cookies. Wat de verschillende cookies precies doen leggen we uit in een
overzicht
. Cookies van social media kun je optioneel
aanzetten
.
Akkoord
Instellingen
Annuleren
OK
Sluiten
Doorgaan
Inloggen
Maak een gratis persoonlijk account aan
Feedback
Feedback
Wij horen graag jouw feedback. Laat je reactie achter en eventueel jouw e-mail adres.
Reactie
Verstuur