Projecten
Producten
Bedrijven
Vacatures
Agenda
Awards
Podcasts
more_horiz
Videos
Magazine
Favorieten
Profiel
Uitloggen
Abonneer je nu op onze nieuwsbrieven!
Abonneren
Nee, bedankt
Ja, denk met me mee rond de
materialisering van mijn project
Isometrie cultuurhuis De Nieuwe Rietwijker
Copyright: NEXT architects
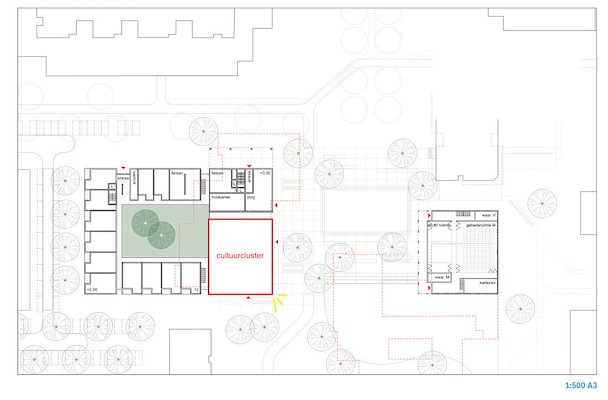
Situatie cultuurhuis De Nieuwe Rietwijker
Copyright: NEXT architects
Schets cultuurhuis De Nieuwe Rietwijker
Copyright: NEXT architects
NEXT architects ontwerpt cultuurhuis voor Banne-Noord in Amsterdam
3 juli 2024, 10:00
Het Parlevinkerplein in Amsterdam-Noord krijgt een nieuw cultuurhuis. De Nieuwe Rietwijker wordt een cultureel centrum voor de wijk Banne-Noord met een theaterzaal, activiteitenruimten, een ontmoetingsruimte en een ‘broedplaats’ voor kunstenaars op de verdiepingen.
NEXT architects
is geselecteerd voor het ontwerp.
In het ontwerp voor cultuurhuis De Nieuwe Rietwijker gaat NEXT uit van een open structuur waarin verbinding centraal staat, legt het architectenbureau uit. Dit biedt een robuust raamwerk dat flexibel en multifunctioneel inzetbaar is.
In de architectuur worden activiteitenruimten verbonden met het aangrenzende plein. Op de verdieping werkt een stedelijke veranda als voortzetting van het publieke domein. Sheddaken dragen bij aan een herkenbare contour van het volume.
NEXT omschrijft het cultuurhuis als “een verzamelgebouw met vele disciplines en gebruiksfuncties”. Zo komen op de begane grond van 650 m
2
een workshop- of activiteitenruimte, horeca en een cultuurzaal, waar concerten en theatervoorstellingen kunnen plaatsvinden. De eerste en tweede verdieping huisvest de ateliers.
Voor amateur en professioneel
De begane grond van het buurtcultuurcentrum heeft een laagdrempelig karakter met een open uitstraling en is bedoeld voor iedereen uit Banne-Noord en omgeving, legt het architectenbureau uit. Kunst, cultuur en ontmoeting staan hier centraal en het gezamenlijk opdoen en uitwerken van ideeën vergroot de saamhorigheid in de buurt. “ Een broedplaats voor kunst en cultuur voor zowel creatieve amateur- als professionele makers.”
Nieuw woon- en verblijfsgebied
De gemeente Amsterdam Kunst & Cultuur is opdrachtgever voor het cultuurhuis, Stichting Buurtcentra is opdrachtgever voor de broedplaats. Rochdale is gedelegeerd ontwikkelaar.
Het cultuurhuis maakt deel uit van een nieuw te ontwikkelen woon- en verblijfgebied rondom het Parlevinkerplein, een stedenbouwkundig plan van SVP stedenbouw en architectuur. Dat bureau ontwerpt ook de 105 sociale huurwoningen van Rochdale in het bouwblok waarvan het cultuurhuis onderdeel vormt.
Trefwoorden
cultuurzaal
next architects
rochdale
cultuurhuis
cultureel centrum
leisure
kunst en cultuur
amsterdam
amsterdam-noord
Locatie
Best gelezen
1
Genomineerden BNA Beste Gebouw van het Jaar 2026 bekend
dinsdag, 28 april
2
Architectenweb symposium: samenwerken op kantoor
dinsdag, 28 april
3
Bouwvergunning voor torens MVRDV op Tour & Taxis-terrein Brussel
donderdag, 30 april
4
MVRDV en Diamond Schmitt ontwerpen tweede gebouw voor universiteit Toronto
dinsdag, 28 april
5
Groosman heeft 'eigen' Coolse Poort in centrum Rotterdam gerenoveerd
woensdag, 29 april
Gerelateerde nieuwsberichten
Bouwvergunning voor wooncomplex door SVP in Banne Noord verleend
18 maart
Bouw Huis voor de Amateurkunst Vrijdag in Groningen kan starten
1 juli 2024
Woontoren voor jongeren op Oostenburg vormt roestbruin accent langs het spoor
26 april 2024
NEXT biedt ander perspectief met paviljoen
25 maart 2024
Servicestation met opvallende houten constructie door NEXT architects
1 oktober 2024
NEXT architects en Christensen & Co winnen tender Kindcentrum Voorhof in Lelystad
7 december 2023
NEXT architects ontwerpt Kindcentrum Middenwaard in Amstelveen
7 januari 2025
Eerste fase Portugees project van NEXT architects opgeleverd
1 december 2023
Plan Celsius in wijkververnieuwing Woensel-West afgerond
20 september 2023
CO2-gestuurd ontwerpen is efficiënt ontwerpen. Levert dat ruimtelijk nog wat op? Jazeker!
15 juli 2025
Spoor en station Vught gaan op de schop
10 juli 2023
CO2-gestuurd ontwerpen is oog hebben voor kosten. Betaalbaar is duurzamer!
28 augustus 2025
In gesprek met John van de Water over 'Reconnecting with China' en debat over werken in China
30 april
NEXT architects ontwerpt onderwijs- en sportcomplex in nieuwe wijk Voorhout
4 september 2025
CO2-gestuurd ontwerpen moeilijk? Iedereen kan meteen beginnen!
16 juni 2025
Houten uitkijktoren Einderheide vormt tevens verblijfplaats voor vleermuizen
7 oktober 2024
CO2-gestuurd ontwerpen is focus op constructie én installaties!
18 september 2025
NEXT architects ontwerpt uitkijktoren in Brabants bosgebied
7 april 2023
NEXT transformeert productiehal Kauwgomballenkwartier tot KBF Warehouse
24 oktober 2022
Wake-up calls from China
3 februari
Hedendaagse parkbruggen geënt op historie landgoed Windesheim
20 januari 2022
NEXT architects en Juurlink+Geluk presenteren woningbouwproject HOOF
17 januari 2022
Bouwvergunning voor wooncomplex door SVP in Banne Noord verleend
18 maart
Bouw Huis voor de Amateurkunst Vrijdag in Groningen kan starten
1 juli 2024
Woontoren voor jongeren op Oostenburg vormt roestbruin accent langs het spoor
26 april 2024
NEXT biedt ander perspectief met paviljoen
25 maart 2024
Servicestation met opvallende houten constructie door NEXT architects
1 oktober 2024
NEXT architects en Christensen & Co winnen tender Kindcentrum Voorhof in Lelystad
7 december 2023
NEXT architects ontwerpt Kindcentrum Middenwaard in Amstelveen
7 januari 2025
Eerste fase Portugees project van NEXT architects opgeleverd
1 december 2023
Plan Celsius in wijkververnieuwing Woensel-West afgerond
20 september 2023
CO2-gestuurd ontwerpen is efficiënt ontwerpen. Levert dat ruimtelijk nog wat op? Jazeker!
15 juli 2025
Spoor en station Vught gaan op de schop
10 juli 2023
CO2-gestuurd ontwerpen is oog hebben voor kosten. Betaalbaar is duurzamer!
28 augustus 2025
In gesprek met John van de Water over 'Reconnecting with China' en debat over werken in China
30 april
NEXT architects ontwerpt onderwijs- en sportcomplex in nieuwe wijk Voorhout
4 september 2025
CO2-gestuurd ontwerpen moeilijk? Iedereen kan meteen beginnen!
16 juni 2025
Houten uitkijktoren Einderheide vormt tevens verblijfplaats voor vleermuizen
7 oktober 2024
CO2-gestuurd ontwerpen is focus op constructie én installaties!
18 september 2025
NEXT architects ontwerpt uitkijktoren in Brabants bosgebied
7 april 2023
NEXT transformeert productiehal Kauwgomballenkwartier tot KBF Warehouse
24 oktober 2022
Wake-up calls from China
3 februari
Hedendaagse parkbruggen geënt op historie landgoed Windesheim
20 januari 2022
NEXT architects en Juurlink+Geluk presenteren woningbouwproject HOOF
17 januari 2022
Toon alles
Andere nieuwsberichten
'Stuttende' en contrasterende installatie voor Besiendershuis Nijmegen
1 mei, 3:52
Bij het Besiendershuis in Nijmegen is afgelopen maand een door Frank Havermans ontworpen kunstinstallatie geopend. Het bouwwerk is gerealiseerd ter viering van het vijfhonderdjarig jubileum van het bijzondere huis in het centrum van de Keizerstad.
Specht architectuur en stedenbouw toont met meergeneratiehofje alledaagse woongemeenschappelijkheid
1 mei, 2:25
Het meergeneratiehofje met sociale huurwoningen in Stedum is een bijdrage aan de zoektocht naar alledaagse gemeenschappelijkheid in het wonen in Nederland.
Mobiliteitshub van gerecycled tropisch hardhout voor Tholen
1 mei, 11:41
In het Zeeuwse Tholen is een mobiliteitshub naar ontwerp van RO&AD Architecten opgeleverd. Het gebouw, dat is geheel is gemaakt van gerecycled tropisch hardhout, fungeert als knooppunt voor bussen en fietsers.
Kleurrijke textielinstallatie van Simone Post voor entreegebied Centraal Museum
1 mei, 9:05
Voor Patchwork Post heeft ontwerper Simone Post objecten en kunstwerken uit de museumcollectie vertaald naar diverse werken in textiel.
Verzet natuurorganisaties tegen stroomkabel via Schiermonnikoog
1 mei, 4:39
Negen natuurorganisaties maken zich grote zorgen over het plan om stroom van een nieuw windpark op de Noordzee via Schiermonnikoog aan land te brengen.
ING: huizenprijzen stijgen dit jaar niet verder door hoger aanbod
1 mei, 1:03
Na jaren van groei is het voor het eerst in lange tijd dat een bank verwacht dat de huizenmarkt niet verder groeit.
TenneT mag datacenteraansluiting uitstellen om vol stroomnet
1 mei, 10:11
Een projectontwikkelaar van een datacenter bij Schiphol klaagde hierover en spande een kort geding aan.
Brabant investeert 1,4 miljoen in waterfilter in Vlaanderen
30 april, 3:51
Het fosfaatfilter moet vervuild grondwater op een natuurlijke manier zuiveren voordat het naar het Nederlandse natuurgebied de Groote Meer bij Ossendrecht stroomt.
Rli: klimaat, vervuiling en groei bedreigen beschikbaarheid drinkwater
30 april, 12:20
De beschikbaarheid van drinkwater staat ernstig onder druk, waarschuwt de Raad voor de leefomgeving en infrastructuur.
ABN AMRO: huurwetaanpassingen stoppen uittocht beleggers niet
30 april, 9:04
Volgens de onderzoekers onderschat woonminister Boekholt de negatieve effecten van het huidige fiscale beleid.
Ga naar het nieuws-archief
Robert Muis
Redacteur
0
0
0
0
Voor een optimale gebruikservaring plaatst Architectenweb functionele cookies. Wat de verschillende cookies precies doen leggen we uit in een
overzicht
. Cookies van social media kun je optioneel
aanzetten
.
Akkoord
Instellingen
Annuleren
OK
Sluiten
Doorgaan
Inloggen
Maak een gratis persoonlijk account aan
Feedback
Feedback
Wij horen graag jouw feedback. Laat je reactie achter en eventueel jouw e-mail adres.
Reactie
Verstuur