Projecten
Producten
Bedrijven
Vacatures
Agenda
Awards
Podcasts
more_horiz
Videos
Magazine
Thema's
Favorieten
Profiel
Uitloggen
Copyright: Mulders vandenBerk Architecten
Copyright: Mulders vandenBerk Architecten
Copyright: Mulders vandenBerk Architecten
Woongebouw in hout met intern hof
8 januari 2020, 16:36
Voor een kavel op het Oostenburgereiland in Amsterdam heeft
Mulders vandenBerk
Architecten een woongebouw met een hof en steeg ontworpen. Het bureau verkreeg de opdracht na een selectieprocedure door CPO Let’s Go East.
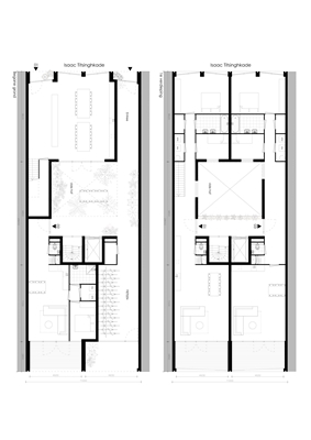
Kavel 11G ligt aan de Isaac Titsinghkade op het Oostenburgereiland. Het gebouw gaat ruimte bieden aan zeven woningen en een bedrijfsruimte en komt tussen twee hogere panden te staan.
Om uitzicht op de blinde muur van de naastliggende blokken te voorkomen, gebruikt Mulders vandenBerk de volle diepte van de kavel voor het gebouw. Zo komen de balkons aan de achterzijde gelijk met de rooilijn te liggen.
Hof en steeg
Om het bouwen over de volle diepte mogelijk te maken, creëren de architecten een hof in het midden van het gebouw, zo leggen ze uit. Het hof is toegankelijk vanaf de openbare straat via een steeg, die van de Isaac Titsinghkade dwars door het pand naar het achterpad loopt. Dit zorgt bovendien voor een levendige plint, aldus Mulders vandenBerk.
Vanuit het hof zijn alle woningen bereikbaar. De kleine woning aan het achterpad en de grote woning met werkruimte aan de voorzijde hebben tevens een eigen entree vanaf de straat. Door het hof schijnt licht vanuit het gebouw; daarmee wordt de kantoorruimte goed zichtbaar en de zichtrelatie tussen straat en gebouw sterker.
Rust en koelte
De bestrating van de openbare ruimte loopt door in de steeg en het hof om een sterke relatie te verwezenlijken. De architecten hebben een ruime toepassing van groen voor ogen: in het het hof komen bomen en planten, de hofgevel krijgt een verticale tuin en op het dak komt beplanting met sedum.
De combinatie van hof, steeg en begroeiing zorgt volgens de architecten in warme maanden voor verkoeling en maakt nachtventilatie van de woningen mogelijk. Ventilatieluiken in de hofgevel voeren ’s nachts warmte uit de woning af, waardoor er geen actieve koeling nodig is.
Het hof biedt de bewoners een rustige en visueel aantrekkelijke plek, en bovendien een geluidluwe gevel. In het hof kunnen de ramen open staan zonder hinder van omgevingsgeluid.
Kap en gevel
Het kavelpaspoort vraagt om een bijzondere kapvorm. “Om extra karakter te geven aan het pand tussen de grotere buren maken we een tweedeling in de kap”, vertellen de architecten. “Dit maakt het pand zeer herkenbaar in de straat.”
Door telkens twee verdiepingen visueel samen te voegen in de gevel, krijgt het gebouw een verticalere en slankere uitstraling. Mulders vandenBerk benadrukt de verticaliteit door grote massief houten frames rond de ramen te plaatsen.
Biobased bouwen
In de realisatie kiest het architectenbureau voor biobased bouwen. Zo opteert het bureau voor de toepassing van CLT (Cross Laminated Timber). Het door hout tijdens de groei opgenomen CO
2
blijft opgeslagen en keert (vooralsnog) niet terug in de atmosfeer.
Ook de uitstoot van stikstof is bij biobased bouwen vele malen lager dan bij een traditioneel bouwproces, aldus Mulders vandenBerk. “Bovendien vermijden we zo een vertraging door een mogelijke bouwstop vanwege de stikstofcrisis.”
De keuze voor biobased bouwen is ook ingegeven door gezondheid, leggen de architecten uit. Het hout en de houtwolisolatie nemen van nature vocht op en staan het weer af. Dit draagt bij aan een aangenaam en gezond binnenklimaat in de woningen.
Snelheid
Het casco wordt volledig prefab in de fabriek gemaakt en kan op locatie direct worden gemonteerd. Deze manier van bouwen en het ontwerp van de gevel zorgen er voor dat de bouw snel en zonder steigers kan verlopen.
“Zodra het casco staat wordt de gevel er in gemonteerd en kan het dak waterdicht worden gemaakt”, zeggen de architecten. Vervolgens hoeven nog slechts installatie en binnenafwerking te worden aangebracht. “De buurt zal erg weinig bouwhinder ondervinden.” Naar verwachting start de bouw in het eerste kwartaal van 2021.
Trefwoorden
mulders vandenberk architecten
biobased bouwen
houtbouw
amsterdam
woongebouw
oostenburgereiland
cpo
collectief particulier opdrachtgeverschap
Locatie
Best gelezen
1
Amsterdam schrijft internationale architectenprijsvraag uit voor Nationaal Slavernijmuseum
donderdag, 12 februari
2
Singelbloktoren Amsterdam-Noord biedt ook bewoners tussenwoningen overhoeks zicht
maandag, 16 februari
3
Bouwstart voor zestig seniorenwoningen in groen landschap Hoorn
vrijdag, 13 februari
4
Meerdaags evenement over bouwen met aarde aangekondigd
donderdag, 12 februari
5
Leren van Santos
dinsdag, 17 februari
Gerelateerde nieuwsberichten
Appartementengebouw WeLoft in Delft combineert efficiëntie en ruimtelijkheid
18 maart 2019
Winnaars ontwerpwedstrijd kavel 6 Oostenburg Amsterdam bekend
13 maart 2019
Akkoord voor woningbouwproject en hotel Oostenburgereiland
20 juli 2018
Experiment met isolatieplaten uit lisdodde
4 februari 2021
Vier jonge bureaus geselecteerd voor Oostenburgereiland
5 september 2017
CPO met drie verwante rijwoningen door 8A
23 augustus 2021
Energieleverende gemeentewerf voor Amsterdam-Zuid
23 augustus 2016
Dorpshuis voor sociale hart van Hollandsche Rading
28 mei 2014
Een eigentijdse tuinderswoning in overwegend biobased materialen
22 februari 2023
Eerste Deventer eenkamerhotel in gebruik
20 februari 2014
Wooncomplex uit houten modules met een groene vallei
15 juni 2020
Realisatie omvangrijk CPO-project in Zutphen van start
19 januari 2021
Woongebouw van Workshop Architecten op Oostenburg opgeleverd
16 september 2021
Nieuw jongerencentrum voor Amsterdam-Noord
8 april 2013
ORGA biedt blik op de bouw van een ecologische school
15 juli 2020
Compact woonensemble met binnenhof op smalle kavel in Oostenburg
5 december 2022
Bouw houten woongebouw in gebiedsontwikkeling Oostenburg gestart
25 september 2023
Studio Drift krijgt eigen museum in Amsterdam
2 november 2023
Woontoren voor jongeren op Oostenburg vormt roestbruin accent langs het spoor
26 april 2024
Woongebouw in hout en metaal markeert de kop van de Oostenburgervaart
25 april 2025
Vier kavels vormen CPO Havenhuis in Deventer
11 februari 2020
Van Gendthallen worden onderkomen voor bedrijven en kunstenaars
11 mei 2020
De Nijl Architecten realiseert CPO Minidorp aan de rivier
5 augustus 2020
Bouw duurzaam en sociaal wooncomplex De Warren kan beginnen
22 december 2020
Monnickendam krijgt woongebouw in CLT
12 januari 2021
Biobased villa’s van Natrufied aan de Texelse duinen
27 januari 2021
Driehoekig Zuidhuis in Almere is ontworpen op dag- en seizoensritme
8 februari 2021
Bureau Fraai presenteert opgeleverde Red Ruby op Oostenburgereiland
10 februari 2021
Bouw woontoren De Prins op Amsterdam Oostenburg gestart
18 mei 2021
Kantoorpand refereert aan industrieel verleden Oostenburgereiland
8 juni 2021
MVRDV ontwerpt blok met zeven gebouwen op Oostenburgereiland
15 juni 2021
Groot woongebouw in Alkmaar uit houten prefab modules
6 juli 2021
Bouw cpo-project Jenga House op Oostenburgereiland van start
15 oktober 2021
Bouw blok met sociale huurwoningen Amsterdam Oostenburg van start
27 januari 2022
Overeenkomst voor woongebouwen Houtrak op Oostenburg
15 februari 2022
Tentoonstelling over collectief wonen in Delft
25 mei 2022
Toko Fuze en Steenvlinder realiseren gevarieerd CPO-project De Stampioenen
16 maart 2023
Appartementengebouw WeLoft in Delft combineert efficiëntie en ruimtelijkheid
18 maart 2019
Winnaars ontwerpwedstrijd kavel 6 Oostenburg Amsterdam bekend
13 maart 2019
Akkoord voor woningbouwproject en hotel Oostenburgereiland
20 juli 2018
Experiment met isolatieplaten uit lisdodde
4 februari 2021
Vier jonge bureaus geselecteerd voor Oostenburgereiland
5 september 2017
CPO met drie verwante rijwoningen door 8A
23 augustus 2021
Energieleverende gemeentewerf voor Amsterdam-Zuid
23 augustus 2016
Dorpshuis voor sociale hart van Hollandsche Rading
28 mei 2014
Een eigentijdse tuinderswoning in overwegend biobased materialen
22 februari 2023
Eerste Deventer eenkamerhotel in gebruik
20 februari 2014
Wooncomplex uit houten modules met een groene vallei
15 juni 2020
Realisatie omvangrijk CPO-project in Zutphen van start
19 januari 2021
Woongebouw van Workshop Architecten op Oostenburg opgeleverd
16 september 2021
Nieuw jongerencentrum voor Amsterdam-Noord
8 april 2013
ORGA biedt blik op de bouw van een ecologische school
15 juli 2020
Compact woonensemble met binnenhof op smalle kavel in Oostenburg
5 december 2022
Bouw houten woongebouw in gebiedsontwikkeling Oostenburg gestart
25 september 2023
Studio Drift krijgt eigen museum in Amsterdam
2 november 2023
Woontoren voor jongeren op Oostenburg vormt roestbruin accent langs het spoor
26 april 2024
Woongebouw in hout en metaal markeert de kop van de Oostenburgervaart
25 april 2025
Vier kavels vormen CPO Havenhuis in Deventer
11 februari 2020
Van Gendthallen worden onderkomen voor bedrijven en kunstenaars
11 mei 2020
De Nijl Architecten realiseert CPO Minidorp aan de rivier
5 augustus 2020
Bouw duurzaam en sociaal wooncomplex De Warren kan beginnen
22 december 2020
Monnickendam krijgt woongebouw in CLT
12 januari 2021
Biobased villa’s van Natrufied aan de Texelse duinen
27 januari 2021
Driehoekig Zuidhuis in Almere is ontworpen op dag- en seizoensritme
8 februari 2021
Bureau Fraai presenteert opgeleverde Red Ruby op Oostenburgereiland
10 februari 2021
Bouw woontoren De Prins op Amsterdam Oostenburg gestart
18 mei 2021
Kantoorpand refereert aan industrieel verleden Oostenburgereiland
8 juni 2021
MVRDV ontwerpt blok met zeven gebouwen op Oostenburgereiland
15 juni 2021
Groot woongebouw in Alkmaar uit houten prefab modules
6 juli 2021
Bouw cpo-project Jenga House op Oostenburgereiland van start
15 oktober 2021
Bouw blok met sociale huurwoningen Amsterdam Oostenburg van start
27 januari 2022
Overeenkomst voor woongebouwen Houtrak op Oostenburg
15 februari 2022
Tentoonstelling over collectief wonen in Delft
25 mei 2022
Toko Fuze en Steenvlinder realiseren gevarieerd CPO-project De Stampioenen
16 maart 2023
Toon alles
Andere nieuwsberichten
AG NOVA ontwerpt woon-zorggebouw voor kwetsbare ouderen op Centrumeiland
Vandaag, 15:15
Het pand is bestemd voor bewoners die complexe zorg nodig hebben en met ondersteuning in de stad kunnen blijven wonen.
Team van Nederlandse en Oekraïense architecten ontwikkelt open-source bouwsysteem voor publieke voorzieningen in Oekraïne
Vandaag, 13:57
Een team van Orange Architects, NOVA en ReThink heeft samen met een verschillende vastgoed en productontwikkelaars op het gebied van modulair bouwen een schaalbaar, open-source bouwsysteem voor publieke voorzieningen in Oekraïne ontwikkeld.
Expositie toont mogelijkheden voor nieuwe woonruimte in bestaande Rotterdamse wijken
Vandaag, 11:05
Hoe kun je in Rotterdam honderdduizend nieuwe woningen realiseren zonder nieuwe wijken te hoeven aanleggen? In een tentoonstelling bij OMI laten Platform Woonopgave en Recht op de Stad zien op welke manieren dat kan.
Vincent Bijlo en Berlage Saxophone Quartet brengen iconisch ontwerp van Berlage tot leven
Gisteren, 15:50
In de nieuwe voorstelling ‘Het Visioen van Berlage’ van cabaretier en schrijver Vincent Bijlo en het Berlage Saxophone Quartet speelt het iconische ontwerp Pantheon der Menschheid (1915) van architect Berlage een centrale rol.
Ridderkerk hoeft voorlopig niet samen te werken bij verdeling huurwoningen
Vandaag, 16:29
De provincie Zuid-Holland mag Ridderkerk voorlopig niet dringen om hierbij samen te werken met elf andere gemeenten.
Zichtbaar verduurzaamde huizen leveren meer op bij verkoop
Vandaag, 11:59
Cijfers wijzen uit dat in het derde kwartaal van vorig jaar bijna 4700 euro per vierkante meter werd betaald voor woningen met een energielabel A of beter.
Noord-Brabant verdeelt vijftig miljoen euro over regio-Moerdijk
Vandaag, 09:09
Het geld dient om de leefbaarheid op peil te houden in het gebied waar de komende jaren diverse energieprojecten worden uitgevoerd.
Nederland en Vlaanderen maken afspraken over stikstofuitstoot
Gisteren, 14:51
Overheden in de grensregio moeten als ze een vergunning geven voor zaken als woningbouw ook kijken naar de mogelijke gevolgen die de uitstoot heeft voor beschermde natuurgebieden aan de andere kant van de grens.
Blaricum lost Laren af als gemeente met duurste woningen
Gisteren, 10:39
Het verschil tussen de duurste en goedkoopste koophuizen is in 2025 groter geworden.
Noord-Hollands dorp Opmeer wil eerste mini-kernreactor huisvesten
16 februari, 1:34
Opmeer heeft in het Nederlandse bedrijf Allseas een mogelijke bouwer van een Small Modular Reactor gevonden.
Ga naar het nieuws-archief
Robert Muis
Redacteur
2
0
0
0
Voor een optimale gebruikservaring plaatst Architectenweb functionele cookies. Wat de verschillende cookies precies doen leggen we uit in een
overzicht
. Cookies van social media kun je optioneel
aanzetten
.
Akkoord
Instellingen
Annuleren
OK
Sluiten
Doorgaan
Inloggen
Maak een gratis persoonlijk account aan
Feedback
Feedback
Wij horen graag jouw feedback. Laat je reactie achter en eventueel jouw e-mail adres.
Reactie
Verstuur