Projecten
Producten
Bedrijven
Vacatures
Agenda
Awards
Podcasts
more_horiz
Videos
Magazine
Thema's
Favorieten
Profiel
Uitloggen
WeLoft Delft voorgevel
Copyright: Mulders vandenBerk Architecten
WeLoft Delft achtergevel
Copyright: Mulders vandenBerk Architecten
WeLoft Delft doorsnede
Copyright: Mulders vandenBerk Architecten
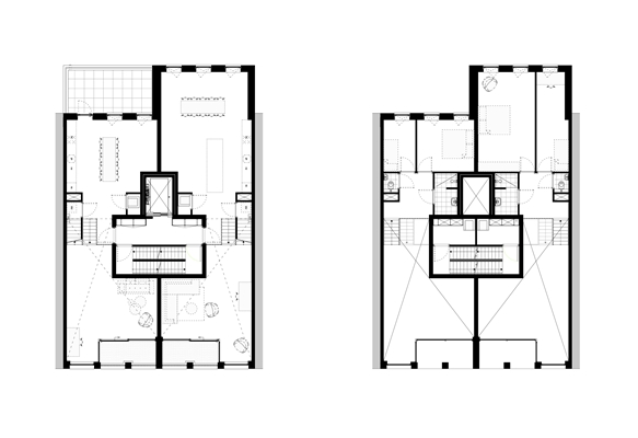
WeLoft Delft plattegronden
Copyright: Mulders vandenBerk Architecten
Appartementengebouw WeLoft in Delft combineert efficiëntie en ruimtelijkheid
18 maart 2019, 16:17
In de spoorzone van Delft is woongebouw WeLoft gerealiseerd.
Mulders vandenBerk Architecten
heeft het ontwerp gemaakt voor het complex, dat hoge, lichte woonkamers aan de straatzijde combineert met normale plafondhoogtes aan de achterzijde.
Het stedenbouwkundig plan voor de nieuw ontwikkelde spoorzone van Delft is gebaseerd op naast elkaar geplaatste appartementengebouwen. In het ontwerp van WeLoft, dat aan de Nieuwe Gracht wordt gerealiseerd, weet Mulders vandenBerk Architecten efficiƫntie met ruimtelijkheid te combineren.
Plafondhoogten
Het voorste deel van het complex heeft plafondhoogten van 4,10 meter. Hier legt de woonkamer, voorzien van een volledig glazen pui en gericht op de straat. De achterzijde van gebouw, waar de slaapkamers zijn gelegen, heeft een plafondhoogte van 2,60 meter.
Dit betekent dat in het achterste deel van het appartementengebouw meer verdiepingen komen dan aan de voorzijde. Hierdoor is het mogelijk om grote en kleine woningen binnen ƩƩn concept en gebouwstructuur aan te bieden, legt het architectenbureau uit.
Gevelindeling
De voorgevel is opgedeeld in zes traveeƫn. De verdiepingshoogte gecombineerd met de ranke gevelstructuur geeft het complex een slank voorkomen. Met het oog op de materialisering heeft Mulders vandenBerk gekozen voor een beige-grijze gevelsteen in combinatie met ton sur ton grijze aluminium kozijnen.
De achtergevel bestaat uit verspringende volumes, waardoor de appartementen een buitenruimte in de ochtendzon hebben. Het architectenbureau heeft de raamindeling eenvoudig gehouden met een verticale hoofdopzet.
Trefwoorden
appartementengebouw
woningbouw
weloft
mulders vandenberk architecten
delft
Best gelezen
1
Houthybride woongebouw langs de A8 in Zaandam opgeleverd
dinsdag, 11 november
2
WillemsenU zinkt villa af in landschap
dinsdag, 11 november
3
MVRDV ontwerpt bolvormig sportcomplex in Albanese hoofdstad Tirana
maandag, 10 november
4
Campus met onderwijs en woningen in 's Hertogenbosch officieel geopend
vrijdag, 7 november
5
Groningers kiezen nieuwe invulling voor plek gesloopte parkeergarage in stadscentrum
dinsdag, 11 november
Gerelateerde nieuwsberichten
Woongebouw in hout met intern hof
8 januari 2020
FABRICations ontwerpt loftwoning als multifunctionele ruimte
24 april 2019
Energieleverende gemeentewerf voor Amsterdam-Zuid
23 augustus 2016
Dorpshuis voor sociale hart van Hollandsche Rading
28 mei 2014
Eerste Deventer eenkamerhotel in gebruik
20 februari 2014
Nieuw jongerencentrum voor Amsterdam-Noord
8 april 2013
Paddenstoelenhuis voor champignonkwekerij
15 februari 2013
Gebouw met 279 energieneutrale starterswoningen voor Delft
10 april 2019
Tako Postma nieuwe stadsbouwmeester van Delft
27 september 2019
Coendersbuurt in Delft is klaar
23 juli 2020
Meubelstukken delen de loft in
20 oktober 2020
Woongebouw in hout met intern hof
8 januari 2020
FABRICations ontwerpt loftwoning als multifunctionele ruimte
24 april 2019
Energieleverende gemeentewerf voor Amsterdam-Zuid
23 augustus 2016
Dorpshuis voor sociale hart van Hollandsche Rading
28 mei 2014
Eerste Deventer eenkamerhotel in gebruik
20 februari 2014
Nieuw jongerencentrum voor Amsterdam-Noord
8 april 2013
Paddenstoelenhuis voor champignonkwekerij
15 februari 2013
Gebouw met 279 energieneutrale starterswoningen voor Delft
10 april 2019
Tako Postma nieuwe stadsbouwmeester van Delft
27 september 2019
Coendersbuurt in Delft is klaar
23 juli 2020
Meubelstukken delen de loft in
20 oktober 2020
Toon alles
Andere nieuwsberichten
Benthem Crouwel Architects plaatst slotstuk in Paleiskwartier van Den Bosch
Gisteren, 17:00
Benthem Crouwel Architects heeft het stadsblok Palazzo in het Paleiskwartier van Den Bosch opgeleverd
Stimuleringsfonds kondigt nieuwe editie Prix de Rome Architectuur aan
Gisteren, 15:08
Op 12 januari start een nieuwe editie van de Prix de Rome Architectuur. De vierjaarlijkse prijs is de oudste en meest prestigieuze stimuleringsprijs voor architecten tot veertig jaar.
Bakstenen ensemble met sociale huurwoningen in Oudewater opgeleverd
Gisteren, 14:13
In het Utrechtse Oudewater is afgelopen jaar een complex met 69 sociale huurappartementen opgeleverd. Het door Van Hoogevest Architecten ontworpen ensemble Schuylenburcht bestaat uit vier bakstenen volumes met open ruimte ertussen.
Haagse architectuurprijs voor restauratie en herbestemming Berlagekerk
Gisteren, 11:06
Het project naar ontwerp van architectenbureau Zeeuwse Jongens kreeg de hoogste eer van de vakjury van de Berlagevlag 2025.
Deltacommissaris: ga nu al in gesprek over toekomst waterbeheer
Gisteren, 17:03
Nederland moet nu al kijken welke randvoorwaarden nodig zijn om grote waterbeschermingsprogramma's zoals de Deltawerken in de komende jaren uit te voeren.
Gemeentebestuur wil Brabants dorp Moerdijk laten verdwijnen
Gisteren, 10:23
Het dorp Moerdijk in Noord-Brabant moet verdwijnen om plaats te maken voor uitbreiding van het bestaande haven- en industrieterrein in die plaats.
Iets minder mensen vertrekken uit de Randstad dan in eerdere jaren
12 november, 10:00
Onder andere omdat er in de Randstad meer kinderen worden geboren, groeit de bevolking daar sneller dan in de gebieden eromheen. Netto vertrokken er afgelopen jaar 14.000 mensen.
Woningen en park op plek van rangeerterrein bij Rotterdamse Kuip
12 november, 9:30
Een rangeerterrein voor treinen tegenover stadion De Kuip in Rotterdam verdwijnt. Op de plek worden woningen en een nieuw station gebouwd. Bovendien moet een park naast het spoor worden uitgebreid.
Klimaatdenktank: Chinese CO2-uitstoot laat mogelijk daling zien
12 november, 9:00
De uitstoot van CO2 in China laat over heel dit jaar mogelijk een afname zien. Dat constateert de Finse klimaatdenktank Centre for Research on Energy and Clean Air (CREA).
Ingrid Thijssen wordt nieuwe bestuursvoorzitter TU Delft
11 november, 2:46
Ze bekleedt die functie bij de Delftse technische universiteit vanaf 1 maart volgend jaar.
Ga naar het nieuws-archief
Robert Muis
Redacteur
0
0
0
0
Voor een optimale gebruikservaring plaatst Architectenweb functionele cookies. Wat de verschillende cookies precies doen leggen we uit in een
overzicht
. Cookies van social media kun je optioneel
aanzetten
.
Akkoord
Instellingen
Annuleren
OK
Sluiten
Doorgaan
Inloggen
Maak een gratis persoonlijk account aan
Feedback
Feedback
Wij horen graag jouw feedback. Laat je reactie achter en eventueel jouw e-mail adres.
Reactie
Verstuur