Projecten
Producten
Bedrijven
Vacatures
Agenda
Awards
Podcasts
more_horiz
Videos
Magazine
Thema's
Favorieten
Profiel
Uitloggen
Copyright: Mart Goossens
Copyright: Mart Goossens
Copyright: Mart Goossens
Copyright: Mart Goossens
Copyright: Mart Goossens
Copyright: Mart Goossens
Copyright: Mart Goossens
Copyright: Mart Goossens
Copyright: Mart Goossens
Copyright: Mart Goossens
Copyright: Mart Goossens
Copyright: Mart Goossens
Copyright: Mart Goossens
Copyright: Mart Goossens
Copyright: Mart Goossens
Copyright: Mart Goossens
Copyright: Mart Goossens
Copyright: Mart Goossens
Copyright: Mart Goossens
Copyright: Bureau Fraai
Copyright: Bureau Fraai
Copyright: Bureau Fraai
Copyright: Bureau Fraai
Bureau Fraai presenteert luxe penthouse zonder binnenwanden
10 januari 2023, 15:01
Voor een tot luxueus appartementengebouw getransformeerd kantoorpand heeft
Bureau Fraai
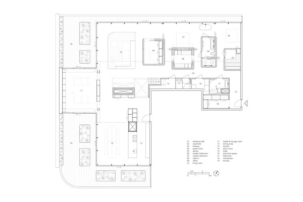
een penthouse ontworpen. Om in de hele woning uitzicht te creëren op de nabijgelegen stad en zee, hebben de architecten ervoor gekozen geen binnenwanden toe te passen. In plaats daarvan heeft de driehonderd vierkante meter grote woning een open plattegrond met vrijstaande eikenhouten volumes.
Bureau Fraai, dat geen andere locatie mag prijsgeven dan ‘ergens aan de Nederlandse kust’, kreeg de opdracht om voor het casco-penthouse een ontwerp te maken dat de weidse uitzichten richting de stad en zee waarborgt. Ook wilden de opdrachtgevers de veranderende kleuren van de seizoenen, de getijden en van de zonsopgang en zonsondergang maximaal kunnen ervaren.
Om deze relatie met de omgeving nog meer te versterken kozen de architecten voor een neutraal basis palet van witte en lichtgrijze kleuren voor vloeren, plafonds en bestaande wanden. De vrijstaande volumes aan de zeezijde verwijzen juist naar de natuurlijke kleuren van de duinen en het strand en zijn daarom gematerialiseerd in licht eikenhout.
Door dit natuurlijke materiaal te kiezen met zijn verfijnde textuur en detaillering krijgt het geheel een warme en aardse
touch
, verklaart Bureau Fraai. Als contrast verwijzen de sobere grijze kleuren in de woonkeuken en de media- en loungeruimte naar de skyline van de stad.
Subtiele scheiding
De vrijstaande houten volumes herbergen privéfuncties zoals hoofdbadkamer, inloopkast, sauna en kantoorruimte. Tegelijkertijd creëren deze volumes een subtiele scheiding tussen de gemeenschappelijke woon- en verkeersruimten en de twee slaapkamers.
Indien nodig kunnen de ruimten van elkaar afgescheiden worden door de beglaasde stalen schuifdeuren te sluiten die volledig zijn geïntegreerd in de houten volumes. ‘s Nachts kunnen rolgordijnen en niet beglaasde schuifdeuren de slaapkamers geheel visueel afsluiten van de rest van het appartement.
Gemeenschappelijke ruimtes
Aan de kopse kant van het penthouse zijn de gemeenschappelijke ruimtes georganiseerd als een driepoot met daarin een verhoogde woonkamer, een media- en loungeruimte en een riante woonkeuken. Al deze ruimten staan in directe verbinding met de buitenterrassen.
In het hart van de woning, die een plafondhoogte van 4,75 meter heeft, is een rechthoekig centraal volume geïntroduceerd waarin de technische ruimte, berging, toilet en gastenbadkamer zijn ondergebracht. Bovenop dit volume is een mezzanine gecreëerd dat naast het herbergen van extra bergruimte uitzicht biedt op het interieur en de wijde omgeving.
Trefwoorden
woning
bureau fraai
penthouse
Best gelezen
1
Den Bosch 'pauzeert' aanbesteding voor ontwerp gebiedsontwikkeling Citadelpoort
maandag, 17 november
2
Expositie in Kunsthal belicht eerdere toeristische periode Rotterdam
dinsdag, 18 november
3
Zelfsluitende Vlotterkering in Steyl vormt tevens 'balkon aan de Maas'
dinsdag, 18 november
4
Het streven naar nieuw is ouderwets
donderdag, 20 november
5
Kleurrijk atrium vormt hart van nieuw internationaal hoofdkantoor NXP
maandag, 17 november
Gerelateerde nieuwsberichten
Een dansende toren van hout
14 december 2023
Uitbreiding met afgeronde luifel voor Eindhovense jarenvijftigvilla
4 november
Bureau Fraai versmelt interieur psychologenpraktijk met monumentale kapel
26 maart 2024
Nominaties Interieur van het Jaar 2023 bekend
2 oktober 2023
Clair-obscurtechniek als inspiratie nieuwe interieurs monumentaal pand
7 juni 2022
Nominaties Kantoorgebouw van het Jaar 2021 bekend
13 september 2021
Kantoorpand refereert aan industrieel verleden Oostenburgereiland
8 juni 2021
Bureau Fraai presenteert opgeleverde Red Ruby op Oostenburgereiland
10 februari 2021
Privéshowroom en bijpassende dakopbouw voor Amsterdams stel
10 september 2020
Kantoormantels van woontorens getransformeerd naar woningen
30 november 2018
Bureau Fraai presenteert herenhuis in oud klooster
24 september 2018
Verffabriek getransformeerd tot Capriole Café
17 januari 2017
Eigentijdse uitbreiding voor boerderijwoning
18 maart 2016
Een dansende toren van hout
14 december 2023
Uitbreiding met afgeronde luifel voor Eindhovense jarenvijftigvilla
4 november
Bureau Fraai versmelt interieur psychologenpraktijk met monumentale kapel
26 maart 2024
Nominaties Interieur van het Jaar 2023 bekend
2 oktober 2023
Clair-obscurtechniek als inspiratie nieuwe interieurs monumentaal pand
7 juni 2022
Nominaties Kantoorgebouw van het Jaar 2021 bekend
13 september 2021
Kantoorpand refereert aan industrieel verleden Oostenburgereiland
8 juni 2021
Bureau Fraai presenteert opgeleverde Red Ruby op Oostenburgereiland
10 februari 2021
Privéshowroom en bijpassende dakopbouw voor Amsterdams stel
10 september 2020
Kantoormantels van woontorens getransformeerd naar woningen
30 november 2018
Bureau Fraai presenteert herenhuis in oud klooster
24 september 2018
Verffabriek getransformeerd tot Capriole Café
17 januari 2017
Eigentijdse uitbreiding voor boerderijwoning
18 maart 2016
Toon alles
Andere nieuwsberichten
Studio for New Realities brengt binnenspel Plaswijckpark onder gevouwen dak
Gisteren, 14:00
Het Plaswijckpark in het noorden van Rotterdam biedt voor kinderen allerlei mogelijkheden om buiten te spelen. Voor dagen met minder goed weer is er nu een tweede paviljoen gerealiseerd met mogelijkheden om binnen te spelen.
Space&Matter ontwerpt ingetogen houten paviljoen voor BSO in Zeist
Gisteren, 09:30
Aan de rand van het dorpscentrum van Zeist, in een door woningen omzoomd binnengebied, ontwerpt Space&Matter een nieuwe buitenschoolse opvang (BSO) en gymzaal.
MoederscheimMoonen Architects benoemt vijf associates
Gisteren, 09:00
Om de basis van het groeiende bureau richting de toekomst te versterken heeft het nu vijf associates benoemd: Aldo Trim, Boy Hoffs, Maarten de Roij, Mike Pennings en Romano van den Dool.
ECHO Urban Design en RoosRos Architecten winnen tender Machinewerf Vlissingen
20 november, 4:30
ECHO Urban Design en RoosRos Architecten zijn samen met partners Leyten, Fullhouse, depart en Steenvlinder door de gemeente Vlissingen geselecteerd als winnende partner voor de ontwikkeling van locatie de Machinewerf in het Scheldekwartier.
Vervoersregio's Rotterdam, Den Haag en Amsterdam willen miljard extra voor OV
Gisteren, 11:29
Volgens burgemeester Jan van Zanen van Den Haag is 500 miljoen euro extra nodig "om niet achteruit te gaan door indexering en bezuinigingen". En nog eens 500 miljoen euro is nodig "om het OV mee te laten groeien met het aantal inwoners.
Mogelijke proef zelfrijdende pendelbussen tussen station Hoofddorp en Schiphol Trade Park
20 november, 2:15
De provincie Noord-Holland onderzoekt of het zelfrijdende pendelbussen zonder chauffeur kan laten rijden in de buurt van Schiphol. Als dit qua veiligheid en techniek haalbaar is, wil de provincie in 2027 een proef starten.
Fietsflat bij Amsterdam Centraal wordt na 25 jaar gesloopt
20 november, 1:45
Voor de door VMX Architects ontworpen fietsenstalling is geen nieuwe plek gevonden. Daarom wordt de 'fietsflat' nu gesloopt.
Maastricht grootste stijger op lijst van beste steden om te wonen
20 november, 1:15
Op de ranglijst van de Atlas voor Gemeenten steeg Maastricht de afgelopen tien jaar van de 40e naar de 34e plek. Amsterdam staat stevig op de 1e plek van de lijst.
Minder infraprojecten gaan door na bezuinigingen Prinsjesdag
20 november, 10:40
Minder infrastructuurprojecten kunnen doorgaan door bezuinigingen die met Prinsjesdag zijn doorgevoerd. Dat staat in antwoorden op Kamervragen over de begroting van het Mobiliteitsfonds.
Om malafide grondspeculatie tegen te gaan, overweegt het kabinet een bedenktijd voor kopers van grond
20 november, 9:00
Grondhandelaren splitsen landbouwgrond vaker op in kleine stukjes en verkopen die dan door aan particulieren. De kopers kunnen dan ten onrechte denken dat de gemeente op de grond wil bouwen, terwijl dat niet zo is.
Ga naar het nieuws-archief
Ronnie Weessies
Redacteur
6
0
0
0
Voor een optimale gebruikservaring plaatst Architectenweb functionele cookies. Wat de verschillende cookies precies doen leggen we uit in een
overzicht
. Cookies van social media kun je optioneel
aanzetten
.
Akkoord
Instellingen
Annuleren
OK
Sluiten
Doorgaan
Inloggen
Maak een gratis persoonlijk account aan
Feedback
Feedback
Wij horen graag jouw feedback. Laat je reactie achter en eventueel jouw e-mail adres.
Reactie
Verstuur