Projecten
Producten
Bedrijven
Vacatures
Agenda
Awards
Podcasts
more_horiz
Videos
Magazine
Favorieten
Profiel
Uitloggen
Abonneer je nu op onze nieuwsbrieven!
Abonneren
Nee, bedankt
Ja, denk met me mee rond de
materialisering van mijn project
Copyright: EDiT / KAAN Architecten
Copyright: EDiT / KAAN Architecten
Copyright: EDiT / KAAN Architecten
Copyright: EDiT / KAAN Architecten
Copyright: EDiT / KAAN Architecten
Copyright: EDiT / KAAN Architecten
Copyright: KAAN Architecten
Copyright: KAAN Architecten
Copyright: KAAN Architecten
Copyright: KAAN Architecten
KAAN Architecten ontwerpt stadsbibliotheek Aalst
6 juli 2016, 16:29
KAAN Architecten
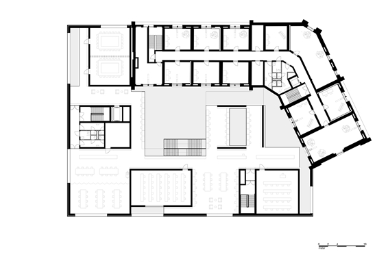
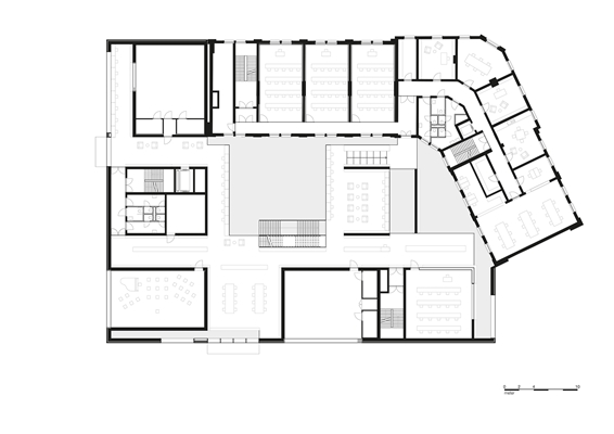
gaat de nieuwe stadsbibliotheek van het Vlaamse Aalst ontwerpen. Het complex, dat in 2018 klaar moet zijn, biedt tevens plek aan de Academie voor podiumkunsten. Het project bestaat uit een combinatie van nieuwbouw en een bestaand gebouw.
Het nieuwe, rechthoekige bouwvolume wordt losjes tegen de achter- en zijkant van het bestaande Pupillengebouw geplaatst. Op die manier krijgt de binnenstad van Aalst, die wordt gekenmerkt door een onregelmatig stratenpatroon en vele pleintjes, er twee nieuwe pleinen bij. Het ene dient als entreegebied voor het cultuurcomplex, op het ander komt het terras van het leescafé.
Het nieuwe bouwdeel is in tegenstelling tot de Pupillenschool gespeend van ornamenten. Ogenschijnlijk willekeurig geplaatste vensters en daklichten moeten het complex levendigheid geven, onder meer door ’s avonds, aansluitend op het verlichtingsconcept voor de binnenstad, licht uit te stralen. Via de vensters zijn tevens doorzichten door het gebouw zichtbaar.
De ogenschijnlijk contrasterende functies (het ‘statische’ lezen versus de ‘beweeglijke’ podiumkunsten) zullen elkaar flankeren in het gebouw. Dit gebeurt ‘op een ideale wijze’, waarbij veel ruimte is voor ontmoeting. Het interieur wordt gedomineerd door een bekleding van hout. Houten boekenkasten, vloeren en lambriseringen moeten bijdragen aan een sfeer van intimiteit.
In de bibliotheek wordt de pers geplaatst van de zestiende-eeuwse humanist, drukker en uitgever Dirk Martens. Hij verspreide aan het begin van die eeuw het beroemde werk Utopia van Thomas More. Een afbeelding van de denkbeeldige heilstaat wordt weergegeven op een muurvlak direct achter een van de grote vensters, meldt KAAN Architecten.
Het project is volgens een Design & Build-constructie aanbesteed aan Groep van Roey. Deze partij heeft een combinatie samengesteld, waarin naast KAAN Architecten ABT, Studiebureau R. Boydens, Util Structuurstudies en Dutch Light Pro zitten.
Trefwoorden
podiumkunsten
aalst
abt
bibliotheek
kaan architecten
Locatie
Best gelezen
1
Woontoren Front door Monadnock wint tiende Architectuurprijs Nijmegen
donderdag, 9 april
2
Spoorwegverleden inspireert ontwerp woonblok Wisselspoor 10 in Utrecht
woensdag, 8 april
3
Rotterdam mag woningen gaan bouwen aan de Parkhaven
woensdag, 8 april
4
KOW wint met Marker Woods tender voor nieuwe wijk Eschmarkerveld
woensdag, 8 april
5
SeARCH en Heutink Groep winnen tender voor woongebouw Sluisbuurt
vrijdag, 10 april
Gerelateerde nieuwsberichten
KAAN Architecten – genomineerd voor de Architect van het Jaar-prijs
9 oktober 2018
Team met KAAN Architecten ontwerpt nieuw havencoördinatiecentrum Antwerpen
17 november 2023
Sergison Bates wint ontwerpwedstrijd kunstenkwartier in Leuven
18 april 2019
Utopia van KAAN Architecten in Aalst geopend
26 juni 2018
KAAN Architecten opent vestiging in Brazilië
28 juni 2017
KAAN verhuisd naar monumentaal De Bank
22 november 2016
Video: binnenkijken bij KAAN Architecten
26 augustus 2016
Rechtbank Zuidas 'gezagwekkend en herkenbaar'
26 mei 2016
KAAN ontwerpt OZC Tilburg University
26 april 2016
KAAN Architecten wint opdracht Paleis Het Loo
8 april 2016
Hoge Raad: één gebouw, twee werelden
6 april 2016
KAAN Architecten – genomineerd voor de Architect van het Jaar-prijs
9 oktober 2018
Team met KAAN Architecten ontwerpt nieuw havencoördinatiecentrum Antwerpen
17 november 2023
Sergison Bates wint ontwerpwedstrijd kunstenkwartier in Leuven
18 april 2019
Utopia van KAAN Architecten in Aalst geopend
26 juni 2018
KAAN Architecten opent vestiging in Brazilië
28 juni 2017
KAAN verhuisd naar monumentaal De Bank
22 november 2016
Video: binnenkijken bij KAAN Architecten
26 augustus 2016
Rechtbank Zuidas 'gezagwekkend en herkenbaar'
26 mei 2016
KAAN ontwerpt OZC Tilburg University
26 april 2016
KAAN Architecten wint opdracht Paleis Het Loo
8 april 2016
Hoge Raad: één gebouw, twee werelden
6 april 2016
Toon alles
Andere nieuwsberichten
Restauratie Atlasbeeld op dak Koninklijk Paleis Amsterdam afgerond
10 april, 3:38
Het beeld op het fronton van het paleis was in juli van zijn plek gehaald voor een uitgebreide onderhoudsbeurt in Antwerpen.
Nieuw zitgebied Lounge 2 Schiphol geïnspireerd door overgangsfase in oeuvre Mondriaan
10 april, 2:16
Op luchthaven Schiphol is de derde en laatste fase van door Beyond Space ontworpen zitgebieden opgeleverd. Net als de eerste twee fases van het project is dit gedeelte geïnspireerd door het werk van Mondriaan, maar dan uit een eerdere periode.
SeARCH en Heutink Groep winnen tender voor woongebouw Sluisbuurt
10 april, 11:15
Gebouw Radius biedt plek aan zo’n honderd appartementen, een stadskamer, een binnentuin, daktuinen en andere gemeenschappelijke ruimtes. Het gebouw wordt gerealiseerd van natuurlijke materialen als hout, stampleem en leemsteen.
Woontoren Front door Monadnock wint tiende Architectuurprijs Nijmegen
9 april, 10:00
“Front is een optimistisch icoon, gemaakt met lef, dat ambachtelijkheid en vakmanschap uitstraalt”, stelt de jury in zijn rapport.
Grote en kleine gemeenten balen van bouwregels Zuid-Holland
10 april, 4:31
Grote en kleine gemeenten in Zuid-Holland hebben hun zorgen geuit over nieuwe regels van de provincie, die volgens hen de woningbouw belemmeren.
Twijfels in Zuid-Holland over halen van doelen landelijk gebied
10 april, 12:18
De meeste partijen in de Zuid-Hollandse politiek hebben twijfels over de plannen die in zestien deelgebieden zijn gemaakt voor de aanpak van het landelijk gebied.
Huurprijzen stijgen harder dan koopwoningprijzen
10 april, 9:31
Volgens Huurwoningen.nl en Pararius moesten nieuwe huurders in het eerste kwartaal gemiddeld 21,12 euro per vierkante meter per maand neerleggen.
ABN AMRO: investeringen defensie vergroten druk op bouwcapaciteit
9 april, 12:29
Kazernes, opslagplaatsen en oefenterreinen dingen om dezelfde aannemers, ingenieurs en installateurs die ook nodig zijn voor bijvoorbeeld woningbouw.
Europa kent 831 miljoen euro subsidie toe aan Utrechtse projecten
9 april, 9:27
Het gaat onder meer om projecten tegen oververhitting van gebouwen, slimmer gebruik van energie en het hergebruik van materialen en grondstoffen.
Rotterdam mag woningen gaan bouwen aan de Parkhaven
8 april, 3:38
De Raad van State maakte woensdag bekend dat alle bezwaren tegen het bestemmingsplan zijn verworpen.
Ga naar het nieuws-archief
0
0
0
0
Voor een optimale gebruikservaring plaatst Architectenweb functionele cookies. Wat de verschillende cookies precies doen leggen we uit in een
overzicht
. Cookies van social media kun je optioneel
aanzetten
.
Akkoord
Instellingen
Annuleren
OK
Sluiten
Doorgaan
Inloggen
Maak een gratis persoonlijk account aan
Feedback
Feedback
Wij horen graag jouw feedback. Laat je reactie achter en eventueel jouw e-mail adres.
Reactie
Verstuur