Projecten
Producten
Bedrijven
Vacatures
Agenda
Awards
Podcasts
more_horiz
Videos
Magazine
Thema's
Favorieten
Profiel
Uitloggen
Abonneer je nu op onze nieuwsbrieven!
Abonneren
Nee, bedankt
Ja, denk met me mee rond de
materialisering van mijn project
Copyright: Simon Menges
Copyright: Simon Menges
Copyright: Simon Menges
Copyright: Simon Menges
Copyright: Simon Menges
Copyright: Simon Menges
Copyright: Simon Menges
Copyright: Simon Menges
Copyright: Simon Menges
Copyright: Simon Menges
Copyright: Simon Menges
Copyright: Simon Menges
Copyright: Simon Menges
Copyright: Simon Menges
Copyright: Simon Menges
Copyright: Simon Menges
Copyright: Simon Menges
Copyright: Simon Menges
Copyright: Simon Menges
Copyright: Simon Menges
Copyright: Simon Menges
Situatie
Copyright: KAAN Architecten
Doorsnede
Copyright: KAAN Architecten
Doorsnede
Copyright: KAAN Architecten
Gevel
Copyright: KAAN Architecten
Gevel
Copyright: KAAN Architecten
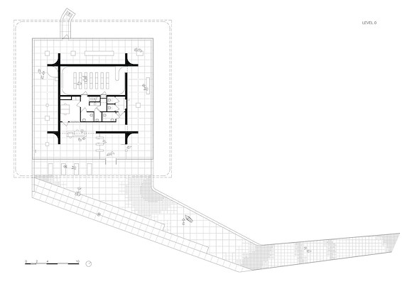
Plattegrond
Copyright: KAAN Architecten
Fragment
Copyright: KAAN Architecten
Bezoekerscentrum Amerikaanse begraafplaats Margraten opent deuren
11 december 2023, 14:32
Maandag wordt het nieuwe bezoekerscentrum van de Amerikaanse begraafplaats in Margraten geopend. Het 600 vierkante meter omvattende gebouw, dat is ontworpen door
KAAN Architecten
, ligt verzonken in een glooiend landschap. Het verzonken gebouw bestaat uit een vierkant volume, dat wordt omlijst door een zwevend gesloten geveldeel van beton.
Dit zwevende deel, door het architectenbureau aangeduid als
fascia
, verleent het bezoekerscentrum zijn identiteit en vertekent de schaal van het gebouw. Lichtspleten tussen de fascia en de luifel rond het gebouw versterken het ruimtelijke effect en de esthetiek van het gelaagde schoonbeton aan de binnenzijde. De fascia wordt gedragen door de vierkante kern van het hoofdvolume.
De Amerikaanse Begraafplaats Margraten (NEAC) uit 1944 is de enige op Nederlands grondgebied en wordt beheerd door de American Battle Monuments Commission (ABMC). De NEAC is oorspronkelijk ontworpen door de Amerikaanse landschapsarchitect Michael Rapuano, beeldhouwer Joseph Kiselewski en architectenbureau Coolidge, Sheply, Bulfinch en Abbott. Zij werkten samen met de lokale architect Alphons Boosten uit Maastricht.
Deel uitmaken van het verhaal
Een van de voorwaarden van opdrachtgever ABMC was dat het nieuwe bezoekerscentrum integraal deel zou gaan uitmaken van het verhaal dat wordt verteld op de NEAC en zou verwijzen naar het ensemble als geheel, met onderdelen als de landschappelijk fraaie begraafplaats en de ‘Court of Honor’ met zijn ‘Chapel Tower’ en de ‘Walls of the Missing’.
Het bezoekerscentrum is op respectvolle afstand van het monumentale ensemble geplaatst, maar maakt tegelijk wel deel uit van het grotere geheel en eist daarbinnen zijn eigen plek op. Het gebouw heeft een eigen voorplein met rijen stenen zitplaatsen. Het plein en het looppad liggen verzonken in het landschap en glooien langzaam naar beneden richting het gebouw.
Lager perspectief
De gevel van het hoofdvolume is geheel van glas. Doordat de vloer iets onder het maaiveld ligt, bezien de bezoekers het omringend terrein met zijn willekeurig verspreide bomen vanuit een lager perspectief. Binnenin het volume liggen een auditorium, dat is bekleed met panelen van Amerikaans notenhout, dienstruimten en toiletten. De expositie vindt plaats op de buitenmuren van de vierkante kern, die 12 bij 12 meter groot is.
“De tentoonstelling van originele artefacten en persoonlijke verhalen brengt de realiteit en het menselijke leed van oorlog dicht bij het publiek, zet aan tot nadenken over de lessen uit het verleden en benadrukt het belang van het werken aan een stabiele en vreedzame toekomst”, laat KAAN Architecten weten.
Karres + Brands landschapsarchitecten
is verantwoordelijk voor het landschapsontwerp.
Trefwoorden
amerikaanse begraafplaats
bezoekerscentrum
margraten
karres en brands landschapsarchitecten
kaan architecten
karres en brands
begraafplaats
Locatie
Best gelezen
1
De Urbanisten schetst perspectief voor vitale en aantrekkelijke Rotterdamse binnenstad
vrijdag, 13 maart
2
Nominaties Amsterdamse Architectuurprijs 2026 bekend
vrijdag, 13 maart
3
Studio Vinke en Loos van Vliet ontwerpen blok met woningen in haven Lelystad
vrijdag, 13 maart
4
Houten Stelthuis van Woonpioniers is aardbevings- en klimaatbestendig
woensdag, 18 maart
5
BureauVanEig verbetert uitstraling Haagse rijtjeswoningen bij verduurzaming
dinsdag, 17 maart
Gerelateerde nieuwsberichten
KAAN Architecten presenteert bezoekerscentrum Amerikaanse Begraafplaats Margraten
23 november 2020
Zeven nominaties BNA Beste Gebouw van het Jaar 2025
31 maart 2025
Francon opent tijdelijke winkelinstallatie 'Scene' in samenwerking met KAAN Architecten
30 november 2023
Team met KAAN Architecten ontwerpt nieuw havencoördinatiecentrum Antwerpen
17 november 2023
Karres en Brands wint prijsvraag voor 183 woningen in Hamburgse nieuwbouwwijk
28 maart 2024
Crematorium met rouwhof voor begraafplaats St. Barbara in Den Haag
25 april 2024
Kees Kaan opgenomen als lid in de Franse Academie van Bouwkunst
17 juni 2024
Bouwvergunning aangevraagd voor Lumière in Rotterdam
28 september 2023
Renovatie en uitbreiding Paleis Het Loo belicht in boek Spiegelingen
20 september 2023
Team met KAAN en DELVA wint tender ‘Poort van de Prijkels’ in Vlaanderen
19 juni 2023
Bouwstart voor gebouw Matchbox van KAAN Architecten
19 maart 2024
Paleis Het Loo – ondergrondse uitbreiding door KAAN Architecten ingepast in barok landschap
18 april 2023
Multifunctioneel gebouw door KAAN Architecten in Parijs opgeleverd
23 juli 2024
Team onder leiding van KAAN Architecten ontwerpt geavanceerd onderzoeksgebouw in Lausanne
18 november 2024
Boeken verschenen over Forum Groningen en rechtbank Amsterdam
7 april 2023
KAAN Architecten presenteert opgeleverd House of Communication München
20 januari 2023
KMSKA heropent na verbouwing van elf jaar
26 september 2022
Schiphol denkt weer na over bouw nieuwe terminal
5 september 2022
Eerste monografie van KAAN Architecten verschenen
24 juni 2022
Eco-museum en Orla Piratininga Park in Rio de Janeiro door team met KAAN Architecten voltooid
27 februari 2025
Zalmhaventorens KAAN Architecten slaan brug tussen hele hoge buur en omgeving
13 mei 2022
KAAN Architecten geselecteerd voor verbouwing Museum Catharijneconvent
20 april 2022
KAAN Architecten breidt bureauleiding uit
18 december 2025
KAAN Architecten presenteert bezoekerscentrum Amerikaanse Begraafplaats Margraten
23 november 2020
Zeven nominaties BNA Beste Gebouw van het Jaar 2025
31 maart 2025
Francon opent tijdelijke winkelinstallatie 'Scene' in samenwerking met KAAN Architecten
30 november 2023
Team met KAAN Architecten ontwerpt nieuw havencoördinatiecentrum Antwerpen
17 november 2023
Karres en Brands wint prijsvraag voor 183 woningen in Hamburgse nieuwbouwwijk
28 maart 2024
Crematorium met rouwhof voor begraafplaats St. Barbara in Den Haag
25 april 2024
Kees Kaan opgenomen als lid in de Franse Academie van Bouwkunst
17 juni 2024
Bouwvergunning aangevraagd voor Lumière in Rotterdam
28 september 2023
Renovatie en uitbreiding Paleis Het Loo belicht in boek Spiegelingen
20 september 2023
Team met KAAN en DELVA wint tender ‘Poort van de Prijkels’ in Vlaanderen
19 juni 2023
Bouwstart voor gebouw Matchbox van KAAN Architecten
19 maart 2024
Paleis Het Loo – ondergrondse uitbreiding door KAAN Architecten ingepast in barok landschap
18 april 2023
Multifunctioneel gebouw door KAAN Architecten in Parijs opgeleverd
23 juli 2024
Team onder leiding van KAAN Architecten ontwerpt geavanceerd onderzoeksgebouw in Lausanne
18 november 2024
Boeken verschenen over Forum Groningen en rechtbank Amsterdam
7 april 2023
KAAN Architecten presenteert opgeleverd House of Communication München
20 januari 2023
KMSKA heropent na verbouwing van elf jaar
26 september 2022
Schiphol denkt weer na over bouw nieuwe terminal
5 september 2022
Eerste monografie van KAAN Architecten verschenen
24 juni 2022
Eco-museum en Orla Piratininga Park in Rio de Janeiro door team met KAAN Architecten voltooid
27 februari 2025
Zalmhaventorens KAAN Architecten slaan brug tussen hele hoge buur en omgeving
13 mei 2022
KAAN Architecten geselecteerd voor verbouwing Museum Catharijneconvent
20 april 2022
KAAN Architecten breidt bureauleiding uit
18 december 2025
Toon alles
Gerelateerde podcasts
Toren van Babel
Gesprek met Aldo Trim over complexe binnenstedelijke hoogbouw
10 april 2025
Andere nieuwsberichten
Projecten gezocht voor vijfde Adriaan Dessingprijs
Vandaag, 14:42
De tweejaarlijkse architectuurprijs vestigt de aandacht op bijzondere, gerealiseerde plannen in de Zuid-Hollandse gemeenten Westland en Midden-Delfland. Het kan gaan om nieuwbouw, restauratie of landschappelijke projecten.
Nora Prins en Floor Marree versterken directie ECHO
Vandaag, 12:24
Met de uitbreiding verstevigt ECHO naar eigen zeggen de aansturing van zowel het ontwerpbureau als de adviespraktijk voor gebiedsontwikkeling.
Luxe appartementengebouw naast klooster Etten-Leur door Studio AAAN klaar
Vandaag, 10:50
Bij klooster ’t Withof in Etten-Leur is afgelopen jaar woongebouw De Hoogschout opgeleverd. Het door Studio AAAN ontworpen complex bestaat uit veertig ruime appartementen.
Hogeschool InHolland realiseert nieuw hoofdgebouw op campus Alkmaar
Gisteren, 15:38
Het gebouw, dat is ontworpen door BRTArchitecten, moet een plek worden waar studenten, docenten en andere betrokkenen samenkomen om te leren, onderzoeken en samenwerken. Spil in het ontwerp vormt een doorlopende verbindende ruimte.
Provincie schrapt beoogde locaties windturbines in Groene Hart
Vandaag, 13:35
De provincie had twaalf plekken op het oog, maar dat leidde tot maatschappelijk en politiek verzet.
Staten Utrecht willen netcongestie versneld aanpakken
Vandaag, 09:44
De fracties wezen op de noodzaak van het zo snel mogelijk realiseren van een hoogspanningsstation dat essentieel is voor het opsplitsen van het elektriciteitsnetwerk tussen de Flevopolder, Gelderland en Utrecht.
Rotterdam wil woningbouw versnellen met pilot ‘Ontwikkelaar aan Zet’
Gisteren, 16:33
De gemeente Rotterdam start een pilot waarbij projectontwikkelaars een grotere rol krijgen bij de voorbereiding van woningbouwprojecten.
Veel meer financieringsaanvragen Warmtefonds om hogere gasprijzen
Gisteren, 14:31
De gestegen gasprijzen zorgen ervoor dat veel meer huiseigenaren financiering aanvragen voor het energiezuiniger maken van hun woning.
Grondprijs voor landbouwgrond loopt op tot bijna een ton
Gisteren, 09:36
Ook overheden en andere partijen zoeken naar grond voor onder meer woningbouw, natuur en infrastructuur.
ANWB: betrek bewoners beter bij parkeerplannen in de wijk
17 maart, 2:00
Bewoners vinden naast parkeerruimte groen en leefbaarheid in hun wijk ook belangrijk, stelt de organisatie.
Ga naar het nieuws-archief
Ronnie Weessies
Redacteur
2
0
0
0
Voor een optimale gebruikservaring plaatst Architectenweb functionele cookies. Wat de verschillende cookies precies doen leggen we uit in een
overzicht
. Cookies van social media kun je optioneel
aanzetten
.
Akkoord
Instellingen
Annuleren
OK
Sluiten
Doorgaan
Inloggen
Maak een gratis persoonlijk account aan
Feedback
Feedback
Wij horen graag jouw feedback. Laat je reactie achter en eventueel jouw e-mail adres.
Reactie
Verstuur