Projecten
Producten
Bedrijven
Vacatures
Agenda
Awards
Podcasts
more_horiz
Videos
Magazine
Thema's
Favorieten
Profiel
Uitloggen
Copyright: Ossip van Duivenbode
Copyright: Ossip van Duivenbode
Copyright: Ossip van Duivenbode
Copyright: Ossip van Duivenbode
Copyright: Ossip van Duivenbode
Copyright: Ossip van Duivenbode
Copyright: Ossip van Duivenbode
Copyright: Ossip van Duivenbode
Copyright: LEVS architecten
Situatie
Copyright: LEVS architecten
Doorsnede
Copyright: LEVS architecten
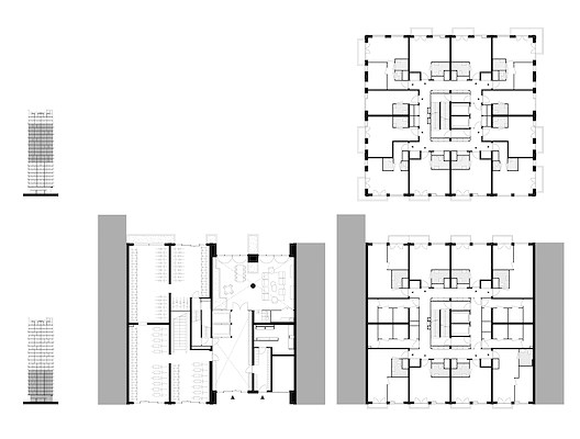
Plattegronden verdiepingen
Copyright: LEVS architecten
Plattegronden kroon
Copyright: LEVS architecten
Indelingsvariatie
Copyright: LEVS architecten
Woontoren voor starters op de Zuidas klaar
29 februari 2024, 17:09
In Amsterdam is een woontoren voor starters van de Zuidas opgeleverd. De door
LEVS architecten
ontworpen toren is tachtig meter hoog en telt 216 sociale huurwoningen van 25 tot 60 vierkante meter. Op het dak is een sportveld gerealiseerd, terwijl zich op de begane grond een gemeenschappelijke ontmoetingsruimte bevindt.
Woontoren Stepstone vormt samen met het nog in aanbouw zijnde hoogbouwcomplex
De Puls
van VMX Architects en MVSA Architects een U-vormig bouwblok rond een ruime gemeenschappelijke binnentuin. Alle drie torens hebben een eigen karakter, maar reageren steeds op de andere twee. Op stedenbouwkundige schaal zet het blok het voor de Zuidas kenmerkende dambordpatroon voort.
In het ontwerp voor Stepstone heeft LEVS gespeeld met de klassieke opbouw van plint, onderbouw, bovenbouw en kroon. Dat resulteert in een lichte, open woontoren met balkons die om het volume heen zijn gedrapeerd. Door variaties in het patroon in de gevel ontstaat een samenhangend geheel dat toch nooit eentonig wordt, stelt het architectenbureau.
Om de gevel een dynamisch beeld te geven, werken de lichtgrijze kaders van de prefab betonelementen samen met groene betonvlakken van alpengroen grind en Noors marmer. Het zorgt voor een wisselend spel van vlakken dat door licht en lucht versterkt wordt.
Gemeenschappelijke ontmoetingsruimte
Aan de straat verbindt een dubbelhoge doorgang de voorzijde met de binnentuin, via de gemeenschappelijke ontmoetingsruimte voor bewoners. In deze collectieve ruimte kunnen bewoners elkaar niet alleen ontmoeten, maar ook activiteiten organiseren of werken.
Op het dak kunnen de bewoners sporten met een spectaculair uitzicht. De gevel eindigt hier aan de voorzijde in een meer formele, rechte kroon, terwijl de façade aan de achterzijde juist trapsgewijs en versprongen afloopt om een zachtere overgang naar het binnenterrein te maken.
De woningen zijn bestemd voor starters tot 28 jaar. Er is veel aandacht besteed aan een slimme indeling van de appartementen, meldt LEVS. Bovendien hebben bijna alle appartementen een balkon, ondanks het feit dat dit niet vereist is. Met het oog op de toekomst zijn de constructie en installaties zo ontworpen dat het mogelijk is de appartementen te transformeren naar grotere woningen.
De toren, die vrijwel volledig uit prefab elementen bestaat, is in 22 maanden tijd opgebouwd.
Trefwoorden
zuidas
hoogbouw
toren
sociale woningbouw
de puls
woningbouw
stepstone
woontoren
levs architecten
Locatie
Best gelezen
1
Den Bosch 'pauzeert' aanbesteding voor ontwerp gebiedsontwikkeling Citadelpoort
maandag, 17 november
2
Expositie in Kunsthal belicht eerdere toeristische periode Rotterdam
dinsdag, 18 november
3
Het streven naar nieuw is ouderwets
donderdag, 20 november
4
Zelfsluitende Vlotterkering in Steyl vormt tevens 'balkon aan de Maas'
dinsdag, 18 november
5
Kleurrijk atrium vormt hart van nieuw internationaal hoofdkantoor NXP
maandag, 17 november
Gerelateerde nieuwsberichten
Bouw The CubeHouse op Amsterdamse Zuidas gestart
8 januari 2024
Team met Being en Space Encounters wint tender Zuidas met plan Ceci
4 april 2024
LEVS architecten – genomineerd voor prijs Architect van het Jaar 2024
23 september 2024
Nominaties Zuiderkerkprijs en Geurt Brinkgreve Bokaal 2024 bekend
14 november 2024
Stepstone en Nationaal Holocaustmuseum bekroond met De Prijzen 2024
11 december 2024
Architectenweb symposium: klein maar fijn wonen?
2 oktober
Zuidasdok kost mogelijk nog 600 tot 800 miljoen extra
21 december 2023
Tilburgs Koningsplein wordt Koningswei
22 mei 2024
'Dit is het moment om een visie te ontwikkelen voor vernieuwing van Buitenveldert’
20 december 2023
LEVS architecten
1 september 2024
Amsterdam zoekt ontwikkelaar voor kavel bij The Pulse en Stepstone
11 juni
Amsterdam tendert blokken naast Valley aan Zuidas
26 april 2023
Kavel 2E Kenniskwartier, Zuidas: acht ontwerpen
8 mei 2024
Team met Mecanoo en BOOM Landscape ontwerpt woongebouw aan Beatrixpark Zuidas
14 december 2022
Consortium TriAX aan de slag met reconstructie knooppunt De Nieuwe Meer
21 november 2022
'Elegant brutalisme' voor nieuw hoofdkantoor Philips aan de Zuidas
27 maart 2024
Woongebouw Podium door LEVS architecten in Amsterdam Nieuw-West klaar
24 september 2024
Valley gefotografeerd door Ossip van Duivenbode
26 oktober 2022
Amsterdam zoekt nieuwe partij voor herbestemming gebouwen Kapel en Convict
20 september 2022
Bouw grootschalig sociale-woningbouwproject in Zuidas gestart
4 april 2022
VMX Architects en DS Landschapsarchitecten ontwerpen eerste woongebouw in wijk Ravel
11 maart 2022
Bouw The Newton in buurt Kop Zuidas gestart
22 november 2021
Metrodek op station Amsterdam Zuid geschoven boven hoofd reizigers
6 augustus 2024
'Kunstbrug' over de Boelegracht aan de Zuidas geopend
19 september 2024
Nudus presenteert ontwerp Matrix Innovation Center op Zuidas
13 november 2024
Bouw van project Fusion in Amsterdam Zuidoost gestart
5 maart
Multifunctioneel complex Valley aan de Zuidas opgeleverd
17 november 2021
Nieuw sportpark en clubhuis AFC in gebruik genomen
6 september 2021
MVRDV presenteert foto's van Tripolis-Park
17 oktober 2024
Station Amsterdam Zuid wacht grote vernieuwing
1 september 2021
Ontwikkelaar Edge verwerft Cross Towers op de Zuidas
11 juli 2024
The Pulse of Amsterdam op de Zuidas officieel opgeleverd
15 november 2024
Video: rechtbank Amsterdam
7 mei 2021
Nieuwe rechtbank van Amsterdam heeft rijke binnenwereld
29 april 2021
Oud kantongerecht Amsterdam wordt verbouwd tot Hartwig Museum
30 januari
LEVS en De Nijs geselecteerd voor houten woongebouw in Purmerend
10 april
V8 Architects presenteert ontwerp transformatieproject PI59
23 april 2021
Amsterdam bouwt 550 woningen op plek sporthallen Zuid
4 maart 2021
Plan voor nieuwe buurt op plek hoofdkantoor ABN AMRO op de Zuidas
10 oktober
Hourglass van Dam & Partners Architecten wint CTBUH Award of Excellence
18 februari 2021
Bouw Crossover op Kop Zuidas gestart
18 februari 2021
Woongebouwen The Gustav op Amsterdamse Zuidas klaar
14 januari 2021
Van der Valk Hotel op Zuidas Amsterdam van Wiel Arets voltooid
30 november 2020
LEVS architecten ontwerpt woontoren voor starters op Zuidas
9 november 2020
Bouw The CubeHouse op Amsterdamse Zuidas gestart
8 januari 2024
Team met Being en Space Encounters wint tender Zuidas met plan Ceci
4 april 2024
LEVS architecten – genomineerd voor prijs Architect van het Jaar 2024
23 september 2024
Nominaties Zuiderkerkprijs en Geurt Brinkgreve Bokaal 2024 bekend
14 november 2024
Stepstone en Nationaal Holocaustmuseum bekroond met De Prijzen 2024
11 december 2024
Architectenweb symposium: klein maar fijn wonen?
2 oktober
Zuidasdok kost mogelijk nog 600 tot 800 miljoen extra
21 december 2023
Tilburgs Koningsplein wordt Koningswei
22 mei 2024
'Dit is het moment om een visie te ontwikkelen voor vernieuwing van Buitenveldert’
20 december 2023
LEVS architecten
1 september 2024
Amsterdam zoekt ontwikkelaar voor kavel bij The Pulse en Stepstone
11 juni
Amsterdam tendert blokken naast Valley aan Zuidas
26 april 2023
Kavel 2E Kenniskwartier, Zuidas: acht ontwerpen
8 mei 2024
Team met Mecanoo en BOOM Landscape ontwerpt woongebouw aan Beatrixpark Zuidas
14 december 2022
Consortium TriAX aan de slag met reconstructie knooppunt De Nieuwe Meer
21 november 2022
'Elegant brutalisme' voor nieuw hoofdkantoor Philips aan de Zuidas
27 maart 2024
Woongebouw Podium door LEVS architecten in Amsterdam Nieuw-West klaar
24 september 2024
Valley gefotografeerd door Ossip van Duivenbode
26 oktober 2022
Amsterdam zoekt nieuwe partij voor herbestemming gebouwen Kapel en Convict
20 september 2022
Bouw grootschalig sociale-woningbouwproject in Zuidas gestart
4 april 2022
VMX Architects en DS Landschapsarchitecten ontwerpen eerste woongebouw in wijk Ravel
11 maart 2022
Bouw The Newton in buurt Kop Zuidas gestart
22 november 2021
Metrodek op station Amsterdam Zuid geschoven boven hoofd reizigers
6 augustus 2024
'Kunstbrug' over de Boelegracht aan de Zuidas geopend
19 september 2024
Nudus presenteert ontwerp Matrix Innovation Center op Zuidas
13 november 2024
Bouw van project Fusion in Amsterdam Zuidoost gestart
5 maart
Multifunctioneel complex Valley aan de Zuidas opgeleverd
17 november 2021
Nieuw sportpark en clubhuis AFC in gebruik genomen
6 september 2021
MVRDV presenteert foto's van Tripolis-Park
17 oktober 2024
Station Amsterdam Zuid wacht grote vernieuwing
1 september 2021
Ontwikkelaar Edge verwerft Cross Towers op de Zuidas
11 juli 2024
The Pulse of Amsterdam op de Zuidas officieel opgeleverd
15 november 2024
Video: rechtbank Amsterdam
7 mei 2021
Nieuwe rechtbank van Amsterdam heeft rijke binnenwereld
29 april 2021
Oud kantongerecht Amsterdam wordt verbouwd tot Hartwig Museum
30 januari
LEVS en De Nijs geselecteerd voor houten woongebouw in Purmerend
10 april
V8 Architects presenteert ontwerp transformatieproject PI59
23 april 2021
Amsterdam bouwt 550 woningen op plek sporthallen Zuid
4 maart 2021
Plan voor nieuwe buurt op plek hoofdkantoor ABN AMRO op de Zuidas
10 oktober
Hourglass van Dam & Partners Architecten wint CTBUH Award of Excellence
18 februari 2021
Bouw Crossover op Kop Zuidas gestart
18 februari 2021
Woongebouwen The Gustav op Amsterdamse Zuidas klaar
14 januari 2021
Van der Valk Hotel op Zuidas Amsterdam van Wiel Arets voltooid
30 november 2020
LEVS architecten ontwerpt woontoren voor starters op Zuidas
9 november 2020
Toon alles
Gerelateerde podcasts
Toren van Babel
Gesprek met Paco Bunnik over hoogbouw op de Zuidas
13 april 2023
Toren van Babel
Gesprek met Diederik Dam over innovatie in hoogbouw
24 maart 2022
Gerelateerde video's
LEVS architecten
Nominatie voor de prijs voor Architect van het Jaar 2024
Andere nieuwsberichten
Studio for New Realities brengt binnenspel Plaswijckpark onder gevouwen dak
21 november, 2:00
Het Plaswijckpark in het noorden van Rotterdam biedt voor kinderen allerlei mogelijkheden om buiten te spelen. Voor dagen met minder goed weer is er nu een tweede paviljoen gerealiseerd met mogelijkheden om binnen te spelen.
Space&Matter ontwerpt ingetogen houten paviljoen voor BSO in Zeist
21 november, 9:30
Aan de rand van het dorpscentrum van Zeist, in een door woningen omzoomd binnengebied, ontwerpt Space&Matter een nieuwe buitenschoolse opvang (BSO) en gymzaal.
MoederscheimMoonen Architects benoemt vijf associates
21 november, 9:00
Om de basis van het groeiende bureau richting de toekomst te versterken heeft het nu vijf associates benoemd: Aldo Trim, Boy Hoffs, Maarten de Roij, Mike Pennings en Romano van den Dool.
ECHO Urban Design en RoosRos Architecten winnen tender Machinewerf Vlissingen
20 november, 4:30
ECHO Urban Design en RoosRos Architecten zijn samen met partners Leyten, Fullhouse, depart en Steenvlinder door de gemeente Vlissingen geselecteerd als winnende partner voor de ontwikkeling van locatie de Machinewerf in het Scheldekwartier.
Vervoersregio's Rotterdam, Den Haag en Amsterdam willen miljard extra voor OV
21 november, 11:29
Volgens burgemeester Jan van Zanen van Den Haag is 500 miljoen euro extra nodig "om niet achteruit te gaan door indexering en bezuinigingen". En nog eens 500 miljoen euro is nodig "om het OV mee te laten groeien met het aantal inwoners.
Mogelijke proef zelfrijdende pendelbussen tussen station Hoofddorp en Schiphol Trade Park
20 november, 2:15
De provincie Noord-Holland onderzoekt of het zelfrijdende pendelbussen zonder chauffeur kan laten rijden in de buurt van Schiphol. Als dit qua veiligheid en techniek haalbaar is, wil de provincie in 2027 een proef starten.
Fietsflat bij Amsterdam Centraal wordt na 25 jaar gesloopt
20 november, 1:45
Voor de door VMX Architects ontworpen fietsenstalling is geen nieuwe plek gevonden. Daarom wordt de 'fietsflat' nu gesloopt.
Maastricht grootste stijger op lijst van beste steden om te wonen
20 november, 1:15
Op de ranglijst van de Atlas voor Gemeenten steeg Maastricht de afgelopen tien jaar van de 40e naar de 34e plek. Amsterdam staat stevig op de 1e plek van de lijst.
Minder infraprojecten gaan door na bezuinigingen Prinsjesdag
20 november, 10:40
Minder infrastructuurprojecten kunnen doorgaan door bezuinigingen die met Prinsjesdag zijn doorgevoerd. Dat staat in antwoorden op Kamervragen over de begroting van het Mobiliteitsfonds.
Om malafide grondspeculatie tegen te gaan, overweegt het kabinet een bedenktijd voor kopers van grond
20 november, 9:00
Grondhandelaren splitsen landbouwgrond vaker op in kleine stukjes en verkopen die dan door aan particulieren. De kopers kunnen dan ten onrechte denken dat de gemeente op de grond wil bouwen, terwijl dat niet zo is.
Ga naar het nieuws-archief
Ronnie Weessies
Redacteur
1
0
0
0
Voor een optimale gebruikservaring plaatst Architectenweb functionele cookies. Wat de verschillende cookies precies doen leggen we uit in een
overzicht
. Cookies van social media kun je optioneel
aanzetten
.
Akkoord
Instellingen
Annuleren
OK
Sluiten
Doorgaan
Inloggen
Maak een gratis persoonlijk account aan
Feedback
Feedback
Wij horen graag jouw feedback. Laat je reactie achter en eventueel jouw e-mail adres.
Reactie
Verstuur