Projecten
Producten
Bedrijven
Vacatures
Agenda
Awards
Podcasts
more_horiz
Videos
Magazine
Favorieten
Profiel
Uitloggen
Abonneer je nu op onze nieuwsbrieven!
Abonneren
Nee, bedankt
Ja, denk met me mee rond de
materialisering van mijn project
Copyright: LEVS architecten
Copyright: LEVS architecten
Copyright: LEVS architecten
Copyright: LEVS architecten
Copyright: LEVS architecten
Copyright: LEVS architecten
Copyright: LEVS architecten
Copyright: LEVS architecten
Copyright: LEVS architecten
Copyright: LEVS architecten
Copyright: LEVS architecten
Copyright: LEVS architecten
Copyright: LEVS architecten
Copyright: LEVS architecten
LEVS architecten ontwerpt woontoren voor starters op Zuidas
9 november 2020, 16:42
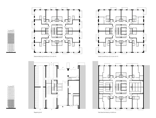
Tussen de Gustav Mahlerlaan en de ringweg A10 op de Amsterdamse komt een woontoren met 216 appartementen voor starters. Het tachtig meter hoge gebouw Stepstone is ontworpen door
LEVS architecten
en maakt deel uit van een nieuwe wijk met 2.700 woningen. De toren krijgt een gevel die deels is ingelegd met groen gerecycled glas.
Tevens zijn alle woningen, ook de allerkleinste van 25 vierkante meter, voorzien van een balkon met uitzicht rondom. De sociale huurappartementen zijn bedoeld voor starters tot 28 jaar; zij mogen er maximaal vijf jaar wonen. De grootste appartementen zijn zestig m² groot, in de kroon bevinden zich maisonettes, zo laat LEVS architecten weten.
De toren maakt deel uit van een toekomstig bouwblok rond een gemeenschappelijke binnentuin en vormt samen met twee torens van het multifunctioneel complex
De Puls
een hoogteaccent binnen dit ensemble. Samen zetten ze het voor de Zuidas kenmerkende dambordpatroon van versprongen hoogbouw voort, aldus het architectenbureau.
Dynamiek
De gevel bestaat uit een samenspel van prefab beton (met overwegen verticale lijnen), de met glas ingelegde geveldelen en de balkons. Op die manier wordt volgens LEVS architecten de statigheid van een stedelijke toren gecombineerd met de dynamiek van een levendige woonbuurt. Het wisselende spel van vlakken zal onder invloed van het licht versterkt worden.
Een dubbelhoge doorgang aan de voorzijde verbindt de straat met de binnentuin aan de achterkant, via een gemeenschappelijke ontmoetingsruimte voor bewoners. Zij kunnen vrij gebruik maken van de ruimte, onder meer om te werken of bijeenkomsten te organiseren. Op het dakterras kunnen ze sporten, waarbij ze dankzij glazen puien een spectaculair uitzicht genieten.
De gevel eindigt hier aan de voorzijde in een meer formele, rechte kroon, terwijl hij aan de achterzijde juist trapsgewijs en versprongen afloopt om een zachtere overgang naar de binnentuin te maken.
De Key
De woningen worden ontwikkeld door woningcorporatie De Key. De bouwstart van de toren staat gepland voor januari 2022, twee jaar later moet het gebouw klaar zijn. LEVS architecten ontwierp op de Zuidas eerder de gebouwen Gershwin Brothers en Square.
Trefwoorden
levs architecten
stepstone
woontoren
zuidas
a10
de puls
Locatie
Best gelezen
1
Genomineerden BNA Beste Gebouw van het Jaar 2026 bekend
dinsdag, 28 april
2
Architectenweb symposium: samenwerken op kantoor
dinsdag, 28 april
3
Bouwvergunning voor torens MVRDV op Tour & Taxis-terrein Brussel
donderdag, 30 april
4
MVRDV en Diamond Schmitt ontwerpen tweede gebouw voor universiteit Toronto
dinsdag, 28 april
5
Groosman heeft 'eigen' Coolse Poort in centrum Rotterdam gerenoveerd
woensdag, 29 april
Gerelateerde nieuwsberichten
GroenLinks wil deel van A10 vervangen door woningen
15 februari 2021
Hourglass van Dam & Partners Architecten wint CTBUH Award of Excellence
18 februari 2021
Team met Mecanoo en BOOM Landscape ontwerpt woongebouw aan Beatrixpark Zuidas
14 december 2022
Woontoren voor starters op de Zuidas klaar
29 februari 2024
LEVS architecten
1 september 2024
Vereniging Eigen Huis wil 10.000 betaalbare starterswoningen per jaar
16 augustus 2022
Lofts in een loods op Cruquiuseiland
12 juli 2022
Bedrijven op de Zuidas gaan 's nachts het licht uitdoen
29 juni 2022
Bouw grootschalig sociale-woningbouwproject in Zuidas gestart
4 april 2022
LEVS architecten presenteert woongebouw De Bocht op Cruquiuseiland
18 maart 2022
Amsterdam tendert complex met woningen bij St. Nicolaaslyceum
17 februari 2022
Multifunctioneel complex Valley aan de Zuidas opgeleverd
17 november 2021
Marianne Loof wordt nieuwe Spoorbouwmeester
2 november 2021
Zuidas in Amsterdam houdt open dag
27 oktober 2021
Station Amsterdam Zuid wacht grote vernieuwing
1 september 2021
Bouw stedelijk woonblok in Amsterdam-Noord naar ontwerp LEVS gestart
28 juni 2021
Groen woongebouw van LEVS voor lege plek in Bijlmermeer
22 juni 2021
Twee nieuwe partners voor LEVS architecten
16 juni 2021
V8 Architects presenteert ontwerp transformatieproject PI59
23 april 2021
Amsterdam bouwt 550 woningen op plek sporthallen Zuid
4 maart 2021
Woongebouwen The Gustav op Amsterdamse Zuidas klaar
14 januari 2021
Amsterdam UMC Imaging Center bekroond als Zorggebouw van het Jaar 2020
28 oktober 2020
Dam & Partners ontwerpt houten kantoorgebouw op Zuidas
28 september 2020
Conservatorium van Amsterdam krijgt dependance op Zuidas
17 september 2020
V8 geeft oud kantoorpand Zuidas oorspronkelijke functie terug
7 juli 2020
Office Winhov smeedt erkers en loggia’s samen in woningen Sud
6 juli 2020
Zuidas krijgt autovrije buurt met 1.350 woningen
1 juli 2020
Kleurrijk metselwerk en ruime terrassen voor woongebouw The George
29 juni 2020
MVRDV: hoofdopzet Valley tot op de millimeter gelijk gebleven
17 april 2020
Zuidasdok mogelijk 1 miljard euro duurder en later klaar
27 maart 2020
Nieuwbouw EMA aan de Zuidas opgeleverd
18 november 2019
Beeldvormende disciplines Amsterdam UMC onder één dak
4 november 2019
Aanleg nieuw sportpark AFC op Zuidas van start
4 juli 2019
GroenLinks wil deel van A10 vervangen door woningen
15 februari 2021
Hourglass van Dam & Partners Architecten wint CTBUH Award of Excellence
18 februari 2021
Team met Mecanoo en BOOM Landscape ontwerpt woongebouw aan Beatrixpark Zuidas
14 december 2022
Woontoren voor starters op de Zuidas klaar
29 februari 2024
LEVS architecten
1 september 2024
Vereniging Eigen Huis wil 10.000 betaalbare starterswoningen per jaar
16 augustus 2022
Lofts in een loods op Cruquiuseiland
12 juli 2022
Bedrijven op de Zuidas gaan 's nachts het licht uitdoen
29 juni 2022
Bouw grootschalig sociale-woningbouwproject in Zuidas gestart
4 april 2022
LEVS architecten presenteert woongebouw De Bocht op Cruquiuseiland
18 maart 2022
Amsterdam tendert complex met woningen bij St. Nicolaaslyceum
17 februari 2022
Multifunctioneel complex Valley aan de Zuidas opgeleverd
17 november 2021
Marianne Loof wordt nieuwe Spoorbouwmeester
2 november 2021
Zuidas in Amsterdam houdt open dag
27 oktober 2021
Station Amsterdam Zuid wacht grote vernieuwing
1 september 2021
Bouw stedelijk woonblok in Amsterdam-Noord naar ontwerp LEVS gestart
28 juni 2021
Groen woongebouw van LEVS voor lege plek in Bijlmermeer
22 juni 2021
Twee nieuwe partners voor LEVS architecten
16 juni 2021
V8 Architects presenteert ontwerp transformatieproject PI59
23 april 2021
Amsterdam bouwt 550 woningen op plek sporthallen Zuid
4 maart 2021
Woongebouwen The Gustav op Amsterdamse Zuidas klaar
14 januari 2021
Amsterdam UMC Imaging Center bekroond als Zorggebouw van het Jaar 2020
28 oktober 2020
Dam & Partners ontwerpt houten kantoorgebouw op Zuidas
28 september 2020
Conservatorium van Amsterdam krijgt dependance op Zuidas
17 september 2020
V8 geeft oud kantoorpand Zuidas oorspronkelijke functie terug
7 juli 2020
Office Winhov smeedt erkers en loggia’s samen in woningen Sud
6 juli 2020
Zuidas krijgt autovrije buurt met 1.350 woningen
1 juli 2020
Kleurrijk metselwerk en ruime terrassen voor woongebouw The George
29 juni 2020
MVRDV: hoofdopzet Valley tot op de millimeter gelijk gebleven
17 april 2020
Zuidasdok mogelijk 1 miljard euro duurder en later klaar
27 maart 2020
Nieuwbouw EMA aan de Zuidas opgeleverd
18 november 2019
Beeldvormende disciplines Amsterdam UMC onder één dak
4 november 2019
Aanleg nieuw sportpark AFC op Zuidas van start
4 juli 2019
Toon alles
Gerelateerde podcasts
Toren van Babel
Gesprek met Paco Bunnik over hoogbouw op de Zuidas
13 april 2023
Gesprek met Jurriaan van Stigt over carbon-based design
2 maart 2023
Andere nieuwsberichten
'Stuttende' en contrasterende installatie voor Besiendershuis Nijmegen
Gisteren, 15:52
Bij het Besiendershuis in Nijmegen is afgelopen maand een door Frank Havermans ontworpen kunstinstallatie geopend. Het bouwwerk is gerealiseerd ter viering van het vijfhonderdjarig jubileum van het bijzondere huis in het centrum van de Keizerstad.
Specht architectuur en stedenbouw toont met meergeneratiehofje alledaagse woongemeenschappelijkheid
Gisteren, 14:25
Het meergeneratiehofje met sociale huurwoningen in Stedum is een bijdrage aan de zoektocht naar alledaagse gemeenschappelijkheid in het wonen in Nederland.
Mobiliteitshub van gerecycled tropisch hardhout voor Tholen
Gisteren, 11:41
In het Zeeuwse Tholen is een mobiliteitshub naar ontwerp van RO&AD Architecten opgeleverd. Het gebouw, dat is geheel is gemaakt van gerecycled tropisch hardhout, fungeert als knooppunt voor bussen en fietsers.
Kleurrijke textielinstallatie van Simone Post voor entreegebied Centraal Museum
Gisteren, 09:05
Voor Patchwork Post heeft ontwerper Simone Post objecten en kunstwerken uit de museumcollectie vertaald naar diverse werken in textiel.
Verzet natuurorganisaties tegen stroomkabel via Schiermonnikoog
Gisteren, 16:39
Negen natuurorganisaties maken zich grote zorgen over het plan om stroom van een nieuw windpark op de Noordzee via Schiermonnikoog aan land te brengen.
ING: huizenprijzen stijgen dit jaar niet verder door hoger aanbod
Gisteren, 13:03
Na jaren van groei is het voor het eerst in lange tijd dat een bank verwacht dat de huizenmarkt niet verder groeit.
TenneT mag datacenteraansluiting uitstellen om vol stroomnet
Gisteren, 10:11
Een projectontwikkelaar van een datacenter bij Schiphol klaagde hierover en spande een kort geding aan.
Brabant investeert 1,4 miljoen in waterfilter in Vlaanderen
30 april, 3:51
Het fosfaatfilter moet vervuild grondwater op een natuurlijke manier zuiveren voordat het naar het Nederlandse natuurgebied de Groote Meer bij Ossendrecht stroomt.
Rli: klimaat, vervuiling en groei bedreigen beschikbaarheid drinkwater
30 april, 12:20
De beschikbaarheid van drinkwater staat ernstig onder druk, waarschuwt de Raad voor de leefomgeving en infrastructuur.
ABN AMRO: huurwetaanpassingen stoppen uittocht beleggers niet
30 april, 9:04
Volgens de onderzoekers onderschat woonminister Boekholt de negatieve effecten van het huidige fiscale beleid.
Ga naar het nieuws-archief
Ronnie Weessies
Redacteur
0
0
0
0
Voor een optimale gebruikservaring plaatst Architectenweb functionele cookies. Wat de verschillende cookies precies doen leggen we uit in een
overzicht
. Cookies van social media kun je optioneel
aanzetten
.
Akkoord
Instellingen
Annuleren
OK
Sluiten
Doorgaan
Inloggen
Maak een gratis persoonlijk account aan
Feedback
Feedback
Wij horen graag jouw feedback. Laat je reactie achter en eventueel jouw e-mail adres.
Reactie
Verstuur