Projecten
Producten
Bedrijven
Vacatures
Agenda
Awards
Podcasts
more_horiz
Videos
Magazine
Thema's
Favorieten
Profiel
Uitloggen
Copyright: William Moore
Copyright: William Moore
Copyright: William Moore
Copyright: Hanne van der Woude
Copyright: Hanne van der Woude
Copyright: Hanne van der Woude
Copyright: Hanne van der Woude
Copyright: Hanne van der Woude
Copyright: Hanne van der Woude
Copyright: Hanne van der Woude
Copyright: Hanne van der Woude
Copyright: Wiegerinck architectuur stedenbouw
Copyright: Wiegerinck architectuur stedenbouw
Copyright: Wiegerinck architectuur stedenbouw
Copyright: Wiegerinck architectuur stedenbouw
Copyright: Wiegerinck architectuur stedenbouw
Copyright: Wiegerinck architectuur stedenbouw
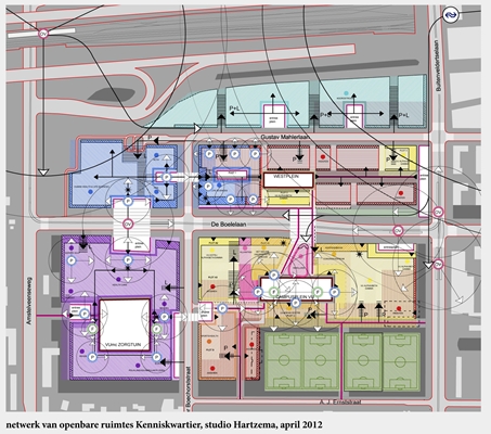
Masterplan voor het nieuwe gebouwenensemble rond de botanische tuin
Copyright: Studio Hartzema
Masterplan voor het nieuwe gebouwenensemble rond de botanische tuin
Copyright: Studio Hartzema
Masterplan voor het nieuwe gebouwenensemble rond de botanische tuin
Copyright: Studio Hartzema
Masterplan voor het nieuwe gebouwenensemble rond de botanische tuin
Copyright: Studio Hartzema
Concept voor de colonnade
Copyright: Studio Hartzema
Beeldvormende disciplines Amsterdam UMC onder één dak
4 november 2019, 14:42
Dit najaar heeft het nieuwe Imaging Center van het Amsterdam UMC zijn deuren geopend. In het gebouw, dat is ontworpen door
Wiegerinck architectuur stedenbouw
, zijn alle ‘beeldvormende activiteiten’ van het fusieziekenhuis gevestigd. Het pand vormt tevens het startpunt van een gebouwenensemble dat onder meer de nieuwe hoofdentree van de locatie VUmc gaat bevatten.
In het Imaging Center zijn de vakgroepen radiologie en nucleaire geneeskunde gehuisvest, evenals het Tracer Center Amsterdam, BV Cycloton VU en het LaserLab Amsterdam. In het gebouw worden verschillende en veelal de nieuwste beeldvormende medische technieken (waaronder bijvoorbeeld MRI-scans en echografie vallen) onder één dak samengebracht.
Door deze functies te combineren met onderzoek en ontwikkeling van medische isotopen en tracers, moeten artsen beter inzicht krijgen in het menselijk lichaam en patiënten ‘op de juiste momenten de juiste behandeling’ kunnen geven. Ook is het Imaging Center bedoeld als een innovatiecentrum voor medische bedrijven, laat Wiegerinck weten.
Om kennisuitwisseling en innovatie te stimuleren, zijn ontmoeting, communicatie en samenwerking centrale thema’s in het ontwerp. Mede met het oog op de patiënten die er komen, spelen zaken als
healing environment
, korte looplijnen en heldere logistieke afwikkeling eveneens een voorname rol.
Eilanden
Het Imaging Center beschikt over vervoers- en verblijfsruimten met veel uitzicht en daglicht. De onderzoekfuncties zijn per beeldtechniek samengebracht in zogenaamde eilanden die een besloten karakter hebben.
Dit zorgt volgens Wiegerinck niet alleen voor een overzichtelijke indeling, maar biedt ook de mogelijkheid om zoneringen aan te brengen. Dankzij deze zoneringen kunnen personeel en patiënten weer worden gescheiden binnen de eilanden.
De grote verscheidenheid aan gebruikers en (vaak zware) apparatuur maakten een flexibel gebouw noodzakelijk. Het pand is rond een robuust casco ontworpen en biedt veel flexibiliteit qua invulling van ruimtes en positionering van apparatuur.
“Onderzoeksruimtes en laboratoria en kantoren zijn eenvoudig uitwisselbaar. Het inbrengen of vervangen van nieuwe scanapparatuur is mogelijk door het uitnemen van het glas in de gevel, zodat de overlast voor patiënt en personeel tot een minimum beperkt wordt”, aldus Wiegerinck.
Levend organisme
De architecten vergelijken het gebouw, mede vanwege de programmatische complexiteit, met een levend organisme. De gevel wordt hierbij voorgesteld als de ‘huid’, bestaande uit betonnen kaders en royale glazen puien. Het glas is voorzien van een semitransparante print, die privacy waarborgt en voor subtiele inkijkjes in het interieur zorgt.
Het pand is BREEAM Very Good-gecertificeerd en kan in de toekomst eventueel worden uitgebreid met extra bouwlagen, meldt Wiegerinck.
Gebouwenensemble
Het Imaging Center is het eerste opgeleverde onderdeel van een nieuw gebouwenensemble rond de bestaande botanische tuin van de locatie VUmc.
Studio Hartzema
ontwierp het masterplan (zie beeldenslider boven dit bericht) voor dit nieuwe deel van de campus die wordt gerealiseerd.
Het eveneens door Studio Hartzema ontworpen, naast het Imaging Center gelegen gebouw
Atrium
gaat fungeren als de nieuwe hoofdentree van het ziekenhuis en toegang vanaf de straat tot de binnentuin.
Naast het Atrium wordt het nieuwe
Research & Diagnostiek Centrum
van het Amsterdam UMC (naar een ontwerp van Atelier PRO) gerealiseerd. Over de invulling van de andere bebouwing rond de tuin is nog geen definitief besluit genomen. Alle gebouwen worden verbonden door een doorlopende en twee verdiepingen tellende colonnade vanaf het maaiveld en een ondergrondse logistieke gang.
Trefwoorden
amsterdam umc
zuidas
studio hartzema
zorg
wiegerinck architectuur stedenbouw
ziekenhuis
amsterdam
vumc
wiegerinck
atelier pro
Locatie
Best gelezen
1
Den Bosch 'pauzeert' aanbesteding voor ontwerp gebiedsontwikkeling Citadelpoort
maandag, 17 november
2
Expositie in Kunsthal belicht eerdere toeristische periode Rotterdam
dinsdag, 18 november
3
Zelfsluitende Vlotterkering in Steyl vormt tevens 'balkon aan de Maas'
dinsdag, 18 november
4
Kleurrijk atrium vormt hart van nieuw internationaal hoofdkantoor NXP
maandag, 17 november
5
Het streven naar nieuw is ouderwets
donderdag, 20 november
Gerelateerde nieuwsberichten
Wiegerinck: zes discussiepunten voor een nog betere gezondheidszorg
24 maart 2020
Wiegerinck geeft voorzet voor 'coronaproof' ziekenhuizen
16 juli 2020
Eerste gerenoveerde verpleegafdelingen Amsterdam UMC in gebruik
4 november 2021
Gebouw voor gecombineerd oncologisch en neurologisch onderzoek op Zuidas klaar
9 december 2024
Renovatie en nieuwbouw Emma Huis Amsterdam UMC van start
28 juni 2023
Appartementengebouwen geïnspireerd door en gebouwd in de duinen
7 oktober 2021
Studio Hartzema presenteert plannen voor een nieuwe stad in Zeeland
21 mei
Research en Diagnostiek Centrum Adore op Zuidas in gebruik genomen
14 juli
Wiegerinck presenteert ontwerp voor VUmc
21 januari 2016
Nieuw Diagnostisch Centrum voor VUmc
27 april 2012
Nieuw Cancer Center VUmc geopend
29 september 2011
Nieuw multifunctioneel complex langs A10 Zuidas
23 september 2019
O|2-gebouw VU Amsterdam is opgeleverd
4 juni 2015
Nieuwbouw Amphia Ziekenhuis in gebruik genomen
6 december 2019
Schuurvormige uitbreiding voor hoofdkantoor diergeneticabedrijf
2 maart 2020
Wiegerinck geselecteerd voor vernieuwbouw Diakonessenhuis Utrecht
8 mei 2020
Kleurrijk metselwerk en ruime terrassen voor woongebouw The George
29 juni 2020
Zuidas krijgt autovrije buurt met 1.350 woningen
1 juli 2020
Atelier PRO wint selectie herinrichting Berlage Lyceum
7 juli 2020
V8 geeft oud kantoorpand Zuidas oorspronkelijke functie terug
7 juli 2020
Nieuw Slingeland Ziekenhuis 'te gast in het landschap'
13 juli 2020
Conservatorium van Amsterdam krijgt dependance op Zuidas
17 september 2020
Dam & Partners ontwerpt houten kantoorgebouw op Zuidas
28 september 2020
Amsterdam UMC Imaging Center bekroond als Zorggebouw van het Jaar 2020
28 oktober 2020
LEVS architecten ontwerpt woontoren voor starters op Zuidas
9 november 2020
Wiegerinck ontwerpt Van der Valk-hotel in Midden-Delfland
6 april 2021
V8 Architects presenteert ontwerp transformatieproject PI59
23 april 2021
Wiegerinck ontwerpt nieuwbouw SInt Jans Gasthuis Weert
15 oktober 2021
Multifunctioneel complex Valley aan de Zuidas opgeleverd
17 november 2021
Wiegerinck ontwerpt nieuwe ambulancepost voor Amsterdam UMC
29 augustus 2022
Wiegerinck: zes discussiepunten voor een nog betere gezondheidszorg
24 maart 2020
Wiegerinck geeft voorzet voor 'coronaproof' ziekenhuizen
16 juli 2020
Eerste gerenoveerde verpleegafdelingen Amsterdam UMC in gebruik
4 november 2021
Gebouw voor gecombineerd oncologisch en neurologisch onderzoek op Zuidas klaar
9 december 2024
Renovatie en nieuwbouw Emma Huis Amsterdam UMC van start
28 juni 2023
Appartementengebouwen geïnspireerd door en gebouwd in de duinen
7 oktober 2021
Studio Hartzema presenteert plannen voor een nieuwe stad in Zeeland
21 mei
Research en Diagnostiek Centrum Adore op Zuidas in gebruik genomen
14 juli
Wiegerinck presenteert ontwerp voor VUmc
21 januari 2016
Nieuw Diagnostisch Centrum voor VUmc
27 april 2012
Nieuw Cancer Center VUmc geopend
29 september 2011
Nieuw multifunctioneel complex langs A10 Zuidas
23 september 2019
O|2-gebouw VU Amsterdam is opgeleverd
4 juni 2015
Nieuwbouw Amphia Ziekenhuis in gebruik genomen
6 december 2019
Schuurvormige uitbreiding voor hoofdkantoor diergeneticabedrijf
2 maart 2020
Wiegerinck geselecteerd voor vernieuwbouw Diakonessenhuis Utrecht
8 mei 2020
Kleurrijk metselwerk en ruime terrassen voor woongebouw The George
29 juni 2020
Zuidas krijgt autovrije buurt met 1.350 woningen
1 juli 2020
Atelier PRO wint selectie herinrichting Berlage Lyceum
7 juli 2020
V8 geeft oud kantoorpand Zuidas oorspronkelijke functie terug
7 juli 2020
Nieuw Slingeland Ziekenhuis 'te gast in het landschap'
13 juli 2020
Conservatorium van Amsterdam krijgt dependance op Zuidas
17 september 2020
Dam & Partners ontwerpt houten kantoorgebouw op Zuidas
28 september 2020
Amsterdam UMC Imaging Center bekroond als Zorggebouw van het Jaar 2020
28 oktober 2020
LEVS architecten ontwerpt woontoren voor starters op Zuidas
9 november 2020
Wiegerinck ontwerpt Van der Valk-hotel in Midden-Delfland
6 april 2021
V8 Architects presenteert ontwerp transformatieproject PI59
23 april 2021
Wiegerinck ontwerpt nieuwbouw SInt Jans Gasthuis Weert
15 oktober 2021
Multifunctioneel complex Valley aan de Zuidas opgeleverd
17 november 2021
Wiegerinck ontwerpt nieuwe ambulancepost voor Amsterdam UMC
29 augustus 2022
Toon alles
Andere nieuwsberichten
Studio for New Realities brengt binnenspel Plaswijckpark onder gevouwen dak
Gisteren, 14:00
Het Plaswijckpark in het noorden van Rotterdam biedt voor kinderen allerlei mogelijkheden om buiten te spelen. Voor dagen met minder goed weer is er nu een tweede paviljoen gerealiseerd met mogelijkheden om binnen te spelen.
Space&Matter ontwerpt ingetogen houten paviljoen voor BSO in Zeist
Gisteren, 09:30
Aan de rand van het dorpscentrum van Zeist, in een door woningen omzoomd binnengebied, ontwerpt Space&Matter een nieuwe buitenschoolse opvang (BSO) en gymzaal.
MoederscheimMoonen Architects benoemt vijf associates
Gisteren, 09:00
Om de basis van het groeiende bureau richting de toekomst te versterken heeft het nu vijf associates benoemd: Aldo Trim, Boy Hoffs, Maarten de Roij, Mike Pennings en Romano van den Dool.
ECHO Urban Design en RoosRos Architecten winnen tender Machinewerf Vlissingen
20 november, 4:30
ECHO Urban Design en RoosRos Architecten zijn samen met partners Leyten, Fullhouse, depart en Steenvlinder door de gemeente Vlissingen geselecteerd als winnende partner voor de ontwikkeling van locatie de Machinewerf in het Scheldekwartier.
Vervoersregio's Rotterdam, Den Haag en Amsterdam willen miljard extra voor OV
Gisteren, 11:29
Volgens burgemeester Jan van Zanen van Den Haag is 500 miljoen euro extra nodig "om niet achteruit te gaan door indexering en bezuinigingen". En nog eens 500 miljoen euro is nodig "om het OV mee te laten groeien met het aantal inwoners.
Mogelijke proef zelfrijdende pendelbussen tussen station Hoofddorp en Schiphol Trade Park
20 november, 2:15
De provincie Noord-Holland onderzoekt of het zelfrijdende pendelbussen zonder chauffeur kan laten rijden in de buurt van Schiphol. Als dit qua veiligheid en techniek haalbaar is, wil de provincie in 2027 een proef starten.
Fietsflat bij Amsterdam Centraal wordt na 25 jaar gesloopt
20 november, 1:45
Voor de door VMX Architects ontworpen fietsenstalling is geen nieuwe plek gevonden. Daarom wordt de 'fietsflat' nu gesloopt.
Maastricht grootste stijger op lijst van beste steden om te wonen
20 november, 1:15
Op de ranglijst van de Atlas voor Gemeenten steeg Maastricht de afgelopen tien jaar van de 40e naar de 34e plek. Amsterdam staat stevig op de 1e plek van de lijst.
Minder infraprojecten gaan door na bezuinigingen Prinsjesdag
20 november, 10:40
Minder infrastructuurprojecten kunnen doorgaan door bezuinigingen die met Prinsjesdag zijn doorgevoerd. Dat staat in antwoorden op Kamervragen over de begroting van het Mobiliteitsfonds.
Om malafide grondspeculatie tegen te gaan, overweegt het kabinet een bedenktijd voor kopers van grond
20 november, 9:00
Grondhandelaren splitsen landbouwgrond vaker op in kleine stukjes en verkopen die dan door aan particulieren. De kopers kunnen dan ten onrechte denken dat de gemeente op de grond wil bouwen, terwijl dat niet zo is.
Ga naar het nieuws-archief
Ronnie Weessies
Redacteur
0
0
0
0
Voor een optimale gebruikservaring plaatst Architectenweb functionele cookies. Wat de verschillende cookies precies doen leggen we uit in een
overzicht
. Cookies van social media kun je optioneel
aanzetten
.
Akkoord
Instellingen
Annuleren
OK
Sluiten
Doorgaan
Inloggen
Maak een gratis persoonlijk account aan
Feedback
Feedback
Wij horen graag jouw feedback. Laat je reactie achter en eventueel jouw e-mail adres.
Reactie
Verstuur