Projecten
Producten
Bedrijven
Vacatures
Agenda
Awards
Podcasts
more_horiz
Videos
Magazine
Favorieten
Profiel
Uitloggen
Abonneer je nu op onze nieuwsbrieven!
Abonneren
Nee, bedankt
Ja, denk met me mee rond de
materialisering van mijn project
Copyright: Madalina Baghiceanu
Copyright: Madalina Baghiceanu
Copyright: Madalina Baghiceanu
Copyright: Madalina Baghiceanu
Copyright: Madalina Baghiceanu
Copyright: Madalina Baghiceanu
Copyright: Mark aan den Brink
Copyright: Madalina Baghiceanu
Copyright: Madalina Baghiceanu
Copyright: Madalina Baghiceanu
Copyright: Madalina Baghiceanu
Copyright: Madalina Baghiceanu
Copyright: Madalina Baghiceanu
Copyright: Madalina Baghiceanu
Copyright: Madalina Baghiceanu
Copyright: Madalina Baghiceanu
Copyright: Atelier PRO
Copyright: Atelier PRO
Copyright: Atelier PRO
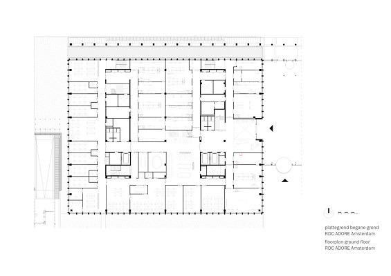
Research en Diagnostiek Centrum Adore op Zuidas in gebruik genomen
14 juli 2025, 10:00
Op 14 mei 2025 is het Research en Diagnostiek Centrum (RDC) Adore op de Zuidas officieel geopend door koningin Máxima. Het 23.000 m
2
omvattend complex voor het Amsterdam UMC, waarin gecombineerd oncologisch en neurologisch onderzoek plaatsvindt, is ontworpen door
Atelier PRO
. Het gebouw kent een mix van kantoren en laboratoria, die dankzij de flexibele opzet op verschillende manieren kunnen worden ingedeeld.
Adore staat naast het in 2019 opgeleverde Amsterdam UMC
Imaging Center
en is daar via een door Studio Hartzema ontworpen
glazen atrium
mee verbonden. In het complex werken meer dan tweeduizend oncologen en neurologen samen aan nieuwe en betere behandelingen tegen kanker en hersenziekten. Behalve laboratoria en kantoren bevat het gebouw publieksvoorzieningen.
Adore ligt centraal binnen de VU-campus, pal naast de Botanische Tuin Zuidas, en is onderdeel van een grotere, toekomstige uitbreiding van het medisch centrum van de Vrije Universiteit. Het pand zal onderdeel vormen van een gebouwenensemble waarin onder meer de toekomstige hoofdentree van de campus komt te liggen.
Atelier PRO heeft het gebouw in overleg met de gebruikers ingedeeld met concentratiewerkplekken, overlegwerkplekken, open werkplekken en kantoorvertrekken. Door deze mix kunnen onderzoekers snel schakelen van onderzoek in een laboratorium naar het werken aan een bureau, verklaren de architecten.
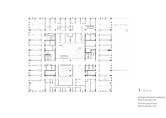
Centrale ontmoetingsplek
Het hart van RDC Adore bevindt zich op de tweede verdieping, in de vorm van een vier lagen hoge patio met een glazen dak. Dit binnenhof fungeert als de centrale ontmoetingsplek en brengt licht, lucht en ruimte tot diep in het gebouw. De vier verdiepingen worden verbonden door een in het oog springende wenteltrap, waarvan de organische vorm contrasteert met de lineaire opzet van het gebouw. Op de tweede verdieping ligt een flexibele congreszaal, waarvan het formaat kan worden aangepast aan de grootte van de groep die er bijeenkomt.
Het gebouw heeft een robuuste en open uitstraling. Zowel de kantoren als de laboratoria hebben licht en uitzicht door toepassing van veel glas. De gevels zijn ontworpen als een raamwerk van zandkleurig glasvezelversterkt beton, afgewisseld met parelgrijs aluminium, waarbij er een subtiel verschil is gemaakt tussen de gevels van de kantoren en die van de labs.
Aan de westzijde is als onderdeel van het grotere masterplan een colonnade in het gebouw opgenomen, die doorloopt rondom de binnentuin. In het interieur van RDC Adore koos Atelier PRO voor ingetogen kleuren en materialen; lichte tinten zorgen in combinatie met hout voor een rustige en warme sfeer.
Warmte- en koudeopslag
RDC Adore is het eerste gebouw van het Amsterdam UMC dat een warmte- en koudeopslag heeft. Die ligt in de kelder van het gebouw, waar verder een transportstraat is aangelegd en speciale ruimtes voor pathologisch onderzoek zijn gerealiseerd. Het dak wordt gebruikt voor zonnepanelen en als waterbuffer. De gevel is uitgevoerd in glasvezelversterkt beton, een lichtgewicht materiaal met een kleinere CO
2
-footprint dan regulier beton.
In de gevel is low-carbon glas gebruikt, een materiaal dat zoveel mogelijk is gemaakt van gerecyclede glasscherven. Alle energiebesparende maatregelen in het gebouw zorgen ervoor dat de CO
2
-uitstoot van het gebouw met veertig procent is vermindert ten opzichte van de huidige nieuwbouweisen, meldt Atelier PRO.
Adore is een creatieve afkorting van Amsterdam Oncology and Neuroscience Research. Het RDC kon onder meer gerealiseerd worden dankzij een financiële bijdrage van negen miljoen euro van de Nederlandse Organisatie voor Wetenschappelijk Onderzoek (NWO).
Trefwoorden
adore
zuidas
amsterdam
atelier pro
umc
Locatie
Best gelezen
1
Bouw van twee woontorens De Havenmeesters in Den Haag gestart
vrijdag, 3 april
2
Studio AAAN zoekt met Hillehuis aansluiting bij architectuur Beijerlandselaan
vrijdag, 3 april
3
Spoorwegverleden inspireert ontwerp woonblok Wisselspoor 10 in Utrecht
woensdag, 8 april
4
Woontoren Front door Monadnock wint tiende Architectuurprijs Nijmegen
donderdag, 9 april
5
Rotterdam mag woningen gaan bouwen aan de Parkhaven
woensdag, 8 april
Gerelateerde nieuwsberichten
Universitair Centrum Psychiatrie UMCG bekroond als Zorggebouw van het Jaar 2024
6 november 2024
Behandelcentrum van atelier PRO is poortgebouw voor wijk
12 september 2025
Schreuder College door Atelier PRO: een gewone school voor speciaal onderwijs
31 maart 2025
Plan voor nieuwe buurt op plek hoofdkantoor ABN AMRO op de Zuidas
10 oktober 2025
Renovatie eerste gebouw Berlage Lyceum Amsterdam afgerond
26 februari 2025
Gebouw voor gecombineerd oncologisch en neurologisch onderzoek op Zuidas klaar
9 december 2024
Universitair Centrum Psychiatrie in Groningen opent zijn deuren
4 juli 2024
Beeldbepalende toren van oud laboratorium geïntegreerd in gebouw International School Delft
17 november 2025
Woongebouw De Scheepmaker wint Lieven de Key Penning 2023
22 november 2023
EDGE Stadium Amsterdam na twee jaar opgeleverd
6 april 2023
Atelier PRO ontwierp gezamenlijk gebouw voor twee scholen op bijzondere plek
23 augustus 2022
Vernieuwd onderkomen Rudolf Steiner School en College in gebruik genomen
21 juni 2022
Eerste paal Universitair Centrum voor Psychiatrie Groningen geslagen
29 april 2022
Atelier PRO ontwerpt extra route door uitgebreid universiteitsmuseum
6 januari 2022
Spaarndammerhart en British School winnaars Amsterdamse architectuurprijzen
9 december 2021
Introverte gevangenis opent zich als veilig en prettig schoolgebouw
23 november 2021
Appartementengebouwen geïnspireerd door en gebouwd in de duinen
7 oktober 2021
Nominaties Schoolgebouw van het Jaar 2021 bekend
20 september 2021
Atelier PRO één van de winnaars bij internationale prijsvraag in Moskou
29 juni 2021
Nieuw leven voor Forum-gebouw als EDGE Stadium
9 december 2020
Landelijk en aardbevingsbestendig kindcentrum door atelier PRO afgerond
3 december 2020
Atelier PRO presenteert verbouwd en uitgebreid Allard Pierson
14 oktober 2020
Nieuw interieurontwerp van Zenber voor bestaand schoolgebouw
28 september 2020
Atelier PRO ontwerpt woongebouw voor Internationale School Moskou
29 juli 2020
Atelier PRO wint selectie herinrichting Berlage Lyceum
7 juli 2020
Atelier PRO ontwerpt een Kunskapsskolan voor 1300 leerlingen in Amsterdam
7 november 2019
Beeldvormende disciplines Amsterdam UMC onder één dak
4 november 2019
Verbouwing Allard Pierson van start gegaan
15 juli 2019
Hedendaags ‘landgoed’ naar ontwerp Buro Sant en Co en Atelier Pro
27 juni 2019
Verslag van netwerkevent rond woonzorg
10 mei 2019
Woonzorgcentrum Scheldehof (atelier PRO) bekroond als Zorggebouw van het Jaar 2018
8 november 2018
Universitair Centrum Psychiatrie UMCG bekroond als Zorggebouw van het Jaar 2024
6 november 2024
Behandelcentrum van atelier PRO is poortgebouw voor wijk
12 september 2025
Schreuder College door Atelier PRO: een gewone school voor speciaal onderwijs
31 maart 2025
Plan voor nieuwe buurt op plek hoofdkantoor ABN AMRO op de Zuidas
10 oktober 2025
Renovatie eerste gebouw Berlage Lyceum Amsterdam afgerond
26 februari 2025
Gebouw voor gecombineerd oncologisch en neurologisch onderzoek op Zuidas klaar
9 december 2024
Universitair Centrum Psychiatrie in Groningen opent zijn deuren
4 juli 2024
Beeldbepalende toren van oud laboratorium geïntegreerd in gebouw International School Delft
17 november 2025
Woongebouw De Scheepmaker wint Lieven de Key Penning 2023
22 november 2023
EDGE Stadium Amsterdam na twee jaar opgeleverd
6 april 2023
Atelier PRO ontwierp gezamenlijk gebouw voor twee scholen op bijzondere plek
23 augustus 2022
Vernieuwd onderkomen Rudolf Steiner School en College in gebruik genomen
21 juni 2022
Eerste paal Universitair Centrum voor Psychiatrie Groningen geslagen
29 april 2022
Atelier PRO ontwerpt extra route door uitgebreid universiteitsmuseum
6 januari 2022
Spaarndammerhart en British School winnaars Amsterdamse architectuurprijzen
9 december 2021
Introverte gevangenis opent zich als veilig en prettig schoolgebouw
23 november 2021
Appartementengebouwen geïnspireerd door en gebouwd in de duinen
7 oktober 2021
Nominaties Schoolgebouw van het Jaar 2021 bekend
20 september 2021
Atelier PRO één van de winnaars bij internationale prijsvraag in Moskou
29 juni 2021
Nieuw leven voor Forum-gebouw als EDGE Stadium
9 december 2020
Landelijk en aardbevingsbestendig kindcentrum door atelier PRO afgerond
3 december 2020
Atelier PRO presenteert verbouwd en uitgebreid Allard Pierson
14 oktober 2020
Nieuw interieurontwerp van Zenber voor bestaand schoolgebouw
28 september 2020
Atelier PRO ontwerpt woongebouw voor Internationale School Moskou
29 juli 2020
Atelier PRO wint selectie herinrichting Berlage Lyceum
7 juli 2020
Atelier PRO ontwerpt een Kunskapsskolan voor 1300 leerlingen in Amsterdam
7 november 2019
Beeldvormende disciplines Amsterdam UMC onder één dak
4 november 2019
Verbouwing Allard Pierson van start gegaan
15 juli 2019
Hedendaags ‘landgoed’ naar ontwerp Buro Sant en Co en Atelier Pro
27 juni 2019
Verslag van netwerkevent rond woonzorg
10 mei 2019
Woonzorgcentrum Scheldehof (atelier PRO) bekroond als Zorggebouw van het Jaar 2018
8 november 2018
Toon alles
Andere nieuwsberichten
Nieuw zitgebied Lounge 2 Schiphol geïnspireerd door overgangsfase in oeuvre Mondriaan
20 minuten geleden
Op luchthaven Schiphol is de derde en laatste fase van door Beyond Space ontworpen zitgebieden opgeleverd. Net als de eerste twee fases van het project is dit gedeelte geïnspireerd door het werk van Mondriaan, maar dan uit een eerdere periode.
SeARCH en Heutink Groep winnen tender voor woongebouw Sluisbuurt
3 uur geleden
Gebouw Radius biedt plek aan zo’n honderd appartementen, een stadskamer, een binnentuin, daktuinen en andere gemeenschappelijke ruimtes. Het gebouw wordt gerealiseerd van natuurlijke materialen als hout, stampleem en leemsteen.
Woontoren Front door Monadnock wint tiende Architectuurprijs Nijmegen
Gisteren, 22:00
“Front is een optimistisch icoon, gemaakt met lef, dat ambachtelijkheid en vakmanschap uitstraalt”, stelt de jury in zijn rapport.
Architectenweb symposium: samenwerken op kantoor
Gisteren, 16:50
Op dinsdagavond 12 mei 2026 organiseert Architectenweb in samenwerking met YNNO en Pakhuis de Zwijger een symposium rond de ontwikkeling om kantooromgevingen nadrukkelijker in te richten op onderlinge samenwerking.
Twijfels in Zuid-Holland over halen van doelen landelijk gebied
2 uur geleden
De meeste partijen in de Zuid-Hollandse politiek hebben twijfels over de plannen die in zestien deelgebieden zijn gemaakt voor de aanpak van het landelijk gebied.
Huurprijzen stijgen harder dan koopwoningprijzen
Vandaag, 09:31
Volgens Huurwoningen.nl en Pararius moesten nieuwe huurders in het eerste kwartaal gemiddeld 21,12 euro per vierkante meter per maand neerleggen.
ABN AMRO: investeringen defensie vergroten druk op bouwcapaciteit
Gisteren, 12:29
Kazernes, opslagplaatsen en oefenterreinen dingen om dezelfde aannemers, ingenieurs en installateurs die ook nodig zijn voor bijvoorbeeld woningbouw.
Europa kent 831 miljoen euro subsidie toe aan Utrechtse projecten
Gisteren, 09:27
Het gaat onder meer om projecten tegen oververhitting van gebouwen, slimmer gebruik van energie en het hergebruik van materialen en grondstoffen.
Rotterdam mag woningen gaan bouwen aan de Parkhaven
8 april, 3:38
De Raad van State maakte woensdag bekend dat alle bezwaren tegen het bestemmingsplan zijn verworpen.
Pensioenfonds ABP investeert fors in huurwoningen senioren
8 april, 9:34
Pensioenfonds ABP en vermogensbeheerder CBRE Investment Management investeren 350 miljoen in de bouw van nieuwe huurwoningen voor senioren.
Ga naar het nieuws-archief
0
0
0
0
Voor een optimale gebruikservaring plaatst Architectenweb functionele cookies. Wat de verschillende cookies precies doen leggen we uit in een
overzicht
. Cookies van social media kun je optioneel
aanzetten
.
Akkoord
Instellingen
Annuleren
OK
Sluiten
Doorgaan
Inloggen
Maak een gratis persoonlijk account aan
Feedback
Feedback
Wij horen graag jouw feedback. Laat je reactie achter en eventueel jouw e-mail adres.
Reactie
Verstuur