Projecten
Producten
Bedrijven
Vacatures
Agenda
Awards
Podcasts
more_horiz
Videos
Magazine
Thema's
Favorieten
Profiel
Uitloggen
Schreuder College Taborstraat, Rotterdam, door Atelier PRO architekten
Copyright: Marcel van der Burg
Schreuder College Taborstraat, Rotterdam, door Atelier PRO architekten
Copyright: Marcel van der Burg
Schreuder College Taborstraat, Rotterdam, door Atelier PRO architekten
Copyright: Marcel van der Burg
Schreuder College Taborstraat, Rotterdam, door Atelier PRO architekten
Copyright: Marcel van der Burg
Schreuder College Taborstraat, Rotterdam, door Atelier PRO architekten
Copyright: Marcel van der Burg
Schreuder College Taborstraat, Rotterdam, door Atelier PRO architekten
Copyright: Marcel van der Burg
Schreuder College Taborstraat, Rotterdam, door Atelier PRO architekten
Copyright: Marcel van der Burg
Schreuder College Taborstraat, Rotterdam, door Atelier PRO architekten
Copyright: Marcel van der Burg
Schreuder College Taborstraat, Rotterdam, door Atelier PRO architekten
Copyright: Marcel van der Burg
Schreuder College Taborstraat, Rotterdam, door Atelier PRO architekten
Copyright: Marcel van der Burg
Schreuder College Taborstraat, Rotterdam, door Atelier PRO architekten
Copyright: Madalina Baghiceanu
Schreuder College Taborstraat, Rotterdam, door Atelier PRO architekten
Copyright: Madalina Baghiceanu
Situatie nieuw
Copyright: Atelier PRO architekten
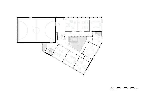
Begane grond, met inrichting
Copyright: Atelier PRO architekten
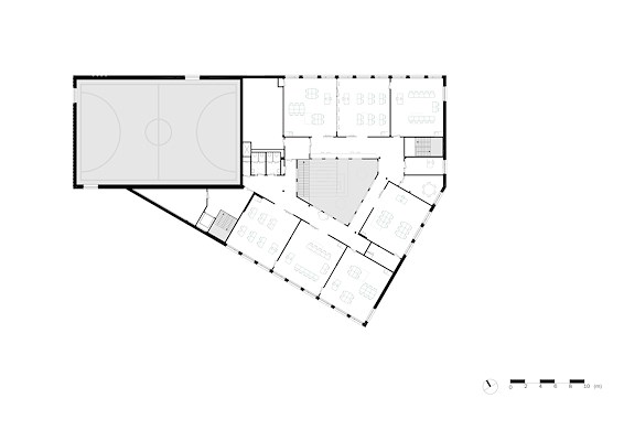
Eerste verdieping, met inrichting
Copyright: Atelier PRO architekten
Tweede verdieping, met inrichting
Copyright: Atelier PRO architekten
Schreuder College door Atelier PRO: een gewone school voor speciaal onderwijs
31 maart, 16:44
Het schoolgebouw van het Schreuder College Taborstraat in Rotterdam was sterk verouderd en niet bijzonder geschikt voor het speciaal onderwijs, dat de school verzorgt.
Atelier PRO architekten
ontwierp een kleinschalig en intiem nieuw gebouw, dat is afgestemd op het speciaal onderwijs, maar zich laat ervaren als een ‘normale’ middelbare school.
Het Schreuder College Taborstraat verzorgt lessen op vmbo-tl- en havo-niveau voor leerlingen met leer- en gedragsvragen. De school maakt deel uit van iHub onderwijs & familiezorg, een organisatie voor jeugdzorg, ggz en gespecialiseerd onderwijs met ruim dertig schoollocaties door heel Nederland. iHub gaf Atelier PRO architekten de opdracht voor het ontwerp van nieuwbouw, ter vervanging van het bestaande gebouw aan de Taborstraat in de Rotterdamse wijk Kralingen.
Het ontwerp sluit aan bij de stedelijke en open omgeving van de school, aan de westkant van de wijk, met veel vrijstaande gebouwen. Het Schreuder College is vormgegeven als een vrijstaande, geknikte bouwmassa die deze stedelijke structuur volgt en de ruimten tussen de verschillende bouwblokken meer karakter geeft, legt Atelier PRO uit.
Robuust en licht tegelijk
Het architectenbureau ontwierp een kleinschalige school, die goed aansluit op de wensen van het speciaal onderwijs. Van buiten heeft het nieuwe gebouw een lichte en tegelijkertijd robuuste uitstraling; de gevels zijn gerealiseerd in zandkleurige baksteen. Blikvanger is daarbij de uitkragende kopgevel van de gymzaal, uitgevoerd met een bijzonder metselwerkpatroon.
Het schoolgebouw bestaat uit drie bouwlagen. Binnen de school liggen de leslokalen rondom een centrale open ruimte, die fungeert als aula en tevens als brasserie. Deze centrale ruimte biedt licht, lucht en ruimte voor de leerlingen en leraren om elkaar te ontmoeten, en is daarmee het hart van de school, vertelt Atelier PRO.
Prikkelarm en overzichtelijk
Rondom de aula loopt op iedere verdieping een extra brede gang, die de leerlingen de ruimte biedt om ook buiten de leslokalen te werken. Tegelijkertijd zorgen deze brede gangen in combinatie met goede zichtlijnen voor een veiligere omgeving. Schuifdeuren en extra geluidsisolatie zijn ingezet om de prikkels voor de leerlingen te verminderen.
De lokalen zijn bewust ingericht op een maximum van tien tot twaalf leerlingen. Daarnaast zijn er speciale ruimten voor bijvoorbeeld muziekonderwijs en practicum, maar ook voor therapie. Daarmee voorziet het gebouw in de extra onderwijsbehoeftes. In totaal beschikt de school over een bruto vloeroppervlakte van 2.880 m
2
.
Eigen plek
Het interieur is bewust uitgevoerd met mooie materialen en details, zegt Atelier PRO. “Het resultaat is een school waar de leerlingen trots op zijn, en daardoor zorgen ze er ook goed voor.” Het bureau citeert een leerling, die uitdrukking geeft aan zijn trots: “Het uiterlijk is wel echt vet. Je zou denken dat het een normale school is […] Het ziet er zelfs beter uit dan normale scholen die ik ken. Je kan nu ook zeggen ‘dit is mijn school’ - bij het oude gebouw niet.”
Het nieuwe gebouw heeft een veilige en rustige sfeer, is kleinschalig, overzichtelijk en op maat, zegt Atelier PRO. Dit geldt ook voor het schoolplein, dat enerzijds is ingericht met een ‘actief gebied’ voor voetbal, basketbal en tafeltennis, en anderzijds een rustiger gedeelte kent, met zitplekken rond een amandelboom. Zo vinden de leerlingen de plek waar ze het meest zichzelf kunnen zijn.
Vlaggenschip
Met het ontwerp heeft Atelier PRO willen laten zien hoe “een goed gebouw een wereld van verschil kan maken.” De opdrachtgever is meer dan tevreden: “Het Schreuder College zet de standaard voor de schoolgebouwen van iHub; het is onze flagship school”, zegt Jasper ten Dam, voorzitter Raad van Bestuur iHub.
Trefwoorden
school
atelier pro architekten
kralingen
schoolgebouw
interieur
speciaal onderwijs
rotterdam
onderwijsgebouw
Locatie
Best gelezen
1
Den Bosch 'pauzeert' aanbesteding voor ontwerp gebiedsontwikkeling Citadelpoort
maandag, 17 november
2
Expositie in Kunsthal belicht eerdere toeristische periode Rotterdam
dinsdag, 18 november
3
MVRDV en Buro Happold ontwerpen nieuw theater in Veenendaal
vrijdag, 14 november
4
Nominaties Zuiderkerkprijs en Geurt Brinkgreve Bokaal 2025 bekend
vrijdag, 14 november
5
Zelfsluitende Vlotterkering in Steyl vormt tevens 'balkon aan de Maas'
dinsdag, 18 november
Gerelateerde nieuwsberichten
Zeven nominaties BNA Beste Gebouw van het Jaar 2025
31 maart
Renovatie eerste gebouw Berlage Lyceum Amsterdam afgerond
26 februari
Research en Diagnostiek Centrum Adore op Zuidas in gebruik genomen
14 juli
Gebouw voor gecombineerd oncologisch en neurologisch onderzoek op Zuidas klaar
9 december 2024
Behandelcentrum van atelier PRO is poortgebouw voor wijk
12 september
Universitair Centrum Psychiatrie UMCG bekroond als Zorggebouw van het Jaar 2024
6 november 2024
Woongebouw De Scheepmaker wint Lieven de Key Penning 2023
22 november 2023
Atelier PRO ontwierp gezamenlijk gebouw voor twee scholen op bijzondere plek
23 augustus 2022
Onderzoek naar scholenbouw in gemeente Groningen resulteert in 35 aanbevelingen
30 juni
EDGE Stadium Amsterdam na twee jaar opgeleverd
6 april 2023
Beeldbepalende toren van oud laboratorium geïntegreerd in gebouw International School Delft
17 november
Vernieuwd onderkomen Rudolf Steiner School en College in gebruik genomen
21 juni 2022
Atelier PRO ontwerpt extra route door uitgebreid universiteitsmuseum
6 januari 2022
Spaarndammerhart en British School winnaars Amsterdamse architectuurprijzen
9 december 2021
Introverte gevangenis opent zich als veilig en prettig schoolgebouw
23 november 2021
Appartementengebouwen geïnspireerd door en gebouwd in de duinen
7 oktober 2021
Atelier PRO één van de winnaars bij internationale prijsvraag in Moskou
29 juni 2021
Landelijk en aardbevingsbestendig kindcentrum door atelier PRO afgerond
3 december 2020
Atelier PRO presenteert verbouwd en uitgebreid Allard Pierson
14 oktober 2020
Atelier PRO ontwerpt woongebouw voor Internationale School Moskou
29 juli 2020
Atelier PRO wint selectie herinrichting Berlage Lyceum
7 juli 2020
Atelier PRO ontwerpt een Kunskapsskolan voor 1300 leerlingen in Amsterdam
7 november 2019
Atelier PRO ontwerpt Sport- en Tentamencentrum voor Universiteit Leiden
7 oktober 2019
Hedendaags ‘landgoed’ naar ontwerp Buro Sant en Co en Atelier Pro
27 juni 2019
Zeven nominaties BNA Beste Gebouw van het Jaar 2025
31 maart
Renovatie eerste gebouw Berlage Lyceum Amsterdam afgerond
26 februari
Research en Diagnostiek Centrum Adore op Zuidas in gebruik genomen
14 juli
Gebouw voor gecombineerd oncologisch en neurologisch onderzoek op Zuidas klaar
9 december 2024
Behandelcentrum van atelier PRO is poortgebouw voor wijk
12 september
Universitair Centrum Psychiatrie UMCG bekroond als Zorggebouw van het Jaar 2024
6 november 2024
Woongebouw De Scheepmaker wint Lieven de Key Penning 2023
22 november 2023
Atelier PRO ontwierp gezamenlijk gebouw voor twee scholen op bijzondere plek
23 augustus 2022
Onderzoek naar scholenbouw in gemeente Groningen resulteert in 35 aanbevelingen
30 juni
EDGE Stadium Amsterdam na twee jaar opgeleverd
6 april 2023
Beeldbepalende toren van oud laboratorium geïntegreerd in gebouw International School Delft
17 november
Vernieuwd onderkomen Rudolf Steiner School en College in gebruik genomen
21 juni 2022
Atelier PRO ontwerpt extra route door uitgebreid universiteitsmuseum
6 januari 2022
Spaarndammerhart en British School winnaars Amsterdamse architectuurprijzen
9 december 2021
Introverte gevangenis opent zich als veilig en prettig schoolgebouw
23 november 2021
Appartementengebouwen geïnspireerd door en gebouwd in de duinen
7 oktober 2021
Atelier PRO één van de winnaars bij internationale prijsvraag in Moskou
29 juni 2021
Landelijk en aardbevingsbestendig kindcentrum door atelier PRO afgerond
3 december 2020
Atelier PRO presenteert verbouwd en uitgebreid Allard Pierson
14 oktober 2020
Atelier PRO ontwerpt woongebouw voor Internationale School Moskou
29 juli 2020
Atelier PRO wint selectie herinrichting Berlage Lyceum
7 juli 2020
Atelier PRO ontwerpt een Kunskapsskolan voor 1300 leerlingen in Amsterdam
7 november 2019
Atelier PRO ontwerpt Sport- en Tentamencentrum voor Universiteit Leiden
7 oktober 2019
Hedendaags ‘landgoed’ naar ontwerp Buro Sant en Co en Atelier Pro
27 juni 2019
Toon alles
Andere nieuwsberichten
ECHO Urban Design en RoosRos Architecten winnen tender Machinewerf Vlissingen
Gisteren, 16:30
ECHO Urban Design en RoosRos Architecten zijn samen met partners Leyten, Fullhouse, depart en Steenvlinder door de gemeente Vlissingen geselecteerd als winnende partner voor de ontwikkeling van locatie de Machinewerf in het Scheldekwartier.
The Rock Weespertrekvaart door Atelier PUUUR in gebruik genomen
Gisteren, 14:00
Nieuw huurcomplex van Atelier PUUUR in Amsterdam omvat appartementen, jongerenwoningen en ruimte voor jeugdhulp en jeugdgezondheidszorg.
MoederscheimMoonen Architects ontwerpt eigen kantoor in historische vertrekhal Oranjelijn Rotterdam
19 november, 4:40
MoederscheimMoonen Architects levert nieuw, duurzame hoofdkantoor van moedermaatschappij TBP Group op.
Restauratie Bakenessertoren Haarlem bekroond met Lieven de Key Penning 2025
19 november, 3:56
De restauratie van de Bakenessertoren in Haarlem is onderscheiden met de Lieven de Key Penning 2025. De publieksprijs werd toegekend aan de verbouwing en uitbreiding van het Stedelijk Gymnasium.
Mogelijke proef zelfrijdende pendelbussen tussen station Hoofddorp en Schiphol Trade Park
Gisteren, 14:15
De provincie Noord-Holland onderzoekt of het zelfrijdende pendelbussen zonder chauffeur kan laten rijden in de buurt van Schiphol. Als dit qua veiligheid en techniek haalbaar is, wil de provincie in 2027 een proef starten.
Fietsflat bij Amsterdam Centraal wordt na 25 jaar gesloopt
Gisteren, 13:45
Voor de door VMX Architects ontworpen fietsenstalling is geen nieuwe plek gevonden. Daarom wordt de 'fietsflat' nu gesloopt.
Maastricht grootste stijger op lijst van beste steden om te wonen
Gisteren, 13:15
Op de ranglijst van de Atlas voor Gemeenten steeg Maastricht de afgelopen tien jaar van de 40e naar de 34e plek. Amsterdam staat stevig op de 1e plek van de lijst.
Minder infraprojecten gaan door na bezuinigingen Prinsjesdag
Gisteren, 10:40
Minder infrastructuurprojecten kunnen doorgaan door bezuinigingen die met Prinsjesdag zijn doorgevoerd. Dat staat in antwoorden op Kamervragen over de begroting van het Mobiliteitsfonds.
Om malafide grondspeculatie tegen te gaan, overweegt het kabinet een bedenktijd voor kopers van grond
Gisteren, 09:00
Grondhandelaren splitsen landbouwgrond vaker op in kleine stukjes en verkopen die dan door aan particulieren. De kopers kunnen dan ten onrechte denken dat de gemeente op de grond wil bouwen, terwijl dat niet zo is.
Gemeenteraad Moerdijk stemt in met verdwijnen van dorp
Gisteren, 08:00
De gemeente onderzocht jarenlang alternatieven, maar concludeert dat het dorp moet verdwijnen voor de uitbreiding van het haven- en industrieterrein
Ga naar het nieuws-archief
Robert Muis
Redacteur
0
0
0
0
Voor een optimale gebruikservaring plaatst Architectenweb functionele cookies. Wat de verschillende cookies precies doen leggen we uit in een
overzicht
. Cookies van social media kun je optioneel
aanzetten
.
Akkoord
Instellingen
Annuleren
OK
Sluiten
Doorgaan
Inloggen
Maak een gratis persoonlijk account aan
Feedback
Feedback
Wij horen graag jouw feedback. Laat je reactie achter en eventueel jouw e-mail adres.
Reactie
Verstuur