Copyright: Isabel Nabuurs
Copyright: Atelier PRO
Transparante nieuwbouw
Copyright: Eva Bloem
Meanderende houten trap
Copyright: Eva Bloem
Meanderende houten trap
Copyright: Eva Bloem
Open verbinding tussen trap en verdiepingen
Copyright: Eva Bloem
Open verbinding tussen trap en verdiepingen
Copyright: Eva Bloem
Open verbinding tussen trap en verdiepingen
Copyright: Eva Bloem
Extra verdieping richting de zolder
Copyright: Eva Bloem
Vernieuwde entree
Copyright: Eva Bloem
Ticketbalie
Copyright: Eva Bloem
Museumcafé en museumwinkel
Copyright: Eva Bloem
Doorgang richting educatieruimte
Copyright: Eva Bloem
Educatieruimte
Copyright: Eva Bloem
Monumentale gang
Copyright: Eva Bloem
Verbinding met Bibliotheek Bijzondere Collecties
Copyright: Eva Bloem
Transparantie nieuwbouw
Copyright: Eva Bloem
Begane grond
Copyright: Atelier PRO
Eerste verdieping (piano nobile)
Copyright: Atelier PRO
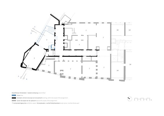
Tweede verdieping (secondo piano nobile)
Copyright: Atelier PRO
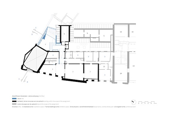
Derde verdieping (zolder)
Copyright: Atelier PRO
Doorsnede ter plaatse van nieuwbouw
Copyright: Atelier PRO
Situatie
Copyright: Atelier PRO
Atelier PRO ontwerpt extra route door uitgebreid universiteitsmuseum
De samenvoeging van de erfgoedcollecties van de Universiteit van Amsterdam is aangegrepen om universiteitsmuseum Allard Pierson uit te breiden met nieuwe tentoonstellingsruimtes en deze via een nieuwe route te ontsluiten. Tegelijkertijd is het museum nadrukkelijker geopend naar de stad en zijn nieuwe publieksruimtes gecreëerd. Architect Dorte Kristensen van atelier PRO gaf Architectenweb een rondleiding.
Het negentiende-eeuwse rijksmonument waarin universiteitsmuseum Allard Pierson gevestigd is, heeft twee verdiepingen met een royale plafondhoogte. Deze noemen we nu de eerste en tweede verdieping, maar kunnen ook de piano nobile en secondo piano nobile genoemd worden. Op deze verdiepingen zijn de belangrijkste tentoonstellingszalen van het universiteitsmuseum te vinden. De samenvoeging van de erfgoedcollecties van de Universiteit van Amsterdam (UvA) op deze plek is aangegrepen om rond de piano nobile en secondo piano nobile nieuwe tentoonstellingsruimtes te realiseren.
Binnen de strikte hiërarchie die het oude gebouw kenmerkt, liep het monumentale hoofdtrappenhuis alleen naar de piano nobile en secondo piano nobile. De extra tentoonstellingsruimte die op zolder en op een tussenverdieping direct boven de entree gevonden werd, moest daarom op een andere manier ontsloten worden. Bovendien was er behoefte aan nog meer tentoonstellingsruimte. Een kleine binnenplaats op de hoek van het gebouw, aan het Turfdraagsterpad, bood atelier PRO de mogelijkheid om deze opgaven in één beweging op te lossen. Binnen een transparant volume zijn de verschillende verdiepingen doorgezet en vervolgens onderling verbonden met een meanderende, houten trap. Richting de zolder is daarbij ook nog een kleine extra verdieping gemaakt.
In het transparante volume staat de houten trap in open verbinding met de verdiepingen daaromheen. Doordat overal tentoonstellingen zijn ingericht, betekent een wandeling over de nieuwe trap zo automatisch een kennismaking met de verschillende collecties van het museum. Heel uitnodigend. Waar de oudbouw van het museum een klassieke typologie heeft ¬– met monumentale kamers als tentoonstellingsruimtes – daar biedt de nieuwbouw juist een eigentijdse typologie – met open, vloeiende ruimtes. De museale ervaring van het museum heeft atelier PRO zo echt weten te verrijken.
Tijdens de rondleiding door het gebouw vertelt architect Dorte Kristensen van atelier PRO dat het ontwerpproces startte met de vraag om een nieuwe trap te ontwerpen. Al snel bleek echter behoefte aan veel meer ruimte en zo ontstond dit ontwerp. Het had echter nog wel wat voeten in de aarde om het budget met die grotere ambitie mee te laten groeien. Alles bij elkaar, dus inclusief de zolder, is uiteindelijk wel tweemaal zoveel tentoonstellingsruimte ontstaan.
Vernieuwde entree en publieksruimtes
Naast de transparante nieuwbouw heeft atelier PRO ook het entreegebied van het museum aangepakt. Dat begint al bij de manier waarop je binnenkomt. Tijdens openingstijden staan de vijf meter hoge deuren aan de Oude Turfmarkt letterlijk open. Je loopt dus zo naar binnen. Ook weer heel uitnodigend. De klimaatsluis, die de vorm heeft van een draaideur, is daartoe een stuk naar achteren gelegd. In de entreehal is een overdekte balie geplaatst met een eigen microklimaat. Het is een element dat herinneringen oproept aan de ticket booths van oude theaters en bioscopen.
Vanuit de entreehal leidt een dubbele deur naar de garderobe en leidt een brede trap naar boven, naar de piano nobile. Op die edele verdieping zijn aan de straatzijde verschillende zalen op elkaar betrokken om de museumwinkel, de educatieruimte, het café en een multifunctionele ruimte een plek te geven.
De monumentale gang achter de publieksruimtes leidt naar de eerste tentoonstellingsruimtes, maar maakt ook de verbinding met de naastgelegen Bibliotheek Bijzondere Collecties die atelier PRO eerder ontwierp. Binnen het museum heb je als bezoeker vervolgens de keuze om met de monumentale trap naar de secondo piano nobile te gaan of de nieuwe, houten trap te nemen en ook de andere verdiepingen te bezoeken.
Voormalige hoofdkantoor van De Nederlandsche Bank
Als universiteitsmuseum richt Allard Pierson zich zowel op het brede publiek als op wetenschappers. De collecties die het beheert zijn zeer divers: cartografie, boekgeschiedenis, Joodse cultuur, kerkgeschiedenis, zoölogie, muziek en grafische vormgeving. Het gebouw aan de Oude Turfmarkt, waarin het museum nu gevestigd is, is in de negentiende eeuw gebouwd als hoofdkantoor van De Nederlandsche Bank. Het gebouw werd in 1869 als zodanig in gebruik genomen en behield die functie tot 1976, waarna het Allard Pierson erin trok.

Het hoofdkantoor van De Nederlandsche Bank is destijds door architect Willem Anthonie Froger ontworpen op de structuur van de classicistische panden die architect Philips Vingboons er in de zeventiende eeuw al ontworpen had. De wanden die dwars op de voorgevel staan, zijn volgens architect Dorte Kristensen tot die panden door Vingboons terug te herleiden. Als je op de piano nobile of secondo piano nobile van de ene naar de andere tentoonstellingsruimte gaat, beweeg je door die wanden, en merk je hier en daar dat de verdiepingshoogte ook nog steeds iets verschilt.

Gerelateerde nieuwsberichten

Andere nieuwsberichten

Kraaijvanger Architects aan de slag met renovatie Station Zuidplein

24 december, 9:00

Concrete ontwerpt woongebouw in Philadelphia met gevelkunst door tattoo-artist Henk Schiffmacher

23 december, 12:00

Rotterdamse Academie van Bouwkunst stelt twee curatoren aan om thematische lijnen te ontwikkelen

22 december, 11:20

Den Haag ziet ruimte voor meer woningen in gebied Laakhavens-Hollands Spoor

19 december, 3:15

Fijne feestdagen en een gelukkig, gezond en succesvol 2026!

24 december, 1:00

Provincie Zuid-Holland: stroom van zee via Hoek van Holland naar Rotterdamse haven

23 december, 5:00

DNR geactualiseerd naar hedendaagse praktijk

19 december, 4:03

Inschrijving voor tiende editie Architectuurprijs Nijmegen geopend

19 december, 1:17

Tweede Kamer schuift aanpassing huurwet door naar nieuw kabinet

19 december, 9:13

Faillissement V&D laat nog altijd sporen na in winkelgebieden

18 december, 12:03
Michiel van RaaijHoofdredacteur
ATAG Nederland
KUBUS | Specialist in BIM-software
SAPA
Reynaers Aluminium Nederland
Jansen
SAB-profiel bv
Aliplast Aluminium Systems
Kingspan Light & Air
Hagemeister GmbH & Co. KG
ALUCOBOND®
Tarkett BV
Kawneer
Grohe Nederland B.V.
Malaysian Timber Council
OCS | Office Cabling Systems
Swisspearl Nederland
Forster Nederland N.V.
VELUX Commercial Benelux B.V.
Sempergreen
Houthandel van Dam
Aluprof Nederland BV
QbiQ Wall Systems
Forbo Flooring
Schüco Nederland
Cedral
Sto Isoned bv
Triflex bv
Gorter Luiken BV
wienerberger
Knauf Insulation
DUCO Ventilation & Sun Control
BEWI IsoBouw
Mview+
Rockfon (ROCKWOOL B.V.)
Gira Nederland B.V.
Kingspan Geïsoleerde Panelen
GEZE Benelux  B.V.
Renson
Metaglas Groep
ABB | Busch-Jaeger
Jung | Hateha B.V.
Knauf B.V.
Saint-Gobain Glass Benelux
Faay Vianen B.V.
objectflor
Boon Edam Nederland B.V.
Hunter Douglas Architectural
VOLA Nederland BV
Forbo Eurocol Nederland B.V.
EQUITONE gevelpanelen
Holonite B.V.
AXOR + hansgrohe
Tata Steel Colorcoat®
Architectenweb
Over ons
Contact

© 2002 - 2025 Architectenweb BV / Voorwaarden / Privacy / Disclaimer / Sitemap
Annuleren
OK
Sluiten
Doorgaan
Inloggen
Maak een gratis persoonlijk account aan