Projecten
Producten
Bedrijven
Vacatures
Agenda
Awards
Podcasts
more_horiz
Videos
Magazine
Thema's
Favorieten
Profiel
Uitloggen
Copyright: grafie Luuk Kramer
Copyright: grafie Luuk Kramer
Copyright: grafie Luuk Kramer
Copyright: grafie Luuk Kramer
Copyright: grafie Luuk Kramer
Copyright: grafie Luuk Kramer
Copyright: grafie Luuk Kramer
Copyright: grafie Luuk Kramer
Copyright: grafie Luuk Kramer
Copyright: grafie Luuk Kramer
Copyright: grafie Luuk Kramer
Copyright: atelier PRO architekten
Copyright: atelier PRO architekten
Copyright: atelier PRO architekten
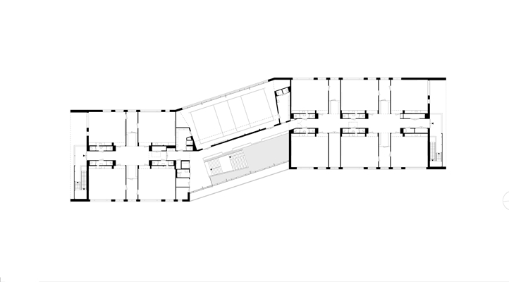
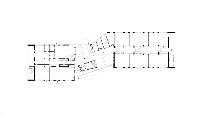
School met polderachtige schuurvorm
17 oktober 2016, 14:38
In Boskoop is recent een brede school met een polderachtige schuurvorm geopend. In het door
atelier PRO architekten
ontworpen gebouw zijn een school en een kinderopvang gehuisvest. De brede school Waterrijk bestaat uit twee langwerpige volumes met een dubbele knik en een ‘opwippend’ dak, waaronder zich de speellokalen bevinden.
De schuine lijn in het ontwerp zorgt voor een optische opdeling, waarmee het gebouw aansluit op de schaal van de omgeving zonder ‘uiteen te vallen’. Doordat de gevel en het dak in één materiaal zijn uitgevoerd, krijgt de schuurvorm extra nadruk. Tegenover een eenvoudige basis qua vorm en opzet staat een zorgvuldige detaillering, bijvoorbeeld in de materiaalovergangen.
De gevel bestaat uit potsekselprofielplaten in een koele grijze tint, gecombineerd met het vriendelijker blond hout. De planken met verschillende breedtes zijn verticaal geplaatst en moeten zorgen voor een rustige en natuurlijke uitstraling, in lijn met het polderlandschap. Het blond hout komt ook terug in het interieur; in de dakspanten en de vaste inrichting.
Voor de installaties is in de nok van het gebouw een installatiezolder vrijgehouden. Deze grenst aan de gangzones en toiletten, waar de plafonds lager zijn dan in de lokalen. Hierdoor ontstaat relatief weinig ruimteverlies en blijven de gevelzones volledig vrij indeelbaar, meldt atelier PRO.
Trefwoorden
boskoop
atelier pro architekten
school
brede school
Locatie
Best gelezen
1
Finalisten presenteren ontwerp voor Shift Landmark in Rotterdam
woensdag, 4 maart
2
Architect Oliver Thill op 55-jarige leeftijd overleden
donderdag, 5 maart
3
Nieuwe Hittekaart Woningmarkt 2026 van BPD toont aanhoudende woningdruk
dinsdag, 3 maart
4
Strijp-S krijgt woonbuurtje met karakteristieken voormalig Philips-terrein
maandag, 2 maart
5
Haagse gemeenteraad stemt in met bouw van 11.400 woningen in nieuw stadscentrum
maandag, 2 maart
Gerelateerde nieuwsberichten
Alex Letteboer verlaat atelier PRO
5 januari 2017
Luxe woningen aan de voet van Haagse duinen
9 januari 2017
Nieuw gebouw op plek V&D-pand Delft
13 december 2016
Voorzieningencluster Laan van Spartaan in gebruik
14 november 2013
Atelier PRO ontwerpt nieuwbouw VCL in Den Haag
2 februari 2015
Opwaardering Montessori Lyceum door atelier PRO
13 maart 2014
Twee scholen delen nieuwbouw van Atelier PRO
3 juni 2015
Beeldverslag van Het Grote Scholencongres
16 april 2014
Onderwijspark Ezinge officieel geopend
21 november 2014
Compacte nieuwbouw voor Edith Stein College
21 oktober 2015
Atelier PRO ontwerpt IJburg College-2
8 juli 2014
Russische schoolopdracht Nederlandse bureaus
22 januari 2015
Multifunctionele accommodatie als sociaal hart
23 mei 2013
Eerste Playground van de Toekomst geopend
15 december 2014
Warmond krijgt een nieuw Kloppend hart
21 september 2016
Cultuurhuis De Klinker in Winschoten geopend
22 september 2015
Compact schoolgebouw van Atelier PRO geopend
13 mei 2015
Nieuwe Bosbadhal in gebruik genomen
20 november 2013
Een ‘agora’ voor Deventer
23 maart 2016
Vlissings woonzorgcentrum in industriële sfeer
28 februari 2018
Twee scholen in ensemble van oud en nieuw
24 november 2016
Atelier PRO ontwerpt licht en duurzaam schoolgebouw in Geldrop
18 september 2018
Alex Letteboer verlaat atelier PRO
5 januari 2017
Luxe woningen aan de voet van Haagse duinen
9 januari 2017
Nieuw gebouw op plek V&D-pand Delft
13 december 2016
Voorzieningencluster Laan van Spartaan in gebruik
14 november 2013
Atelier PRO ontwerpt nieuwbouw VCL in Den Haag
2 februari 2015
Opwaardering Montessori Lyceum door atelier PRO
13 maart 2014
Twee scholen delen nieuwbouw van Atelier PRO
3 juni 2015
Beeldverslag van Het Grote Scholencongres
16 april 2014
Onderwijspark Ezinge officieel geopend
21 november 2014
Compacte nieuwbouw voor Edith Stein College
21 oktober 2015
Atelier PRO ontwerpt IJburg College-2
8 juli 2014
Russische schoolopdracht Nederlandse bureaus
22 januari 2015
Multifunctionele accommodatie als sociaal hart
23 mei 2013
Eerste Playground van de Toekomst geopend
15 december 2014
Warmond krijgt een nieuw Kloppend hart
21 september 2016
Cultuurhuis De Klinker in Winschoten geopend
22 september 2015
Compact schoolgebouw van Atelier PRO geopend
13 mei 2015
Nieuwe Bosbadhal in gebruik genomen
20 november 2013
Een ‘agora’ voor Deventer
23 maart 2016
Vlissings woonzorgcentrum in industriële sfeer
28 februari 2018
Twee scholen in ensemble van oud en nieuw
24 november 2016
Atelier PRO ontwerpt licht en duurzaam schoolgebouw in Geldrop
18 september 2018
Toon alles
Andere nieuwsberichten
PosadMaxwan, Felixx, Woonwerk en Deltalab maken plan voor nieuw stadsdeel Sint-Niklaas
1 uur geleden
PosadMaxwan, Felixx Landscape Architects & Planners, Woonwerk Architecten en Deltalab gaan een plan maken voor de transformatie van de zogeheten SVK-site in het Vlaamse Sint-Niklaas.
Wiegerinck vernieuwt onderkomen Nijmeegse contactlenzenspecialist
3 uur geleden
In Nijmegen heeft Wiegerinck de hoofdvestiging van Visser Contactlenzen vernieuwd. Het pand aan een hoofdroute richting het stadscentrum kreeg een nieuw interieur, met een tussenzone rond een lensvormige patio als hart.
Architect Oliver Thill op 55-jarige leeftijd overleden
Gisteren, 14:27
Afgelopen maandag is op 55-jarige leeftijd architect Oliver Thill overleden. Het door hem en André Kempe opgerichte Atelier Kempe Thill behoort tot de meest gewaardeerde Nederlandse architectenbureaus van de afgelopen 25 jaar.
HvdHA ontwerpt twee woonblokken in Utrecht Terwijde volgens typologie van woonpalazzo
Gisteren, 10:49
In Utrecht Terwijde worden twee woonblokken met 161 sociale huurwoningen naar ontwerp van Hans van der Heijden Architecten gerealiseerd. De gebouwen worden ontworpen volgens de typologie van een ‘woonpalazzo’.
Coen van Oostrom benoemd tot nieuwe voorzitter VNO-NCW
21 minuten geleden
De oprichter van ontwikkelaar Edge volgt in die rol Ingrid Thijssen op, die deze week is begonnen als nieuwe bestuursvoorzitter van de TU Delft.
Rapport: lokaal klimaatbeleid schiet nog tekort
2 uur geleden
De makers van de zogeheten Toekomstmeter hebben het beleid van zeventig gemeenten doorgelicht.
Hardt Hyperloop failliet verklaard door rechtbank
Gisteren, 11:37
Het Rotterdamse bedrijf was bezig met de ontwikkeling van technologie om mensen op hoge snelheid via capsules door een vacuümbuis te vervoeren.
Onderzoek: zeespiegel kustgebieden hoger dan in studies aangenomen
Gisteren, 09:13
De zeespiegel aan de kust is in grote delen van de wereld waarschijnlijk hoger dan in veel wetenschappelijke studies wordt aangenomen.
Gelderland geeft voorrang aan vergunningen met minder stikstof
4 maart, 12:24
De plannen zijn onderdeel van het pakket maatregelen dat het Gelderse bestuur wil nemen om de vergunningverlening voor zaken als de woningbouw weer op gang te krijgen.
Amsterdam bouwde opnieuw minder woningen dan de bedoeling is
4 maart, 10:56
Wethouder Steven van Weyenberg spreekt van een ‘sprong in de aantallen’, omdat er in 2025 beduidend meer huizen bijkwamen dan de jaren daarvoor.
Ga naar het nieuws-archief
0
0
0
0
Voor een optimale gebruikservaring plaatst Architectenweb functionele cookies. Wat de verschillende cookies precies doen leggen we uit in een
overzicht
. Cookies van social media kun je optioneel
aanzetten
.
Akkoord
Instellingen
Annuleren
OK
Sluiten
Doorgaan
Inloggen
Maak een gratis persoonlijk account aan
Feedback
Feedback
Wij horen graag jouw feedback. Laat je reactie achter en eventueel jouw e-mail adres.
Reactie
Verstuur