Projecten
Producten
Bedrijven
Vacatures
Agenda
Awards
Podcasts
more_horiz
Videos
Magazine
Thema's
Favorieten
Profiel
Uitloggen
Nieuw
Populair
Toon alles
Architectenweb magazine #14
Architectenweb magazine #13
Publieke gebouwen
Architectenweb magazine #12
Kantoren
Architectenweb magazine #11
Scholen
Architectenweb magazine #10
Zorg
Architectenweb magazine #14
Architectenweb magazine #10
Zorg
Architectenweb magazine #12
Kantoren
Architectenweb magazine #13
Publieke gebouwen
Architectenweb magazine #6
Transformatie en Renovatie
Om direct naar je favorieten te kunnen gaan is het nodig om eerst in te loggen.
Nieuw
Architectenweb Awards 2025
Architectenweb Awards 2024
Architectenweb Awards 2023
Architectenweb Awards 2022
Architectenweb Awards 2021
Architectenweb Awards 2020
Architectenweb Awards 2019
Architectenweb Awards 2018
Om direct naar je favorieten te kunnen gaan is het nodig om eerst in te loggen.
Nieuw
Populair
Favorieten
Toon alles
Vakwerk Architecten
Nominatie voor de prijs voor Architect van het Jaar 2025
Sanne van Manen
Nominatie voor de prijs voor Architect van het Jaar 2025
KSA
Nominatie voor de prijs voor Architect van het Jaar 2025
KRFT
Nominatie voor de prijs voor Architect van het Jaar 2025
Joost Ector
Nominatie voor de prijs voor Architect van het Jaar 2025
Prijsuitreiking Architectenweb Awards 2024
Impressie van een feestelijke avond
Martens, Willems & Humblé Architecten
Nominatie voor de prijs voor Architect van het Jaar 2024
Uitreiking van Architectenweb Awards 2020
Impressie van de prijsuitreiking via Zoom
De Zwarte Hond
Nominatie voor de prijs voor Architect van het Jaar 2024
Avond met De Zwarte Hond
Symposium
Om direct naar je favorieten te kunnen gaan is het nodig om eerst in te loggen.
Nieuw
Populair
Categorieën
Favorieten
Toon alles
Brandpreventie Academy BV
Cay Circulaire Keukens
Circulaire keukens en pantry's
Studio Kirsten Reith
Interieurontwerp
Studio175
Interieuradvies in regio Utrecht
Orange Automatic Doors
Indoorwrap
De specialist in Keukenwrappen
Cay Circulaire Keukens
Circulaire keukens en pantry's
Studio Kirsten Reith
Interieurontwerp
Studio175
Interieuradvies in regio Utrecht
Interior & Co
Indoorwrap
De specialist in Keukenwrappen
Orange Automatic Doors
Architecten
Architectuur
Mobiliteit en infrastructuur
Stedenbouw en landschapsarchitectuur
Leveranciers
Gevels
Daken
Ramen en deuren
Trappen, liften en balustrades
Binnenwanden
Vloeren
Plafonds
Verlichting
Sanitair
Projectinrichting
Installaties
Constructies
Buitenruimte
Software
Adviseurs
Bestekschrijvers
Bouwmanagement
Installatie adviseurs E
Bouwfysica
Calculators
Installatie adviseurs G/W
Bouwkundig tekenwerk
Constructeurs
Lichtadviseurs
Adviseur beveiliging
Juristen
Intermediairs, Payrolling
Aannemers
Overig
Presentatie
Instellingen / onderwijs
Overig
Om direct naar je favorieten te kunnen gaan is het nodig om eerst in te loggen.
Nieuw
Populair
Favorieten
Toon alles
Gesprek met Stephan Sliepenbeek over hoogbouw in Amstel III
Gesprek met Ellen van Bueren over gebiedsontwikkeling en hoogbouw
Gesprek met Ma Yansong over ontwerpen die emotie oproepen
Gesprek met Paul de Ruiter over innovatieve en duurzame hoogbouw
Gesprek met Pi de Bruijn over zijn ontwerpen voor de Tweede Kamer toen en nu
Gesprek met Ellen van Bueren over gebiedsontwikkeling en hoogbouw
Gesprek met Oresti Sarafopoulos over het ontwerpen van een kantoorgebouw met bijna geen installaties
Gesprek met Stijn Steenbakkers over verdichting en hoogbouw in Eindhoven
Gesprek met Pi de Bruijn over zijn ontwerpen voor de Tweede Kamer toen en nu
Gesprek met Paul de Ruiter over innovatieve en duurzame hoogbouw
Om direct naar je favorieten te kunnen gaan is het nodig om eerst in te loggen.
Nieuw
Populair
Categorieën
Favorieten
Toon alles
De energiemarkt revolutionair vernieuwen
Festivalterrein als inspiratie van dit kantoor
De antieke Agora als inspiratie voor een kantoor
Renovatieproject Ockenburghstraat
Aluminium kozijnen: de isolerende oplossing
Prinsenpark, Rotterdam
ASML Gebouw 3
IVY, Amsterdam
IKC De Brug
Houthavens, Amsterdam
Architectuur
Woningbouw
Zorg
Hotels
Restaurants en café’s
Winkels
Sportgebouwen
Culturele gebouwen
Overheidsgebouwen
Scholen
Kantoren
Bedrijfsgebouwen
Paviljoens en kunst
Overig
Mobiliteit en infrastructuur
Trein- en metrostations
Luchthavens
Busstations
Parkeergarages
Fietsparkeren
Wegen
Bruggen
Water
Energie
Tankstations en laadstations
Waterzuivering en afvalverwerking
Overig
Stedenbouw en landschapsarchitectuur
Regionale visies
Gebiedsvisies
Plannen stedelijk weefsel
Amusementsparken en dierentuinen
Lichtontwerpen
Openbare ruimte
Pleinen
Parken
Tuinen
Speelplaatsen
Uitkijktorens
Overige (bijv. begraafplaatsen)
Om direct naar je favorieten te kunnen gaan is het nodig om eerst in te loggen.
Nieuw
Populair
Categorieën
Favorieten
Toon alles
KTV carrouseldeuren met direct drive en RC2
Ultra slank – ultra veilig
Köster TPO dakbedekking - TPO Dakbanen
25 jaar verzekerde dakgarantie
Kubica verdekte scharnieren
Een scharnier dat onzichtbaar is wanneer de deur gesloten is.
Metalstuc
Control Track Versa
Langdurige flexibiliteit voor kantoren van de toekomst
Akoestisch kussen.
Ervaar de ultime natuurlijke oplossing voor akoestiek problemen.
StoTherm Wood: cementvrij gevelsysteem met houtvezelisolatie
Biobased gevelisolatie met natuurlijke prestaties
Digital Prints
Meer mogelijkheden in gekleurd staal
Lumiglaze – Het vlakglas van VELUX Commercial
Een nieuw tijdperk in daglichtontwerp – minimalistisch, functioneel en klaar voor de toekomst.
Veelzijdig straatmeubilair
Van openbare ruimte naar (be)leefomgeving
Gevels
Gevelbekleding
Vliesgevels
Zonwering buiten
Isolatie
Gevelconstructies
Signing
Overig
Daken
Dakafwerkingen
Dakisolatie
Dakconstructies
Dakranden, dakgoten en HWA's
Dakramen
Lichtkoepels
Lichtstraten
Schoorstenen
Overig
Dakluiken
Ramen en deuren
Raam- en deursystemen / kozijnen
Vliesgevels
Hang- en sluitwerk
Beveiliging en luiken
Dorpels en vensterbanken
Lateien
Roosters
Glas
Dakramen
Dakkoepels
Lichtstraten
Zonwering buiten
Zonwering binnen
Buitendeuren
Binnendeuren
Postvakken en brievenbussen
Overig
Dakluiken
Trappen, liften en balustrades
Trappen
Roltrappen
Liften
Balustrades en hekwerken
Galerijen
Binnenwanden
Binnenwanden
Wandafwerking
Vloeren
Constructieve vloeren
Verhoogde vloeren
Vloerafwerkingen
Overig
Plafonds
Tegels
Lineair
Grill
Open en roosters
Naadloos
Eilanden en baffles
Plafondafwerkingen
Ophangsystemen
Overig
Klimaatplafonds
Verlichting
Binnenverlichting
Buitenverlichting
Sanitair
Kranen en douchesets
Wastafels
Douchewanden en douchebakken
Baden
Waterclosets
Accessoires
Overig
Projectinrichting
Stoelen
Banken
Tafels
Kasten
Balies
Vrijstaande wanden
Keukens
Accessoires
Overig
Cabines
Interieurbeplanting
Stoffering
Installaties
Verwarming, koeling en ventilatie
Elektrotechnische installaties
Schakelmateriaal
Domotica
Deurcommunicatie
Beveiliging
Liften
Onderhoudsinstallaties
Overig
Brandbeveiliging
Constructies
Draagconstructies
Funderingen en kelders
Overig
Brandbeveiliging
Buitenruimte
Bestratingen en verhardingen
Afwateringen
Terreinafscheidingen en geluidsschermen
Buitenmeubilair
Fietsparkeren
Terrassen
Terrasoverkappingen
Bruggen
Accessoires
Overig
Beplanting
Sport- en speeltoestellen
Software
Tekenen 2D
Modelleren 3D / BIM
Visualisatie / rendering
Parametrisch ontwerpen
Bouwfysica
Draagconstructie
Overig
Virtual Reality
Cloudoplossingen
Om direct naar je favorieten te kunnen gaan is het nodig om eerst in te loggen.
Nieuw
Populair
Favorieten
Toon alles
Prefab beurs - 7 t/m 9 oktober 2025
Brabanthallen 's-Hertogenbosch
Boekpresentatie en panelgesprek met Floor Milikowsky
Prins Hendrikkade 600, 1011 VX Amsterdam
Architects Table ’25: Lunch & Inspiratie in HAUT Amsterdam
ATAG LIVE – HAUT gebouw, Spaklerweg 10F, 1096 BA Amsterdam (tegenover metrostation Spaklerweg)
Inspiratiedag @ Sempergreen – Gevelgroen
Defensieweg 1, 3984 LR Odijk
Architectenweb symposium: klein maar fijn wonen?
Pakhuis de Zwijger
Ontdek het seminarieprogramma van Architect@Work Amsterdam
De Kromhouthal, Gedempt Hamerkanaal 231, Amsterdam
Architects Table ’25: Lunch & Inspiratie in HAUT Amsterdam
ATAG LIVE – HAUT gebouw, Spaklerweg 10F, 1096 BA Amsterdam (tegenover metrostation Spaklerweg)
Boekpresentatie en panelgesprek met Floor Milikowsky
Prins Hendrikkade 600, 1011 VX Amsterdam
InterSolution 2026, dé netwerk- en vakbeurs voor zonne-energie
Flanders Expo (Hal 8) Maaltekouter 1 B - 9051 Gent / België
LIAG over duurzaamheid centraal in project
Online
Om direct naar je favorieten te kunnen gaan is het nodig om eerst in te loggen.
Nieuw
Toon alles
Design
Duurzaamheid
Gevel
Infrastructuur
Interieur
Kantoren
Leisure
Openbare ruimte
Publieke gebouwen
Scholen
Transformatie en Renovatie
Woningbouw
Zorg
Om direct naar je favorieten te kunnen gaan is het nodig om eerst in te loggen.
Nieuw
Populair
Toon alles
Junior Architect (NL/EN)
De Academie van Bouwkunst Amsterdam zoekt twee onderzoekers voor lectoraat
Site Practice zoekt medior architect met 3-6 jaar ervaring (Amsterdam)
DAT zoekt een BIM Modelleur (Revit)
stagiair bouwkunde Heerenveen
Meewerkend Voorman
Architect
Junior Architect gezocht!
Junior Ontwerper
Studio Nauta zoekt projectleider
wUrck zoekt junior Architect
Project Architect
Om direct naar je favorieten te kunnen gaan is het nodig om eerst in te loggen.
Copyright: Ronald Tilleman
Copyright: Ronald Tilleman
Copyright: Ronald Tilleman
Copyright: Ronald Tilleman
Copyright: Ronald Tilleman
Copyright: Ronald Tilleman
Copyright: Ronald Tilleman
Copyright: Ronald Tilleman
Copyright: Ronald Tilleman
Copyright: Ronald Tilleman
Copyright: Ronald Tilleman
Copyright: Ronald Tilleman
Copyright: Ronald Tilleman
Copyright: Ronald Tilleman
Copyright: atelier PRO
Copyright: atelier PRO
Copyright: atelier PRO
Copyright: atelier PRO
Woonzorgcentrum Scheldehof (atelier PRO) bekroond als Zorggebouw van het Jaar 2018
8 november 2018, 20:45
Als onderdeel van de Architectenweb Awards is op donderdagavond 8 november 2018 in Broeinest Amsterdam de prijs voor Zorggebouw van het Jaar 2018 uitgereikt. Deze prijs is dit jaar toegekend aan
Woonzorgcentrum Scheldehof
naar ontwerp van atelier PRO. In een oude loods, aan de rand van de binnenstad, wonen daar ouderen met een lichtere tot zwaardere beperking.
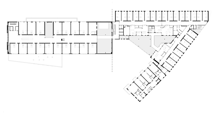
De oude binnenstad van Vlissingen lag voorheen ingeklemd door een grote insteekhaven waar in grote hallen schepen werden gebouwd. Met het vertrek van de maritieme industrie in 2013 kwam dit havengebied vrij voor herontwikkeling. Een van de drie grote loodsen hier is naar ontwerp van atelier PRO herontwikkeld tot woonzorgcentrum. In de nieuwbouw ernaast zijn nog extra (aanleun)zorgwoningen ondergebracht.
Het architectenbureau heeft de deuren van de industriële hal letterlijk opengezet. Op de begane grond zijn nu allerlei functies te vinden: restaurant, kapsalon, winkel, fysiotherapieruimte, theaterzaal, opleidings- en atelierruimtes. Al die functies zijn ook te gebruiken door buurtbewoners. Hierboven liggen in drie lagen de zorgwoningen. De (aanleun)zorgwoningen in het gebouw ernaast liggen rond een wintertuin en zijn via een passage met de industriële hal verbonden.
Verbinding met de buurt
De ruimtelijke en prikkelende omgeving die bewoners geboden wordt is totaal anders dan je bij een woonzorgcentrum verwacht, stelt de jury enthousiast. De situering van het gebouw, met al deze functies in de plint, ondersteunt ook de verbinding met de buurt en de stad. Deze ouderen zijn niet weggestopt in het groen, maar onderdeel van het stedelijke leven. Daarbij heeft de jury ook waardering voor de slimme detaillering van de kamers. De installaties zijn bijvoorbeeld verborgen in de lambrisering van de gangen en kunnen daardoor bereikt worden zonder de bewoners te hoeven storen. Ook zijn de tilliften in de kamers zorgvuldig weggewerkt.
Wanneer ouderen moeten verhuizen naar een woonzorgcentrum, is dat nu nog te vaak een stap achteruit, die met veel weerstand gepaard gaat, constateert de jury. "Maar dan dit… wonen in een te gek, oude pand, middenin de stad, met allerlei voorzieningen in de plint die ook voor de stad te gebruiken zijn. Die laatste plek waar je woont, dat zou toch een feestje moeten zijn? Dat is dit!"
Dit is de toekomst van de ouderenhuisvesting, stelt de jury; een voorbeeld voor hopelijk een nieuwe generatie van woonzorggebouwen. Op deze manier worden ouderen niet langer weggestopt in een anoniem gebouw aan de stadsrand, maar wonen ze in een opvallend en stoer gebouw middenin de samenleving.
Architectenweb Awards
Voor de prijs ‘Zorggebouw van het Jaar’ waren door een onafhankelijke jury drie projecten genomineerd: Erasmus MC (EGM architecten), KJC Heliomare (Architectenbureau Marlies Rohmer) en Woonzorgcentrum Scheldehof (atelier PRO). Ook kende de jury een eervolle vermelding toe aan het Prinses Máxima Centrum (LIAG) vanwege het feit dat dat ziekenhuis volledig met particulier geld gefinancierd is.
Alle inzendingen voor de prijs ‘Zorggebouw van het Jaar’ zijn beoordeeld op maatschappelijke relevantie, bijdrage aan het vakgebied en doorwrochtheid van het ontwerp. De jury bestond uit architect Renske van der Stoep (ROFFAA, voorzitter), architect Femke Feenstra (G.A.F. Architects), architect Willem Heyligers (Heyligers d+p), architect Elma van Boxel (ZUS) en onderzoeker/schrijver Vincent Kompier (o.a. zelfstandige).
Naast de prijs voor Zorggebouw van het Jaar zijn bij de prijsuitreiking van de Architectenweb Awards ook de volgende prijzen uitgereikt: Woongebouw van het Jaar, Kantoorgebouw van het Jaar, Schoolgebouw van het Jaar, Interieur van het Jaar en Publiek gebouw van het Jaar. Deze genoemde zes prijzen worden door Architectenweb uitgereikt samen met haar partners
Gira
,
Desko
,
Cerriva
en
Broeinest
.
Trefwoorden
architectenweb awards
atelier pro
vlissingen
architectenweb awards 2018
zorggebouw van het jaar
scheldehof
zorggebouw
Best gelezen
1
Rapport: rijke Amsterdammers leven steeds vaker apart van rest
dinsdag, 30 september
2
Rijk schrijft aanbesteding uit voor nieuwe marinierskazerne
woensdag, 1 oktober
3
Kabinet wil wijken erbij op 127 plekken in Nederland
maandag, 29 september
4
Architectenweb symposium: klein maar fijn wonen?
donderdag, 2 oktober
5
Leiden wil verhoogd busstation naast treinperrons centraal station
dinsdag, 30 september
Gerelateerde nieuwsberichten
Appartmentencomplex naast bekroond zorgcentrum door atelier PRO opgeleverd
28 augustus
Lageropgeleiden helpen meer in omgeving
23 november 2018
Atelier PRO ontwerpt een Kunskapsskolan voor 1300 leerlingen in Amsterdam
7 november 2019
Nominaties 'Zorggebouw van het Jaar 2020' bekend
23 september 2020
'Aanpassen huizen ouderen kost 13 miljard'
5 november 2019
Landelijk en aardbevingsbestendig kindcentrum door atelier PRO afgerond
3 december 2020
Appartementengebouwen geïnspireerd door en gebouwd in de duinen
7 oktober 2021
Nominaties Zorggebouw van het Jaar 2022 bekend
19 september 2022
Universitair Centrum Psychiatrie in Groningen opent zijn deuren
4 juli 2024
BuroSALT wint aanbesteding woningbouwproject in Vlissingen
12 december 2023
Stuur nu jullie project in voor de prijs voor Zorggebouw van het Jaar 2025
2 juni
Broeinest ADAM: 'Het is niet erg om de opdrachtgever kritische vragen te stellen'
12 augustus 2019
Tergooi MC uitgeroepen tot Zorggebouw van het Jaar 2023
8 november 2023
Stuur nu jullie project in voor de prijs voor Zorggebouw van het Jaar 2023
30 mei 2023
Nominaties Zorggebouw van het Jaar 2023 bekend
25 september 2023
Stuur nu jullie project in voor de prijs voor Zorggebouw van het Jaar 2024
21 mei 2024
Nominatie Zorggebouw van het Jaar 2024 bekend
25 september 2024
Nominatie Zorggebouw van het Jaar 2025 bekend
24 september
Atelier PRO ontwerpt extra route door uitgebreid universiteitsmuseum
6 januari 2022
Research en Diagnostiek Centrum Adore op Zuidas in gebruik genomen
14 juli
Nominaties ‘Zorggebouw van het Jaar 2018’ bekend
11 oktober 2018
Vlissings woonzorgcentrum in industriële sfeer
28 februari 2018
De Curve (EVA) bekroond als Kantoorgebouw van het Jaar 2018
8 november 2018
De Henricus (Berger Barnett Architecten) bekroond als Schoolgebouw van het Jaar 2018
8 november 2018
Superlofts Blok Y (Marc Koehler Architects) bekroond als Woongebouw van het Jaar 2018
8 november 2018
Publiekslocatie Centrum Stadhuis Rotterdam (deMunnik-deJong & Merk X) bekroond als Interieur van het Jaar 2018
8 november 2018
Hotel Jakarta (SeARCH) bekroond als Publiek gebouw van het Jaar 2018
8 november 2018
Floris Alkemade uitgeroepen tot Architect van het Jaar 2018
8 november 2018
Aftermovie uitreiking Architectenweb Awards 2018
12 november 2018
Ernstjan Cornelis nieuwe managing director KCAP
3 december 2018
Drie nieuwe partners voor Atelier PRO
11 december 2018
Architectenweb Awards 2019 open voor inschrijving
6 mei 2019
Stuur nu jullie project in voor de Woongebouw van het Jaar 2019-prijs
13 mei 2019
Stuur nu jullie project in voor de Zorggebouw van het Jaar 2019-prijs
3 juni 2019
Nog 3 dagen om jullie project in te sturen voor de Architectenweb Awards 2019
19 juni 2019
Atelier PRO ontwerpt Sport- en Tentamencentrum voor Universiteit Leiden
7 oktober 2019
Stuur nu jullie project in voor de Zorggebouw van het Jaar 2020-prijs
2 juni 2020
Atelier PRO ontwerpt woongebouw voor Internationale School Moskou
29 juli 2020
Stuur nu jullie project in voor de prijs voor Zorggebouw van het Jaar 2021
31 mei 2021
Atelier PRO één van de winnaars bij internationale prijsvraag in Moskou
29 juni 2021
Geen nominaties voor Zorggebouw van het Jaar 2021
23 september 2021
Stuur nu jullie project in voor de prijs voor Zorggebouw van het Jaar 2022
30 mei 2022
Appartmentencomplex naast bekroond zorgcentrum door atelier PRO opgeleverd
28 augustus
Lageropgeleiden helpen meer in omgeving
23 november 2018
Atelier PRO ontwerpt een Kunskapsskolan voor 1300 leerlingen in Amsterdam
7 november 2019
Nominaties 'Zorggebouw van het Jaar 2020' bekend
23 september 2020
'Aanpassen huizen ouderen kost 13 miljard'
5 november 2019
Landelijk en aardbevingsbestendig kindcentrum door atelier PRO afgerond
3 december 2020
Appartementengebouwen geïnspireerd door en gebouwd in de duinen
7 oktober 2021
Nominaties Zorggebouw van het Jaar 2022 bekend
19 september 2022
Universitair Centrum Psychiatrie in Groningen opent zijn deuren
4 juli 2024
BuroSALT wint aanbesteding woningbouwproject in Vlissingen
12 december 2023
Stuur nu jullie project in voor de prijs voor Zorggebouw van het Jaar 2025
2 juni
Broeinest ADAM: 'Het is niet erg om de opdrachtgever kritische vragen te stellen'
12 augustus 2019
Tergooi MC uitgeroepen tot Zorggebouw van het Jaar 2023
8 november 2023
Stuur nu jullie project in voor de prijs voor Zorggebouw van het Jaar 2023
30 mei 2023
Nominaties Zorggebouw van het Jaar 2023 bekend
25 september 2023
Stuur nu jullie project in voor de prijs voor Zorggebouw van het Jaar 2024
21 mei 2024
Nominatie Zorggebouw van het Jaar 2024 bekend
25 september 2024
Nominatie Zorggebouw van het Jaar 2025 bekend
24 september
Atelier PRO ontwerpt extra route door uitgebreid universiteitsmuseum
6 januari 2022
Research en Diagnostiek Centrum Adore op Zuidas in gebruik genomen
14 juli
Nominaties ‘Zorggebouw van het Jaar 2018’ bekend
11 oktober 2018
Vlissings woonzorgcentrum in industriële sfeer
28 februari 2018
De Curve (EVA) bekroond als Kantoorgebouw van het Jaar 2018
8 november 2018
De Henricus (Berger Barnett Architecten) bekroond als Schoolgebouw van het Jaar 2018
8 november 2018
Superlofts Blok Y (Marc Koehler Architects) bekroond als Woongebouw van het Jaar 2018
8 november 2018
Publiekslocatie Centrum Stadhuis Rotterdam (deMunnik-deJong & Merk X) bekroond als Interieur van het Jaar 2018
8 november 2018
Hotel Jakarta (SeARCH) bekroond als Publiek gebouw van het Jaar 2018
8 november 2018
Floris Alkemade uitgeroepen tot Architect van het Jaar 2018
8 november 2018
Aftermovie uitreiking Architectenweb Awards 2018
12 november 2018
Ernstjan Cornelis nieuwe managing director KCAP
3 december 2018
Drie nieuwe partners voor Atelier PRO
11 december 2018
Architectenweb Awards 2019 open voor inschrijving
6 mei 2019
Stuur nu jullie project in voor de Woongebouw van het Jaar 2019-prijs
13 mei 2019
Stuur nu jullie project in voor de Zorggebouw van het Jaar 2019-prijs
3 juni 2019
Nog 3 dagen om jullie project in te sturen voor de Architectenweb Awards 2019
19 juni 2019
Atelier PRO ontwerpt Sport- en Tentamencentrum voor Universiteit Leiden
7 oktober 2019
Stuur nu jullie project in voor de Zorggebouw van het Jaar 2020-prijs
2 juni 2020
Atelier PRO ontwerpt woongebouw voor Internationale School Moskou
29 juli 2020
Stuur nu jullie project in voor de prijs voor Zorggebouw van het Jaar 2021
31 mei 2021
Atelier PRO één van de winnaars bij internationale prijsvraag in Moskou
29 juni 2021
Geen nominaties voor Zorggebouw van het Jaar 2021
23 september 2021
Stuur nu jullie project in voor de prijs voor Zorggebouw van het Jaar 2022
30 mei 2022
Toon alles
Gerelateerde video's
Uitreiking van Architectenweb Awards 2018
Een sfeervolle video-impressie
Andere nieuwsberichten
Plan Spot belooft Lelystad bruisend centrumgebied
3 oktober, 4:30
Heutink Groep, Groosman en LOLA Landscape Architects winnen tender stadshart met nieuw horecaplein.
Hoogste punt van woontoren Blaak 333 bereikt
3 oktober, 3:11
De door Kraaijvanger Architects ontworpen woontoren in het centrum van Rotterdam verrijst op de plek waar voorheen een kantoortoren van de Rabobank stond.
‘NDSM-werf en Buiksloterham zijn júíst inspirerende voorbeelden voor de stad van morgen’
3 oktober, 2:40
Architect Alexander Straub reageert op de column van Alexander Pols, waarin de vraag centraal stond of we bij de bouw van nieuwe wijken als Buiksloterham en de NDSM-werf in Amsterdam kunnen leren van de traditionele Europese stad.
Zes nominaties voor Haagse architectuurprijs Berlagevlag 2025
3 oktober, 1:34
De nominaties voor de Haagse architectuurprijs, de Berlagevlag, zijn bekend. Uit 31 inzendingen koos de vakjury zes projecten.
Kamer wil dat Keijzer afziet van versoepelingen huurwet
3 oktober, 12:11
Sinds de huurwet - tegen de zin van Keijzer - van kracht werd, waarschuwen verhuurders dat daardoor het aanbod aan betaalbare huurwoningen afneemt.
Steden vrezen voor woningbouw door nieuwe regels netcongestie
2 oktober, 4:25
Amsterdam, Den Haag, Rotterdam en Utrecht vrezen dat de bouw van nieuwe woningen stil komt te liggen door netcongestie.
Dienst Toeslagen: plan voor wonen op vakantieparken onuitvoerbaar
2 oktober, 1:06
Het kabinetsplan om permanent wonen in vakantiehuisjes mogelijk te maken, is volgens de Dienst Toeslagen onuitvoerbaar.
Zuid-Holland wil in ‘oogstjaar’ 2026 plannen uitvoeren
1 oktober, 3:16
De provincie investeert onder meer in infrastructuur, woningbouw, natuur en versterking van kleine kernen.
Rijk schrijft aanbesteding uit voor nieuwe marinierskazerne
1 oktober, 2:27
Eind 2031 wil het Korps Mariniers vanuit zijn huidige kazerne in Doorn verhuizen naar een nieuw onderkomen op de bestaande Defensielocatie Kamp Nieuw-Milligen vlakbij Apeldoorn.
Landschapstriënnale 2026 strijkt neer in Arnhem
1 oktober, 11:57
Het thema van de komende editie van de manifestatie is ‘Op Waterbasis’.
Ga naar het nieuws-archief
0
0
0
0
Voor een optimale gebruikservaring plaatst Architectenweb functionele cookies. Wat de verschillende cookies precies doen leggen we uit in een
overzicht
. Cookies van social media kun je optioneel
aanzetten
.
Akkoord
Instellingen
Annuleren
OK
Sluiten
Doorgaan
Inloggen
Maak een gratis persoonlijk account aan
Feedback
Feedback
Wij horen graag jouw feedback. Laat je reactie achter en eventueel jouw e-mail adres.
Reactie
Verstuur