Projecten
Producten
Bedrijven
Vacatures
Agenda
Awards
Podcasts
more_horiz
Videos
Magazine
Thema's
Favorieten
Profiel
Uitloggen
Abonneer je nu op onze nieuwsbrieven!
Abonneren
Nee, bedankt
Ja, denk met me mee rond de
materialisering van mijn project
Copyright: Jan Paul Mioulet / DAPh
Copyright: Jan Paul Mioulet / DAPh
Copyright: Jan Paul Mioulet / DAPh
Copyright: Jan Paul Mioulet / DAPh
Open onderwijsvloer in de oudbouw voor de bovenbouw van Lumion
Copyright: Jan Paul Mioulet / DAPh
Open onderwijsvloer in de oudbouw voor de bovenbouw van Lumion
Copyright: Jan Paul Mioulet / DAPh
Ruimte met Lagerhuis-opstelling in de oudbouw voor de bovenbouw van Lumion
Copyright: Jan Paul Mioulet / DAPh
Copyright: Jan Paul Mioulet / DAPh
Copyright: Martijn de Visser
Copyright: Jan Paul Mioulet / DAPh
Copyright: Jan Paul Mioulet / DAPh
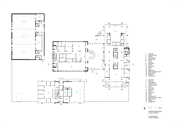
Begane grond
Copyright: Atelier PRO
Tweede verdieping
Copyright: Atelier PRO
Doorsnede
Copyright: Atelier PRO
Doorsnede
Copyright: Atelier PRO
Situatie
Copyright: Atelier PRO
Copyright: Jan Paul Mioulet / DAPh
Copyright: Jan Paul Mioulet / DAPh
Atelier PRO ontwerpt een Kunskapsskolan voor 1300 leerlingen in Amsterdam
7 november 2019, 9:15
In Amsterdam West, op steenworp afstand van metrostation Henk Sneevlietweg, heeft
Atelier PRO
een nieuwe huisvesting voor Lumion ontworpen. Op de school wordt aan 1300 leerlingen gepersonaliseerd onderwijs gegeven volgens het Zweedse Kunskapsskolan-model.
“De kinderen hier op Lumion stellen hun eigen doelen en hebben een grote mate van zelfstandigheid”, vertellen architecten Dorte Kristensen en Martijn de Visser van Atelier PRO. “In de onderbouw is er daarbij nog wel een combinatie van klassikale lessen en zelfstandig leren, maar in de bovenbouw worden de leerlingen echt vrij gelaten. Het leren van 21
e
-eeuwse vaardigheden, daar gaat het om.”
Vanwege de explosieve groei van de school, die enkele jaren geleden startte als een afsplitsing van het Caland Lyceum, was die snel uit zijn tijdelijke huisvesting in een bestaand kantoorgebouw gegroeid. Atelier PRO werd geselecteerd om op de plek van een oude MBO in Amsterdam West een nieuwe, tweemaal zo grote huisvesting te ontwerpen.
“We hebben Lumion ervan kunnen overtuigen het grootste deel van die school, een ontwerp van architect Ben Ingwersen, te behouden”, vertelt Kristensen. Die school bestond uit een drielaags gebouw voor de theorielessen (het hoofd) en een veld van vijf eenlaagse hallen voor de praktijklessen (de handen). Vooral het drielaagse gebouw leende zich goed voor de nieuwe onderwijsfunctie, de hallen zijn voor een deel vervangen door een vijflaagse nieuwbouw. Een groot atrium verbindt nu de oudbouw met de nieuwbouw.
Wenteltrap naar onderbouw
Bij binnenkomst in het atrium gaat alle aandacht uit naar de theatraal uitkragende en zeer brede wenteltrap. De trap helt een beetje over en lijkt wel te zweven. In plaats van dat hij is opgehangen aan dikke kolommen of wanden, is de wenteltrap opgehangen aan balkons. Hoe is dit mogelijk?
“De school wilde een binnenkomst met spektakel”, vertelt De Visser. “Omdat wij als bureau niet van de vormelijke architectuur zijn, bedachten we deze vrijhangende trap, die ook nog eens heel functioneel is.” Door vanaf het begin samen met constructeur Van Rossum aan de trap te werken, was deze zeer luchtige constructie mogelijk. Oscar Niemeyer zou er jaloers op zijn geweest. Mooie details: naar boven toe wordt de trap steeds smaller, aangezien er naar boven toe ook steeds minder leerlingen overheen hoeven, en helemaal bovenin eindigt de trap onder een rond daglicht.
De wenteltrap ontsluit vier lagen waar steeds zo’n 200 leerlingen op de onderbouw hun ‘thuis’ hebben. Iedere laag heeft een zeer diepe plattegrond met langs de randen vijf lokalen met grote schuifdeuren en in het middengebied tussen boekenkasten een grote diversiteit aan studieplekken: lange tafels, maar ook kleinere zitjes, een verrijdbare tribune, concentratieplekken, en een groot ‘meubel’ dat als een landschap ingenomen kan worden. De leraren kijken vanuit een eigen transparante ruimte midden achterin uit over het geheel.
Elke laag, of ‘nestje’ zoals de school het zelf noemt, heeft een net andere uitstraling die samengebald wordt in een uniek ‘meubel’. Op een van de lagen heeft die de vorm van een ‘zwevend tapijt’, er is een ‘boomhut’, maar ook een ‘zitkuil’ en tenslotte is er nog een gepixeld landschap vol verwijzingen naar de film van Ray en Charles Eames ‘Power of Ten’.
Onder de vier lagen van de onderbouw ligt een laag met ‘labs’ – praktijklokalen. Hier kan onder begeleiding van leraren geëxperimenteerd worden met natuurkunde of scheikunde, kunnen video’s gemonteerd worden, geschilderd of getekend worden, enzovoorts.
Oude trap naar bovenbouw
In het bestaande gebouw kon Atelier PRO de bestaande, betegelde trap hergebruiken. Deze ontsluit twee grote verdiepingen voor ieder zo’n 300 leerlingen. De plint is ook hier ingericht met praktijklokalen, in dit geval voor ‘theater’, maar hier is ook een grand café ingericht.
De verdiepingen zijn wel even wennen voor wie nog de indeling van een traditionele middelbare school in gedachten heeft. Dit ziet er heel anders uit. De vloeren zijn grotendeels open en je ziet overal zelfstandig studerende leerlingen. Over de vloer is een rondgang gemaakt, waaraan allerlei zitjes liggen, waar grote blokken met samenwerkruimtes tussen liggen, en waar langs de randen ook nog wel enkele lokalen, of eigenlijk meer collegezalen, te vinden zijn. Die collegezalen hebben soms wel 90 zitplaatsen. Een van die ruimtes heeft de opstelling van het Britse Lagerhuis en wordt ook gebruikt voor debatten.
Bij het ontwerp van het interieur van zowel de onderbouw als de bovenbouw heeft Atelier PRO een rustige basis neergezet met witte wanden en plafonds, lichtgrijze vloeren en eikenhouten kozijnen en deuren. Daar bovenop heeft het kleurrijke accenten aangebracht. In de bovenbouw zijn daarbij ook nog tal van uitspraken van historische figuren op de wanden aangebracht.
Kristensen moet lachen om de afbeelding van Pippi Langkous beneden in de hal. Het onderwijsconcept, Kunskapsskolan, komt natuurlijk ook uit Zweden. En was het niet juist Pippi Langkous die stelde: ik heb het nog nooit gedaan, dus ik denk dat ik het wel kan. Een geweldige illustratie van de onderwijsvisie hier, vindt ze.
Gevels
De gevel van het oude gebouw is op nauwelijks zichtbare wijze geïsoleerd. De borstweringen zijn aan de binnenzijde geïsoleerd, het nieuwe glas is voor de bestaande houten windstijlen geplaatst.
Atelier PRO kon de robuuste, modernistische architectuur van Ingwersen wel waarderen en heeft ervoor gekozen om het spel van verticale, betonnen lamellen in het oude gebouw op een gesublimeerde manier terug te laten komen in het reliëf van de stalen gevel van de nieuwbouw.
Kristensen wijst nog op de maat van de raamstroken. Naar beneden toe worden die steeds hoger, om daar genoeg daglicht binnen te brengen. Langs de gevel naar boven kijkend zorgt deze compositie voor een bijzonder, versneld perspectief.
Achter de nieuwbouw heeft Atelier PRO nog een dubbele sportzaal ontworpen. In de twee behouden gebleven oude hallen zijn nog een extra sportruimte en de kantoren voor de directie opgenomen.
Campfires, Caves, Watering holes
Een van de concepten die ten grondslag ligt aan het ontwerp van het Lumion is dat scholen die voorbij het klassikale onderwijs gaan ruimtes als campfires, caves en watering holes krijgen, zoals Kristensen het omschrijft. Daarbij zijn campfires een soort theaters waar leerlingen zich verzamelen rond een expert die een boeiend verhaal verteld. Caves zijn ruimtes waar leerlingen zich terugtrekken om gefocust te studeren. En watering holes zijn ruimtes waar leerlingen samen aan projecten werken en daarbij van elkaar leren.
Niet eerder kon Atelier PRO dit ruimtelijk concept zover uitwerken als hier. Bij de uitbreiding van het Metis Montessori Lyceum in Amsterdam ontwierp het bureau een milde vorm hiervan, bij het IJburg College II ging het al wel een stuk verder. Maar hier kon het bureau ‘all out’ gaan. Kristensen vindt het dan ook jammer dat haar werk erop zit, ze vond het een geweldig project om aan te werken, ook door de vele kritische vragen die ze van de leraren hier kreeg.
Nu de school in zijn nieuwe huisvesting is getrokken is het spannend hoe het ruimtelijke concept bevalt. Is dit hét model voor de school van de toekomst? Of zullen er hier en daar nog aanpassingen nodig zijn? Het krachtige kader dat Atelier PRO voor Lumion heeft ontworpen biedt in ieder geval volop ruimte om het concept in de toekomst verder te verfijnen.
Trefwoorden
school
atelier pro
amsterdam
kunskapskolan
lumion
Locatie
Best gelezen
1
Architect Oliver Thill op 55-jarige leeftijd overleden
donderdag, 5 maart
2
André Kempe: ‘Het ging Oliver Thill om het geven van betekenis’
vrijdag, 6 maart
3
Werkstatt gaat verder zonder medeoprichter Niels Groeneveld
vrijdag, 6 maart
4
HvdHA ontwerpt twee woonblokken in Utrecht Terwijde volgens typologie van woonpalazzo
donderdag, 5 maart
5
Woongebouw door van Bergen Kolpa vormt nieuwe markering langs bocht Rotte
dinsdag, 10 maart
Gerelateerde nieuwsberichten
Drie nieuwe partners voor Atelier PRO
11 december 2018
Landelijk en aardbevingsbestendig kindcentrum door atelier PRO afgerond
3 december 2020
Woonzorgcentrum Scheldehof (atelier PRO) bekroond als Zorggebouw van het Jaar 2018
8 november 2018
Appartementengebouwen geïnspireerd door en gebouwd in de duinen
7 oktober 2021
School van Atelier PRO in Moskou geopend
30 oktober 2018
Verbouwing Allard Pierson van start gegaan
15 juli 2019
Atelier PRO ontwerpt Sport- en Tentamencentrum voor Universiteit Leiden
7 oktober 2019
Architectenweb netwerkevent: verder bouwen aan bestaande scholen
30 januari 2020
Verslag van netwerkevent rond woonzorg
10 mei 2019
Atelier PRO ontwerpt licht en duurzaam schoolgebouw in Geldrop
18 september 2018
Atelier PRO en Vakwerk Architecten ontwerpen Universitair Centrum Psychiatrie in Groningen
6 juli 2018
Vlissings woonzorgcentrum in industriële sfeer
28 februari 2018
Verslag van Het Tweede Grote Zorgcongres
8 december 2015
Compacte nieuwbouw voor Edith Stein College
21 oktober 2015
Atelier PRO ontwerpt extra route door uitgebreid universiteitsmuseum
6 januari 2022
Cultuurhuis De Klinker in Winschoten geopend
22 september 2015
Twee scholen delen nieuwbouw van Atelier PRO
3 juni 2015
Compact schoolgebouw van Atelier PRO geopend
13 mei 2015
Universitair Centrum Psychiatrie in Groningen opent zijn deuren
4 juli 2024
Atelier PRO ontwerpt nieuwbouw VCL in Den Haag
2 februari 2015
Helder en naturel interieur voor WTC Toren C
1 december 2014
Atelier PRO ontwerpt IJburg College-2
8 juli 2014
Onderwijspark Ezinge officieel geopend
21 november 2014
Schreuder College door Atelier PRO: een gewone school voor speciaal onderwijs
31 maart 2025
Research en Diagnostiek Centrum Adore op Zuidas in gebruik genomen
14 juli 2025
Atelier PRO wint selectie herinrichting Berlage Lyceum
7 juli 2020
Atelier PRO ontwerpt woongebouw voor Internationale School Moskou
29 juli 2020
Atelier PRO presenteert verbouwd en uitgebreid Allard Pierson
14 oktober 2020
Atelier PRO één van de winnaars bij internationale prijsvraag in Moskou
29 juni 2021
Introverte gevangenis opent zich als veilig en prettig schoolgebouw
23 november 2021
Zeven nominaties BNA Beste Gebouw van het Jaar 2025
31 maart 2025
Renovatie eerste gebouw Berlage Lyceum Amsterdam afgerond
26 februari 2025
Universitair Centrum Psychiatrie UMCG bekroond als Zorggebouw van het Jaar 2024
6 november 2024
Nominatie Zorggebouw van het Jaar 2024 bekend
25 september 2024
Woongebouw De Scheepmaker wint Lieven de Key Penning 2023
22 november 2023
EDGE Stadium Amsterdam na twee jaar opgeleverd
6 april 2023
Vernieuwd onderkomen Rudolf Steiner School en College in gebruik genomen
21 juni 2022
Eerste paal Universitair Centrum voor Psychiatrie Groningen geslagen
29 april 2022
Spaarndammerhart en British School winnaars Amsterdamse architectuurprijzen
9 december 2021
Nieuw interieurontwerp van Zenber voor bestaand schoolgebouw
28 september 2020
Zecc architecten ontwerpt gemeentehuis Renswoude
24 april 2020
Architectenweb netwerkevent rond de ontwikkelingen in woonzorg
26 maart 2019
Ernstjan Cornelis nieuwe managing director KCAP
3 december 2018
Architectenweb netwerkevent: scholen zonder traditionele klaslokalen
22 mei 2018
Oude gevangenis wordt schoolgebouw
2 maart 2017
Nieuw buurschap nabij Voorschoten
17 januari 2017
Luxe woningen aan de voet van Haagse duinen
9 januari 2017
Alex Letteboer verlaat atelier PRO
5 januari 2017
Nieuw gebouw op plek V&D-pand Delft
13 december 2016
Twee scholen in ensemble van oud en nieuw
24 november 2016
School met polderachtige schuurvorm
17 oktober 2016
Warmond krijgt een nieuw Kloppend hart
21 september 2016
SBID Awards voor Nederlandse projecten
2 december 2015
Reimar von Meding (KAW) keynote op zorgcongres
24 november 2015
Architectenweb houdt Het Tweede Grote Zorgcongres
26 oktober 2015
Russische schoolopdracht Nederlandse bureaus
22 januari 2015
Beeldverslag van Het Grote Scholencongres
16 april 2014
Programma van Het Grote Scholencongres bekend
28 maart 2014
Ontwerpers winnen prijsvraag met melkpakpaviljoens
24 maart 2014
Video: Uitbreiding gemeentehuis Zeist
28 februari 2014
Nominaties Gouden A.A.P. 2014 bekend
20 februari 2014
Nieuwe Bosbadhal in gebruik genomen
20 november 2013
MFC Op Expeditie beleeft officiële opening
18 oktober 2013
Ingrijpende vernieuwing voor Edith Stein College
7 oktober 2013
Atelier PRO: “BREEAM zit duurzaamheid soms in de weg”
15 juli 2013
Elst mag nieuw gemeentehuis nog niet bouwen
10 juli 2013
BNA organiseert handelsmissie Duitsland
5 juni 2013
Multifunctionele accommodatie als sociaal hart
23 mei 2013
Gerenoveerd rijksmonument van Atelier PRO
9 oktober 2012
Oplevering eerste woontoren Waterlandplein
1 oktober 2012
Uitslag prijsvraag Amsterdamse brug bekend
26 maart 2012
Bouw Enexis-kantoor Zwolle gestart
15 maart 2012
Atelier PRO ontwerpt Kloppend Hart Warmond
6 maart 2012
Atelier PRO ontwerpt scholen Eindhoven
9 februari 2012
Atelier PRO ontwerpt MFA Krimpen aan de Lek
23 januari 2012
Morfis Urbanism winnaar 'crisis'-Archicup
14 juni 2011
Winnaars Gulden Feniks bekend
8 juni 2011
Bouw Huis van de Heuvel van start
25 mei 2011
Nominaties Gulden Feniks bekend
13 april 2011
‘Puntgaaf’ plan wint prijsvraag Lammermarkt
17 januari 2011
Woningen aan Waterlandplein opgeleverd
1 december 2010
Politieacademie wint Architectuurprijs Apeldoorn
29 november 2010
Graafschap College Doetinchem geopend
4 november 2010
Duurzaamheidsprijs Nederlandse projecten
5 oktober 2010
‘Meest energiezuinige sporthal van Nederland’
28 september 2010
Gerenoveerde politieacademie geopend
1 september 2010
Eerste paal Meander Medisch Centrum
1 september 2010
Atelier PRO richt gemeentehuis Zeist in
12 juli 2010
Atelier PRO ontwerpt 'Huis der Gemeente'
9 juni 2010
Bronckhorst neemt gemeentehuis in gebruik
13 januari 2010
Gerenoveerd Academiegebouw Leiden open
28 augustus 2009
atelier PRO ontwerpt gemeentehuis Oost Gelre
17 juli 2009
Winschoten kiest ontwerp atelier PRO
2 juli 2009
Winschoters stemmen op ontwerp Cultuurhuis
29 mei 2009
Winschoten wint kort geding Cultuurhuis
27 april 2009
‘Nieuwe selectie gemeentehuis Oost-Gelre’
3 maart 2009
Atelier PRO ontwerpt mfc Sas van Gent
19 februari 2009
Vijf kanshebbers voor nieuwbouw Vindicat
14 januari 2009
Eerste paal Graafschap College Doetinchem
12 januari 2009
Amerikaanse onderwijsprijzen voor Atelier PRO
3 oktober 2008
Vijf kandidaten voor Cultuurhuis Winschoten
22 september 2008
atelier PRO ontwerpt MFA Gouda
10 juli 2008
Innovatieve aanbesteding door Atelier PRO
30 mei 2008
Duurzaam gemeentehuis voor Bronckhorst
1 april 2008
Gelderse ruimteprijs voor Ludgerhof
17 maart 2008
Drie nieuwe partners voor Atelier PRO
11 december 2018
Landelijk en aardbevingsbestendig kindcentrum door atelier PRO afgerond
3 december 2020
Woonzorgcentrum Scheldehof (atelier PRO) bekroond als Zorggebouw van het Jaar 2018
8 november 2018
Appartementengebouwen geïnspireerd door en gebouwd in de duinen
7 oktober 2021
School van Atelier PRO in Moskou geopend
30 oktober 2018
Verbouwing Allard Pierson van start gegaan
15 juli 2019
Atelier PRO ontwerpt Sport- en Tentamencentrum voor Universiteit Leiden
7 oktober 2019
Architectenweb netwerkevent: verder bouwen aan bestaande scholen
30 januari 2020
Verslag van netwerkevent rond woonzorg
10 mei 2019
Atelier PRO ontwerpt licht en duurzaam schoolgebouw in Geldrop
18 september 2018
Atelier PRO en Vakwerk Architecten ontwerpen Universitair Centrum Psychiatrie in Groningen
6 juli 2018
Vlissings woonzorgcentrum in industriële sfeer
28 februari 2018
Verslag van Het Tweede Grote Zorgcongres
8 december 2015
Compacte nieuwbouw voor Edith Stein College
21 oktober 2015
Atelier PRO ontwerpt extra route door uitgebreid universiteitsmuseum
6 januari 2022
Cultuurhuis De Klinker in Winschoten geopend
22 september 2015
Twee scholen delen nieuwbouw van Atelier PRO
3 juni 2015
Compact schoolgebouw van Atelier PRO geopend
13 mei 2015
Universitair Centrum Psychiatrie in Groningen opent zijn deuren
4 juli 2024
Atelier PRO ontwerpt nieuwbouw VCL in Den Haag
2 februari 2015
Helder en naturel interieur voor WTC Toren C
1 december 2014
Atelier PRO ontwerpt IJburg College-2
8 juli 2014
Onderwijspark Ezinge officieel geopend
21 november 2014
Schreuder College door Atelier PRO: een gewone school voor speciaal onderwijs
31 maart 2025
Research en Diagnostiek Centrum Adore op Zuidas in gebruik genomen
14 juli 2025
Atelier PRO wint selectie herinrichting Berlage Lyceum
7 juli 2020
Atelier PRO ontwerpt woongebouw voor Internationale School Moskou
29 juli 2020
Atelier PRO presenteert verbouwd en uitgebreid Allard Pierson
14 oktober 2020
Atelier PRO één van de winnaars bij internationale prijsvraag in Moskou
29 juni 2021
Introverte gevangenis opent zich als veilig en prettig schoolgebouw
23 november 2021
Zeven nominaties BNA Beste Gebouw van het Jaar 2025
31 maart 2025
Renovatie eerste gebouw Berlage Lyceum Amsterdam afgerond
26 februari 2025
Universitair Centrum Psychiatrie UMCG bekroond als Zorggebouw van het Jaar 2024
6 november 2024
Nominatie Zorggebouw van het Jaar 2024 bekend
25 september 2024
Woongebouw De Scheepmaker wint Lieven de Key Penning 2023
22 november 2023
EDGE Stadium Amsterdam na twee jaar opgeleverd
6 april 2023
Vernieuwd onderkomen Rudolf Steiner School en College in gebruik genomen
21 juni 2022
Eerste paal Universitair Centrum voor Psychiatrie Groningen geslagen
29 april 2022
Spaarndammerhart en British School winnaars Amsterdamse architectuurprijzen
9 december 2021
Nieuw interieurontwerp van Zenber voor bestaand schoolgebouw
28 september 2020
Zecc architecten ontwerpt gemeentehuis Renswoude
24 april 2020
Architectenweb netwerkevent rond de ontwikkelingen in woonzorg
26 maart 2019
Ernstjan Cornelis nieuwe managing director KCAP
3 december 2018
Architectenweb netwerkevent: scholen zonder traditionele klaslokalen
22 mei 2018
Oude gevangenis wordt schoolgebouw
2 maart 2017
Nieuw buurschap nabij Voorschoten
17 januari 2017
Luxe woningen aan de voet van Haagse duinen
9 januari 2017
Alex Letteboer verlaat atelier PRO
5 januari 2017
Nieuw gebouw op plek V&D-pand Delft
13 december 2016
Twee scholen in ensemble van oud en nieuw
24 november 2016
School met polderachtige schuurvorm
17 oktober 2016
Warmond krijgt een nieuw Kloppend hart
21 september 2016
SBID Awards voor Nederlandse projecten
2 december 2015
Reimar von Meding (KAW) keynote op zorgcongres
24 november 2015
Architectenweb houdt Het Tweede Grote Zorgcongres
26 oktober 2015
Russische schoolopdracht Nederlandse bureaus
22 januari 2015
Beeldverslag van Het Grote Scholencongres
16 april 2014
Programma van Het Grote Scholencongres bekend
28 maart 2014
Ontwerpers winnen prijsvraag met melkpakpaviljoens
24 maart 2014
Video: Uitbreiding gemeentehuis Zeist
28 februari 2014
Nominaties Gouden A.A.P. 2014 bekend
20 februari 2014
Nieuwe Bosbadhal in gebruik genomen
20 november 2013
MFC Op Expeditie beleeft officiële opening
18 oktober 2013
Ingrijpende vernieuwing voor Edith Stein College
7 oktober 2013
Atelier PRO: “BREEAM zit duurzaamheid soms in de weg”
15 juli 2013
Elst mag nieuw gemeentehuis nog niet bouwen
10 juli 2013
BNA organiseert handelsmissie Duitsland
5 juni 2013
Multifunctionele accommodatie als sociaal hart
23 mei 2013
Gerenoveerd rijksmonument van Atelier PRO
9 oktober 2012
Oplevering eerste woontoren Waterlandplein
1 oktober 2012
Uitslag prijsvraag Amsterdamse brug bekend
26 maart 2012
Bouw Enexis-kantoor Zwolle gestart
15 maart 2012
Atelier PRO ontwerpt Kloppend Hart Warmond
6 maart 2012
Atelier PRO ontwerpt scholen Eindhoven
9 februari 2012
Atelier PRO ontwerpt MFA Krimpen aan de Lek
23 januari 2012
Morfis Urbanism winnaar 'crisis'-Archicup
14 juni 2011
Winnaars Gulden Feniks bekend
8 juni 2011
Bouw Huis van de Heuvel van start
25 mei 2011
Nominaties Gulden Feniks bekend
13 april 2011
‘Puntgaaf’ plan wint prijsvraag Lammermarkt
17 januari 2011
Woningen aan Waterlandplein opgeleverd
1 december 2010
Politieacademie wint Architectuurprijs Apeldoorn
29 november 2010
Graafschap College Doetinchem geopend
4 november 2010
Duurzaamheidsprijs Nederlandse projecten
5 oktober 2010
‘Meest energiezuinige sporthal van Nederland’
28 september 2010
Gerenoveerde politieacademie geopend
1 september 2010
Eerste paal Meander Medisch Centrum
1 september 2010
Atelier PRO richt gemeentehuis Zeist in
12 juli 2010
Atelier PRO ontwerpt 'Huis der Gemeente'
9 juni 2010
Bronckhorst neemt gemeentehuis in gebruik
13 januari 2010
Gerenoveerd Academiegebouw Leiden open
28 augustus 2009
atelier PRO ontwerpt gemeentehuis Oost Gelre
17 juli 2009
Winschoten kiest ontwerp atelier PRO
2 juli 2009
Winschoters stemmen op ontwerp Cultuurhuis
29 mei 2009
Winschoten wint kort geding Cultuurhuis
27 april 2009
‘Nieuwe selectie gemeentehuis Oost-Gelre’
3 maart 2009
Atelier PRO ontwerpt mfc Sas van Gent
19 februari 2009
Vijf kanshebbers voor nieuwbouw Vindicat
14 januari 2009
Eerste paal Graafschap College Doetinchem
12 januari 2009
Amerikaanse onderwijsprijzen voor Atelier PRO
3 oktober 2008
Vijf kandidaten voor Cultuurhuis Winschoten
22 september 2008
atelier PRO ontwerpt MFA Gouda
10 juli 2008
Innovatieve aanbesteding door Atelier PRO
30 mei 2008
Duurzaam gemeentehuis voor Bronckhorst
1 april 2008
Gelderse ruimteprijs voor Ludgerhof
17 maart 2008
Toon alles
Andere nieuwsberichten
Groningen stelt gebiedsvisie voor wijk De Nieuwe Held vast
Gisteren, 15:45
In vijftien jaar tijd wil de gemeente 1.850 woningen bouwen in de nieuwe wijk aan de westkant van de stad. De verwachting is dat de bouw eind 2027, begin 2028 kan starten.
Bouw paviljoen van Atelier PUUUR met buurtfunctie en voorzieningen gestart
Gisteren, 14:06
In Amsterdam Noord is de bouw gestart van een paviljoen naar ontwerp van Atelier PUUUR met daarin een Ouder- en Kindteamlocatie en een buurtkamer. Het tweelaagse gebouw markeert tevens de entree van een naastgelegen groengebied.
Zeven ontwerpteams aan de slag met herontwikkeling Bernhardkazerne Amersfoort
Gisteren, 11:44
Het opleidings- en trainingscentrum van de Koninklijke Landmacht, dat uit meerdere gebouwen bestaat, is dringend toe aan modernisering. De zeven bureaus werken alle aan een deelopdracht binnen het masterplan voor de kazerne.
Kantoorcomplex door Goof Spruit bij station Utrecht krijgt tweede leven als De Nieuwe Tuin
Gisteren, 10:26
In het ontwerp van BiermanHenket behoudt het complex zijn kenmerkende honingraatstructuur, maar krijgt het een opener karakter. Ook wordt het gebouw zowel binnen als buiten vergroend.
Raad van State blokkeert plan voor verbouwing ring Utrecht
Gisteren, 16:31
Vorig jaar kreeg het kabinet de opdracht om de stikstofuitstoot van het project beter uit te leggen, maar dat is niet gelukt.
Provincie akkoord met natuurherstel voor nieuwe ASML-campus
Gisteren, 12:30
De provincie Noord-Brabant stemt in met het plan waarmee chipmachinefabrikant ASML natuur wil compenseren bij de realisatie van de nieuwe campus.
CBS: uitstoot gestegen in 2025, klimaatdoelen verder uit zicht
Gisteren, 09:20
Vorig jaar werd er 0,8 procent meer broeikasgassen uitgestoten dan in 2024.
Renovatie Belgisch Justitiepaleis loopt op tot zeshonderd miljoen euro
10 maart, 2:33
Het Justitiepaleis in Brussel is ruim 140 jaar oud en staat al meer dan veertig jaar in de steigers.
Zuid-Holland stemt in met bouwplannen 285.000 huizen tot 2036
10 maart, 12:12
Het college van Gedeputeerde Staten stemde in met 2333 ingediende plannen, omdat ze voldoen aan de provinciale regels in het omgevingsbeleid.
Fors meer omzet bouwbedrijf Dura Vermeer door grote vraag
10 maart, 9:48
Volgens het familiebedrijf uit Rotterdam steeg de jaaromzet met 24 procent tot 2,6 miljard euro.
Ga naar het nieuws-archief
Michiel van Raaij
Hoofdredacteur
3
0
0
0
Voor een optimale gebruikservaring plaatst Architectenweb functionele cookies. Wat de verschillende cookies precies doen leggen we uit in een
overzicht
. Cookies van social media kun je optioneel
aanzetten
.
Akkoord
Instellingen
Annuleren
OK
Sluiten
Doorgaan
Inloggen
Maak een gratis persoonlijk account aan
Feedback
Feedback
Wij horen graag jouw feedback. Laat je reactie achter en eventueel jouw e-mail adres.
Reactie
Verstuur