Projecten
Producten
Bedrijven
Vacatures
Agenda
Awards
Podcasts
more_horiz
Videos
Magazine
Thema's
Favorieten
Profiel
Uitloggen
Nieuw
Populair
Toon alles
Architectenweb magazine #14
Architectenweb magazine #13
Publieke gebouwen
Architectenweb magazine #12
Kantoren
Architectenweb magazine #11
Scholen
Architectenweb magazine #10
Zorg
Architectenweb magazine #14
Architectenweb magazine #10
Zorg
Architectenweb magazine #12
Kantoren
Architectenweb magazine #13
Publieke gebouwen
Architectenweb magazine #6
Transformatie en Renovatie
Om direct naar je favorieten te kunnen gaan is het nodig om eerst in te loggen.
Nieuw
Architectenweb Awards 2025
Architectenweb Awards 2024
Architectenweb Awards 2023
Architectenweb Awards 2022
Architectenweb Awards 2021
Architectenweb Awards 2020
Architectenweb Awards 2019
Architectenweb Awards 2018
Om direct naar je favorieten te kunnen gaan is het nodig om eerst in te loggen.
Nieuw
Populair
Favorieten
Toon alles
Vakwerk Architecten
Nominatie voor de prijs voor Architect van het Jaar 2025
Sanne van Manen
Nominatie voor de prijs voor Architect van het Jaar 2025
KSA
Nominatie voor de prijs voor Architect van het Jaar 2025
KRFT
Nominatie voor de prijs voor Architect van het Jaar 2025
Joost Ector
Nominatie voor de prijs voor Architect van het Jaar 2025
Prijsuitreiking Architectenweb Awards 2024
Impressie van een feestelijke avond
Martens, Willems & Humblé Architecten
Nominatie voor de prijs voor Architect van het Jaar 2024
Uitreiking van Architectenweb Awards 2020
Impressie van de prijsuitreiking via Zoom
De Zwarte Hond
Nominatie voor de prijs voor Architect van het Jaar 2024
Avond met De Zwarte Hond
Symposium
Om direct naar je favorieten te kunnen gaan is het nodig om eerst in te loggen.
Nieuw
Populair
Categorieën
Favorieten
Toon alles
ST1centrum
Dé specialist op het gebied van gevelstenen en dakpannen met showrooms in Amsterdam en Meppel
Studio Massimo
Architecture & Nature
Brandpreventie Academy BV
HoutPro+
Cay Circulaire Keukens
Circulaire keukens en pantry's
Studio Kirsten Reith
Interieurontwerp
Interior & Co
Cay Circulaire Keukens
Circulaire keukens en pantry's
Orange Automatic Doors
Studio175
Interieuradvies in regio Utrecht
Studio Kirsten Reith
Interieurontwerp
Brandpreventie Academy BV
Architecten
Architectuur
Mobiliteit en infrastructuur
Stedenbouw en landschapsarchitectuur
Leveranciers
Gevels
Daken
Ramen en deuren
Trappen, liften en balustrades
Binnenwanden
Vloeren
Plafonds
Verlichting
Sanitair
Projectinrichting
Installaties
Constructies
Buitenruimte
Software
Adviseurs
Bestekschrijvers
Bouwmanagement
Installatie adviseurs E
Bouwfysica
Calculators
Installatie adviseurs G/W
Bouwkundig tekenwerk
Constructeurs
Lichtadviseurs
Adviseur beveiliging
Juristen
Intermediairs, Payrolling
Aannemers
Overig
Presentatie
Instellingen / onderwijs
Overig
Om direct naar je favorieten te kunnen gaan is het nodig om eerst in te loggen.
Nieuw
Populair
Favorieten
Toon alles
Gesprek met Stephan Sliepenbeek over hoogbouw in Amstel III
Gesprek met Ellen van Bueren over gebiedsontwikkeling en hoogbouw
Gesprek met Ma Yansong over ontwerpen die emotie oproepen
Gesprek met Paul de Ruiter over innovatieve en duurzame hoogbouw
Gesprek met Pi de Bruijn over zijn ontwerpen voor de Tweede Kamer toen en nu
Gesprek met Ellen van Bueren over gebiedsontwikkeling en hoogbouw
Gesprek met Oresti Sarafopoulos over het ontwerpen van een kantoorgebouw met bijna geen installaties
Gesprek met Stijn Steenbakkers over verdichting en hoogbouw in Eindhoven
Gesprek met Pi de Bruijn over zijn ontwerpen voor de Tweede Kamer toen en nu
Gesprek met Paul de Ruiter over innovatieve en duurzame hoogbouw
Om direct naar je favorieten te kunnen gaan is het nodig om eerst in te loggen.
Nieuw
Populair
Categorieën
Favorieten
Toon alles
Smart Lighting voor kantoorcampus Tripolis Park
700 modulaire lichtstraten gebruikt Icône kantoor
Duurzaam logistiek centrum vol daglicht
Renovatie parkeergarage WTC Beursplein, Rotterdam
MBO-school Firda in stadion van Cambuur
Boekweitkamp, Den Haag
Exclusieve wooneenheden
De Grote Zwaan, Nijmegen
Renovatieproject Ockenburghstraat
ASML Gebouw 3
Architectuur
Woningbouw
Zorg
Hotels
Restaurants en café’s
Winkels
Sportgebouwen
Culturele gebouwen
Overheidsgebouwen
Scholen
Kantoren
Bedrijfsgebouwen
Paviljoens en kunst
Overig
Mobiliteit en infrastructuur
Trein- en metrostations
Luchthavens
Busstations
Parkeergarages
Fietsparkeren
Wegen
Bruggen
Water
Energie
Tankstations en laadstations
Waterzuivering en afvalverwerking
Overig
Stedenbouw en landschapsarchitectuur
Regionale visies
Gebiedsvisies
Plannen stedelijk weefsel
Amusementsparken en dierentuinen
Lichtontwerpen
Openbare ruimte
Pleinen
Parken
Tuinen
Speelplaatsen
Uitkijktorens
Overige (bijv. begraafplaatsen)
Om direct naar je favorieten te kunnen gaan is het nodig om eerst in te loggen.
Nieuw
Populair
Categorieën
Favorieten
Toon alles
DINrail Zigbee dimmer
Centrale dimoplossing voor slimme verlichting
De nieuwe Gira G1.
Sneller. Groter. Sterker.
HomeComfort
Create your ambiance in a touch
Next Generation USB C opladers
De Next Generation USB C opladers: snel, compact and efficiënt
D31TDV- en D31TDH IP-video deurintercom systemen
Innovatie voor appartementencomplexen en grote gebouwen
StoTherm Wood: cementvrij gevelsysteem met houtvezelisolatie
Biobased gevelisolatie met natuurlijke prestaties
StoTherm Wood: cementvrij gevelsysteem met houtvezelisolatie
Biobased gevelisolatie met natuurlijke prestaties
StoTherm Wood: cementvrij gevelsysteem met houtvezelisolatie
Biobased gevelisolatie met natuurlijke prestaties
Akoestisch kussen.
Ervaar de ultime natuurlijke oplossing voor akoestiek problemen.
Akoestisch kussen.
Ervaar de ultime natuurlijke oplossing voor akoestiek problemen.
Akoestisch kussen.
Ervaar de ultime natuurlijke oplossing voor akoestiek problemen.
Knauf MaxSpace
Minder wand, méér ruimte. Het ideale profiel voor meer winst per m²
Knauf MaxSpace
Minder wand, méér ruimte. Het ideale profiel voor meer winst per m²
Knauf MaxSpace
Minder wand, méér ruimte. Het ideale profiel voor meer winst per m²
Lumiglaze – Het vlakglas van VELUX Commercial
Een nieuw tijdperk in daglichtontwerp – minimalistisch, functioneel en klaar voor de toekomst.
Lumiglaze – Het vlakglas van VELUX Commercial
Een nieuw tijdperk in daglichtontwerp – minimalistisch, functioneel en klaar voor de toekomst.
Lumiglaze – Het vlakglas van VELUX Commercial
Een nieuw tijdperk in daglichtontwerp – minimalistisch, functioneel en klaar voor de toekomst.
Veelzijdig straatmeubilair
Van openbare ruimte naar (be)leefomgeving
Veelzijdig straatmeubilair
Van openbare ruimte naar (be)leefomgeving
Veelzijdig straatmeubilair
Van openbare ruimte naar (be)leefomgeving
Gevels
Gevelbekleding
Vliesgevels
Zonwering buiten
Isolatie
Gevelconstructies
Signing
Overig
Daken
Dakafwerkingen
Dakisolatie
Dakconstructies
Dakranden, dakgoten en HWA's
Dakramen
Lichtkoepels
Lichtstraten
Schoorstenen
Overig
Dakluiken
Ramen en deuren
Raam- en deursystemen / kozijnen
Vliesgevels
Hang- en sluitwerk
Beveiliging en luiken
Dorpels en vensterbanken
Lateien
Roosters
Glas
Dakramen
Dakkoepels
Lichtstraten
Zonwering buiten
Zonwering binnen
Buitendeuren
Binnendeuren
Postvakken en brievenbussen
Overig
Dakluiken
Trappen, liften en balustrades
Trappen
Roltrappen
Liften
Balustrades en hekwerken
Galerijen
Binnenwanden
Binnenwanden
Wandafwerking
Vloeren
Constructieve vloeren
Verhoogde vloeren
Vloerafwerkingen
Overig
Plafonds
Tegels
Lineair
Grill
Open en roosters
Naadloos
Eilanden en baffles
Plafondafwerkingen
Ophangsystemen
Overig
Klimaatplafonds
Verlichting
Binnenverlichting
Buitenverlichting
Sanitair
Kranen en douchesets
Wastafels
Douchewanden en douchebakken
Baden
Waterclosets
Accessoires
Overig
Projectinrichting
Stoelen
Banken
Tafels
Kasten
Balies
Vrijstaande wanden
Keukens
Accessoires
Overig
Cabines
Interieurbeplanting
Stoffering
Installaties
Verwarming, koeling en ventilatie
Elektrotechnische installaties
Schakelmateriaal
Domotica
Deurcommunicatie
Beveiliging
Liften
Onderhoudsinstallaties
Overig
Brandbeveiliging
Constructies
Draagconstructies
Funderingen en kelders
Overig
Brandbeveiliging
Buitenruimte
Bestratingen en verhardingen
Afwateringen
Terreinafscheidingen en geluidsschermen
Buitenmeubilair
Fietsparkeren
Terrassen
Terrasoverkappingen
Bruggen
Accessoires
Overig
Beplanting
Sport- en speeltoestellen
Software
Tekenen 2D
Modelleren 3D / BIM
Visualisatie / rendering
Parametrisch ontwerpen
Bouwfysica
Draagconstructie
Overig
Virtual Reality
Cloudoplossingen
Om direct naar je favorieten te kunnen gaan is het nodig om eerst in te loggen.
Nieuw
Populair
Favorieten
Toon alles
Prefab beurs - 7 t/m 9 oktober 2025
Brabanthallen 's-Hertogenbosch
Boekpresentatie en panelgesprek met Floor Milikowsky
Prins Hendrikkade 600, 1011 VX Amsterdam
Architects Table ’25: Lunch & Inspiratie in HAUT Amsterdam
ATAG LIVE – HAUT gebouw, Spaklerweg 10F, 1096 BA Amsterdam (tegenover metrostation Spaklerweg)
Inspiratiedag @ Sempergreen – Gevelgroen
Defensieweg 1, 3984 LR Odijk
Architectenweb symposium: klein maar fijn wonen?
Pakhuis de Zwijger
Ontdek het seminarieprogramma van Architect@Work Amsterdam
De Kromhouthal, Gedempt Hamerkanaal 231, Amsterdam
Prefab beurs - 7 t/m 9 oktober 2025
Brabanthallen 's-Hertogenbosch
Architects Table ’25: Lunch & Inspiratie in HAUT Amsterdam
ATAG LIVE – HAUT gebouw, Spaklerweg 10F, 1096 BA Amsterdam (tegenover metrostation Spaklerweg)
DigiBouw 2025 – hét event voor digitalisering in de bouwsector
Expozaal van het Beatrixgebouw in Utrecht
Boekpresentatie en panelgesprek met Floor Milikowsky
Prins Hendrikkade 600, 1011 VX Amsterdam
Om direct naar je favorieten te kunnen gaan is het nodig om eerst in te loggen.
Nieuw
Toon alles
Design
Duurzaamheid
Gevel
Infrastructuur
Interieur
Kantoren
Leisure
Openbare ruimte
Publieke gebouwen
Scholen
Transformatie en Renovatie
Woningbouw
Zorg
Om direct naar je favorieten te kunnen gaan is het nodig om eerst in te loggen.
Nieuw
Populair
Toon alles
Medior Architect
Assistent Ontwerper (Junior Architect)
Ervaren Bouwkundig Tekenaar
9graden architectuur Amersfoort zoekt een bouwkundig modelleur
SVP zoekt bureauondersteuner
SVP zoekt medior stedenbouwkundige
Junior Architect (NL/EN)
De Academie van Bouwkunst Amsterdam zoekt twee onderzoekers voor lectoraat
Architect
Site Practice zoekt medior architect met 4-6 jaar ervaring (Amsterdam)
Junior Ontwerper
Studio Nauta zoekt projectleider
Om direct naar je favorieten te kunnen gaan is het nodig om eerst in te loggen.
Copyright: Sebastiaan van Damme
Copyright: Sebastiaan van Damme
Copyright: Sebastiaan van Damme
Copyright: Sebastiaan van Damme
Copyright: Sebastiaan van Damme
Copyright: Sebastiaan van Damme
Copyright: Sebastiaan van Damme
Copyright: Sebastiaan van Damme
Copyright: Sebastiaan van Damme
Copyright: Sebastiaan van Damme
Copyright: Sebastiaan van Damme
Copyright: Sebastiaan van Damme
Copyright: Sebastiaan van Damme
Copyright: Sebastiaan van Damme
Copyright: Sebastiaan van Damme
Copyright: Sebastiaan van Damme
Situatie
Copyright: Powerhouse Company
Begane grond
Copyright: Powerhouse Company
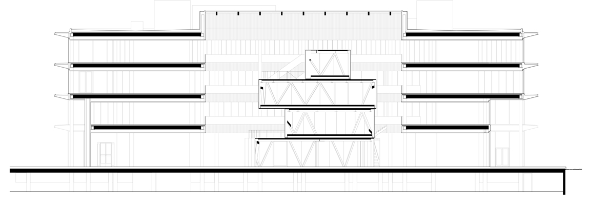
Doorsnede
Copyright: Powerhouse Company
Eerste verdieping
Copyright: Powerhouse Company
Noordgevel
Copyright: Powerhouse Company
Hoofdkantoor Asics naar ontwerp van Powerhouse Company in gebruik genomen
16 mei 2019, 8:02
Het nieuwe hoofdkantoor voor sport- en lifestylemerk Asics voor de regio Europa, Midden-Oosten en Afrika (EMEA) in Hoofddorp is in gebruik genomen. Het kantoorgebouw is ontworpen door Powerhouse Company en ontwikkeld door RED Company. Powerhouse Company, ASICS en CBRE waren in co-creatie verantwoordelijk voor het interieurontwerp.
Een helder en tegelijk elegant gebouw, zo omschrijft Powerhouse Company zijn ontwerp. De kantoorverdiepingen in het gebouw zijn georganiseerd rond een centraal atrium, waarin een sculpturaal object is opgenomen waarin Asics zichzelf kan presenteren. Dankzij een volledig glazen dak, valt volop daglicht het atrium binnen. Verdiepingshoge glazen ramen zorgen voor veel daglicht op de kantoorverdiepingen, waarbij ranke luifels ervoor zorgen dat de direct zoninstraling beperkt wordt. Uitsparingen in de gevel maken ruimte voor terrassen en de entree.
De kantoorverdiepingen zelf worden direct vanuit het atrium ontsloten met brede trappen, want het is gezonder om de trap te nemen dan de lift. En doordat de kolommen langs de gevel en het atrium geplaatst zijn, zijn de kantoorvloeren vrij indeelbaar.
Asics World
“In navolging van de
palazzo
traditie vormt het atrium zowel de symbolische als de fysieke kern van het gebouw”, verklaart Powerhouse Company. “Het atrium verruimt de functie van een conventionele kantoorlobby door de informele kwaliteit van een ontmoetingsruimte te combineren met de grandeur van een tentoonstellingsruimte.”
“In het hart van het atrium ligt 'Asics World', een vierlaagse, driedimensionale showcase waarin alle submerken tentoongesteld worden. Het bestaat uit een speelse compositie van op elkaar gestapelde blokken. Het dient als een multifunctionele ruimte die geschikt is voor wisselende, informele activiteiten en functioneert onder meer als ontmoetingsruimte, ontwerpcentrum en podium.”
Op de begane grond, rondom ‘Asics World’, liggen nog verschillende andere gemeenschappelijke functies, waaronder een restaurant, een bar, een fitnessruimte en een Asics winkel.
Gezondheid
In lijn met de filosofie van Asics – ‘A Sound Mind in a Sound Body’ – was de ambitie op het vlak van duurzaamheid en het welbevinden van de werknemers hoog gelegd. Dit heeft geleid tot een ontwerp waar op alle vlakken hierover nagedacht is. Een LEED Gold-certificering voor het gebouw en WELL Gold-certificering voor het interieur bevestigen dit.
Om tot een optimalisatie te komen van de duurzaamheids- en de welzijnscomponenten in het hoofdkantoor, werkte het team samen met technologiebedrijf bGrid om tot een smart grid-systeem te komen dat temperatuur, CO
2
en licht meet. Medewerkers kunnen plaatselijk klimaat en licht beheren via een app. Het systeem ondersteunt ook appdiensten zoals Find my Colleague, Room Booking en Workplace Finding.
In kantorenpark Beukenhorst-Zuid vormt het nieuwe EMEA-hoofdkantoor van Asics een ensemble met het nieuwe hoofdkantoor van Danone. Ook dat gebouw is ontworpen door Powerhouse Company en ontwikkeld door RED Company.
Het nieuwe EMEA-hoofdkantoor van Asics meet 11.600 m
2
.
Trefwoorden
kantoren
hoofddorp
asics
powerhouse company
Locatie
Best gelezen
1
Architectenweb symposium: klein maar fijn wonen?
donderdag, 2 oktober
2
Plan Spot belooft Lelystad bruisend centrumgebied
vrijdag, 3 oktober
3
‘NDSM-werf en Buiksloterham zijn júíst inspirerende voorbeelden voor de stad van morgen’
vrijdag, 3 oktober
4
Nominaties Publiek gebouw van het Jaar 2025 bekend
woensdag, 8 oktober
5
Realisatieovereenkomst voor hoogbouwcomplex De Sax op Wilhelminapier getekend
maandag, 6 oktober
Gerelateerde nieuwsberichten
Overeenkomst voor herontwikkeling Eindhovense Bunker getekend
10 april 2019
Interieur hoofdkantoor Asics knipoog naar Japan
31 mei 2019
ING-campus Amsterdam krijgt transparant paviljoen
22 januari 2019
EMA neemt tijdelijk intrek in Spark-gebouw
11 januari 2019
Architectenweb organiseert serie talkshows op Gevel 2020
9 januari 2020
Drie nieuwe torens voor skyline Leiden
12 september 2018
Powerhouse en Benthem Crouwel mikken op Asian Games Athlete Village
22 augustus 2018
Amstel Tower: ‘vrouwelijk’ hoogbouwaccent bij Amstelstation
12 juli 2018
Gepolijst kantoorinterieur drukt de glamour van reizen uit
27 maart 2018
Lichtinstallatie biedt voorproefje op bouwproject Merckt
7 maart 2018
Paviljoen Lân fan Taal biedt ruimte aan alle talen
1 februari 2018
Powerhouse Company ontwerpt hoofdkantoor Danone in Hoofddorp
17 november 2017
Multifunctioneel gebouw met hoofdkantoor Arcadis op Zuidas
22 juni 2017
Powerhouse Company: ‘Wij werken vanuit onze kracht’
25 juli 2017
Nanne de Ru
1 september 2021
Haarlemmermeer zoekt ontwikkelaars voor grote locaties Hoofddorp-Zuid
13 februari 2024
Vanavond: Nanne de Ru en Dikkie Scipio bij Architects, Not Architecture
10 maart 2021
Nieuw hoofdkantoor voor Asics in Hoofddorp
21 februari 2017
Hoofdkantoor Danone in Hoofddorp officieel geopend
10 juli 2019
Nanne de Ru verzorgt zestiende Peutz-lezing
18 september 2019
Bureaus maken visie voor kantorengebied bij station Hoofddorp
4 november 2020
Luifeldak Paper Roof refereert aan klassieke Chinese architectuur
14 januari 2021
Monumentaal ligt Villa JM in het Brabantse bos
12 maart 2021
Nieuwe wijk met 1.600 woningen voor Hoofddorp
18 november 2021
Cepezed ontwerpt nieuw gemeentehuis Haarlemmermeer
3 januari 2022
Nominaties Publiek gebouw van het Jaar 2025 bekend
Gisteren, 09:00
Nieuwe partners Powerhouse Company gaan vestiging in Nairobi leiden
5 september
Multifunctionele ontwikkeling 5Tracks in stationsgebied Breda klaar
3 september
Nominaties Woongebouw van het Jaar 2025 bekend
3 september
Architectenweb Sportzomer: Niels Baljet loopt marathons en is Nederlands kampioen trailrunning
6 augustus
Powerhouse Company presenteert opgeleverde woontoren Nelson in Arnhem
16 juli
Powerhouse Company presenteert Huis aan de Haven in Leeuwarder wijk Middelsee
4 juni
Eerste grootschalige houten woongebouw van Rotterdam opgeleverd
13 mei
Powerhouse Company maakt plan voor terrein rond voormalig kantoor Centraal Beheer
1 mei
Emma Scholten benoemd tot partner bij Powerhouse Company
17 april
Gemeenteraad Rotterdam stelt bestemmingsplannen RISE en Lumière vast
25 februari
Definitief ontwerp voor vernieuwing Centrale Bibliotheek Rotterdam is klaar
26 november 2024
Powerhouse Company en MVRDV bij finalisten van de Internationale Hochhaus Preis
21 oktober 2024
Nominaties Schoolgebouw van het Jaar 2024 bekend
18 september 2024
Muziekwerf in voormalige Rotterdamse kerk opent officieel de deuren
13 september 2024
Construction Company, RED Bouw en Baken Bouw realiseren Think District Amsterdam
11 juni 2024
Team van vijf architectenbureaus maakt winnend ontwerp voor Havenstraat Amsterdam
11 april 2024
Bouw KJ Den Haag officieel gestart
13 december 2023
Çanakkale Antenna-toren: zendmast en publieke voorziening in één
7 september 2023
Powerhouse Company transformeert wederopbouwkerk naar Muziekwerf
19 juli 2023
Gemeenteraad Rotterdam akkoord met voorlopig ontwerp verbouwing bibliotheek
23 juni 2023
Bouw van The Baan Tower van start
9 juni 2023
Hoogste punt bereikt bij gebouwenensemble 5Tracks in Breda
5 april 2023
Nanne de Ru en Hans Ibelings lanceren nieuwe uitgeverij
31 maart 2023
Den Haag en ontwikkelcombinatie leggen elk drie miljoen bij voor torens KJ-plein
27 februari 2023
Boek belicht Meelfabriek op te transformeren terrein Rotterdam
10 februari 2023
Video: de BunkerToren in Eindhoven
26 januari 2023
De brutalistische Bunker en zijn 'Maaskantse' toren
23 januari 2023
VanWonen ontwikkelt woontoren in stationsgebied Nijmegen
2 januari 2023
Floating Office Rotterdam verkozen tot Kantoorgebouw van het Jaar 2022
12 oktober 2022
Nominaties Interieur van het Jaar 2022 bekend
26 september 2022
Nominaties Kantoorgebouw van het Jaar 2022 bekend
5 september 2022
Jakoba Mulderhuis – terrassen nodigen uit tot samenwerking en cross-overs
31 augustus 2022
Ontwerp bezoekerscentrum en omliggend park Koekamp Den Haag gepresenteerd
15 juli 2022
Powerhouse Company, Atelier Oslo en Lundhagen geselecteerd voor vernieuwing Centrale Bibliotheek in Rotterdam
27 juni 2022
Winnaars Rotterdam Architectuurprijs 2022 bekend
22 juni 2022
Realisatie project THIS. in Amsterdam-Noord van start
9 juni 2022
Powerhouse Company ontwerpt nieuw IBM-kantoor in Think District Amsterdam
24 mei 2022
Een stoel als een dragende schelp
20 mei 2022
RED Company ontwikkelt duurzame wijk rond IBM-kantoor in Amsterdam
14 maart 2022
Gebalanceerd interieur voor advocatenkantoor door Powerhouse Company
24 februari 2022
Powerhouse Company presenteert ontwerp circulair universiteitsgebouw voor Tilburg
19 januari 2022
Vijf ontwerpteams maken schetsontwerp Centrale Bibliotheek Rotterdam
4 november 2021
Vijf Nederlandse nominaties bij Brick Award 2022
26 oktober 2021
Nanne de Ru – genomineerd voor prijs Architect van het Jaar 2021
22 september 2021
Van der Valk-hotel Amsterdam verkozen tot BNA Beste Gebouw van het Jaar
16 september 2021
'Floating Office Rotterdam heeft ons geleerd welke voordelen bouwen met hout biedt'
28 juni 2021
Start bouw KAAP Amsterdam aanstaande
5 mei 2021
Nieuwe buurt op voormalig ALO-terrein Groningen
26 maart 2021
Nanne de Ru en Dikkie Scipio op 'Nederlandse' editie Architects, Not Architecture
2 maart 2021
Hourglass van Dam & Partners Architecten wint CTBUH Award of Excellence
18 februari 2021
Powerhouse Company ontwerpt houten woongebouw in Pendrecht
11 februari 2021
Video + foto's: afbouw Floating Office Rotterdam
22 januari 2021
Bouw Het Grote Huis op Landgoed Duivenvoorde gestart
27 oktober 2020
Powerhouse Company presenteert opgeleverde Loop of Wisdom in Chengdu
15 oktober 2020
Drijvende fundering Floating Office Rotterdam op plek gearriveerd
2 september 2020
Architectenweb Podcast – Gesprek met Nanne de Ru over het tegelijkertijd ontwikkelen en ontwerpen van projecten
24 augustus 2020
Houten kap als identiteitsdrager en verbinder voor station Assen
6 juli 2020
Powerhouse Company ontwerpt drijvend GCA-kantoor in Rijnhaven
20 januari 2020
Fenix I grote winnaar Rotterdam Architectuurprijs 2019
18 december 2019
Belangrijkste prijs World Architecture Festival voor LocHal
9 december 2019
Avond over invloed geld en bezit op vormgeving van stad
22 november 2019
Bouw Conradhuis Amsterdam van start
5 december 2018
Nominaties ‘Woongebouw van het Jaar 2018’ bekend
20 september 2018
Culturele Hoofdstad Leeuwarden officieel begonnen
30 januari 2018
Bouw Monarch III van start gegaan
11 juli 2017
Directieuitbreiding voor Powerhouse Company
21 juni 2017
ZUS: Stationsplein Eindhoven wordt living lab
20 juni 2017
Powerhouse Company wint prijsvraag Stationsplein Eindhoven
15 juni 2017
Drie visies voor oud dierenpark Emmen
16 januari 2017
2016: woningbouw kent veel ambities
23 december 2016
Rotterdam gaat bouwen in Parkstad
5 december 2016
150 meter hoge toren voor centrum Rotterdam
29 november 2016
Drie plannen voor hoek Grote Markt Groningen
15 november 2016
Pathé-bioscoop voor monumentaal Eiffelgebouw
11 oktober 2016
Krachtige familievilla voor Roombeek
16 september 2016
Shift en Powerhouse Company winnen tender 5TRACKS
15 juli 2016
The Pavilion: sterk gebaar in eclectische omgeving
25 mei 2016
Ontwerpers gebouw 'KJ-plein' geselecteerd
23 mei 2016
Drie Nederlandse winnaars bij BREEAM Awards
9 maart 2016
Bouw Amsteltower van start gegaan
16 december 2015
Eerste deel IJ-hal Amsterdam CS geopend
2 juni 2015
Plannen tweede ronde Prins Clausbrug gekozen
19 februari 2015
10 redenen om naar Het Grote Woningbouwcongres te gaan
9 februari 2015
Architectenweb houdt dubbelcongres over woningbouw
20 januari 2015
Team A wint aanbesteding Station Assen
13 november 2014
IND en Powerhouse Company ontwerpen Turkse mediatoren
28 februari 2014
Nieuwe paviljoens onder rijtuigkap station Haarlem
16 december 2013
Nieuwe woon- en hoteltoren bij Amstelstation
19 november 2013
Powerhouse Company en RAU presenteren Villa L
27 maart 2013
Drie ontwerpers voor Rhijnspoorgebouw HvA
18 oktober 2012
Powerhouse Company wint Deense motivatieprijs
30 mei 2012
Expositie over huidige stand architectuur
23 mei 2012
2011: De belangrijkste prijzen
23 december 2011
S!MPL wint BNA Architectenweb Dragons’ Den
7 november 2011
Ambulancepost voor Leerpark Dordrecht
7 juli 2011
Powerhouse Company ontwerpt cataloguswoningen
3 maart 2011
Expositie over architectuur in tijden van crisis
7 september 2009
Europese waardering Nederlandse architecten
2 september 2009
Villa 1 wint AM NAi Prijs 2008
10 november 2008
Overeenkomst voor herontwikkeling Eindhovense Bunker getekend
10 april 2019
Interieur hoofdkantoor Asics knipoog naar Japan
31 mei 2019
ING-campus Amsterdam krijgt transparant paviljoen
22 januari 2019
EMA neemt tijdelijk intrek in Spark-gebouw
11 januari 2019
Architectenweb organiseert serie talkshows op Gevel 2020
9 januari 2020
Drie nieuwe torens voor skyline Leiden
12 september 2018
Powerhouse en Benthem Crouwel mikken op Asian Games Athlete Village
22 augustus 2018
Amstel Tower: ‘vrouwelijk’ hoogbouwaccent bij Amstelstation
12 juli 2018
Gepolijst kantoorinterieur drukt de glamour van reizen uit
27 maart 2018
Lichtinstallatie biedt voorproefje op bouwproject Merckt
7 maart 2018
Paviljoen Lân fan Taal biedt ruimte aan alle talen
1 februari 2018
Powerhouse Company ontwerpt hoofdkantoor Danone in Hoofddorp
17 november 2017
Multifunctioneel gebouw met hoofdkantoor Arcadis op Zuidas
22 juni 2017
Powerhouse Company: ‘Wij werken vanuit onze kracht’
25 juli 2017
Nanne de Ru
1 september 2021
Haarlemmermeer zoekt ontwikkelaars voor grote locaties Hoofddorp-Zuid
13 februari 2024
Vanavond: Nanne de Ru en Dikkie Scipio bij Architects, Not Architecture
10 maart 2021
Nieuw hoofdkantoor voor Asics in Hoofddorp
21 februari 2017
Hoofdkantoor Danone in Hoofddorp officieel geopend
10 juli 2019
Nanne de Ru verzorgt zestiende Peutz-lezing
18 september 2019
Bureaus maken visie voor kantorengebied bij station Hoofddorp
4 november 2020
Luifeldak Paper Roof refereert aan klassieke Chinese architectuur
14 januari 2021
Monumentaal ligt Villa JM in het Brabantse bos
12 maart 2021
Nieuwe wijk met 1.600 woningen voor Hoofddorp
18 november 2021
Cepezed ontwerpt nieuw gemeentehuis Haarlemmermeer
3 januari 2022
Nominaties Publiek gebouw van het Jaar 2025 bekend
Gisteren, 09:00
Nieuwe partners Powerhouse Company gaan vestiging in Nairobi leiden
5 september
Multifunctionele ontwikkeling 5Tracks in stationsgebied Breda klaar
3 september
Nominaties Woongebouw van het Jaar 2025 bekend
3 september
Architectenweb Sportzomer: Niels Baljet loopt marathons en is Nederlands kampioen trailrunning
6 augustus
Powerhouse Company presenteert opgeleverde woontoren Nelson in Arnhem
16 juli
Powerhouse Company presenteert Huis aan de Haven in Leeuwarder wijk Middelsee
4 juni
Eerste grootschalige houten woongebouw van Rotterdam opgeleverd
13 mei
Powerhouse Company maakt plan voor terrein rond voormalig kantoor Centraal Beheer
1 mei
Emma Scholten benoemd tot partner bij Powerhouse Company
17 april
Gemeenteraad Rotterdam stelt bestemmingsplannen RISE en Lumière vast
25 februari
Definitief ontwerp voor vernieuwing Centrale Bibliotheek Rotterdam is klaar
26 november 2024
Powerhouse Company en MVRDV bij finalisten van de Internationale Hochhaus Preis
21 oktober 2024
Nominaties Schoolgebouw van het Jaar 2024 bekend
18 september 2024
Muziekwerf in voormalige Rotterdamse kerk opent officieel de deuren
13 september 2024
Construction Company, RED Bouw en Baken Bouw realiseren Think District Amsterdam
11 juni 2024
Team van vijf architectenbureaus maakt winnend ontwerp voor Havenstraat Amsterdam
11 april 2024
Bouw KJ Den Haag officieel gestart
13 december 2023
Çanakkale Antenna-toren: zendmast en publieke voorziening in één
7 september 2023
Powerhouse Company transformeert wederopbouwkerk naar Muziekwerf
19 juli 2023
Gemeenteraad Rotterdam akkoord met voorlopig ontwerp verbouwing bibliotheek
23 juni 2023
Bouw van The Baan Tower van start
9 juni 2023
Hoogste punt bereikt bij gebouwenensemble 5Tracks in Breda
5 april 2023
Nanne de Ru en Hans Ibelings lanceren nieuwe uitgeverij
31 maart 2023
Den Haag en ontwikkelcombinatie leggen elk drie miljoen bij voor torens KJ-plein
27 februari 2023
Boek belicht Meelfabriek op te transformeren terrein Rotterdam
10 februari 2023
Video: de BunkerToren in Eindhoven
26 januari 2023
De brutalistische Bunker en zijn 'Maaskantse' toren
23 januari 2023
VanWonen ontwikkelt woontoren in stationsgebied Nijmegen
2 januari 2023
Floating Office Rotterdam verkozen tot Kantoorgebouw van het Jaar 2022
12 oktober 2022
Nominaties Interieur van het Jaar 2022 bekend
26 september 2022
Nominaties Kantoorgebouw van het Jaar 2022 bekend
5 september 2022
Jakoba Mulderhuis – terrassen nodigen uit tot samenwerking en cross-overs
31 augustus 2022
Ontwerp bezoekerscentrum en omliggend park Koekamp Den Haag gepresenteerd
15 juli 2022
Powerhouse Company, Atelier Oslo en Lundhagen geselecteerd voor vernieuwing Centrale Bibliotheek in Rotterdam
27 juni 2022
Winnaars Rotterdam Architectuurprijs 2022 bekend
22 juni 2022
Realisatie project THIS. in Amsterdam-Noord van start
9 juni 2022
Powerhouse Company ontwerpt nieuw IBM-kantoor in Think District Amsterdam
24 mei 2022
Een stoel als een dragende schelp
20 mei 2022
RED Company ontwikkelt duurzame wijk rond IBM-kantoor in Amsterdam
14 maart 2022
Gebalanceerd interieur voor advocatenkantoor door Powerhouse Company
24 februari 2022
Powerhouse Company presenteert ontwerp circulair universiteitsgebouw voor Tilburg
19 januari 2022
Vijf ontwerpteams maken schetsontwerp Centrale Bibliotheek Rotterdam
4 november 2021
Vijf Nederlandse nominaties bij Brick Award 2022
26 oktober 2021
Nanne de Ru – genomineerd voor prijs Architect van het Jaar 2021
22 september 2021
Van der Valk-hotel Amsterdam verkozen tot BNA Beste Gebouw van het Jaar
16 september 2021
'Floating Office Rotterdam heeft ons geleerd welke voordelen bouwen met hout biedt'
28 juni 2021
Start bouw KAAP Amsterdam aanstaande
5 mei 2021
Nieuwe buurt op voormalig ALO-terrein Groningen
26 maart 2021
Nanne de Ru en Dikkie Scipio op 'Nederlandse' editie Architects, Not Architecture
2 maart 2021
Hourglass van Dam & Partners Architecten wint CTBUH Award of Excellence
18 februari 2021
Powerhouse Company ontwerpt houten woongebouw in Pendrecht
11 februari 2021
Video + foto's: afbouw Floating Office Rotterdam
22 januari 2021
Bouw Het Grote Huis op Landgoed Duivenvoorde gestart
27 oktober 2020
Powerhouse Company presenteert opgeleverde Loop of Wisdom in Chengdu
15 oktober 2020
Drijvende fundering Floating Office Rotterdam op plek gearriveerd
2 september 2020
Architectenweb Podcast – Gesprek met Nanne de Ru over het tegelijkertijd ontwikkelen en ontwerpen van projecten
24 augustus 2020
Houten kap als identiteitsdrager en verbinder voor station Assen
6 juli 2020
Powerhouse Company ontwerpt drijvend GCA-kantoor in Rijnhaven
20 januari 2020
Fenix I grote winnaar Rotterdam Architectuurprijs 2019
18 december 2019
Belangrijkste prijs World Architecture Festival voor LocHal
9 december 2019
Avond over invloed geld en bezit op vormgeving van stad
22 november 2019
Bouw Conradhuis Amsterdam van start
5 december 2018
Nominaties ‘Woongebouw van het Jaar 2018’ bekend
20 september 2018
Culturele Hoofdstad Leeuwarden officieel begonnen
30 januari 2018
Bouw Monarch III van start gegaan
11 juli 2017
Directieuitbreiding voor Powerhouse Company
21 juni 2017
ZUS: Stationsplein Eindhoven wordt living lab
20 juni 2017
Powerhouse Company wint prijsvraag Stationsplein Eindhoven
15 juni 2017
Drie visies voor oud dierenpark Emmen
16 januari 2017
2016: woningbouw kent veel ambities
23 december 2016
Rotterdam gaat bouwen in Parkstad
5 december 2016
150 meter hoge toren voor centrum Rotterdam
29 november 2016
Drie plannen voor hoek Grote Markt Groningen
15 november 2016
Pathé-bioscoop voor monumentaal Eiffelgebouw
11 oktober 2016
Krachtige familievilla voor Roombeek
16 september 2016
Shift en Powerhouse Company winnen tender 5TRACKS
15 juli 2016
The Pavilion: sterk gebaar in eclectische omgeving
25 mei 2016
Ontwerpers gebouw 'KJ-plein' geselecteerd
23 mei 2016
Drie Nederlandse winnaars bij BREEAM Awards
9 maart 2016
Bouw Amsteltower van start gegaan
16 december 2015
Eerste deel IJ-hal Amsterdam CS geopend
2 juni 2015
Plannen tweede ronde Prins Clausbrug gekozen
19 februari 2015
10 redenen om naar Het Grote Woningbouwcongres te gaan
9 februari 2015
Architectenweb houdt dubbelcongres over woningbouw
20 januari 2015
Team A wint aanbesteding Station Assen
13 november 2014
IND en Powerhouse Company ontwerpen Turkse mediatoren
28 februari 2014
Nieuwe paviljoens onder rijtuigkap station Haarlem
16 december 2013
Nieuwe woon- en hoteltoren bij Amstelstation
19 november 2013
Powerhouse Company en RAU presenteren Villa L
27 maart 2013
Drie ontwerpers voor Rhijnspoorgebouw HvA
18 oktober 2012
Powerhouse Company wint Deense motivatieprijs
30 mei 2012
Expositie over huidige stand architectuur
23 mei 2012
2011: De belangrijkste prijzen
23 december 2011
S!MPL wint BNA Architectenweb Dragons’ Den
7 november 2011
Ambulancepost voor Leerpark Dordrecht
7 juli 2011
Powerhouse Company ontwerpt cataloguswoningen
3 maart 2011
Expositie over architectuur in tijden van crisis
7 september 2009
Europese waardering Nederlandse architecten
2 september 2009
Villa 1 wint AM NAi Prijs 2008
10 november 2008
Toon alles
Gerelateerde video's
Nanne de Ru
Nominatie voor de prijs voor Architect van het Jaar 2021
Andere nieuwsberichten
Nog twee dagen om jouw stem uit te brengen voor de Architect van het Jaar 2025!
57 minuten geleden
De nominaties voor de prijs voor Architect van het Jaar 2025 zijn: Joost Ector, KSA, KRFT, Sanne van Manen en Vakwerk Architecten. Bekijk nu de video’s waarin de genomineerden zich voorstellen en breng jouw stem uit!
bureau SLA ontdekt, transformeert en gebruikt rijksmonumentale werkplaats
1 uur geleden
Woon-werkruimte op Hembrugterrein in Zaandam toont radicale vernieuwing in erfgoedbeheer en duurzame bouw
Zoetmulder vernieuwt Maastrichts herenhuis met eigentijdse uitbouw
Gisteren, 15:07
In Maastricht heeft Zoetmulder een herenhuis verbouwd en uitgebreid met een uitbouw. Waar de gevel aan de voorzijde in de originele staat is behouden om het huis te blijven laten passen in het straatbeeld, is de achterzijde geheel vernieuwd.
Vier genomineerden voor de Abe Bonnema Architectuurprijs 2025
Gisteren, 13:00
Volgens de jury zijn de nominaties een toonbeeld van het jaarthema ‘ambitie’ en leveren zij een inspirerende bijdrage aan de ontwikkeling van een nieuwe bouwcultuur.
Do Janne Vermeulen verzorgt Rietveldlezing 2025
Gisteren, 11:28
De medeoprichter en directeur van Team V Architectuur spreekt op 13 november over de (houten) stad van morgen.
Eneco onderzoekt verkoop warmtenetten om nieuwe wet
Gisteren, 10:41
Door een eerder dit jaar aangenomen wet is het voor het bedrijf onzeker of investeringen zich nog terugverdienen.
Uitwerking van plannen voor Nedersaksenlijn kan beginnen
7 oktober, 12:17
Maandag is het startsein gegeven voor de eerste onderzoeken die uiteindelijk moeten leiden tot de spoorlijn die Groningen en Twente met elkaar verbindt.
Mona Keijzer lonkt naar investeerders op vastgoedbeurs in München
7 oktober, 10:02
"We moeten 1,6 miljoen woningen bouwen. Daarvoor hebben we buitenlandse investeerders nodig", stelt de demissionair minister.
Jongeren debatteren in het Nieuwe Instituut met Kamerleden over wonen
6 oktober, 2:26
Tot de thema’s die worden besproken, behoren betaalbaarheid, het creëren van meer woningen en de betrokkenheid van jongeren bij deze plannen.
GL-PvdA wil komende tien jaar 36 miljard uitgeven aan woningbouw
6 oktober, 10:10
Het grootste deel van het geld, 33 miljard euro, moet gaan naar publieke investeringen in de woningbouw.
Ga naar het nieuws-archief
1
0
0
0
Voor een optimale gebruikservaring plaatst Architectenweb functionele cookies. Wat de verschillende cookies precies doen leggen we uit in een
overzicht
. Cookies van social media kun je optioneel
aanzetten
.
Akkoord
Instellingen
Annuleren
OK
Sluiten
Doorgaan
Inloggen
Maak een gratis persoonlijk account aan
Feedback
Feedback
Wij horen graag jouw feedback. Laat je reactie achter en eventueel jouw e-mail adres.
Reactie
Verstuur