Projecten
Producten
Bedrijven
Vacatures
Agenda
Awards
Podcasts
more_horiz
Videos
Magazine
Favorieten
Profiel
Uitloggen
Abonneer je nu op onze nieuwsbrieven!
Abonneren
Nee, bedankt
Ja, denk met me mee rond de
materialisering van mijn project
Exterieur aan Bijlmerdreef
Copyright: Beauty and The Bit
Exterieur aan Abcouderpad
Copyright: Piktorial
Interieur restaurant, begane grond
Copyright: Powerhouse Company
Interieur restaurant, eerste verdieping
Copyright: Powerhouse Company
Gevel Abcouderpad
Copyright: Powerhouse Company
Maquette voor competitie
Copyright: Powerhouse Company
Begane grond
Copyright: Powerhouse Company
Eerste verdieping
Copyright: Powerhouse Company
Doorsnede
Copyright: Powerhouse Company
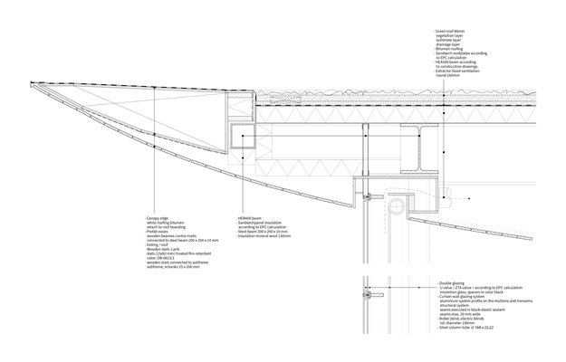
Detail dakrand en gevel
Copyright: Powerhouse Company
Plattegrond situatie
Copyright: Powerhouse Company
ING-campus Amsterdam krijgt transparant paviljoen
22 januari 2019, 12:28
Op de campus van ING in Amsterdam is een paviljoen naar ontwerp van
Powerhouse Company
in aanbouw. Met een zorgvuldige aansluiting van het paviljoen op de omgeving en een intieme binnenruimte streeft het architectenbureau naar een harmonieuze sfeer.
Het paviljoen wordt gerealiseerd in een snel veranderend gebied van Amsterdam Zuidoost; het biedt ruimte aan een restaurant voor ontbijt, lunch en diner, en aan multifunctionele ruimte voor medewerkers op de campus, omwonenden, studenten en andere bezoekers. Het gebouwontwerp kenmerkt zich door grote transparantie en een zachte ronde vorm.
Zorgvuldige aansluiting
Met het ontwerp streeft Powerhouse Company naar een zorgvuldige aansluiting op de omgeving. De continuïteit van de trap aan de noordgevel en de groene tegels van Koninklijke Tichelaar op de noord- en oostgevel dragen bij aan de harmonieuze inpassing. Het houten plafond en de betonnen traptreden lopen van binnen naar buiten door.
“De combinatie van een heldere glazen gevel en natuurlijke materialen en kleuren zorgt voor een subtiele overgang tussen binnen en buiten”, zegt Stijn Kemper, partner van het bureau. “Het gebruik van sterke kleuren en zachte texturen in het interieur creëert vervolgens een intieme binnenruimte.”
Interieur
De kern van het gebouw is een houten element, dat de structurele steun voor het dak vormt en tegelijkertijd fungeert als sculpturaal meubel. Het element raakt op geen enkel punt de glazen gevel, waardoor panoramisch zicht en circulatie rond de kern mogelijk is, aldus Powerhouse Company.
Het bureau geeft aan nauw te hebben samengewerkt met leveranciers om tot innovatieve oplossingen te komen. Als voorbeelden daarvan noemt Powerhouse Company de duurzame licht- en temperatuurregeling, en de speciaal ontwikkelde glazen gevel die volledige transparantie biedt.
In het paviljoen vestigt zich restaurant The Traveller. Het interieur voor het restaurant is door Powerhouse Company ontworpen in samenwerking met Studio BvanB en Office RBGV. Het flexibele ontwerp van de bovenste verdieping van de houten kern faciliteert multifunctionele programma's zoals vergaderingen, sociale activiteiten en culturele evenementen.
Opdracht na competitie
Opdrachtgever voor het interieurontwerp van het restaurant zijn de eigenaars Michiel Deenik, Neal Valentijn en Jeroen van Brussel, bekend van onder meer restaurant Visaandeschelde in Amsterdam. Opdrachtgever voor het paviljoenontwerp zijn OVG Real Estate en G&S Vastgoed.
De bouw van het paviljoen, met een oppervlakte van 900 m
2
, wordt naar verwachting voltooid in de tweede helft van 2019. Powerhouse Company won in 2016 de ontwerpwedstrijd voor het paviljoen.
Het bureau heeft in samenwerking met
Benthem Crouwel Architects
(verantwoordelijk voor het ING-hoofdkantoor) en
karres+brands
(de oorspronkelijke masterplanner en landschapsontwerper van de campus) de uitgangspunten van het oorspronkelijke project in het paviljoenontwerp geïntegreerd, zo laat het weten.
Trefwoorden
restaurant
powerhouse company
amsterdam zuidoost
ing-campus
interieur
paviljoen
Locatie
Best gelezen
1
Parkeerplein naast Tilburgse schouwburg maakt plaats voor multifunctionele gebouwen
woensdag, 13 mei
2
Kunsthal BRUSK in Brugge opent officieel zijn deuren
vrijdag, 8 mei
3
Neprom-prijs 2026 toegekend aan De Groene Loper Maastricht
maandag, 11 mei
4
Woningbouwproject Switi trekt 'verloren strook' alsnog bij de omgeving
maandag, 11 mei
5
Vandersalm Architecten herinterpreteert historisch erf bij Zwolse stadsboerderij
maandag, 11 mei
Gerelateerde nieuwsberichten
Hoofdkantoor Asics naar ontwerp van Powerhouse Company in gebruik genomen
16 mei 2019
Interieur hoofdkantoor Asics knipoog naar Japan
31 mei 2019
Bouw van The Baan Tower van start
9 juni 2023
Vanavond: Nanne de Ru en Dikkie Scipio bij Architects, Not Architecture
10 maart 2021
Paviljoen The Traveller zoekt verbinding met omgeving
4 december 2019
Nanne de Ru verzorgt zestiende Peutz-lezing
18 september 2019
Neutelings Riedijk ontwerpt theater en hotel UID Amsterdam
17 juli 2019
Bouw eerste woontorens op kantoorlocatie Bullewijk van start
16 juli 2019
Hoofdkantoor Danone in Hoofddorp officieel geopend
10 juli 2019
Pakhuis de Zwijger opent dependance in Amsterdam Zuidoost
5 juni 2019
Overeenkomst voor herontwikkeling Eindhovense Bunker getekend
10 april 2019
Pannekoekenrestaurant met uitgepuurd interieur
11 februari 2019
EMA neemt tijdelijk intrek in Spark-gebouw
11 januari 2019
Bouw Conradhuis Amsterdam van start
5 december 2018
Drie nieuwe torens voor skyline Leiden
12 september 2018
Powerhouse en Benthem Crouwel mikken op Asian Games Athlete Village
22 augustus 2018
Amstel Tower: ‘vrouwelijk’ hoogbouwaccent bij Amstelstation
12 juli 2018
Gepolijst kantoorinterieur drukt de glamour van reizen uit
27 maart 2018
Paviljoen Lân fan Taal biedt ruimte aan alle talen
1 februari 2018
Powerhouse Company ontwerpt hoofdkantoor Danone in Hoofddorp
17 november 2017
Hoofdkantoor Asics naar ontwerp van Powerhouse Company in gebruik genomen
16 mei 2019
Interieur hoofdkantoor Asics knipoog naar Japan
31 mei 2019
Bouw van The Baan Tower van start
9 juni 2023
Vanavond: Nanne de Ru en Dikkie Scipio bij Architects, Not Architecture
10 maart 2021
Paviljoen The Traveller zoekt verbinding met omgeving
4 december 2019
Nanne de Ru verzorgt zestiende Peutz-lezing
18 september 2019
Neutelings Riedijk ontwerpt theater en hotel UID Amsterdam
17 juli 2019
Bouw eerste woontorens op kantoorlocatie Bullewijk van start
16 juli 2019
Hoofdkantoor Danone in Hoofddorp officieel geopend
10 juli 2019
Pakhuis de Zwijger opent dependance in Amsterdam Zuidoost
5 juni 2019
Overeenkomst voor herontwikkeling Eindhovense Bunker getekend
10 april 2019
Pannekoekenrestaurant met uitgepuurd interieur
11 februari 2019
EMA neemt tijdelijk intrek in Spark-gebouw
11 januari 2019
Bouw Conradhuis Amsterdam van start
5 december 2018
Drie nieuwe torens voor skyline Leiden
12 september 2018
Powerhouse en Benthem Crouwel mikken op Asian Games Athlete Village
22 augustus 2018
Amstel Tower: ‘vrouwelijk’ hoogbouwaccent bij Amstelstation
12 juli 2018
Gepolijst kantoorinterieur drukt de glamour van reizen uit
27 maart 2018
Paviljoen Lân fan Taal biedt ruimte aan alle talen
1 februari 2018
Powerhouse Company ontwerpt hoofdkantoor Danone in Hoofddorp
17 november 2017
Toon alles
Andere nieuwsberichten
Vijf finalisten voor Heuvelinkprijs 2026
13 mei, 3:06
De finalisten voor de Heuvelinkprijs 2026 zijn bekend. Vijf projecten komen in aanmerking voor deze editie van de tweejaarlijkse Arnhemse nieuwbouwprijs.
Parkeerplein naast Tilburgse schouwburg maakt plaats voor multifunctionele gebouwen
13 mei, 11:57
Een samenwerkingsverband van HilberinkBosch architecten, Werkstatt en Orange Architects heeft de architectenselectie voor de herontwikkeling van het Louis Bouwmeesterplein in Tilburg gewonnen.
'Zwevend huis' naar ontwerp van Benthem Crouwel in Amersfoortse wijk
13 mei, 10:54
De woning bestaat uit een open plint met daarbovenop een gesloten volume met een leisteengevel, dat reageert op de traditionele zadeldaken in de buurt.
Nog drie dagen om jouw suggestie voor de Architect van het Jaar 2026 in te sturen
13 mei, 9:00
Welke architect, of collectief van architecten, heeft dit jaar de grootste bijdrage geleverd aan de ontwikkeling van de architectuur in Nederland? Stuur jouw suggestie uiterlijk 15 mei 2026 op naar Architectenweb.
Consortium met RxDomi en TU/e ontwikkelt netbewuste woning
13 mei, 2:56
In het project CoLiBRIE ontwikkelt een consortium, met onder meer RxDomi en TU/e, een nieuw type woning die comfortabel, duurzaam en betaalbaar is, zonder het energienet extra te belasten.
Minimaal half miljard extra nodig voor verbreding A27
13 mei, 1:38
Op het traject van 47 kilometer moeten extra rijbanen komen om de dagelijkse files te verlichten. Ook worden bruggen vervangen.
RVO constateert laagste groei windenergie op land in jaren
13 mei, 10:02
De uitbreiding van windenergie op land in Nederland is op een historisch laag niveau.
Alsemgeest Design & Build en Ferm Architecten gaan verder als één bureau
12 mei, 1:42
De bureaus blijven voorlopig naast elkaar bestaan, waarbij Nico Alsemgeest (68) zich langzaam zal terugtrekken.
Onderzoek: Nederlander wil verduurzamen, maar vindt het duur
12 mei, 12:26
Een kleine meerderheid van de Nederlanders wil graag verduurzamen, maar bij een groot gedeelte komt het daar niet van.
Geld voor eigen sociale initiatieven bewoners aardbevingsgebied
12 mei, 10:33
het geld komt uit het potje van ‘Nij Begun’, het grootschalige programma van het Rijk om de economie en sociale ontwikkeling in het noorden te verbeteren.
Ga naar het nieuws-archief
Robert Muis
Redacteur
1
0
0
0
Voor een optimale gebruikservaring plaatst Architectenweb functionele cookies. Wat de verschillende cookies precies doen leggen we uit in een
overzicht
. Cookies van social media kun je optioneel
aanzetten
.
Akkoord
Instellingen
Annuleren
OK
Sluiten
Doorgaan
Inloggen
Maak een gratis persoonlijk account aan
Feedback
Feedback
Wij horen graag jouw feedback. Laat je reactie achter en eventueel jouw e-mail adres.
Reactie
Verstuur