Projecten
Producten
Bedrijven
Vacatures
Agenda
Awards
Podcasts
more_horiz
Videos
Magazine
Thema's
Favorieten
Profiel
Uitloggen
Nieuw
Populair
Toon alles
Architectenweb magazine #14
Architectenweb magazine #13
Publieke gebouwen
Architectenweb magazine #12
Kantoren
Architectenweb magazine #11
Scholen
Architectenweb magazine #10
Zorg
Architectenweb magazine #14
Architectenweb magazine #10
Zorg
Architectenweb magazine #12
Kantoren
Architectenweb magazine #13
Publieke gebouwen
Architectenweb magazine #6
Transformatie en Renovatie
Om direct naar je favorieten te kunnen gaan is het nodig om eerst in te loggen.
Nieuw
Architectenweb Awards 2025
Architectenweb Awards 2024
Architectenweb Awards 2023
Architectenweb Awards 2022
Architectenweb Awards 2021
Architectenweb Awards 2020
Architectenweb Awards 2019
Architectenweb Awards 2018
Om direct naar je favorieten te kunnen gaan is het nodig om eerst in te loggen.
Nieuw
Populair
Favorieten
Toon alles
Vakwerk Architecten
Nominatie voor de prijs voor Architect van het Jaar 2025
Sanne van Manen
Nominatie voor de prijs voor Architect van het Jaar 2025
KSA
Nominatie voor de prijs voor Architect van het Jaar 2025
KRFT
Nominatie voor de prijs voor Architect van het Jaar 2025
Joost Ector
Nominatie voor de prijs voor Architect van het Jaar 2025
Prijsuitreiking Architectenweb Awards 2024
Impressie van een feestelijke avond
Martens, Willems & Humblé Architecten
Nominatie voor de prijs voor Architect van het Jaar 2024
Uitreiking van Architectenweb Awards 2020
Impressie van de prijsuitreiking via Zoom
De Zwarte Hond
Nominatie voor de prijs voor Architect van het Jaar 2024
Avond met De Zwarte Hond
Symposium
Om direct naar je favorieten te kunnen gaan is het nodig om eerst in te loggen.
Nieuw
Populair
Categorieën
Favorieten
Toon alles
ST1centrum
Dé specialist op het gebied van gevelstenen en dakpannen met showrooms in Amsterdam en Meppel
Studio Massimo
Architecture & Nature
Brandpreventie Academy BV
HoutPro+
Cay Circulaire Keukens
Circulaire keukens en pantry's
Studio Kirsten Reith
Interieurontwerp
Interior & Co
Cay Circulaire Keukens
Circulaire keukens en pantry's
Orange Automatic Doors
Studio175
Interieuradvies in regio Utrecht
Studio Kirsten Reith
Interieurontwerp
Brandpreventie Academy BV
Architecten
Architectuur
Mobiliteit en infrastructuur
Stedenbouw en landschapsarchitectuur
Leveranciers
Gevels
Daken
Ramen en deuren
Trappen, liften en balustrades
Binnenwanden
Vloeren
Plafonds
Verlichting
Sanitair
Projectinrichting
Installaties
Constructies
Buitenruimte
Software
Adviseurs
Bestekschrijvers
Bouwmanagement
Installatie adviseurs E
Bouwfysica
Calculators
Installatie adviseurs G/W
Bouwkundig tekenwerk
Constructeurs
Lichtadviseurs
Adviseur beveiliging
Juristen
Intermediairs, Payrolling
Aannemers
Overig
Presentatie
Instellingen / onderwijs
Overig
Om direct naar je favorieten te kunnen gaan is het nodig om eerst in te loggen.
Nieuw
Populair
Favorieten
Toon alles
Gesprek met Stephan Sliepenbeek over hoogbouw in Amstel III
Gesprek met Ellen van Bueren over gebiedsontwikkeling en hoogbouw
Gesprek met Ma Yansong over ontwerpen die emotie oproepen
Gesprek met Paul de Ruiter over innovatieve en duurzame hoogbouw
Gesprek met Pi de Bruijn over zijn ontwerpen voor de Tweede Kamer toen en nu
Gesprek met Ellen van Bueren over gebiedsontwikkeling en hoogbouw
Gesprek met Oresti Sarafopoulos over het ontwerpen van een kantoorgebouw met bijna geen installaties
Gesprek met Stijn Steenbakkers over verdichting en hoogbouw in Eindhoven
Gesprek met Pi de Bruijn over zijn ontwerpen voor de Tweede Kamer toen en nu
Gesprek met Paul de Ruiter over innovatieve en duurzame hoogbouw
Om direct naar je favorieten te kunnen gaan is het nodig om eerst in te loggen.
Nieuw
Populair
Categorieën
Favorieten
Toon alles
Duurzaam logistiek centrum vol daglicht
Renovatie parkeergarage WTC Beursplein, Rotterdam
700 modulaire lichtstraten gebruikt Icône kantoor
MBO-school Firda in stadion van Cambuur
Hoofdkantoor We Enable Climbers
Boekweitkamp, Den Haag
Exclusieve wooneenheden
De Grote Zwaan, Nijmegen
Renovatieproject Ockenburghstraat
ASML Gebouw 3
Architectuur
Woningbouw
Zorg
Hotels
Restaurants en cafĆ©ās
Winkels
Sportgebouwen
Culturele gebouwen
Overheidsgebouwen
Scholen
Kantoren
Bedrijfsgebouwen
Paviljoens en kunst
Overig
Mobiliteit en infrastructuur
Trein- en metrostations
Luchthavens
Busstations
Parkeergarages
Fietsparkeren
Wegen
Bruggen
Water
Energie
Tankstations en laadstations
Waterzuivering en afvalverwerking
Overig
Stedenbouw en landschapsarchitectuur
Regionale visies
Gebiedsvisies
Plannen stedelijk weefsel
Amusementsparken en dierentuinen
Lichtontwerpen
Openbare ruimte
Pleinen
Parken
Tuinen
Speelplaatsen
Uitkijktorens
Overige (bijv. begraafplaatsen)
Om direct naar je favorieten te kunnen gaan is het nodig om eerst in te loggen.
Nieuw
Populair
Categorieën
Favorieten
Toon alles
VELUX Commercial ā Modulaire Lichtstraten
Daglichtoplossingen voor architectuur met impact
Circulaire ReCarp vloer
ReCarp: Circulaire Tapijttegels Herdefiniëren Design en Duurzaamheid
Niko Rocker en Niko Toggle
Niko introduceert twee nieuwe opvallende designschakelaars
Colorcoat Prisma Textured
Nieuwe structuurafwerking toegevoegd aan Tata Steel's Colorcoat Prisma® portfolio
Compact sectionaaldeur voor showrooms
Praktisch én mooi
StoTherm Wood: cementvrij gevelsysteem met houtvezelisolatie
Biobased gevelisolatie met natuurlijke prestaties
Akoestisch kussen.
Ervaar de ultime natuurlijke oplossing voor akoestiek problemen.
Knauf MaxSpace
Minder wand, méér ruimte. Het ideale profiel voor meer winst per m²
Lumiglaze ā Het vlakglas van VELUX Commercial
Een nieuw tijdperk in daglichtontwerp ā minimalistisch, functioneel en klaar voor de toekomst.
Veelzijdig straatmeubilair
Van openbare ruimte naar (be)leefomgeving
Gevels
Gevelbekleding
Vliesgevels
Zonwering buiten
Isolatie
Gevelconstructies
Signing
Overig
Daken
Dakafwerkingen
Dakisolatie
Dakconstructies
Dakranden, dakgoten en HWA's
Dakramen
Lichtkoepels
Lichtstraten
Schoorstenen
Overig
Dakluiken
Ramen en deuren
Raam- en deursystemen / kozijnen
Vliesgevels
Hang- en sluitwerk
Beveiliging en luiken
Dorpels en vensterbanken
Lateien
Roosters
Glas
Dakramen
Dakkoepels
Lichtstraten
Zonwering buiten
Zonwering binnen
Buitendeuren
Binnendeuren
Postvakken en brievenbussen
Overig
Dakluiken
Trappen, liften en balustrades
Trappen
Roltrappen
Liften
Balustrades en hekwerken
Galerijen
Binnenwanden
Binnenwanden
Wandafwerking
Vloeren
Constructieve vloeren
Verhoogde vloeren
Vloerafwerkingen
Overig
Plafonds
Tegels
Lineair
Grill
Open en roosters
Naadloos
Eilanden en baffles
Plafondafwerkingen
Ophangsystemen
Overig
Klimaatplafonds
Verlichting
Binnenverlichting
Buitenverlichting
Sanitair
Kranen en douchesets
Wastafels
Douchewanden en douchebakken
Baden
Waterclosets
Accessoires
Overig
Projectinrichting
Stoelen
Banken
Tafels
Kasten
Balies
Vrijstaande wanden
Keukens
Accessoires
Overig
Cabines
Interieurbeplanting
Stoffering
Installaties
Verwarming, koeling en ventilatie
Elektrotechnische installaties
Schakelmateriaal
Domotica
Deurcommunicatie
Beveiliging
Liften
Onderhoudsinstallaties
Overig
Brandbeveiliging
Constructies
Draagconstructies
Funderingen en kelders
Overig
Brandbeveiliging
Buitenruimte
Bestratingen en verhardingen
Afwateringen
Terreinafscheidingen en geluidsschermen
Buitenmeubilair
Fietsparkeren
Terrassen
Terrasoverkappingen
Bruggen
Accessoires
Overig
Beplanting
Sport- en speeltoestellen
Software
Tekenen 2D
Modelleren 3D / BIM
Visualisatie / rendering
Parametrisch ontwerpen
Bouwfysica
Draagconstructie
Overig
Virtual Reality
Cloudoplossingen
Om direct naar je favorieten te kunnen gaan is het nodig om eerst in te loggen.
Nieuw
Populair
Favorieten
Toon alles
Prefab beurs - 7 t/m 9 oktober 2025
Brabanthallen 's-Hertogenbosch
Boekpresentatie en panelgesprek met Floor Milikowsky
Prins Hendrikkade 600, 1011 VX Amsterdam
Architects Table ā25: Lunch & Inspiratie in HAUT Amsterdam
ATAG LIVE ā HAUT gebouw, Spaklerweg 10F, 1096 BA Amsterdam (tegenover metrostation Spaklerweg)
Inspiratiedag @ Sempergreen ā Gevelgroen
Defensieweg 1, 3984 LR Odijk
Architectenweb symposium: klein maar fijn wonen?
Pakhuis de Zwijger
Prefab beurs - 7 t/m 9 oktober 2025
Brabanthallen 's-Hertogenbosch
Ontdek het seminarieprogramma van Architect@Work Amsterdam
De Kromhouthal, Gedempt Hamerkanaal 231, Amsterdam
DigiBouw 2025 ā hét event voor digitalisering in de bouwsector
Expozaal van het Beatrixgebouw in Utrecht
Architects Table ā25: Lunch & Inspiratie in HAUT Amsterdam
ATAG LIVE ā HAUT gebouw, Spaklerweg 10F, 1096 BA Amsterdam (tegenover metrostation Spaklerweg)
Boekpresentatie en panelgesprek met Floor Milikowsky
Prins Hendrikkade 600, 1011 VX Amsterdam
Om direct naar je favorieten te kunnen gaan is het nodig om eerst in te loggen.
Nieuw
Toon alles
Design
Duurzaamheid
Gevel
Infrastructuur
Interieur
Kantoren
Leisure
Openbare ruimte
Publieke gebouwen
Scholen
Transformatie en Renovatie
Woningbouw
Zorg
Om direct naar je favorieten te kunnen gaan is het nodig om eerst in te loggen.
Nieuw
Populair
Toon alles
Medior Architect
Assistent Ontwerper (Junior Architect)
Ervaren Bouwkundig Tekenaar
9graden architectuur Amersfoort zoekt een bouwkundig modelleur
SVP zoekt bureauondersteuner
SVP zoekt medior stedenbouwkundige
Junior Architect (NL/EN)
De Academie van Bouwkunst Amsterdam zoekt twee onderzoekers voor lectoraat
Architect
Site Practice zoekt medior architect met 4-6 jaar ervaring (Amsterdam)
Junior Ontwerper
Studio Nauta zoekt projectleider
Om direct naar je favorieten te kunnen gaan is het nodig om eerst in te loggen.
Copyright: © ULRICH SCHWARZ, BERLIN
Copyright: © ULRICH SCHWARZ, BERLIN
Copyright: © ULRICH SCHWARZ, BERLIN
Copyright: © ULRICH SCHWARZ, BERLIN
Copyright: © ULRICH SCHWARZ, BERLIN
Copyright: © ULRICH SCHWARZ, BERLIN
Copyright: © ULRICH SCHWARZ, BERLIN
Copyright: © ULRICH SCHWARZ, BERLIN
Copyright: © ULRICH SCHWARZ, BERLIN
Copyright: © ULRICH SCHWARZ, BERLIN
Copyright: © ULRICH SCHWARZ, BERLIN
Copyright: © ULRICH SCHWARZ, BERLIN
Copyright: © ULRICH SCHWARZ, BERLIN
Copyright: © ULRICH SCHWARZ, BERLIN
Copyright: Ulrich Schwarz© ULRICH SCHWARZ, BERLIN
Copyright: © ULRICH SCHWARZ, BERLIN
Copyright: © ULRICH SCHWARZ, BERLIN
Copyright: © ULRICH SCHWARZ, BERLIN
Copyright: © ULRICH SCHWARZ, BERLIN
Copyright: © ULRICH SCHWARZ, BERLIN
Copyright: © ULRICH SCHWARZ, BERLIN
Gevel noord
Copyright: Atelier Kempe Thill
Gevel oost
Copyright: Atelier Kempe Thill
Copyright: Ulrich Schwarz
Gevel zuid
Copyright: Atelier Kempe Thill
Gevel west
Copyright: Atelier Kempe Thill
Straatgevel west
Copyright: Atelier Kempe Thill
Kelder
Copyright: Atelier Kempe Thill
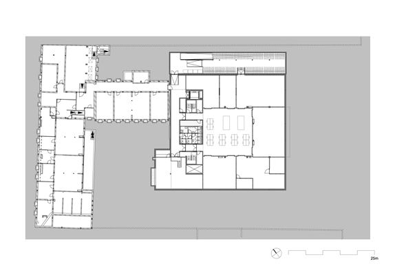
Begane grond
Copyright: Atelier Kempe Thill
Eerste verdieping
Copyright: Atelier Kempe Thill
Tweede verdieping
Copyright: Atelier Kempe Thill
Derde verdieping
Copyright: Atelier Kempe Thill
Doorsnede cc
Copyright: Atelier Kempe Thill
Doorsnede dd
Copyright: Atelier Kempe Thill
Doorsnede ee
Copyright: Atelier Kempe Thill
Detail
Copyright: Atelier Kempe Thill
Situatie
Copyright: Atelier Kempe Thill
Locatie in Antwerpen
Copyright: Atelier Kempe Thill
Kunstacademie in Antwerpen met expositieruimte langs de straat
13 mei 2020, 9:00
De hogeschool voor beeldende kunstonderwijs Sint Lucas in Antwerpen beschikt over een nieuw gebouw.
Atelier Kempe Thill
heeft met een combinatie van transformatie en nieuwbouw een academiegebouw gerealiseerd, dat ruimte biedt voor interdisciplinaire kunstcreatie en de dialoog met het publiek.
De hogeschool voor beeldende kunst Sint Lucas in Antwerpen telt circa 100 werknemers en biedt onderwijs aan zoān 600 studenten. De school schreef een wedstrijd voor vernieuwbouw van haar onderkomen, die in 2016 door Atelier Kempe Thill is gewonnen. Het architectenbureau heeft vervolgens het ontwerp verder ontwikkeld in samenspraak met de gebruikers en de opdrachtgevers.
Twee centrale vragen
De ambitie was om het ontwerp te gebruiken voor een reorganisatie van het onderwijsproces en het instituut zelf tot een academie voor de 21
e
eeuw. Twee vragen stonden centraal, legt het architectenbureau uit: hoe zou het ontwerp interdisciplinair werk kunnen stimuleren en tot kunstcreatie inspireren, en hoe zou het ontwerp het publieke karakter van het instituut kunnen versterken en de school meer openen naar de stad.
Daarbij zag Atelier Kempe Thill zich geconfronteerd met ā geen grote verrassing ā een zeer laag bouwbudget en een complex programma dat gedeeltelijk in een bestaand gebouw moest worden geĆÆntegreerd. Optimalisatie op verschillende niveaus en een algemeen minimalisme waren dan ook vanaf het begin belangrijke ontwerpcriteria.
Verbouw van de verpleegschool
Een bestaande verpleegschool uit de late jaren 1950 verkeerde in goede staat maar bood met kleine en inflexibele lokalen niet de gewenste ruimte. Atelier Kempe Thill koos voor gedeeltelijke hergebruik, gedeeltelijke transformatie en gedeeltelijke sloop om ruimte te maken voor een substantiƫle uitbreiding met nieuwbouw.
De transformatie was vooral gericht op de begane grond van het bestaande schoolgebouw. Door nagenoeg alle niet-dragende en gedeeltelijk dragende muren te verwijderen, zijn grotere en flexibeler ruimten gerealiseerd. Door het plaatsen van grote ramen in de 60 meter lange straatgevel is het gebouw geopend naar de publieke ruimte. Om de interactie met publiek en stad te vergroten zijn juist hier de openbare kunstbibliotheek en een tentoonstellingsruimte geplaatst.
In de centrale zijvleugel heeft Atelier Kempe Thill het studentenrestaurant gesitueerd ā met zicht op de groene binnenplaats en de centrale hal. Op het dak van de bestaande bouw is een fotostudio gerealiseerd. Door het dak gedeeltelijk te verwijderen en een nieuwe structuur te plaatsen heeft het architectenbureau daarbij hogere en flexibeler ruimten gecreĆ«erd.
Atelierhuis
De oude binnentuinvleugel is gesloopt om een nieuw, relatief groot volume te implementeren: het atelierhuis. Dit bouwvolume (ongeveer 34 x 34 m) bestaat uit vier verdiepingen van steeds 3,75 meter vrije hoogte. Het atelierhuis is deels ondergronds gerealiseerd om zijn absolute hoogte te beperken. De visuele impact hebben de architecten verder verminderd door de bovenste verdieping flink naar achteren te plaatsen.
De kelder van de nieuwbouw biedt ruimte aan onder meer werkplaatsen en een drukkerij. De begane grond en de eerste verdieping bieden atelierruimten voor beeldend kunstenaars. De ateliers zijn met elkaar verbonden door een 12 meter hoge vide van circa 8 x 13 meter, waarin daglicht valt via een groot, centraal geplaatst dakraam. Op de tweede verdieping liggen lokalen voor het tekenprogramma van de academie.
In de dialoogronde heeft Atelier Kempe Thill de opdrachtgever gestimuleerd het initiƫle ruimteprogramma te heroverwegen. Dit had effect: in plaats van de aanvankelijk gevraagde grote hoeveelheid afzonderlijke lokalen, biedt het atelierhuis nu open en neutrale plateaus met een oppervlakte van 930 m
2
per verdieping, vertelt het architectenbureau. Beweegbare scheidingswanden, die bovendien met de lift tussen verdiepingen kunnen worden verplaatst, maken het opdelen van de ruimten alsnog mogelijk.
Gevel en constructie
Het gevelontwerp is een projectspecifieke oplossing: een maximum aan gesloten muren van 2,2 meter hoog rond de plateaus bieden optimale omstandigheden voor het produceren en exposeren van kunstwerken. Boven deze muren lopen horizontale bandramen. Alleen op de begane grond is een 14 x 4 meter groot raam geplaatst, dat uitzicht biedt op het groene binnenterrein. Het panoramavenster springt subtiel uit de verder gladde gevel. In aanvulling op het glas is de gevel bekleed met aluminium platen in een donkere messingtint en een patroon van ronde gaten.
Om binnen het gestelde budget te blijven, heeft Atelier Kempe Thill een relatief betaalbaar systeem voor de bouw van het atelierhuis gekozen. De vloeren zijn gemaakt van massief gepolijst beton, akoestische plafonds zijn waar mogelijk vermeden om de betonnen plafonds in het zicht te houden, en wanden en kolommen zijn ontworpen in in-situ beton, met aandacht voor het bekistingspatroon.
In overleg met ingenieursbureau BAS Leuven heeft Atelier Kempe Thill een draagstructuur ontwikkeld met een minimum aan kolommen, dragende gevels en vrijdragende wanden, en zonder hoekkolommen. Het dak is uitgevoerd met voorgespannen dakbalken. Het interieur is voorts visueel bijna installatievrij. Met voorts de stalen balustrades rond het atrium en een aantal geschilderde houten interieurelementen biedt het atelierhuis de robuust ogende en neutrale achtergrond voor het werkproces van de kunstenaars in opleiding.
De foto's boven dit artikel zijn gemaakt door
Ulrich Schwarz
Trefwoorden
onderwijsgebouw
interieur
schoolgebouw
belgië
vernieuwbouw
antwerpen
transformatie
academiegebouw
atelier kempe thill
Locatie
Best gelezen
1
Architectenweb symposium: klein maar fijn wonen?
donderdag, 2 oktober
2
Plan Spot belooft Lelystad bruisend centrumgebied
vrijdag, 3 oktober
3
āNDSM-werf en Buiksloterham zijn jĆŗĆst inspirerende voorbeelden voor de stad van morgenā
vrijdag, 3 oktober
4
Nominaties Publiek gebouw van het Jaar 2025 bekend
woensdag, 8 oktober
5
Realisatieovereenkomst voor hoogbouwcomplex De Sax op Wilhelminapier getekend
maandag, 6 oktober
Gerelateerde nieuwsberichten
Transformatie Antwerpse blikvanger nadert voltooiing
7 september 2020
Een galerie waar wonen en tentoonstellen in elkaar overvloeien
10 april
Woongebouw met ruime wintertuinen in historisch Herkenrode
3 januari 2024
Compacte uitbreiding scholencomplex met ruimte voor groen
23 november 2020
Woonproject van Atelier Kempe Thill als baken aan het water
13 december 2023
Grootschalig stedelijk ensemble bij station Rennes naar ontwerp van Atelier Kempe Thill voltooid
11 juli 2024
Atelier Kempe Thill ontwerpt nieuw baken langs de Elbe in Hamburg
7 april 2020
Atriumhaus van Atelier Kempe Thill biedt nieuwe woningtypologie in Duitsland
4 februari 2020
Intense laagbouw Spijkerkwartier bekroond als Woongebouw van het Jaar 2019
31 oktober 2019
Rigoureuze renovatie van brutalistische flats in Antwerpen
22 oktober 2019
T2-campus in Genk is flexibele onderwijsfabriek
7 augustus 2019
Woningensemble Atelier Kempe Thill in Arnhem klaar
14 december 2018
Atelier Kempe Thill en Atelier 56S ontwerpen omvangrijk complex in Rennes
8 november 2018
Opleidingscentrum bovenop een tunnel voor spoorbeheerder
19 september 2018
Winnend ontwerp Maritiem Museum Antwerpen van team Atelier Kempe Thill
25 juni 2018
Centraal blok voor nieuwe Antwerpse stadswijk in aanbouw
21 december 2017
Wintertuinen bepalen aanzicht woonblok
9 januari 2017
Kempe Thill ontwerpt faculteitsgebouw Hasselt
16 december 2016
Energyville Genk is ruimtelijk onderzoekgebouw
16 november 2016
Kempe Thill ontwerpt kunstencampus Antwerpen
13 juni 2016
Voorstel voor co-living-project in Madrid van Keizer Koopmans
15 juni 2020
Schoolgebouw met ruime vleugels rond een levendig hart
14 juli 2020
Evenement Brussels Design September zoekt het dichterbij
5 augustus 2020
WonderWoods Utrecht krijgt ruimte voor digitale kunst
25 augustus 2020
Gebouw Zuiderplein van Atelier Kempe Thill in Antwerpen klaar
18 september 2020
Flexibele leer-werkplaats voor mode-opleiding Zadkine
12 oktober 2020
Ruime en flexibele studentenwoningen in gebouw Atelier Kempe Thill
16 oktober 2020
Atelier Kempe Thill wint prijsvraag Duitse gezondheidscampus
28 oktober 2020
Christian Rapp nog eens vijf jaar stadsbouwmeester van Antwerpen
29 oktober 2020
Ruwbouw-is-afbouw voor opvallend appartementencomplex in Antwerpen
12 november 2020
Ruimtelijk en representatief woongebouw door Atelier Kempe Thill
18 november 2020
Monolithisch en toch poreus schoolgebouw door SADAR + VUGA en LENS°ASS Architecten
24 november 2020
Ouderenwoningen in landelijke omgeving van Heist-op-den-Berg
3 december 2020
Robbrecht en Daem architecten ontwerpt ontvangstgebouw voor Rubenshuis
25 maart 2021
Atelier Kempe Thill en Canevas presenteren opgeleverde Infrabel Academy
11 oktober 2021
Atelier Kempe Thill en Kaderstudio winnen competitie voor woningen in Elsene
9 november 2021
Atelier Kempe Thill wint competitie opleidingscentrum STEPS van KU Leuven
8 december 2021
De Harmonie in Antwerpen heeft zijn luister terug
13 december 2021
Team Atelier Kempe Thill mag Droogdokkensite Antwerpen herontwikkelen
25 januari 2022
Uitbreiding hogeschoolcampus Mönchengladbach door team met Atelier Kempe Thill
6 oktober 2022
Woontoren De Vrijheid door Atelier Kempe Thill in Bajeskwartier opgeleverd
1 september
Acht lessen rond de renovatie van sociale woningbouw
12 april 2024
Architectenweb symposium: renovatie van sociale woningbouw
26 februari 2024
Atelier Kempe Thill geeft Brusselse flats met renovatie nieuwe uitstraling
26 januari 2024
Kazerneterrein Herkenrode in centrum Hasselt getransformeerd naar woongebied
2 januari 2024
Woonzorggebouw voor psychiatrische patiënten in Heist-op-den-Berg klaar
7 februari 2023
Historie en verval Wintercircus Gent zichtbaar gelaten bij renovatie
9 november 2022
Atelier Kempe Thill ontwerpt deel woningblok HafenCity Hamburg
19 januari 2022
Nominaties 'Woongebouw van het Jaar 2019' bekend
4 september 2019
Nederlandse kandidaten voor beurshal Brugge
16 november 2016
Laagbouw met hoge dichtheid in centrum Arnhem
12 februari 2016
Groot renovatieproject Kempe-Thill van start
9 september 2015
Kempe Thill ontwerpt T2-campus Genk
20 mei 2015
Kempe Thill wint tender woonproject Brussel
5 februari 2015
Project van Kempe Thill in Parijs van start
8 september 2014
Gemeentehuis Borsele in het nieuw gestoken
27 augustus 2014
Architectenweb houdt Het Grote Zorgcongres
16 oktober 2013
Atelier Kempe Thill herontwikkelt militair terrein
25 september 2013
Atelier Kempe Thill wint prijsvraag voor klooster
2 september 2013
Kempe Thill herontwikkelt Wintercircus Gent
15 januari 2013
Renovatie gemeentehuis Borsele gestart
10 januari 2013
Kempe Thill ontwerpt woningbouw Parijs
11 mei 2012
2011: De belangrijkste prijzen
23 december 2011
Stem op 'Architect van het Jaar' 2011
30 november 2011
FABRIC en LOLA ontwerpen landgoed
8 september 2011
Nominaties Bal van het Jaar-prijs bekend
24 juni 2011
Sociale woningbouwcomplex voor Bremen
9 juni 2011
Bouw jongerencentrum Osdorp van start
1 maart 2010
'Huis van de gemeenschap' voor Borssele
14 januari 2010
Duitstalige Belgen schrappen dure nieuwbouw
22 december 2009
Amsterdamse Nieuwbouwprijs van start
18 september 2009
Glaswoningen van Kempe Thill in Moerwijk
21 juli 2009
āRotterdam biedt nog geen echte kansenā
25 maart 2009
āTe hoge eisen bij stadskantoor Rotterdamā
19 maart 2009
Europese klacht over Havenhuis Antwerpen
23 februari 2009
Atelier Kempe Thill wint Detail Preis 2009
20 januari 2009
Atelier Kempe Thill vernieuwt 'nazihotel' Rügen
3 december 2008
Plasterk ziet niets in aanbestedingsautoriteit
26 september 2008
BNA in gesprek over aanbestedingsautoriteit
1 september 2008
āSchetsenā Westland te gortig voor architecten
21 juli 2008
Transformatie Antwerpse blikvanger nadert voltooiing
7 september 2020
Een galerie waar wonen en tentoonstellen in elkaar overvloeien
10 april
Woongebouw met ruime wintertuinen in historisch Herkenrode
3 januari 2024
Compacte uitbreiding scholencomplex met ruimte voor groen
23 november 2020
Woonproject van Atelier Kempe Thill als baken aan het water
13 december 2023
Grootschalig stedelijk ensemble bij station Rennes naar ontwerp van Atelier Kempe Thill voltooid
11 juli 2024
Atelier Kempe Thill ontwerpt nieuw baken langs de Elbe in Hamburg
7 april 2020
Atriumhaus van Atelier Kempe Thill biedt nieuwe woningtypologie in Duitsland
4 februari 2020
Intense laagbouw Spijkerkwartier bekroond als Woongebouw van het Jaar 2019
31 oktober 2019
Rigoureuze renovatie van brutalistische flats in Antwerpen
22 oktober 2019
T2-campus in Genk is flexibele onderwijsfabriek
7 augustus 2019
Woningensemble Atelier Kempe Thill in Arnhem klaar
14 december 2018
Atelier Kempe Thill en Atelier 56S ontwerpen omvangrijk complex in Rennes
8 november 2018
Opleidingscentrum bovenop een tunnel voor spoorbeheerder
19 september 2018
Winnend ontwerp Maritiem Museum Antwerpen van team Atelier Kempe Thill
25 juni 2018
Centraal blok voor nieuwe Antwerpse stadswijk in aanbouw
21 december 2017
Wintertuinen bepalen aanzicht woonblok
9 januari 2017
Kempe Thill ontwerpt faculteitsgebouw Hasselt
16 december 2016
Energyville Genk is ruimtelijk onderzoekgebouw
16 november 2016
Kempe Thill ontwerpt kunstencampus Antwerpen
13 juni 2016
Voorstel voor co-living-project in Madrid van Keizer Koopmans
15 juni 2020
Schoolgebouw met ruime vleugels rond een levendig hart
14 juli 2020
Evenement Brussels Design September zoekt het dichterbij
5 augustus 2020
WonderWoods Utrecht krijgt ruimte voor digitale kunst
25 augustus 2020
Gebouw Zuiderplein van Atelier Kempe Thill in Antwerpen klaar
18 september 2020
Flexibele leer-werkplaats voor mode-opleiding Zadkine
12 oktober 2020
Ruime en flexibele studentenwoningen in gebouw Atelier Kempe Thill
16 oktober 2020
Atelier Kempe Thill wint prijsvraag Duitse gezondheidscampus
28 oktober 2020
Christian Rapp nog eens vijf jaar stadsbouwmeester van Antwerpen
29 oktober 2020
Ruwbouw-is-afbouw voor opvallend appartementencomplex in Antwerpen
12 november 2020
Ruimtelijk en representatief woongebouw door Atelier Kempe Thill
18 november 2020
Monolithisch en toch poreus schoolgebouw door SADAR + VUGA en LENS°ASS Architecten
24 november 2020
Ouderenwoningen in landelijke omgeving van Heist-op-den-Berg
3 december 2020
Robbrecht en Daem architecten ontwerpt ontvangstgebouw voor Rubenshuis
25 maart 2021
Atelier Kempe Thill en Canevas presenteren opgeleverde Infrabel Academy
11 oktober 2021
Atelier Kempe Thill en Kaderstudio winnen competitie voor woningen in Elsene
9 november 2021
Atelier Kempe Thill wint competitie opleidingscentrum STEPS van KU Leuven
8 december 2021
De Harmonie in Antwerpen heeft zijn luister terug
13 december 2021
Team Atelier Kempe Thill mag Droogdokkensite Antwerpen herontwikkelen
25 januari 2022
Uitbreiding hogeschoolcampus Mönchengladbach door team met Atelier Kempe Thill
6 oktober 2022
Woontoren De Vrijheid door Atelier Kempe Thill in Bajeskwartier opgeleverd
1 september
Acht lessen rond de renovatie van sociale woningbouw
12 april 2024
Architectenweb symposium: renovatie van sociale woningbouw
26 februari 2024
Atelier Kempe Thill geeft Brusselse flats met renovatie nieuwe uitstraling
26 januari 2024
Kazerneterrein Herkenrode in centrum Hasselt getransformeerd naar woongebied
2 januari 2024
Woonzorggebouw voor psychiatrische patiënten in Heist-op-den-Berg klaar
7 februari 2023
Historie en verval Wintercircus Gent zichtbaar gelaten bij renovatie
9 november 2022
Atelier Kempe Thill ontwerpt deel woningblok HafenCity Hamburg
19 januari 2022
Nominaties 'Woongebouw van het Jaar 2019' bekend
4 september 2019
Nederlandse kandidaten voor beurshal Brugge
16 november 2016
Laagbouw met hoge dichtheid in centrum Arnhem
12 februari 2016
Groot renovatieproject Kempe-Thill van start
9 september 2015
Kempe Thill ontwerpt T2-campus Genk
20 mei 2015
Kempe Thill wint tender woonproject Brussel
5 februari 2015
Project van Kempe Thill in Parijs van start
8 september 2014
Gemeentehuis Borsele in het nieuw gestoken
27 augustus 2014
Architectenweb houdt Het Grote Zorgcongres
16 oktober 2013
Atelier Kempe Thill herontwikkelt militair terrein
25 september 2013
Atelier Kempe Thill wint prijsvraag voor klooster
2 september 2013
Kempe Thill herontwikkelt Wintercircus Gent
15 januari 2013
Renovatie gemeentehuis Borsele gestart
10 januari 2013
Kempe Thill ontwerpt woningbouw Parijs
11 mei 2012
2011: De belangrijkste prijzen
23 december 2011
Stem op 'Architect van het Jaar' 2011
30 november 2011
FABRIC en LOLA ontwerpen landgoed
8 september 2011
Nominaties Bal van het Jaar-prijs bekend
24 juni 2011
Sociale woningbouwcomplex voor Bremen
9 juni 2011
Bouw jongerencentrum Osdorp van start
1 maart 2010
'Huis van de gemeenschap' voor Borssele
14 januari 2010
Duitstalige Belgen schrappen dure nieuwbouw
22 december 2009
Amsterdamse Nieuwbouwprijs van start
18 september 2009
Glaswoningen van Kempe Thill in Moerwijk
21 juli 2009
āRotterdam biedt nog geen echte kansenā
25 maart 2009
āTe hoge eisen bij stadskantoor Rotterdamā
19 maart 2009
Europese klacht over Havenhuis Antwerpen
23 februari 2009
Atelier Kempe Thill wint Detail Preis 2009
20 januari 2009
Atelier Kempe Thill vernieuwt 'nazihotel' Rügen
3 december 2008
Plasterk ziet niets in aanbestedingsautoriteit
26 september 2008
BNA in gesprek over aanbestedingsautoriteit
1 september 2008
āSchetsenā Westland te gortig voor architecten
21 juli 2008
Toon alles
Andere nieuwsberichten
Zoetmulder vernieuwt Maastrichts herenhuis met eigentijdse uitbouw
Gisteren, 15:07
In Maastricht heeft Zoetmulder een herenhuis verbouwd en uitgebreid met een uitbouw. Waar de gevel aan de voorzijde in de originele staat is behouden om het huis te blijven laten passen in het straatbeeld, is de achterzijde geheel vernieuwd.
Vier genomineerden voor de Abe Bonnema Architectuurprijs 2025
Gisteren, 13:00
Volgens de jury zijn de nominaties een toonbeeld van het jaarthema āambitieā en leveren zij een inspirerende bijdrage aan de ontwikkeling van een nieuwe bouwcultuur.
Nominaties Publiek gebouw van het Jaar 2025 bekend
Gisteren, 09:00
Als onderdeel van de Architectenweb Awards 2025 wordt begin november de prijs voor Publiek gebouw van het Jaar 2025 uitgereikt. Uit de vijfentwintig inzendingen voor deze prijs heeft de jury vier projecten genomineerd.
Door Gortemaker Feenstra Algra ontworpen Institut Roi Albert II in Brussel officieel geopend
7 oktober, 2:53
In dit centrum voor oncologie en hematologie is alle zorg op deze gebieden van het universitair ziekenhuis Saint-Luc op één locatie ondergebracht. Het H-vormige gebouw kenmerkt zich door een houten lamellengevel, afgewisseld met glas.
Do Janne Vermeulen verzorgt Rietveldlezing 2025
Gisteren, 11:28
De medeoprichter en directeur van Team V Architectuur spreekt op 13 november over de (houten) stad van morgen.
Eneco onderzoekt verkoop warmtenetten om nieuwe wet
Gisteren, 10:41
Door een eerder dit jaar aangenomen wet is het voor het bedrijf onzeker of investeringen zich nog terugverdienen.
Uitwerking van plannen voor Nedersaksenlijn kan beginnen
7 oktober, 12:17
Maandag is het startsein gegeven voor de eerste onderzoeken die uiteindelijk moeten leiden tot de spoorlijn die Groningen en Twente met elkaar verbindt.
Mona Keijzer lonkt naar investeerders op vastgoedbeurs in München
7 oktober, 10:02
"We moeten 1,6 miljoen woningen bouwen. Daarvoor hebben we buitenlandse investeerders nodig", stelt de demissionair minister.
Jongeren debatteren in het Nieuwe Instituut met Kamerleden over wonen
6 oktober, 2:26
Tot de themaās die worden besproken, behoren betaalbaarheid, het creëren van meer woningen en de betrokkenheid van jongeren bij deze plannen.
GL-PvdA wil komende tien jaar 36 miljard uitgeven aan woningbouw
6 oktober, 10:10
Het grootste deel van het geld, 33 miljard euro, moet gaan naar publieke investeringen in de woningbouw.
Ga naar het nieuws-archief
Robert Muis
Redacteur
1
0
0
0
Voor een optimale gebruikservaring plaatst Architectenweb functionele cookies. Wat de verschillende cookies precies doen leggen we uit in een
overzicht
. Cookies van social media kun je optioneel
aanzetten
.
Akkoord
Instellingen
Annuleren
OK
Sluiten
Doorgaan
Inloggen
Maak een gratis persoonlijk account aan
Feedback
Feedback
Wij horen graag jouw feedback. Laat je reactie achter en eventueel jouw e-mail adres.
Reactie
Verstuur