Projecten
Producten
Bedrijven
Vacatures
Agenda
Awards
Podcasts
more_horiz
Videos
Magazine
Favorieten
Profiel
Uitloggen
Abonneer je nu op onze nieuwsbrieven!
Abonneren
Nee, bedankt
Ja, denk met me mee rond de
materialisering van mijn project
Copyright: © ULRICH SCHWARZ, BERLIN
Copyright: © ULRICH SCHWARZ, BERLIN
Copyright: © ULRICH SCHWARZ, BERLIN
Copyright: © ULRICH SCHWARZ, BERLIN
Copyright: © ULRICH SCHWARZ, BERLIN
Copyright: © ULRICH SCHWARZ, BERLIN
Copyright: © ULRICH SCHWARZ, BERLIN
Copyright: © ULRICH SCHWARZ, BERLIN
Copyright: © ULRICH SCHWARZ, BERLIN
Copyright: © ULRICH SCHWARZ, BERLIN
Copyright: © ULRICH SCHWARZ, BERLIN
Copyright: © ULRICH SCHWARZ, BERLIN
Copyright: Atelier Kempe Thill
Copyright: Atelier Kempe Thill
Copyright: Atelier Kempe Thill
Copyright: Atelier Kempe Thill
Copyright: Atelier Kempe Thill
Woningensemble Atelier Kempe Thill in Arnhem klaar
14 december 2018, 14:16
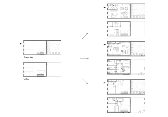
Aan de rand van het Spijkerkwartier in de binnenstad van Arnhem zijn zestien woningen naar ontwerp van Atelier Kempe Thill opgeleverd. De woningen zijn ontworpen als een ensemble, maar dankzij geïndividualiseerde plattegronden hebben ze ook een eigen karakter. Een vide vormt het ruimtelijk hart van alle woningen en laat daglicht diep het huis binnendringen.
Het ensemble ligt aan de rand van het Spijkerkwartier, tegen een klein parkje aan. De woningen zijn verdeeld over vier stroken, met daartussen ommuurde tuinen en kleine, afgesloten woonstraten. De muren zijn zoals de gehele bebouwing gematerialiseerd in een speciaal voor het project ontwikkelde baksteen, waardoor het woningbouwproject ook echt uniformiteit uitstraalt.
De witgele baksteengevel is gecombineerd met brons geanodiseerde aluminiumkozijnen, die zijn voorzien van zonwerende beglazing en geïntegreerde grijze zonneschermen.
De woningen zijn in de basis gelijk en eenvoudig, maar beschikken over de flexibiliteit om te worden aangepast voor specifieke woonwensen en leefstijlen. Tot vijf slaapkamers met verschillende posities voor woon- en badkamers kunnen binnen deze structuur worden aangeboden. Bewoners hadden verschillende opties voor deuren, trappen, badkamers en afwerkingen.
De begane grond en verdieping zijn verbonden via een trap, die in de vide is geplaatst.
Aan de voorzijde zijn de gevels van de woningen vrij gesloten, terwijl ze aan de kant van de tuin over een glazen gevel beschikken. Dankzij twee grote schuiframen is de woning niet alleen visueel, maar ook fysiek met de buitenruimte verbonden. De ommuurde tuin is ongeveer vijftig vierkante meter groot en heeft de sfeer van een patio, meldt Atelier Kempe Thill.
De foto's bij dit artikel komen van
Ulrich Schwarz
Trefwoorden
woningbouw
arnhem
atelier kempe thill
Locatie
Best gelezen
1
Woontoren Front door Monadnock wint tiende Architectuurprijs Nijmegen
donderdag, 9 april
2
Spoorwegverleden inspireert ontwerp woonblok Wisselspoor 10 in Utrecht
woensdag, 8 april
3
Rotterdam mag woningen gaan bouwen aan de Parkhaven
woensdag, 8 april
4
KOW wint met Marker Woods tender voor nieuwe wijk Eschmarkerveld
woensdag, 8 april
5
RED Company vraagt vergunning aan voor productie- en onderzoeksfaciliteit Lilly
dinsdag, 7 april
Gerelateerde nieuwsberichten
T2-campus in Genk is flexibele onderwijsfabriek
7 augustus 2019
Grootschalig stedelijk ensemble bij station Rennes naar ontwerp van Atelier Kempe Thill voltooid
11 juli 2024
Architect Oliver Thill op 55-jarige leeftijd overleden
5 maart
Atelier Kempe Thill en Kaderstudio winnen competitie voor woningen in Elsene
9 november 2021
Atelier Kempe Thill en Canevas presenteren opgeleverde Infrabel Academy
11 oktober 2021
Oud tijdelijk stadskantoor Arnhem is nu woongebouw
20 april 2021
Ouderenwoningen in landelijke omgeving van Heist-op-den-Berg
3 december 2020
Ruimtelijk en representatief woongebouw door Atelier Kempe Thill
18 november 2020
Atelier Kempe Thill wint prijsvraag Duitse gezondheidscampus
28 oktober 2020
Ruime en flexibele studentenwoningen in gebouw Atelier Kempe Thill
16 oktober 2020
Gebouw Zuiderplein van Atelier Kempe Thill in Antwerpen klaar
18 september 2020
Kunstacademie in Antwerpen met expositieruimte langs de straat
13 mei 2020
Atriumhaus van Atelier Kempe Thill biedt nieuwe woningtypologie in Duitsland
4 februari 2020
Intense laagbouw Spijkerkwartier bekroond als Woongebouw van het Jaar 2019
31 oktober 2019
Bouw hotel en appartementen Stationsplein Arnhem van start
25 oktober 2019
Rigoureuze renovatie van brutalistische flats in Antwerpen
22 oktober 2019
Nominaties Abe Bonnema Architectuurprijs 2019 bekend
16 oktober 2019
Oud tijdelijk stadskantoor Arnhem wordt woongebouw
11 juni 2019
Jaarboek Architectuur 2018/2019 officieel gepresenteerd
7 mei 2019
Vrijstaande woonblokken als een waaier aan het park
1 mei 2019
VenhoevenCS ontwerpt sluitstuk stationsgebied Arnhem
23 november 2018
College wil Museum Arnhem toch verbouwen en uitbreiden
15 november 2018
Atelier Kempe Thill en Atelier 56S ontwerpen omvangrijk complex in Rennes
8 november 2018
Barcode Architects wint herontwikkelingsproject in Arnhem
1 oktober 2018
Opleidingscentrum bovenop een tunnel voor spoorbeheerder
19 september 2018
Winnend ontwerp Maritiem Museum Antwerpen van team Atelier Kempe Thill
25 juni 2018
Zicht op Eusebiuskerk centraal in Focus Filmtheater
22 juni 2018
Winnaars Heuvelinkprijs 2018 bekend
18 mei 2018
Koningin opent vernieuwd Musis Arnhem
12 januari 2018
Woontoren markeert entree Schuytgraaf bij Arnhem-Zuid
9 januari 2018
Laagbouw met hoge dichtheid in centrum Arnhem
12 februari 2016
T2-campus in Genk is flexibele onderwijsfabriek
7 augustus 2019
Grootschalig stedelijk ensemble bij station Rennes naar ontwerp van Atelier Kempe Thill voltooid
11 juli 2024
Architect Oliver Thill op 55-jarige leeftijd overleden
5 maart
Atelier Kempe Thill en Kaderstudio winnen competitie voor woningen in Elsene
9 november 2021
Atelier Kempe Thill en Canevas presenteren opgeleverde Infrabel Academy
11 oktober 2021
Oud tijdelijk stadskantoor Arnhem is nu woongebouw
20 april 2021
Ouderenwoningen in landelijke omgeving van Heist-op-den-Berg
3 december 2020
Ruimtelijk en representatief woongebouw door Atelier Kempe Thill
18 november 2020
Atelier Kempe Thill wint prijsvraag Duitse gezondheidscampus
28 oktober 2020
Ruime en flexibele studentenwoningen in gebouw Atelier Kempe Thill
16 oktober 2020
Gebouw Zuiderplein van Atelier Kempe Thill in Antwerpen klaar
18 september 2020
Kunstacademie in Antwerpen met expositieruimte langs de straat
13 mei 2020
Atriumhaus van Atelier Kempe Thill biedt nieuwe woningtypologie in Duitsland
4 februari 2020
Intense laagbouw Spijkerkwartier bekroond als Woongebouw van het Jaar 2019
31 oktober 2019
Bouw hotel en appartementen Stationsplein Arnhem van start
25 oktober 2019
Rigoureuze renovatie van brutalistische flats in Antwerpen
22 oktober 2019
Nominaties Abe Bonnema Architectuurprijs 2019 bekend
16 oktober 2019
Oud tijdelijk stadskantoor Arnhem wordt woongebouw
11 juni 2019
Jaarboek Architectuur 2018/2019 officieel gepresenteerd
7 mei 2019
Vrijstaande woonblokken als een waaier aan het park
1 mei 2019
VenhoevenCS ontwerpt sluitstuk stationsgebied Arnhem
23 november 2018
College wil Museum Arnhem toch verbouwen en uitbreiden
15 november 2018
Atelier Kempe Thill en Atelier 56S ontwerpen omvangrijk complex in Rennes
8 november 2018
Barcode Architects wint herontwikkelingsproject in Arnhem
1 oktober 2018
Opleidingscentrum bovenop een tunnel voor spoorbeheerder
19 september 2018
Winnend ontwerp Maritiem Museum Antwerpen van team Atelier Kempe Thill
25 juni 2018
Zicht op Eusebiuskerk centraal in Focus Filmtheater
22 juni 2018
Winnaars Heuvelinkprijs 2018 bekend
18 mei 2018
Koningin opent vernieuwd Musis Arnhem
12 januari 2018
Woontoren markeert entree Schuytgraaf bij Arnhem-Zuid
9 januari 2018
Laagbouw met hoge dichtheid in centrum Arnhem
12 februari 2016
Toon alles
Gerelateerde video's
Spijkerkwartier Arnhem
Atelier Kempe Thill
Andere nieuwsberichten
Restauratie Atlasbeeld op dak Koninklijk Paleis Amsterdam afgerond
10 april, 3:38
Het beeld op het fronton van het paleis was in juli van zijn plek gehaald voor een uitgebreide onderhoudsbeurt in Antwerpen.
Nieuw zitgebied Lounge 2 Schiphol geïnspireerd door overgangsfase in oeuvre Mondriaan
10 april, 2:16
Op luchthaven Schiphol is de derde en laatste fase van door Beyond Space ontworpen zitgebieden opgeleverd. Net als de eerste twee fases van het project is dit gedeelte geïnspireerd door het werk van Mondriaan, maar dan uit een eerdere periode.
SeARCH en Heutink Groep winnen tender voor woongebouw Sluisbuurt
10 april, 11:15
Gebouw Radius biedt plek aan zo’n honderd appartementen, een stadskamer, een binnentuin, daktuinen en andere gemeenschappelijke ruimtes. Het gebouw wordt gerealiseerd van natuurlijke materialen als hout, stampleem en leemsteen.
Woontoren Front door Monadnock wint tiende Architectuurprijs Nijmegen
9 april, 10:00
“Front is een optimistisch icoon, gemaakt met lef, dat ambachtelijkheid en vakmanschap uitstraalt”, stelt de jury in zijn rapport.
Grote en kleine gemeenten balen van bouwregels Zuid-Holland
10 april, 4:31
Grote en kleine gemeenten in Zuid-Holland hebben hun zorgen geuit over nieuwe regels van de provincie, die volgens hen de woningbouw belemmeren.
Twijfels in Zuid-Holland over halen van doelen landelijk gebied
10 april, 12:18
De meeste partijen in de Zuid-Hollandse politiek hebben twijfels over de plannen die in zestien deelgebieden zijn gemaakt voor de aanpak van het landelijk gebied.
Huurprijzen stijgen harder dan koopwoningprijzen
10 april, 9:31
Volgens Huurwoningen.nl en Pararius moesten nieuwe huurders in het eerste kwartaal gemiddeld 21,12 euro per vierkante meter per maand neerleggen.
ABN AMRO: investeringen defensie vergroten druk op bouwcapaciteit
9 april, 12:29
Kazernes, opslagplaatsen en oefenterreinen dingen om dezelfde aannemers, ingenieurs en installateurs die ook nodig zijn voor bijvoorbeeld woningbouw.
Europa kent 831 miljoen euro subsidie toe aan Utrechtse projecten
9 april, 9:27
Het gaat onder meer om projecten tegen oververhitting van gebouwen, slimmer gebruik van energie en het hergebruik van materialen en grondstoffen.
Rotterdam mag woningen gaan bouwen aan de Parkhaven
8 april, 3:38
De Raad van State maakte woensdag bekend dat alle bezwaren tegen het bestemmingsplan zijn verworpen.
Ga naar het nieuws-archief
Ronnie Weessies
Redacteur
4
0
0
0
Voor een optimale gebruikservaring plaatst Architectenweb functionele cookies. Wat de verschillende cookies precies doen leggen we uit in een
overzicht
. Cookies van social media kun je optioneel
aanzetten
.
Akkoord
Instellingen
Annuleren
OK
Sluiten
Doorgaan
Inloggen
Maak een gratis persoonlijk account aan
Feedback
Feedback
Wij horen graag jouw feedback. Laat je reactie achter en eventueel jouw e-mail adres.
Reactie
Verstuur