Projecten
Producten
Bedrijven
Vacatures
Agenda
Awards
Podcasts
more_horiz
Videos
Magazine
Thema's
Favorieten
Profiel
Uitloggen
Copyright: Bart van Hoek
Copyright: Bart van Hoek
Copyright: Bart van Hoek
Copyright: Bart van Hoek
Copyright: Bart van Hoek
Copyright: Bart van Hoek
Copyright: Bart van Hoek
Copyright: Bart van Hoek
Copyright: Bart van Hoek
Copyright: Bart van Hoek
Copyright: Bart van Hoek
Copyright: Bart van Hoek
Copyright: Bart van Hoek
Copyright: Bart van Hoek
Copyright: Bart van Hoek
Copyright: Bart van Hoek
Copyright: Bart van Hoek
Copyright: Bart van Hoek
Copyright: Bart van Hoek
Copyright: Bart van Hoek
Copyright: Bart van Hoek
Copyright: Bart van Hoek
Copyright: van Dongen-Koschuch Architects and Planners
Copyright: van Dongen-Koschuch Architects and Planners
Copyright: van Dongen-Koschuch Architects and Planners
Copyright: van Dongen-Koschuch Architects and Planners
Copyright: van Dongen-Koschuch Architects and Planners
Copyright: van Dongen-Koschuch Architects and Planners
Copyright: van Dongen-Koschuch Architects and Planners
Copyright: van Dongen-Koschuch Architects and Planners
Koningin opent vernieuwd Musis Arnhem
12 januari 2018, 10:36
Vrijdag opent koningin Máxima officieel het vernieuwde concertgebouw Musis in Arnhem. Naar een ontwerp van
van Dongen-Koschuch Architects and Planners
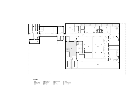
is de uit 1890 stammende Muzenzaal gerenoveerd en is het complex uitgebreid met de vorig jaar in gebruik genomen Parkzaal. Het bestaande en nieuwe deel zijn verbonden via een gemeenschappelijke plint.
Musis (Sacrum) is al sinds 1847 een begrip in Arnhem. Door de jaren heen heeft het gebouw aan de rand van het centrum verschillende aanpassingen en gedaantewisselingen ondergaan, met als gevolg dat het complex uiteindelijk niet goed meer functioneerde en gedateerde uitstraling kreeg.
Bij de meest recente ingreep is een deel van het bestaande gebouw gesloopt en werd het complex aan de achterzijde uitgebreid met een grotere, multifunctionele zaal. Verder zijn een nieuw entreegebied en ondersteunende functies ingepast.
Hoewel van Dongen-Koschuch ook de renovatie van de 758 stoelen tellende Muzenzaal onder handen heeft genomen, lag de focus in het project met name op de nieuwe Parkzaal. De uitbreiding, met een capaciteit van 1.015 zitplaatsen, is als een alzijdig paviljoen in het park vormgegeven.
Het gebouw vult het bestaande monument op respectvolle wijze aan en is als zodanig opgenomen in het landschap. De concertzaal heeft achter het podium een grote glazen gevel met uitzicht op het Musispark als ‘groen decor’, die ook te openen is voor openluchtvoorstellingen.
Met het project was een bedrag van twintig miljoen euro gemoeid, dat lag twee miljoen boven het oorspronkelijke budget. Tijdens de bouw kwam schade door asbest aan het licht, wat een extra kostenpost van 2,4 miljoen euro met zich meebracht.
Afgelopen najaar heeft Architectenweb een
rondleiding door het nieuwe Musis
georganiseerd. In het
themanummer Publieke Gebouwen
van Architectenweb magazine staat een uitgebreid artikel over Musis.
Trefwoorden
van dongen-koschuch
arnhem
musis sacrum
musis
concertgebouw
Locatie
Best gelezen
1
Plan voor nieuwe buurt op plek hoofdkantoor ABN AMRO op de Zuidas
vrijdag, 10 oktober
2
‘Alexander Straub zet grote groep vakgenoten weg als niet-relevant’
vrijdag, 10 oktober
3
Duitsland slokt Nederlandse bouwkracht op
maandag, 13 oktober
4
ECHO Urban Design en Studio RAP maken winnend ontwerp voor herontwikkeling in Vlissingen
donderdag, 9 oktober
5
ONE Architecture & Urbanism werkt mee aan masterplan transformatie havengebied New York
vrijdag, 10 oktober
Gerelateerde nieuwsberichten
Boek belicht bewogen (bouw)geschiedenis Musis Sacrum
1 november 2022
Koschuch Architects ontwerpt toren met dubbellaagse woningen in Amstelkwartier
5 maart 2020
Nieuwe concertzaal in middeleeuwse Bijlokehospitaal Gent
24 september 2020
Mannoury – open bouwen en slim dak
7 juli 2022
Jaarboek Architectuur in Nederland 2017/2018 gepresenteerd
8 mei 2018
Winnaars NRP Gulden Feniks 2018 onthuld
28 juni 2018
Winnaars Heuvelinkprijs 2018 bekend
18 mei 2018
Negen genomineerden voor BNA Beste Gebouw van het Jaar 2018
21 maart 2018
Zicht op Eusebiuskerk centraal in Focus Filmtheater
22 juni 2018
Beeldverslag van rondleiding door Musis Sacrum
15 november 2017
Van Dongen-Koschuch verbouwt Musis Sacrum
18 september 2014
Musiskwartier Arnhem na veertien jaar geopend
24 augustus 2006
Asbestschade Musis Sacrum 2,4 miljoen
12 december 2016
Ingrijpende verbouwing voor Musis Sacrum
22 mei 2014
Gelders Huis gekozen tot BNA Beste Gebouw van het Jaar 2018
18 mei 2018
Boston en Seattle slanke woontorens op Kop van Zuid
21 november 2018
VenhoevenCS ontwerpt sluitstuk stationsgebied Arnhem
23 november 2018
Zeven projecten in Nederland op longlist EU Mies Award 2019
12 december 2018
Woningensemble Atelier Kempe Thill in Arnhem klaar
14 december 2018
Architecten Musis Arnhem gaan ieder hun eigen weg
15 januari 2019
Bouw hotel en appartementen Stationsplein Arnhem van start
25 oktober 2019
Opknapbeurt voor markant Arnhems parkeerveld Blauwe Golven
11 juni 2020
CPO-collectief realiseert woon-werkgebouw bij Coehoornpark Arnhem
30 juni 2020
Arnhem investeert 54,5 miljoen in vernieuwing schouwburg
16 november 2021
De Harmonie in Antwerpen heeft zijn luister terug
13 december 2021
Vijf ontwerpteams in de race voor renovatie en nieuwbouw Stadstheater Arnhem
7 september 2022
Boek belicht bewogen (bouw)geschiedenis Musis Sacrum
1 november 2022
Koschuch Architects ontwerpt toren met dubbellaagse woningen in Amstelkwartier
5 maart 2020
Nieuwe concertzaal in middeleeuwse Bijlokehospitaal Gent
24 september 2020
Mannoury – open bouwen en slim dak
7 juli 2022
Jaarboek Architectuur in Nederland 2017/2018 gepresenteerd
8 mei 2018
Winnaars NRP Gulden Feniks 2018 onthuld
28 juni 2018
Winnaars Heuvelinkprijs 2018 bekend
18 mei 2018
Negen genomineerden voor BNA Beste Gebouw van het Jaar 2018
21 maart 2018
Zicht op Eusebiuskerk centraal in Focus Filmtheater
22 juni 2018
Beeldverslag van rondleiding door Musis Sacrum
15 november 2017
Van Dongen-Koschuch verbouwt Musis Sacrum
18 september 2014
Musiskwartier Arnhem na veertien jaar geopend
24 augustus 2006
Asbestschade Musis Sacrum 2,4 miljoen
12 december 2016
Ingrijpende verbouwing voor Musis Sacrum
22 mei 2014
Gelders Huis gekozen tot BNA Beste Gebouw van het Jaar 2018
18 mei 2018
Boston en Seattle slanke woontorens op Kop van Zuid
21 november 2018
VenhoevenCS ontwerpt sluitstuk stationsgebied Arnhem
23 november 2018
Zeven projecten in Nederland op longlist EU Mies Award 2019
12 december 2018
Woningensemble Atelier Kempe Thill in Arnhem klaar
14 december 2018
Architecten Musis Arnhem gaan ieder hun eigen weg
15 januari 2019
Bouw hotel en appartementen Stationsplein Arnhem van start
25 oktober 2019
Opknapbeurt voor markant Arnhems parkeerveld Blauwe Golven
11 juni 2020
CPO-collectief realiseert woon-werkgebouw bij Coehoornpark Arnhem
30 juni 2020
Arnhem investeert 54,5 miljoen in vernieuwing schouwburg
16 november 2021
De Harmonie in Antwerpen heeft zijn luister terug
13 december 2021
Vijf ontwerpteams in de race voor renovatie en nieuwbouw Stadstheater Arnhem
7 september 2022
Toon alles
Andere nieuwsberichten
Koningin Máxima opent jubileumeditie Dutch Design Week
45 minuten geleden
De 25e editie van het designevenement staat in het teken van het thema Past. Present. Possible. Naast de gangbare highlights zijn er dit jaar thematische clusteringen rond urgente opgaven en grote installaties in de openbare ruimte.
Doepel Strijkers Architects ontwerpt modulair interieur voor multi-brand store
2 uur geleden
De multi-brand store SPRMRKT voor mode, kunst en cultuur vestigt zich hernieuwd in de hoofdstad en wil winkelervaring impuls geven.
Nieuwe editie van DigiBouw vindt plaats op 19 en 20 november in Utrecht
Vandaag, 10:00
AI, robotisering, parametrisch ontwerpen en bouwen, verandermanagement, veiligheid, open standaarden, BIM, slimme bouwlogistiek, CO2-reductie op de bouwplaats… dat zijn de thema’s die aan bod komen bij DigiBouw.
David Chipperfield landt in Antwerps Nieuw Zuid
Gisteren, 16:04
Het duurzame kantoorproject Orchard van David Chipperfield Architects is de meest recente toevoeging aan de ontwikkeling van de wijk Nieuw Zuid aan de Antwerpse Schelde.
PBL: minimaal 150.000 hectare meer natuur nodig in 2050
3 uur geleden
Het planbureau heeft twee mogelijke oplossingsrichtingen doorgerekend om de huidige Europese doelen voor klimaat, natuur en waterkwaliteit te halen.
Afaina de Jong wint Amsterdamprijs voor de Kunst 2025
Gisteren, 15:19
De architect en oprichter van Afarai won de belangrijkste kunstprijs van de hoofdstad in de categorie Bewezen Kwaliteit.
Pararius: huurmarkt zit op slot, huren stijgen verder
Gisteren, 10:49
De vrije sector huurmarkt zit nog altijd ‘compleet op slot’, meldt woningplatform Pararius op basis van cijfers over het derde kwartaal.
PBL: Ook nieuw plan voor circulaire economie is niet genoeg
14 oktober, 2:42
In de nieuwe versie van het zogeheten Nationaal Programma Circulaire Economie staan ‘vooral veel intenties en plannen’, schrijft het planbureau.
Bossen en bodems in zwaar weer, klimaatraad maakt zich zorgen
14 oktober, 10:24
De klimaatverandering versnelt en de biodiversiteit gaat hard achteruit, terwijl er volgens de WKR steeds meer van de bossen en bodems wordt gevraagd.
'Helft investeerders spendeert opbrengsten verkochte huurhuizen in buitenland'
13 oktober, 2:41
Bijna de helft van de vastgoedinvesteerders die in Nederland huurwoningen van de hand doen, investeert de opbrengsten liever in het buitenland.
Ga naar het nieuws-archief
Ronnie Weessies
Redacteur
1
0
0
0
Voor een optimale gebruikservaring plaatst Architectenweb functionele cookies. Wat de verschillende cookies precies doen leggen we uit in een
overzicht
. Cookies van social media kun je optioneel
aanzetten
.
Akkoord
Instellingen
Annuleren
OK
Sluiten
Doorgaan
Inloggen
Maak een gratis persoonlijk account aan
Feedback
Feedback
Wij horen graag jouw feedback. Laat je reactie achter en eventueel jouw e-mail adres.
Reactie
Verstuur