Abonneer je nu op onze nieuwsbrieven!
Abonneren
Nee, bedankt
Ja, denk met me mee rond de
materialisering van mijn project
Copyright: Marcel van der Burg
Copyright: Marcel van der Burg
Copyright: Stijn Bollaert
Situatie
Copyright: Marcel van der Burg
Copyright: Marcel van der Burg
Copyright: Marcel van der Burg
Copyright: Marcel van der Burg
Copyright: Stijn Bollaert
Copyright: Marcel van der Burg
Copyright: Marcel van der Burg
Copyright: Stijn Bollaert
Copyright: Marcel van der Burg
Copyright: Marcel van der Burg
Scheg
Brettenkleed
Copyright: Marcel van der Burg
Waterberging
Copyright: Marcel van der Burg
Copyright: Marcel van der Burg
Copyright: Marcel van der Burg
Doorsnede
0-1
0a
0b
1
2
3
4
5
6
6e
7
8
8e
9
10
11
12
13
14
14e
15
16
17
18
19
20
Vertical – woontoren met beplanting en woontoren met nestgelegenheid
Als onderdeel van Vertical heeft NL Architects een woontoren ontworpen met balkonranden vol beplanting. Ernaast staat een tweede, lagere woontoren naar ontwerp van Studio Donna van Milligen Bielke met nestgelegenheid voor vogels, insecten en vleermuizen. Zodoende kunnen de dieren in de ene toren voedsel vinden en in de andere overnachten.
In de transformatie en verdichting van Amsterdam Sloterdijk tot gemengde stadswijk is vanuit supervisor Don Murphy en de gemeente Amsterdam de ambitie geformuleerd om de groene scheg die vanuit het westen de stad in steekt door Sloterdijk te trekken.
Bij de ontwikkeling tot zakencentrum in de jaren tachtig van de vorige eeuw is die groene scheg hier doorbroken, wat hittekaarten van de stad illustreren. In de doorontwikkeling van de wijk nu moeten de groengebieden ten westen en ten oosten van Sloterdijk weer met elkaar verbonden worden. Het ontwerp van Vertical laat goed zien wat er mogelijk is wanneer natuurinclusief ontwerpen centraal gesteld wordt.

Die ecologische ambitie is in Vertical gecombineerd met de ambitie om met een veelvoud aan woontypologieën ook allerlei soorten bewoners aan te trekken en die diversiteit te vatten in een architectonisch divers ensemble ontworpen door vijf architectenbureaus. Het zogeheten Team Heijmans, verwijzend naar de bouwer, bestaat naast NL Architects en Studio Donna van Milligen Bielke ook uit Space Encounters, Chris Collaris (i29 architects) en VDNDP. Als landschapsarchitect is DS Landschapsarchitecten bij het project betrokken.
Als zakencentrum is Sloterdijk nooit een doorslaand succes geworden. Het gebied is weliswaar uitstekend ontsloten via meerdere spoorwegen, autosnelwegen, een metrolijn en een tramlijn. Maar de zichtbaarheid van die infrastructuur in combinatie met veel zichzelf gekeerde, gladde kantoorgebouwen maakte het een onherbergzaam gebied. Het hielp ook niet mee dat een groot aantal bouwvelden onbebouwd bleef.

De transformatie van het gebied tot gemengde wijk komt ondertussen op stoom en door die ruimte in het gebied gaat het nu snel. Na de eerdere voltooiing van woontoren Lycka naar ontwerp van Team Paul de Vroom + Sputnik werd onlangs woongebouw MO*town Track 8 naar ontwerp van De Zwarte Hond opgeleverd. Ondertussen wordt er gebouwd aan woongebouwen ontworpen door onder andere MVSA Architects, NEXT Architects en Diederendirrix.

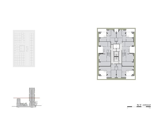
Een van de grootste lege bouwvelden in Sloterdijk was Kavel N. In het stedenbouwkundige plan dat DOOR architecten hiervoor heeft gemaakt, is dit bouwveld opgedeeld in vier blokken die met elkaar een binnentuin omsluiten. Vertical geeft invulling aan twee van die blokken: kavel N1 en kavel N3.

In haar stedenbouwkundig plan heeft DOOR architecten voorgeschreven dat de 4-6 laagse onderbouwen een afwisselende architectuur diende te krijgen met levendige plinten, en dat daarboven in een neutraal raster woontorens konden verrijzen. Beneden dus ‘Jane Jacobs’ en boven ‘Mies van der Rohe’, zo typeert het ontwerpteam het.
Op de oostelijke kavel N3 heeft NL Architects de transparante plint, het middendeel van de onderbouw en de woontoren erboven ontworpen. Het noordelijke deel van de onderbouw hier is ontworpen door Chris Collaris (i29 architects), terwijl het zuidelijke deel is ontworpen door Space Encounters.

De onderbouw heeft aan de hoofdstraat een lange, witomlijnde, dubbellaagse plint gekregen. Achter een vertande glazen pui liggen commerciële ruimtes en in het midden de entreehal voor de woontoren erboven. Boven en achter de plint zijn drie massieve, zandkleurige volumes ontworpen die op steeds andere manieren getrapt zijn. De diverse architectuur hier bevat ook een diversiteit aan woningen.
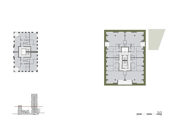
De woontoren die hierboven uit rijst wordt gekarakteriseerd door uitkragende, betonnen balkonranden met overhangende beplanting met daarachter een houten gevel vol grote ramen en serres. In de woontoren varieert de verdiepingshoogte van een standaard drie meter van vloer tot vloer tot aan een nogal spectaculaire vier en zelfs zes meter. En dat dus gekoppeld aan rondlopende balkons met rondlopende plantenbakken. Hier wordt alles uit de kast gehaald om wonen op Sloterdijk aantrekkelijk te maken. Van een afstand gezien zorgt de variatie in de gevel, in de belijning ervan, voor een ‘licht vibrerend silhouet’, zo omschrijft NL Architects het.

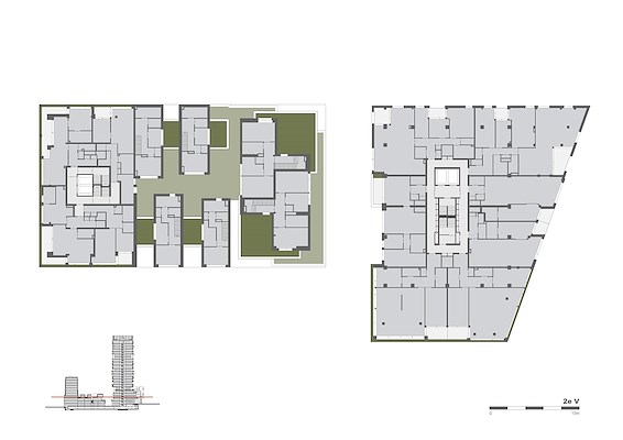
Bij de overgang van onderbouw naar woontoren is een gezamenlijke huiskamer gerealiseerd voor de bewoners van zowel kavel N3 als N1. Deze huiskamer is voorzien van een grote keuken en eettafel, er is ruimte om te lezen en te loungen, ruimte om te spelen en bijeenkomsten te houden. Daarnaast zijn er twee gastenkamers en is een fitnessruimte beschikbaar. Een rondom lopende daktuin biedt ruimte voor ‘potentieel oneindige wandelingen’, grapt NL Architects.
Op het westelijke kavel N1 heeft Studio Donna van Milligen Bielke de woontoren ontworpen, op een vierlaagse onderbouw door Chris Collaris (i29 architects), met ernaast eerst een bouwdeel door NL Architects en tenslotte nog een bouwdeel door Space Encounters.

De verspringende aluminium volumes, die Space Encounters hier heeft ontworpen, introduceren een helder moment in het hart van het ensemble. De bakstenen volumes ernaast door NL Architects zijn zeer ingetogen, net als de houten onderbouw door Chris Collaris daar weer naast. Aan de straat zijn veel beneden-bovenwoningen ontworpen, zodat bewoners de mogelijkheid hebben om een bedrijf aan huis te hebben.

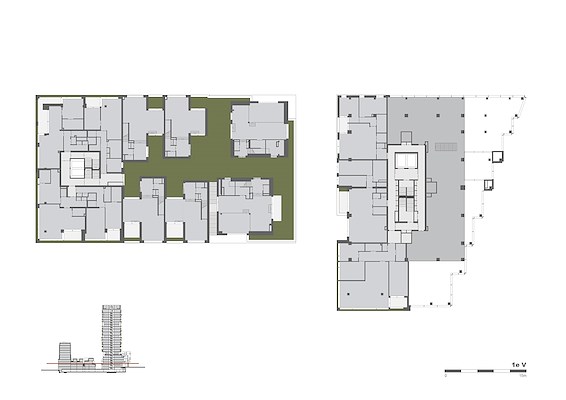
Op de onderbouw heeft Studio Donna van Milligen Bielke een rotsachtige woontoren ontworpen die allerlei verschillende lofts bevat. De uit lagen opgebouwde gevel biedt op iedere laag nestkasten voor een andere diersoort. Het is ‘een monoliet met een assortiment aan zorgvuldig vervaardigde openingen die ruimte bieden aan vogels, insecten en vleermuizen (en ook aan mensen) om zich te verstoppen en te broeden’, zo omschrijft het ontwerpteam het.
Het natuurgebied dat van Halfweg tot aan Sloterdijk loopt, wordt de Bretten genoemd. Om dieren en planten door Sloterdijk tot aan het Westerpark te laten trekken, is voor Sloterdijk een zogeheten Brettenkleed uitgedacht: groene daken, groen dat langs de gevels naar beneden loopt, en groene openbare ruimtes.

In natuurinclusieve stedelijke landschappen worden de plekken waar dieren een veilig heenkomen zoeken over het algemeen gemengd met de plekken waar ze hun voedsel vinden. Bij Vertical is de keuze gemaakt om die plekken los te trekken, om dat in twee aparte torens onder te brengen. Dat levert een uitgesproken architectuur op. De praktijk zal moeten uitwijzen hoe succesvol het is. Als het zich bewijst, dan kan het een model zijn voor meer ontwikkelingen. Ook kan natuurlijk gedacht worden om verschillende zijden van gebouwen verschillende functies voor de natuur te geven, de ene zijde de nestkastjes de andere zijde de beplanting.
In de rondom lopende plantenbakken in de door NL Architects ontworpen woontoren heeft DS landschapsarchitecten de verschillende landschappen van de Bretten geïnterpreteerd. Van gecultiveerde tot wilde natuur; van park, volkstuin, begraafplaats, polder, boerderij, moestuin, sportvelden, moeras, hakhoutbos, tot duinen. Elke laag is samengesteld uit een andere mix van inheemse planten: een mengsel van kruiden, grassen, struiken en klimplanten afkomstig uit de Bretten. De vegetatie dient als ‘snoepgoed’ voor vogels. Het groen biedt voer in de vorm van fruit, bessen en zaden, maar ook ongewervelde dieren en insecten die door het gebladerte worden aangetrokken. Bovenop de woontorens liggen zonnepanelen, maar bovenop de onderbouw zijn groendaken gerealiseerd.

Al die beplanting zorgt uiteraard ook voor prettige leefomstandigheden voor de mens; CO2 wordt opgevangen, fijnstof wordt gebonden, de geluidsimpact van havens en auto's wordt verzacht en hittestress wordt verminderd.
Om de stad beter bestand te maken tegen de steeds frequentere en steeds heviger wordende regenbuien, en de stad tegelijkertijd te behoeden tegen uitdroging bij langere perioden van droogte, is het Amsterdam Rain Proof programma ontwikkeld. Voor Sloterdijk is de ambitie om op ieder perceel 24 uur lang 60 millimeter regenwater te boren en dat de afvoer naar het riool wordt afgeremd naar een maximaal debiet van 0,9 millimeter per uur (2,5 l/s/ha).

Bij Vertical zorgen de daken van kavel N3 en N1 in basis voor de benodigde waterberging. Maar de plantenbakken vergroten die capaciteit nog eens flink. In het substraat wordt water gebufferd. Daarnaast houdt een systeem van poreuze kratten, op de daken en op de bodem van de doorlopende bloempotten, structureel regenwater vast. Dit water dient als levensbron voor de vegetatie, voornamelijk door capillaire werking. Zodra het weerstation alarmerend zware regenval voorziet, komt het opgeslagen water in het riool terecht. Hierdoor wordt de benodigde bufferruimte vrijgemaakt. Alles bij elkaar kan Vertical 330 m3 waterberging bieden, wat ruim het dubbele is van de geëiste capaciteit.
Een deel van het regenwater wordt opgevangen in een groot vat in het gebouw. Hier kunnen voedingsstoffen worden toegevoegd en het verrijkte water wordt vervolgens terug in het systeem gevoerd. In het zeldzame geval van aanhoudende droogte kan het voortbestaan ??van de vegetatie worden gegarandeerd door leidingwater toe te voegen.
Vertical bestaat uiteindelijk uit 168 appartementen en 836 m2 commerciële ruimte. Het ensemble is gekoppeld aan een WKO en zodoende bijna energieneutraal. Het project is ontwikkeld door Heijmans Vastgoed en gerealiseerd door Heijmans Bouw. Naast de genoemde ontwerpbureaus waren ook de volgende partijen bij het project betrokken: Van den Berg Bouwkundigen, De Dakdokters, Fore Installatie Adviseurs, Huisman & van Muijen, IMd Raadgevende Ingenieurs, LBP Sight, Moma & Co, Tenderboost, Van der Tol en WAX Architectural Visualizations.

Gerelateerde nieuwsberichten

Andere nieuwsberichten

Vijf finalisten voor Heuvelinkprijs 2026

Gisteren, 15:06

Parkeerplein naast Tilburgse schouwburg maakt plaats voor multifunctionele gebouwen

Gisteren, 11:57

'Zwevend huis' naar ontwerp van Benthem Crouwel in Amersfoortse wijk

Gisteren, 10:54

Nog drie dagen om jouw suggestie voor de Architect van het Jaar 2026 in te sturen

Gisteren, 09:00

Consortium met RxDomi en TU/e ontwikkelt netbewuste woning

Gisteren, 14:56

Minimaal half miljard extra nodig voor verbreding A27

Gisteren, 13:38

RVO constateert laagste groei windenergie op land in jaren

Gisteren, 10:02

Alsemgeest Design & Build en Ferm Architecten gaan verder als één bureau

12 mei, 1:42

Onderzoek: Nederlander wil verduurzamen, maar vindt het duur

12 mei, 12:26

Geld voor eigen sociale initiatieven bewoners aardbevingsgebied

12 mei, 10:33
KUBUS | Specialist in Archicad
SAPA
Reynaers Aluminium Nederland
Jansen
SAB-profiel bv
Aliplast Aluminium Systems
Kingspan Light & Air
ALUCOBOND®
Caparol
Tarkett BV
Kawneer
Grohe Nederland B.V.
Malaysian Timber Council
OCS | Office Cabling Systems
Swisspearl Nederland
Forster Nederland N.V.
VELUX Commercial Benelux B.V.
Sempergreen
Houthandel van Dam
Aluprof Nederland BV
QbiQ Wall Systems
Forbo Flooring
Schüco Nederland
Cedral
Sto Isoned bv
Triflex bv
Gorter Luiken BV
wienerberger
DUCO Ventilation & Sun Control
BEWI IsoBouw
ROCKWOOL B.V.
Mview+
Rockfon (ROCKWOOL B.V.)
Gira Nederland B.V.
Kingspan Geïsoleerde Panelen
GEZE Benelux  B.V.
Renson
Metaglas Groep
ABB | Busch-Jaeger
Jung | Hateha B.V.
Knauf B.V.
Saint-Gobain Glass Benelux
Faay Vianen B.V.
objectflor
Boon Edam Nederland B.V.
Hunter Douglas Architectural
VOLA Nederland BV
Forbo Eurocol Nederland B.V.
EQUITONE gevelpanelen
Holonite B.V.
Kronospan
Tata Steel Colorcoat®
Architectenweb
Over ons
Contact

© 2002 - 2026 Architectenweb BV / Voorwaarden / Privacy / Disclaimer / Sitemap
Annuleren
OK
Sluiten
Doorgaan
Inloggen
Maak een gratis persoonlijk account aan