Projecten
Producten
Bedrijven
Vacatures
Agenda
Awards
Podcasts
more_horiz
Videos
Magazine
Thema's
Favorieten
Profiel
Uitloggen
Copyright: NL Architects
Copyright: NL Architects
Copyright: NL Architects
Copyright: NL Architects
Copyright: NL Architects
Copyright: NL Architects
Copyright: NL Architects
Copyright: NL Architects
Copyright: NL Architects
Copyright: NL Architects
Copyright: NL Architects
Copyright: NL Architects
Copyright: NL Architects
Copyright: NL Architects
Copyright: NL Architects
Copyright: NL Architects
Copyright: NL Architects
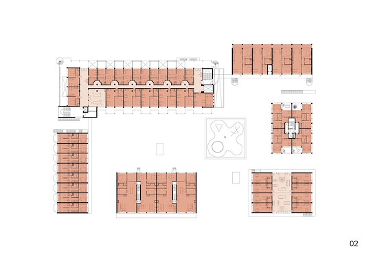
Plattegrond begane grond
Copyright: NL Architects
Plattegrond eerste verdieping
Copyright: NL Architects
Plattegrond tweede verdieping
Copyright: NL Architects
Plattegrond derde verdieping
Copyright: NL Architects
Plattegrond vierde verdieping
Copyright: NL Architects
Plattegrond vijfde verdieping
Copyright: NL Architects
Plattegrond zesde verdieping
Copyright: NL Architects
Copyright: NL Architects
Copyright: NL Architects
Copyright: NL Architects
Copyright: NL Architects
Copyright: NL Architects
Copyright: NL Architects
Copyright: NL Architects
Copyright: NL Architects
Copyright: NL Architects
NL Architects wint eerste prijs bij IBA'27-prijsvraag Stuttgart
9 juni 2022, 13:45
NL Architects
heeft de eerste prijs gewonnen bij een prijsvraag in Stuttgart, waarbij de transformatie van een terrein rond een oud kantoorgebouw van Daimler centraal staat. Het bureau won met het plan Inselquartier, waarbij 136 woningen verdeeld over verschillende gebouwen worden gerealiseerd.
In het voorstel van NL Architects wordt het bestaande kantoorgebouw niet gesloopt, zoals op dit moment het voornemen is, maar ondergaat het een transformatie tot woongebouw met aanvullende functies zoals kantoren en een supermarkt.
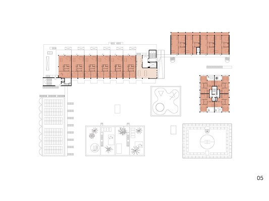
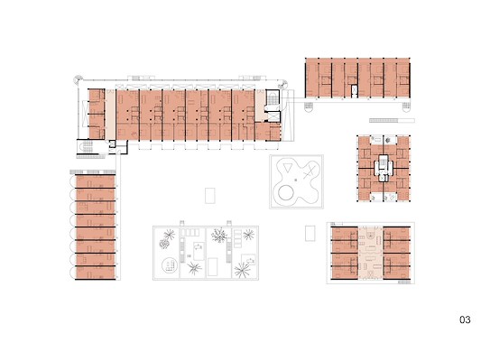
Op het terrein komen nog een aantal gebouwen te staan, die samen met het bestaande gebouw een ensemble van zeven blokken vormen. De openbare ruimte tussen de blokken wordt ingericht met onder meer groen, ontmoetingsplaatsen en speelplekken. Ook komen er recreatieve voorzieningen aan de oever van de Neckar.
De nieuwe blokken en buitenkant van het bestaande gebouw worden gerealiseerd van hout en ze bieden plek aan verschillende woningtypen, uiteenlopend van dubbelhoge appartementen tot kangoeroewoningen. Er worden verschillende duurzame maatregelen getroffen, zoals het plaatsen van zonnepanelen, toepassing van groene gevels en gebruik van dubbel glas. Ook zijn voorzieningen voor dieren in het plan opgenomen, zoals nestkasten voor vogels.
De prijsvraag is uitgeschreven in het kader van de Internationale Bauausstellung 2027, die in Stuttgart plaatsvindt. Naast NL Architects zijn
drie Duitse bureaus onderscheiden
met een prijs (een gedeelde tweede en een derde plek), alle winnaars zullen worden betrokken in het vervolgtraject van de herontwikkeling van het terrein.
Trefwoorden
stuttgart
duitsland
iba '27
nl architects
prijsvraag
woningbouw
Locatie
Best gelezen
1
Finalisten presenteren ontwerp voor Shift Landmark in Rotterdam
woensdag, 4 maart
2
Nieuwe Hittekaart Woningmarkt 2026 van BPD toont aanhoudende woningdruk
dinsdag, 3 maart
3
Strijp-S krijgt woonbuurtje met karakteristieken voormalig Philips-terrein
maandag, 2 maart
4
Architect Oliver Thill op 55-jarige leeftijd overleden
donderdag, 5 maart
5
Melkmeisje staat model voor woontoren De Catharina in Zaandam
vrijdag, 27 februari
Gerelateerde nieuwsberichten
Team met NL Architects en JDS Architects presenteert ontwerp nieuwe huisvesting Europees Parlement
16 november 2022
NL Architects wint prijsvraag tijdelijk opera- en balletgebouw Stuttgart
22 juni 2023
De Tafelberg in Amsterdam-Zuidoost wordt wooncomplex voor 290 jongeren
10 mei 2023
NL Architects, Bureau B+B en Christoph Wassmann winnen prijsvraag Sunken City
25 mei 2022
Amare – een gestapelde wereld vol cultuur
4 april 2022
Een vernieuwd centrumgebied voor Overvecht start met DeBuurt
20 december 2021
Forum Groningen is Publiek gebouw van het Jaar 2020
28 oktober 2020
Winnaars Dutch Design Awards 2020 bekend
26 oktober 2020
Forum Groningen verkozen tot BNA Beste Gebouw van het Jaar
22 oktober 2020
'Prijzen-hattrick' in thuisstad voor Forum Groningen
22 september 2020
33e editie Jaarboek Architectuur in Nederland gepresenteerd
22 september 2020
Bouw van project Vertical in Amsterdam Sloterdijk-Centrum gestart
10 maart 2020
Forum Groningen trekt ruim 400.000 bezoekers in openingsmaand
6 januari 2020
Forum Groningen: constructie als maatpak voor architectuur
16 december 2019
Terrassengebouw markeert entree Leidsche Rijn
13 december 2019
Forum Groningen: een gebouw dat (niet) gezien mag worden
4 december 2019
Officiële start bouw DeBuurt in Utrecht Overvecht
8 april 2019
Team met NL Architects en JDS Architects presenteert ontwerp nieuwe huisvesting Europees Parlement
16 november 2022
NL Architects wint prijsvraag tijdelijk opera- en balletgebouw Stuttgart
22 juni 2023
De Tafelberg in Amsterdam-Zuidoost wordt wooncomplex voor 290 jongeren
10 mei 2023
NL Architects, Bureau B+B en Christoph Wassmann winnen prijsvraag Sunken City
25 mei 2022
Amare – een gestapelde wereld vol cultuur
4 april 2022
Een vernieuwd centrumgebied voor Overvecht start met DeBuurt
20 december 2021
Forum Groningen is Publiek gebouw van het Jaar 2020
28 oktober 2020
Winnaars Dutch Design Awards 2020 bekend
26 oktober 2020
Forum Groningen verkozen tot BNA Beste Gebouw van het Jaar
22 oktober 2020
'Prijzen-hattrick' in thuisstad voor Forum Groningen
22 september 2020
33e editie Jaarboek Architectuur in Nederland gepresenteerd
22 september 2020
Bouw van project Vertical in Amsterdam Sloterdijk-Centrum gestart
10 maart 2020
Forum Groningen trekt ruim 400.000 bezoekers in openingsmaand
6 januari 2020
Forum Groningen: constructie als maatpak voor architectuur
16 december 2019
Terrassengebouw markeert entree Leidsche Rijn
13 december 2019
Forum Groningen: een gebouw dat (niet) gezien mag worden
4 december 2019
Officiële start bouw DeBuurt in Utrecht Overvecht
8 april 2019
Toon alles
Gerelateerde bedrijven
NL Architects
Andere nieuwsberichten
Architect Oliver Thill op 55-jarige leeftijd overleden
Vandaag, 14:27
Afgelopen maandag is op 55-jarige leeftijd architect Oliver Thill overleden. Het door hem en André Kempe opgerichte Atelier Kempe Thill behoort tot de meest gewaardeerde Nederlandse architectenbureaus van de afgelopen 25 jaar.
HvdHA ontwerpt twee woonblokken in Utrecht Terwijde volgens typologie van woonpalazzo
Vandaag, 10:49
In Utrecht Terwijde worden twee woonblokken met 161 sociale huurwoningen naar ontwerp van Hans van der Heijden Architecten gerealiseerd. De gebouwen worden ontworpen volgens de typologie van een ‘woonpalazzo’.
Sweco neemt Belgische activiteiten Conix RDBM Architects over
Gisteren, 16:31
Sweco voegt opnieuw een grote vis toe aan zijn vijver van overgenomen architectenbureaus. Vanaf 30 april zet Conix RDBM Architects zijn Belgische activiteiten voort onder de naam Sweco Architects.
VAi schijnt licht op feministische vrouwenwerkgroep uit de jaren tachtig
Gisteren, 15:47
In de jaren 1980 ging de Vlaamse Werkgroep Vrouwen en Wonen de strijd aan met het heersende patriarchale woon- en maatschappijmodel. Het Vlaams Architectuurinstituut organiseert een tentoonstelling over deze wegbereiders en hun boodschap.
Hardt Hyperloop failliet verklaard door rechtbank
Vandaag, 11:37
Het Rotterdamse bedrijf was bezig met de ontwikkeling van technologie om mensen op hoge snelheid via capsules door een vacuümbuis te vervoeren.
Onderzoek: zeespiegel kustgebieden hoger dan in studies aangenomen
Vandaag, 09:13
De zeespiegel aan de kust is in grote delen van de wereld waarschijnlijk hoger dan in veel wetenschappelijke studies wordt aangenomen.
Gelderland geeft voorrang aan vergunningen met minder stikstof
Gisteren, 12:24
De plannen zijn onderdeel van het pakket maatregelen dat het Gelderse bestuur wil nemen om de vergunningverlening voor zaken als de woningbouw weer op gang te krijgen.
Amsterdam bouwde opnieuw minder woningen dan de bedoeling is
Gisteren, 10:56
Wethouder Steven van Weyenberg spreekt van een ‘sprong in de aantallen’, omdat er in 2025 beduidend meer huizen bijkwamen dan de jaren daarvoor.
Rijksvastgoedbedrijf zet eerste deelgebied nieuwe wijk Valkenhorst in Katwijk te koop
3 maart, 3:26
Op deze locatie mogen de eerste 450 van de in totaal 5.600 woningen worden gebouwd.
Verkoopgolf van woningen door investeerders zet door
2 maart, 2:57
Investeerders hebben in het vierde kwartaal van vorig jaar de meeste woningen verkocht sinds 2021, meldt het Kadaster.
Ga naar het nieuws-archief
Ronnie Weessies
Redacteur
0
0
0
0
Voor een optimale gebruikservaring plaatst Architectenweb functionele cookies. Wat de verschillende cookies precies doen leggen we uit in een
overzicht
. Cookies van social media kun je optioneel
aanzetten
.
Akkoord
Instellingen
Annuleren
OK
Sluiten
Doorgaan
Inloggen
Maak een gratis persoonlijk account aan
Feedback
Feedback
Wij horen graag jouw feedback. Laat je reactie achter en eventueel jouw e-mail adres.
Reactie
Verstuur