Projecten
Producten
Bedrijven
Vacatures
Agenda
Awards
Podcasts
more_horiz
Videos
Magazine
Thema's
Favorieten
Profiel
Uitloggen
Abonneer je nu op onze nieuwsbrieven!
Abonneren
Nee, bedankt
Ja, denk met me mee rond de
materialisering van mijn project
Copyright: NL Architects
Copyright: NL Architects
Copyright: NL Architects
Copyright: NL Architects
Copyright: NL Architects
Copyright: NL Architects
Copyright: NL Architects
Copyright: NL Architects
Copyright: NL Architects
Copyright: NL Architects
Copyright: NL Architects
Copyright: NL Architects
Copyright: NL Architects
Copyright: NL Architects
Copyright: NL Architects
Copyright: NL Architects
Copyright: NL Architects
Copyright: NL Architects
Copyright: NL Architects
Copyright: NL Architects
Copyright: NL Architects
De Tafelberg in Amsterdam-Zuidoost wordt wooncomplex voor 290 jongeren
10 mei 2023, 17:35
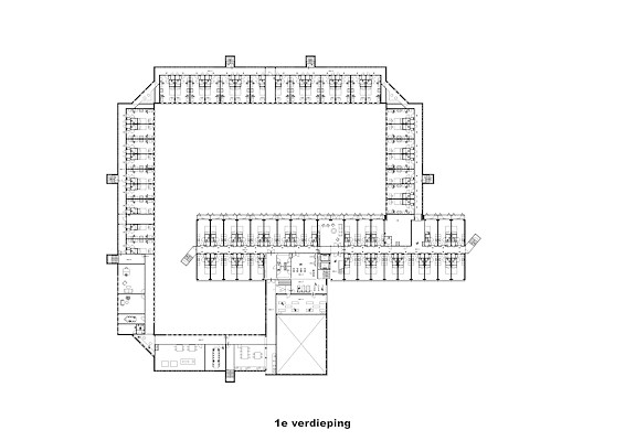
Het voormalige gebouw van De Koppeling, een behandelcentrum voor JeugszorgPlus in Amsterdam-Zuidoost, wordt getransformeerd naar een woongemeenschap voor starters. Het project De Tafelberg Campus voorziet in 290 woningen en maatschappelijke voorzieningen. NL Architects maakt het ontwerp voor de transformatie.
De Koppeling was een gesloten behandelcentrum waar jongeren verbleven met ernstige gedragsproblemen. De instelling sloot in 2019 de deuren van het complex, omdat ze de grootschaligheid niet meer gepast vond en de jongeren vervolgens in kleinere groepen onderbracht.
Een deel van het voormalige behandelcentrum wordt nu gesloopt, een ander deel getransformeerd naar 58 woningen voor starters en 2.000 m2 maatschappelijke voorzieningen. Hieraan wordt een blok van zeven woonlagen met 232 wooneenheden toegevoegd. De nieuwbouw wordt gerealiseerd met een modulair concept van Daiwa House.
De Tafelberg Campus gaat huisvesting bieden aan studenten, jonge werkenden en jongeren met een achtergrond in de jeugdzorg. De transformatie van het complex past in de herbestemming van het gebied, dat nu nog wordt gedomineerd door kantoren, maar een levendige stadswijk moet worden.
Volgens de globale planning start de bouw van De Tafelberg Campus in het derde kwartaal van 2023 en volgt de oplevering in het derde kwartaal van 2024.
Naast NL Architects en Daiwa House zijn de betrokken partijen in het project: Levvel, de Alliantie Ontwikkeling, Prospect Eleven, Garage2020, EarthY en VORM.
Trefwoorden
transformatie
daiwa house modular europe
de koppeling
woningbouw
vorm
amsterdam-zuidoost
modulair bouwen
amstel iii
amsterdam
starterswoningen
nl architects
jongerenhuisvesting
studentenhuisvesting
Locatie
Best gelezen
1
Een verbod op eengezinswoningen
dinsdag, 24 maart
2
PSV presenteert plannen voor uitbreiding Philips Stadion
vrijdag, 20 maart
3
Architectenweb symposium: ontwerpen van autovrije buurten
woensdag, 25 maart
4
Uitbreiding van New Museum door OMA officieel geopend
maandag, 23 maart
5
Studioninedots ontwerpt zelfbouwwoning als landschap van gestapelde doosjes
woensdag, 25 maart
Gerelateerde nieuwsberichten
Team Ballast Nedam Development wint tender eerste woningbouw Strandeiland
1 februari 2023
Amsterdam bouwt woonwijk van hout aan rand Nelson Mandelapark
6 juli 2023
Team met NL Architects en JDS Architects presenteert ontwerp nieuwe huisvesting Europees Parlement
16 november 2022
Plannen voor ruim 20.000 studentenkamers
16 augustus 2023
Verbouwing en uitbreiding ABN AMRO-kantoor Amsterdam Zuidoost gestart
11 september 2023
Voormalige jeugdgevangenis in Amsterdam getransformeerd en uitgebreid tot woongebouw
17 december 2025
Woningbouw Jan Snel verder als Daiwa House Modular Europe
25 oktober 2021
NL Architects wint prijsvraag tijdelijk opera- en balletgebouw Stuttgart
22 juni 2023
Team van VORM wint competitie voor groene woonbuurt in Nieuwkoop
11 juli 2023
NL Architects wint eerste prijs bij IBA'27-prijsvraag Stuttgart
9 juni 2022
NGA architecten wint selectie eerste zelfbouwkavel Amsterdam-Zuidoost
21 september 2023
Overeenkomst voor 380 studentenwoningen in Rotterdamse wijk De Esch
3 april 2024
Daiwa House opent fabriek waar modules van de lopende band komen
21 mei 2024
NL Architects, Bureau B+B en Christoph Wassmann winnen prijsvraag Sunken City
25 mei 2022
Amare – een gestapelde wereld vol cultuur
4 april 2022
Vertical – woontoren met beplanting en woontoren met nestgelegenheid
17 maart 2025
Japanse marktleider modulair bouwen neemt meerderheidsbelang in Jan Snel
5 januari 2021
Monumentaal wonen op voormalig zorglandgoed De Klokkenberg
29 augustus 2023
Een vernieuwd centrumgebied voor Overvecht start met DeBuurt
20 december 2021
Uitreiking Dutch Daylight Award 2020/21 op de langste dag
7 juni 2021
Forum Groningen is Publiek gebouw van het Jaar 2020
28 oktober 2020
Amsterdamse wijk Holendrecht ondergaat grote vernieuwing
14 juni 2024
Afsprakenbrief getekend voor ontwikkeling multifunctioneel complex ArenaPoort West
30 april 2024
Bouwvergunning voor woon- en gemeenschapsgebouw in Amsterdam-Zuidoost
4 juli 2024
BurtonHamfelt verzorgt aanpassing en uitbreiding van modulair schoolgebouw
15 april 2024
Team Ballast Nedam Development wint tender eerste woningbouw Strandeiland
1 februari 2023
Amsterdam bouwt woonwijk van hout aan rand Nelson Mandelapark
6 juli 2023
Team met NL Architects en JDS Architects presenteert ontwerp nieuwe huisvesting Europees Parlement
16 november 2022
Plannen voor ruim 20.000 studentenkamers
16 augustus 2023
Verbouwing en uitbreiding ABN AMRO-kantoor Amsterdam Zuidoost gestart
11 september 2023
Voormalige jeugdgevangenis in Amsterdam getransformeerd en uitgebreid tot woongebouw
17 december 2025
Woningbouw Jan Snel verder als Daiwa House Modular Europe
25 oktober 2021
NL Architects wint prijsvraag tijdelijk opera- en balletgebouw Stuttgart
22 juni 2023
Team van VORM wint competitie voor groene woonbuurt in Nieuwkoop
11 juli 2023
NL Architects wint eerste prijs bij IBA'27-prijsvraag Stuttgart
9 juni 2022
NGA architecten wint selectie eerste zelfbouwkavel Amsterdam-Zuidoost
21 september 2023
Overeenkomst voor 380 studentenwoningen in Rotterdamse wijk De Esch
3 april 2024
Daiwa House opent fabriek waar modules van de lopende band komen
21 mei 2024
NL Architects, Bureau B+B en Christoph Wassmann winnen prijsvraag Sunken City
25 mei 2022
Amare – een gestapelde wereld vol cultuur
4 april 2022
Vertical – woontoren met beplanting en woontoren met nestgelegenheid
17 maart 2025
Japanse marktleider modulair bouwen neemt meerderheidsbelang in Jan Snel
5 januari 2021
Monumentaal wonen op voormalig zorglandgoed De Klokkenberg
29 augustus 2023
Een vernieuwd centrumgebied voor Overvecht start met DeBuurt
20 december 2021
Uitreiking Dutch Daylight Award 2020/21 op de langste dag
7 juni 2021
Forum Groningen is Publiek gebouw van het Jaar 2020
28 oktober 2020
Amsterdamse wijk Holendrecht ondergaat grote vernieuwing
14 juni 2024
Afsprakenbrief getekend voor ontwikkeling multifunctioneel complex ArenaPoort West
30 april 2024
Bouwvergunning voor woon- en gemeenschapsgebouw in Amsterdam-Zuidoost
4 juli 2024
BurtonHamfelt verzorgt aanpassing en uitbreiding van modulair schoolgebouw
15 april 2024
Toon alles
Gerelateerde podcasts
Toren van Babel
Gesprek met Stephan Sliepenbeek over hoogbouw in Amstel III
18 september 2025
Andere nieuwsberichten
Amsterdam wil hiphopcentrum realiseren in stadseel Zuidoost
2 uur geleden
De komst van deze 3.500 vierkante meter omvattende voorziening maakt deel uit van de herontwikkeling van winkelcentrum Amsterdamse Poort.
Menselijk contact, licht en lucht staan centraal bij appartementencomplex van SO-IL
Gisteren, 14:47
In samenwerking met projectontwikkelaar Tankhouse ontwierp SO-IL in New York een hoekgebouw dat reageert op het heersende woonparadigma in New York.
Inschrijving voor Dutch Daylight Award 2026 geopend
Gisteren, 13:57
Net als de vorige keer worden er prijzen uitgereikt in de categorieën groter dan duizend vierkante meter en gebouwen kleiner dan de genoemde maat. Ook is er voor de tweede keer een speciale Student Daylight Award.
Boek Timbercraft belicht wortels Oost-Aziatische houtbouwkunst
Gisteren, 11:23
In een tijd waarin houtbouw weer de richting van de architectuur lijkt te bepalen, werpt het boek Timbercraft zijn licht op de wortels ervan. Althans, op die van de traditionele Oost-Aziatische bouwkunst.
‘Transformatie en optoppen levert tienduizenden woningen en klimaatwinst op’
1 uur geleden
Woningbouw vergt veel grondstoffen en veroorzaakt daarmee veel CO2-uitstoot en de Wetenschappelijke Klimaatraad ziet veel mogelijkheden om het anders aan te pakken.
Zeeuwse Staten willen inspraak inwoners op groeiplan provincie
4 uur geleden
Meerdere Statenfracties in de provincie Zeeland hebben opgeroepen de inwoners op een goede wijze te betrekken bij het uitwerken van de strategische agenda 2050.
Minister: meer geld nodig voor Warmtefonds voor duurzamere woning
Gisteren, 12:29
Boekholt gaat de komende tijd op zoek naar geld, zei ze in een debat met de Tweede Kamer.
Kadaster: nieuwbouwappartementen in trek bij oudere kopers
Gisteren, 09:35
Als zij verhuisplannen hebben, willen ze vaker een nieuwbouwhuis dan andere leeftijdsgroepen en zijn ze vaker bereid verder weg te gaan dan jongere kopers.
SER adviseert kabinet: wees standvastig in verduurzamingsbeleid
25 maart, 11:03
Nu is het volgens het adviesorgaan nog te afhankelijk van de koers van een kabinet en weten mensen niet waar ze aan toe zijn.
Omzet Ballast Nedam gestegen, ook orderboek groeit
24 maart, 1:20
Volgens Ballast Nedam klom de omzet naar meer dan 1,6 miljard euro, van ruim 1,2 miljard euro een jaar eerder.
Ga naar het nieuws-archief
Robert Muis
Redacteur
0
0
0
0
Voor een optimale gebruikservaring plaatst Architectenweb functionele cookies. Wat de verschillende cookies precies doen leggen we uit in een
overzicht
. Cookies van social media kun je optioneel
aanzetten
.
Akkoord
Instellingen
Annuleren
OK
Sluiten
Doorgaan
Inloggen
Maak een gratis persoonlijk account aan
Feedback
Feedback
Wij horen graag jouw feedback. Laat je reactie achter en eventueel jouw e-mail adres.
Reactie
Verstuur