Abonneer je nu op onze nieuwsbrieven!
Abonneren
Nee, bedankt
Ja, denk met me mee rond de
materialisering van mijn project
Verpleegvleugels
Copyright: Rienks Architects
Verpleegvleugels
Copyright: Rienks Architects
Verpleegvleugels
Copyright: Rienks Architects
Verpleegvleugels
Copyright: Rienks Architects
Verpleegvleugels
Copyright: Rienks Architects
Verpleegvleugels
Copyright: Rienks Architects
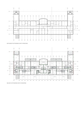
Vrouwenvleugel, plattegrond BG bestaand en nieuw
Copyright: Rienks Architects
Zusterhuis
Copyright: Rienks Architects
Zusterhuis
Copyright: Rienks Architects
Zusterhuis
Copyright: Rienks Architects
Zusterhuis
Copyright: Rienks Architects
Zusterhuis
Copyright: Rienks Architects
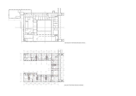
Zusterhuis, plattegrond BG bestaand en nieuw
Copyright: Rienks Architects
Hoofdgebouw
Copyright: Rienks Architects
Hoofdgebouw
Copyright: Rienks Architects
Hoofdgebouw
Copyright: Rienks Architects
Hoofdgebouw
Copyright: Rienks Architects
Hoofdgebouw
Copyright: Rienks Architects
Hoofdgebouw
Copyright: Rienks Architects
Hoofdgebouw
Copyright: Rienks Architects
Hoofdgebouw
Copyright: Rienks Architects
Hoofdgebouw plattegronden bestaand en nieuw eerste verdieping
Copyright: Rienks Architects
Economiegebouw
Copyright: Rienks Architects
Economiegebouw
Copyright: Rienks Architects
Economiegebouw
Copyright: Rienks Architects
Economiegebouw
Copyright: Rienks Architects
Economiegebouw
Copyright: Rienks Architects
Economiegebouw
Copyright: Rienks Architects
Economiegebouw
Copyright: Rienks Architects
Economiegebouw
Copyright: Rienks Architects
Economiegebouw
Copyright: Rienks Architects
Economiegebouw plattegrond BG bestaand en nieuw
Copyright: Rienks Architects
Historische foto
Copyright: Rienks Architects
Historische foto
Copyright: Rienks Architects
Historische foto verpleegvleugel
Copyright: Rienks Architects
Initiatiefplan
Copyright: MTD Landschapsarchitecten
Hoofdconcept
Copyright: Rienks Architects
Principedetails gevelopeningen alle bouwdelen
Copyright: Rienks Architects
Monumentaal wonen op voormalig zorglandgoed De Klokkenberg
De Klokkenberg is in de jaren vijftig van de vorige eeuw gerealiseerd als het grootste en modernste tuberculosesanatorium van Nederland. Het grootschalige ensemble van gebouwen, waarvan de architectuur was beïnvloed door de Delftse School, vervulde die rol tot einde jaren zestig en bood vervolgens nog decennia plaats aan andere zorgfuncties. Na 2006 raakte het complex nagenoeg in onbruik en verloederde. Nu is De Klokkenberg getransformeerd naar ontwerp van Rienks Architects en MTD Landschapsarchitecten tot een open en op het landschap gerichte woonomgeving.
Na de Tweede Wereldoorlog werden overal in de westerse wereld sanatoria gebouwd als gevolg van een hernieuwde tbc-uitbraak. In 1951 werd de eerste steen van De Klokkenberg gelegd; in 1953 arriveerden de eerste patiënten in het complex, gelegen in de groene omgeving van Breda, met uitzicht over het Mastbos en het Markdal.

De Klokkenberg was in die tijd het grootste en modernste tuberculosesanatorium van Nederland. De instelling bood onderdak en zorg aan honderden tbc-patiënten, die er werden verzorgd door de Zusters Franciscanessen. Zoals de meeste sanatoria werd De Klokkenberg gebouwd in opdracht van een kerkelijk instituut; kenmerkend voor het rooms-katholieke karakter van de zorginstelling is de imposante kapel, die centraal op het terrein staat.
Ensemble
De Klokkenberg is een ensemble van samenhangende gebouwen, waaronder de kapel, het hoofdgebouw, de mannenvleugel, de vrouwenvleugel en het zusterhuis. Ook was er voor zowel de mannen als de vrouwen een ‘klassepaviljoen’, waar geestelijken en andere maatschappelijk ‘hooggeplaatste’ patiënten werden verpleegd. De instelling was sterk zelfvoorzienend. Er waren boerderijen en boomgaarden waar eigen groenten en fruit werden verbouwd. Ook beschikte De Klokkenberg over een eigen ketelhuis voor de energievoorziening.

Het geheel is ontworpen als een stedenbouwkundig en artistiek samenhangend geheel, vertelt Rienks Architects. Het ensemble was ontworpen in een samenwerking tussen twee architecten, Kees de Bever en Kees van Moorsel, en de tuinarchitect Jan Bijhouwer. Het ontwerp kent duidelijke invloeden van de Delftse School. De kapel is gezichtsbepalend, waarbij de afwerking sober en streng oogt. Het hoofdgebouw is zwaar en robuust en daardoor extra imponerend. Belangrijk onderdeel van het sanatorium waren de paviljoens: plekken met veel ramen en wanden die volledig open konden. Zonlicht en frisse lucht achtte men belangrijk voor de genezing van de patiënten. De gebouwen kenmerken zich door een symmetrische opzet.
Tot 1968 vervulde het ensemble zijn functie als sanatorium. Toen het aantal tbc-patiënten begon af te nemen, kwamen er andere zorginstellingen, zoals een centrum voor hartchirurgie, een long- en astmakliniek en de Hans Bergerkliniek voor epileptische patiënten. Nadat de Hans Bergerkliniek het ensemble in 2006 als laatste zorginstelling verliet, raakte De Klokkenberg meer en meer in onbruik en werd nog slechts het hoognodige aan onderhoud gedaan.

In 2007 is het ensemble als monument van de wederopbouw en de verzorgingsstaat voorgedragen voor Rijksbescherming en in 2010 kreeg De Klokkenberg de status als rijksmonument. Tussen 2007 en 2017 namen diverse partijen initiatieven tot herbestemming van het immense complex, bijvoorbeeld als woonomgeving voor senioren. Steeds liepen de plannen op niets uit. Pas toen Compagnie Vastgoedontwikkeling in 2017 het complex verwierf en een volstrekt andere invulling aan wilde geven dan eerdere partijen, kwam een daadwerkelijk nieuwe invulling voor het complex in zicht.
Wooncomfort van een landgoed
De plannen van de ontwikkelaar richtten zich op gezinnen, vertelt Rienks Architects. Volgens het architectenbureau gaf dat een totaal andere kijk op de mogelijkheden van het monument en de ingrepen die gewenst waren. In opdracht van Schonck, Schul en Compagnie Vastgoed maakten Rienks Architects en MTD Landschapsarchitecten het ontwerp voor de architectuur en het landschap. De transformatie betreft in totaal zo’n 60.000 m2, aldus de architecten. Het landgoed is in het ontwerp opgevat als verlengstuk van de grondgebonden woningen en bijbehorende tuinen; de bureaus hebben dan ook gestreefd naar een vloeiende overgang tussen de private en publieke buitenruimte, zodat de beleving van het landgoed als totaal behouden is gebleven. Het wooncomfort van De Klokkenberg, aldus de architecten, wordt in belangrijke mate bepaald door het ensemble van de gebouwen, tuinen, boomgaarden, kweekvelden en de vrije natuur.

In het monumentale complex zijn 58 van de 77 woningen grondgebonden en hebben hun voordeur op het maaiveld gekregen. “Dit betekende dat het horizontaal ontsloten complex verticaal moest worden gesplitst”, legt Rienks Architects uit. “De bestaande ontsluiting kwam te vervallen en er moesten overal nieuwe stijgpunten worden geïntroduceerd.” Alleen in het voormalige hoofdgebouw zijn niet-grondgebonden appartementen gerealiseerd, in de vorm van 21 appartementen en penthouses. Elk woning heeft een buitenruimte in de vorm van een terras of balkon. De ingrepen zijn zo goed als onzichtbaar in de bestaande architectuur, zegt het architectenbureau. Alleen de nieuwe openingen in het voormalig trappenhuis en de nieuw toegevoegde balkons zijn duidelijk herkenbare nieuwe elementen.
Naast deze programmatische keuze is de cruciale beslissing gemaakt het complex om te vormen van een naar binnen gerichte instelling naar een op het landschap gerichte en open woonomgeving. Aangezien het complex in fasen zou worden getransformeerd, was een samenhangend ontwerp voor alle ingrepen die op termijn moesten worden gedaan van groot belang. Met het oog daarop ontwikkelden Rienks Architects en MTD Landschapsarchitecten een toolbox voor de totale transformatie; hiermee lag in principe iedere ingreep in het interieur, exterieur en landschap vooraf al vast. “Hierdoor zie je bij de gebouwen die in 2018 gereed zijn gekomen en die uit 2023 dezelfde details, kleurstellingen, et cetera”, aldus de architecten. “Het enig dat is aangepast zijn de energetische en installatietechnische uitgangspunten.”

Een bijzonder onderdeel van de gehele transformatie is het ketelhuis. Dit gebouw is door particulieren gekocht en als een CPO-project uitgevoerd onder begeleiding van Rienks Architects. Uiteindelijk zijn in dit pand vier woningen gerealiseerd.
Voltooiing
In de komende periode, tot en met 2025, worden op het landgoed nog nieuwbouwwoningen en -appartementen toegevoegd. Op de plek waar vroeger de klassepaviljoens lagen, komen nu twee keer zestien ‘zig-zag’-woningen. Hiervoor is de omgevingsvergunning in 2023 verleend. Langs de Galderseweg worden 78 nieuwbouwappartementen gerealiseerd, waarvan de bouw eind 2023 moet beginnen. Voor de invulling van de kapel zijn diverse studies gemaakt, maar daaruit is nog geen keuze gevolgd. Waarschijnlijk wordt ook dit gebouw getransformeerd naar vier woningen.

Gerelateerde nieuwsberichten

Andere nieuwsberichten

'Stuttende' en contrasterende installatie voor Besiendershuis Nijmegen

1 mei, 3:52

Specht architectuur en stedenbouw toont met meergeneratiehofje alledaagse woongemeenschappelijkheid

1 mei, 2:25

Mobiliteitshub van gerecycled tropisch hardhout voor Tholen

1 mei, 11:41

Kleurrijke textielinstallatie van Simone Post voor entreegebied Centraal Museum

1 mei, 9:05

Verzet natuurorganisaties tegen stroomkabel via Schiermonnikoog

1 mei, 4:39

ING: huizenprijzen stijgen dit jaar niet verder door hoger aanbod

1 mei, 1:03

TenneT mag datacenteraansluiting uitstellen om vol stroomnet

1 mei, 10:11

Brabant investeert 1,4 miljoen in waterfilter in Vlaanderen

30 april, 3:51

Rli: klimaat, vervuiling en groei bedreigen beschikbaarheid drinkwater

30 april, 12:20

ABN AMRO: huurwetaanpassingen stoppen uittocht beleggers niet

30 april, 9:04
Robert MuisRedacteur
KUBUS | Specialist in Archicad
SAPA
Reynaers Aluminium Nederland
Jansen
SAB-profiel bv
Aliplast Aluminium Systems
Kingspan Light & Air
ALUCOBOND®
Caparol
Tarkett BV
Kawneer
Grohe Nederland B.V.
Malaysian Timber Council
OCS | Office Cabling Systems
Swisspearl Nederland
Forster Nederland N.V.
VELUX Commercial Benelux B.V.
Sempergreen
Houthandel van Dam
Aluprof Nederland BV
QbiQ Wall Systems
Forbo Flooring
Schüco Nederland
Cedral
Sto Isoned bv
Triflex bv
Gorter Luiken BV
wienerberger
DUCO Ventilation & Sun Control
BEWI IsoBouw
ROCKWOOL B.V.
Mview+
Rockfon (ROCKWOOL B.V.)
Gira Nederland B.V.
Kingspan Geïsoleerde Panelen
GEZE Benelux  B.V.
Renson
Metaglas Groep
ABB | Busch-Jaeger
Jung | Hateha B.V.
Knauf B.V.
Saint-Gobain Glass Benelux
Faay Vianen B.V.
objectflor
Boon Edam Nederland B.V.
Hunter Douglas Architectural
VOLA Nederland BV
Forbo Eurocol Nederland B.V.
EQUITONE gevelpanelen
Holonite B.V.
Kronospan
Tata Steel Colorcoat®
Architectenweb
Over ons
Contact

© 2002 - 2026 Architectenweb BV / Voorwaarden / Privacy / Disclaimer / Sitemap
Annuleren
OK
Sluiten
Doorgaan
Inloggen
Maak een gratis persoonlijk account aan