Projecten
Producten
Bedrijven
Vacatures
Agenda
Awards
Podcasts
more_horiz
Videos
Magazine
Favorieten
Profiel
Uitloggen
Abonneer je nu op onze nieuwsbrieven!
Abonneren
Nee, bedankt
Ja, denk met me mee rond de
materialisering van mijn project
Copyright: Willem Verstraten
Copyright: Willem Verstraten
Copyright: Willem Verstraten
Copyright: Willem Verstraten
Copyright: Willem Verstraten
Copyright: Willem Verstraten
Copyright: Willem Verstraten
Copyright: Willem Verstraten
Copyright: Willem Verstraten
Copyright: Willem Verstraten
Copyright: Willem Verstraten
Copyright: NBArchitecten
Copyright: NBArchitecten
Copyright: NBArchitecten
Gevelfragment
Copyright: NBArchitecten
Verbouwd kantoorpand Breda weerspiegelt identiteit specialist in koelhuizen
27 augustus 2025, 12:23
Aan de rondweg tussen Teteringen en Breda heeft
NBArchitecten
een kantoorpand uit de jaren tachtig verbouw tot nieuw kantoor voor NewCold. Het bedrijf, dat is gespecialiseerd in grootschalige geautomatiseerde koelhuizen, zocht een werkomgeving die meebeweegt met de organisatie. Het gebouw, ooit in gebruik als codeercentrum van de PTT Postbank en later als callcenter voor verschillende telecombedrijven, is nu herbestemd tot een hoogwaardig kantoorpand met aandacht voor flexibiliteit, groei en duurzaamheid.
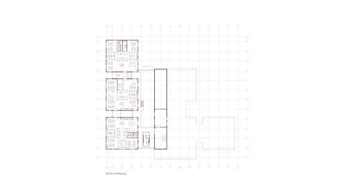
De heldere betonstructuur van het bestaande gebouw, met een stramien van 7,2 bij 7,2 meter, bood een solide basis, meldt NBArchitecten. Het casco is geanalyseerd, op sommige plaatsen vervolmaakt en op sommige plaatsen doorbroken om op die manier een indeling te garanderen die open en aanpasbaar is.
Voor de leesbaarheid en oriëntatie in het kantoorgebouw zijn basisvolumes van ongeveer 22 bij 22 meter opgezet die een alzijdige afwerking hebben gekregen. Het betonnen casco is bewust los van deze volumes geplaatst om daarmee de ruimtelijkheid en open structuur te versterken.
De technische staat van het pand vroeg om een grondige energetische upgrade. De HSB-gevels met hoogwaardige isolatie zijn volledig nieuw en het gebouw voldoet nu aan de actuele eisen op het gebied van energieprestaties.
Ingetogen witte volumes
Tegelijkertijd is deze transformatie benut om de identiteit van NewCold een plek te geven in de architectuur. De ingetogen witte volumes verwijzen naar de abstracte vormen van koelhuizen, het werkterrein van de organisatie. In architectonisch beton zijn grote vlakke platen toegepast, met een zorgvuldig spel van vlakken en lijnen. De maatvoering van de gevelopeningen zijn onderdeel van het vlakken en lijnenspel en zijn afgestemd op het gebruik binnen.
De alzijdige volumes geven ruimte aan de werkplekken, overleg en vergaderruimtes, facilitaire functionaliteit en overige ondersteunende ruimtes. In de volumes kunnen diverse werkplekken worden gepositioneerd, die worden gevoed met strategisch geplaatste vloerpotten. Voor juist gebruik van de werkplek is een divers aanbod aan scheidingselementen voorzien. Hierbij valt te denken aan transparante overlegruimtes, middelhoge scheidingsmuren met hoge werktafels, loungezones voor scrumsessies en belplekken. Dit alles is gerealiseerd volgens een doordacht lay-outschema, afgestemd op de werkmethodiek van de organisatie.
Tussen de volumes bevinden zich transparante zones, zones die ontmoeting en samenkomst stimuleren. Een van deze zones is het royale centrale atrium van 45 bij 12 meter met een hoogte van 7 meter. Dit atrium vormt de centrale as van het kantoor en vormt met de toevoeging van echte bomen een verlengde van de abstracte her-aangelegde tuin.
Werkomgeving met kleur
Het interieur sluit aan bij de zakelijke en ingetogen uitstraling van de hoogwaardige gevelpanelen. Het minimalisme in kleur en materiaalgebruik biedt vele mogelijkheden om door de gebruiker te worden ingekleurd. Het statement luidt dan ook: de gebruiker geeft het gebouw kleur. Er is in iedere ontwerpfase bewust gedacht aan het stelselmatig weglaten in plaats van toevoegen, meldt NBArchitecten.
Een uitzondering vormen de toiletten in ieder volume, die hebben een eigen opvallende kleur gekregen - als helder contrast met de rustige basis. Dit is enerzijds gedaan om de oriëntatie door het gebouw te vergroten en anderzijds maakt deze ingreep zichtbaar dat het gebouw niet alleen draait om structuur en efficiëntie, maar ook ruimte laat voor eigenheid en plezier.
Trefwoorden
breda
verbouwing
kantoorgebouw
nbarchitecten
Locatie
Best gelezen
1
Architect Cees Dam op 93-jarige leeftijd overleden
dinsdag, 14 april
2
Powerhouse Company wint aanbesteding voor verbouwing Vista College Maastricht
dinsdag, 14 april
3
Tien bureaus geselecteerd voor tweede ronde nieuwbouw De Meervaart
woensdag, 15 april
4
Voormalig hoofdkantoor Ferro in M4H verbouwd tot bedrijfsverzamelgebouw
woensdag, 15 april
5
Anterieure overeenkomst voor bouw woontoren The Four in Eindhoven
donderdag, 16 april
Gerelateerde nieuwsberichten
Woongebouwen met PV-gevels opgeleverd in Best
10 juli 2018
Civic Architects: Broedplaats Performing Arts in Breda wordt openbare maakplaats
21 februari 2025
BLAStprijs 2025 toegekend aan Nieuwe Mark
27 november 2025
Het Bachmanhof in Princenhage wint BLAStprijs 2024
28 november 2024
Houten kantoorgebouw voor BDO op bedrijventerrein Breda
28 augustus 2024
Specialistische zorg- en wooncentrum Heilaarstaete in Breda geopend
15 maart 2024
Ensemble van villa's in bosrijke achtertuin van Bredase kantoorvilla
28 februari 2024
Betaalbare stadswoningen op oude ‘Harley-locatie’ in Breda
21 februari 2024
Transformatie hoofdkantoor Suiker Unie tot woongebouw afgerond
3 januari 2024
Woongebouw De Rijp wint BLAStprijs 2023
4 december 2023
Cirkel organiserend element voor vernieuwd AZWI-terrein Haarlem
11 oktober 2023
Monumentaal wonen op voormalig zorglandgoed De Klokkenberg
29 augustus 2023
Woongebouwen met PV-gevels opgeleverd in Best
10 juli 2018
Civic Architects: Broedplaats Performing Arts in Breda wordt openbare maakplaats
21 februari 2025
BLAStprijs 2025 toegekend aan Nieuwe Mark
27 november 2025
Het Bachmanhof in Princenhage wint BLAStprijs 2024
28 november 2024
Houten kantoorgebouw voor BDO op bedrijventerrein Breda
28 augustus 2024
Specialistische zorg- en wooncentrum Heilaarstaete in Breda geopend
15 maart 2024
Ensemble van villa's in bosrijke achtertuin van Bredase kantoorvilla
28 februari 2024
Betaalbare stadswoningen op oude ‘Harley-locatie’ in Breda
21 februari 2024
Transformatie hoofdkantoor Suiker Unie tot woongebouw afgerond
3 januari 2024
Woongebouw De Rijp wint BLAStprijs 2023
4 december 2023
Cirkel organiserend element voor vernieuwd AZWI-terrein Haarlem
11 oktober 2023
Monumentaal wonen op voormalig zorglandgoed De Klokkenberg
29 augustus 2023
Toon alles
Andere nieuwsberichten
OMA gebruikt bestaand gebouw als canvas bij renovatie Edo-Tokyo Museum
17 april, 3:55
Na een renovatie van bijna vier jaar is het Edo-Tokyo Museum in de Japanse hoofdstad Tokio heropend. OMA nam het uit 1993 stammende gebouw, dat is ontworpen door de Metabolist Kiyonori Kikutake, onder handen.
Winnaars verkiezing Beste Bossche Gebouw 2020–2025 bekend
17 april, 2:16
De vakjury en het publiek wezen elk in drie categorieën een winnaar aan. Daarnaast kende vakjury nog een wildcard toe aan een project.
Appartementengebouwen door MIX architectuur vormen sluitstuk Noorderhaven Zutphen
17 april, 12:29
In de nieuwe buurt Noorderhaven in Zutphen zijn drie appartementengebouwen naar ontwerp van MIX architectuur opgeleverd. De gebouwen met in totaal tachtig woningen vormen het sluitstuk van de gebiedsontwikkeling.
EUmies Award naar renovatie congrescentrum in Charleroi en tijdelijke ruimtes Sloveens theater
17 april, 10:54
Donderdag zijn de winnaars van de EUmies Award 2026 bekendgemaakt. De renovatie van het congrescentrum Charleroi Palais des Expositions won in de belangrijkste categorie architectuur.
Woningbouwzaken krijgen langer voorrang bij Raad van State
17 april, 4:49
Om het huizentekort tegen te gaan, blijft de Raad van State woningbouwzaken met voorrang behandelen.
Inspectie positief over verbetering sociale veiligheid TU Delft
17 april, 11:36
De TU Delft heeft aanzienlijke stappen gezet om de sociale veiligheid voor medewerkers te verbeteren.
NVM vreest minder nieuwbouw door veranderende voorrang stroomnet
17 april, 9:23
Bouwers kunnen, door onzekerheid over welke projecten straks nog maatschappelijke prioriteit krijgen in een bepaalde regio, besluiten om minder nieuwe huizen te bouwen.
Architecten voor restauratie en herbestemming Rivièrahal gekozen
16 april, 12:00
Voor de grootscheepse restauratie en herbestemming van de Rivièrahal in de Rotterdamse Diergaarde Blijdorp zijn Mecanoo en BiermanHenket geselecteerd.
Bewoners aardbevingsgebied Groningen blijven kritisch op herstel
16 april, 10:34
Door de complexiteit en onzekerheid van het jarenlange proces ervaren mensen stress en frustratie.
ING: optoppen en splitsen van woningen steeds minder haalbaar
15 april, 1:22
Het kabinet-Jetten gaat naar verwachting het doel van 15.000 extra woningen per jaar uit verbouwingen niet halen, stelt ING.
Ga naar het nieuws-archief
0
0
0
0
Voor een optimale gebruikservaring plaatst Architectenweb functionele cookies. Wat de verschillende cookies precies doen leggen we uit in een
overzicht
. Cookies van social media kun je optioneel
aanzetten
.
Akkoord
Instellingen
Annuleren
OK
Sluiten
Doorgaan
Inloggen
Maak een gratis persoonlijk account aan
Feedback
Feedback
Wij horen graag jouw feedback. Laat je reactie achter en eventueel jouw e-mail adres.
Reactie
Verstuur