Theaterzaal
Copyright: Katja Effting / NOAHH
Amare
Copyright: Ossip van Duivenbode
Amare
Copyright: Ossip van Duivenbode
Tribunetrap
Copyright: Katja Effting / NOAHH
Entreegebied op eerste verdieping
Copyright: Ossip van Duivenbode
Vide
Copyright: Katja Effting / NOAHH
Entreegebied op eerste verdieping
Copyright: Ossip van Duivenbode
Foyer
Copyright: Ossip van Duivenbode
Einde roltrappenhuis
Copyright: Ossip van Duivenbode
Stadskantine
Copyright: Katja Effting / NOAHH
'Wormhole' naar NDT
Copyright: Katja Effting / NOAHH
Theaterzaal
Copyright: Katja Effting / NOAHH
Concertzaal
Copyright: Katja Effting / NOAHH
Concertzaal
Copyright: Katja Effting / NOAHH
Concertzaal
Copyright: NOAHH
Conservatorium Zaal
Copyright: Jan Richard Kikkert
Amare Studio
Copyright: Jan Richard Kikkert
Oefenruimte conservatorium
Copyright: Katja Effting / NOAHH
Aan het Spuiplein
Copyright: Ossip van Duivenbode
Hoofdentree aan Turfmarkt
Copyright: Ossip van Duivenbode
Passage op begane grond
Copyright: Ossip van Duivenbode
Gevelfragment
Copyright: Ossip van Duivenbode
Gevelfragment
Copyright: Jan Richard Kikkert
Aan het Spuiplein
Copyright: Ossip van Duivenbode
Aan het Spuiplein
Copyright: Ossip van Duivenbode
Langsdoorsnede
Copyright: NOAHH
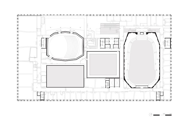
Begane grond
Copyright: NOAHH
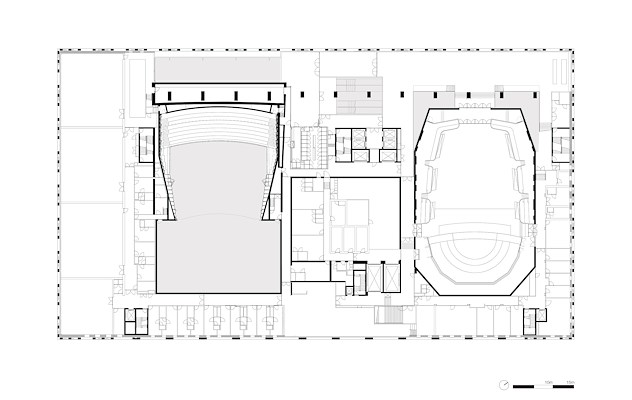
Eerste verdieping
Copyright: NOAHH
Tweede verdieping
Copyright: NOAHH
Derde verdieping
Copyright: NOAHH
Vierde verdieping
Copyright: NOAHH
Zesde verdieping
Copyright: NOAHH
Dwarsdoorsnede DD' over theaterzaal
Copyright: NOAHH
Dwarsdoorsnede BB' over concertzaal
Copyright: NOAHH
Model
Copyright: Katja Effting / NOAHH
Amare – een gestapelde wereld vol cultuur
Een grote theaterzaal, een concert-/popzaal, verschillende kleinere zalen, talloze repetitieruimtes en daar bovenop nog een conservatorium… Amare is een gestapelde wereld vol cultuur. Het gebouw is ontworpen door NOAHH in samenwerking met NL Architects en Jo Coenen Architects & Urbanists. Terwijl in en om het gebouw de laatste onderdelen afgerond werden, kreeg Architectenweb een rondleiding door architect Patrick Fransen van NOAHH.
Bij binnenkomst heb je als bezoeker niet direct een beeld van hoe groot Amare is. Vanaf de hoofdentree aan het nieuwe stadsplein aan de Turfmarkt kun je als bezoeker de roltrap nemen, maar aantrekkelijker is toch de tribunetrap, die direct naar de garderobe leidt, waarboven een gouden zaal zich aankondigt. Smalle vides bieden doorzichten verder naar boven, maar echt een beeld van de wereld erboven krijg je nog niet. Daarvoor moet je verder omhoog het gebouw in.

Na de garderobe op de eerste verdieping ontvouwt zich langs de Turfmarkt de dubbelhoge foyer van de theaterzaal. Aan de foyer presenteert de zaal zich met een houten bekleding, die via spleten in de vloer doorloopt naar de begane grond, waar die zich omkrult om lange banken te vormen. Tegenover de houten zaal biedt de foyer op de eerste verdieping ook een breed uitzicht op de Turfmarkt met daarachter het door architect Richard Meier ontworpen stadhuis. Het uitzicht daarop wordt ingekaderd door de dragende betonnen penanten in de gevel, die zich hier net vertakken.
Op de onderste lagen van Amare liggen de concertzaal en de theaterzaal zij aan zij. Het centrale roltrappenhuis ligt tussen beide zalen in. Dat betekent dat, gezien vanuit de foyer van de theaterzaal, aan de andere zijde van dit roltrappenhuis de foyer voor de concertzaal ligt. Deze ligt ook net wat hoger, op de tweede en derde verdieping, en heeft weer een heel ander karakter dan de foyer van de theaterzaal. De concertzaal heeft een geperforeerde, gouden bekleding gekregen. Een stelsel van stoere, massief stalen trappen bieden toegang tot de zaal en zijn twee balkons. Van de betonnen vertakkingen in de gevel zijn in deze foyer alleen nog de takken te zien.

Ook op de derde verdieping, boven de foyer van de theaterzaal, ligt de stadskantine. Het is een plek die je moet kennen, maar lijkt vanaf de start een doorslaand succes. Het is een plek om wat te eten en te drinken voor de bezoekers aan Amare maar vooral ook voor de vele gebruikers van het gebouw. Het restaurant is opgedeeld met kleurige en verlichte portalen die wel wat weghebben van grote decorstukken.
Nog een roltrap omhoog, op de vierde verdieping, ligt de foyer voor de Conservatoriumzaal. Deze zaal is geconstrueerd in zichtbeton en is losgesneden van het dak van het gebouw, zodat overdag altijd daglicht over het beton valt. Hier eindigt de publieke ruimte in Amare. Voor het conservatorium erboven opent zich een lange vide waarin geen roltrappen, maar reguliere trappen naar boven zigzaggen.

Wanneer je door Amare beweegt, ga je van de ene plek naar de volgende. “Het is echt een ontdekkingsreis”, zo omschrijft architect Patrick Fransen van NOAHH het. “Tegenover het overzicht dat je bijvoorbeeld bij TivoliVredenburg hebt, werkt Amare meer als een kasbah waarin je veel verschillende sferen hebt.” Iedere foyer heeft een ander karakter, zelfs iedere bar is net anders.
Grotere en kleinere zalen
De verschillen die je al in de foyers ervaart, worden in de zalen zelf uitvergroot. “Bij TivoliVredenburg hebben we geleerd dat het interessant is om verschillende zalen ook door verschillende architecten te laten ontwerpen”, geeft Fransen aan. “Want dan krijgen die zalen echt een ander karakter. Van de twee grote zalen in Amare heeft Jo Coenen Architects & Urbanists daarom de concert-/popzaal ontworpen. NOAHH heeft zich gericht op de theaterzaal. Ook heeft NOAHH de kleinere zalen in het gebouw ontworpen.
Theaterzaal
Ter vervanging van de theaterzaal in het Lucent Danstheater naar ontwerp van OMA is in Amare een net wat grotere theaterzaal gerealiseerd. De zaal zelf is bijna even groot gebleven, maar is nu voorzien van een balkon, waardoor de capaciteit gegroeid is van 1000 zitplaatsen naar 1300 zitplaatsen.

Het wat ruwere en eigentijdse karakter van de oude zaal wilde Fransen in de nieuwe zaal een vervolg geven. “Daarom geen clichématige zaal met rode pluche stoelen en een toneellijst, maar gouden stoelen en een zaal die als het ware doorloopt op het podium.” De zwarte zaal is prachtig gelijnd en voorzien van verticale lichtlijnen. De wanden zijn uitgevoerd in MDF en voorzien van kleppen: ingeklapt verstrooien ze met hun reliëf het geluid, uitgeklapt absorberen ze met hun zachte binnenzijden juist het geluid. Richting het podium zijn nog extra grote kleppen toegevoegd om de reflectie van het geluid de zaal in verder te kunnen stellen.

De stoelen in de zaal zijn een verhaal apart. Fransen vond dat je in deze zaal net zo lekker moest kunnen zitten als op de beroemde lounge chair naar ontwerp van Ray en Charles Eames. Daarom zijn de theaterstoelen voorzien van eenzelfde gebogen houten onderzijde en leuning. Dat deze houten afwerking van de stoelen ‘rijmt’ met de houten afwerking van de buitenzijde van de zaal is geen toeval.

Met zijn extra brede podium is de theaterzaal afgestemd op de wensen van het Nederlands Dans Theater (NDT), dat haar thuisbasis heeft in Amare. De twee dansgezelschappen van het NDT verzorgen ieder jaar veel optredens in de zaal. Om die reden wordt de zaal het Danstheater genoemd. Maar de vermaarde dansgezelschappen van het NDT geven optredens over heel de wereld. Mede daarom krijgen ook allerlei andere optredens een plek in deze zaal.
Concertzaal
Ter vervanging van de Dr. Anton Philipszaal ontworpen door Van Mourik Vermeulen Architecten (tegenwoordig: Architecten van Mourik) is in Amare een veel grotere en flexibelere concertzaal ontworpen. In deze zaal worden heel verschillende typen muziek gemaakt. Aan de ene kant wordt er klassieke muziek in al zijn vormen uitgevoerd. Daarvan neemt het Residentie Orkest, dat zijn thuisbasis heeft in Amare, een deel voor zijn rekening. Maar aan de andere kant wordt er, in samenwerking met Het Paard in Den Haag, ook popmuziek geprogrammeerd.

In zijn ontwerp voor het zaalinterieur heeft Jo Coenen met zijn team een goed midden hiertussen gevonden. De dubbele rondlopende balkons geven de zaal een bijna Barokke dynamiek, maar zijn voldoende abstract om samen te gaan met de gefacetteerde wanden en het technische plafond. De materialisering in prefab beton van de balkonranden en de volgt die tussenweg. Dat het beton is valt namelijk niet zo op. Maar in het gebruik is het wel zo handig, want het kan tegen een stootje en zorgt ervoor dat zelfs bij hard geluid er geen resonanties ontstaan.

Om de akoestiek in de concertzaal af te kunnen stemmen op de verschillende optredens, is ieder derde paneel in de wanden instelbaar als geluidsreflecterend of geluidsabsorberend. Achter de gefacetteerde betonnen panelen zijn hiervoor verschuifbare panelen opgenomen met absorberend materiaal. Deze kunnen individueel uitgeschoven worden als dat gewenst is. Zo kan de akoestiek van de zaal heel precies geregeld worden… hier wat meer absorptie, daar wat meer reflectie… De zaal kan zo bij heel verschillende muziek wel steeds optimaal presteren. De panelen met absorberend materiaal zijn voorzien van een gouden perforatie, precies zoals bij de buitenzijde van de zaal. Voor de beste zichtlijnen loopt de vloer van de zaal iets schuin. Wie goed kijkt ziet dat dit bij de balkons ook het geval is. Uiteindelijk kunnen in de concertzaal maximaal 1500 mensen zitten en maximaal 2500 mensen staan.
Conservatoriumzaal
Met een capaciteit van 440 tot 600 zitplaatsen is de zaal van het conservatorium op de vierde verdieping een stuk kleiner dan de theaterzaal en de concertzaal. De zaal heeft een ovale vorm, een smal en rondlopend balkon en heeft een inklapbare tribune. In deze zaal kunnen studenten aan het conservatorium zowel repeteren als optredens geven. Verder is de zaal in het weekend ook als club in te zetten.

De zaal heeft houten wanden met een diep en verticaal reliëf. Daarmee wordt het geluid in de zaal optimaal verstrooid. Tegenover dat reliëf staat een gladde balustrade en gladde plafondlijst, die ook gemaakt zijn van hout, maar de uitstraling van beton hebben. Rondlopende lichtlijnen benadrukken de ovale vorm van de ruimte.
Repetitiezalen
Buiten de genoemde zalen heeft Amare twee zalen die met name bedoeld zijn als repetitieruimte, maar waar ook publiek bij kan zitten. Tussen de theaterzaal en de concertzaal in is op de derde verdieping een kleinere, vierkante zaal gerealiseerd – Amare Studio – waar het Residentie Orkest kan oefenen. De zaal komt het best tot zijn recht als er een ‘half orkest’ oefent. Dat is echter ook de bezetting waarmee het Residentie Orkest bijna al zijn uitvoeringen doet. De zaal heeft een smal balkon dat vanaf de vierde verdieping bereikbaar is.

Een paar verdiepingen lager, op de begane grond, ligt de oefenruimte van de twee dansgezelschappen van het NDT. Deze zaal – NDT Black Box – ligt op het niveau van het podium van de theaterzaal ernaast. Vanaf de eerste verdieping, bij de garderobe bovenaan de tribunetrap, biedt een raam bezoekers een blik op de oefenende dansers.
Meer gericht op de Turfmarkt dan op het Spuiplein
Waar het Lucent Danstheater en de Dr. Anton Philipszaal zich echt op het Spuiplein richtten, daar oriënteert Amare zich nu vooral op de Turfmarkt en dan met name op het nieuwe stadsplein richting het Centraal Station. Daar ligt nu de hoofdentree tot het gebouw. En dat heeft vooral praktische redenen, legt Fransen uit. De verwachting is dat vanaf die zijde de meeste bezoekers en studenten het gebouw benaderen. Die komen van het OV-knooppunt dat het Centraal Station geworden is.

Tegelijkertijd wordt het voorheen stenige Spuiplein de komende jaren getransformeerd tot een groener kunstenplein. Rond een centrale waterpartij komen drie vlakken met groen. De stenen op het plein worden vervangen door grind. Daarbij blijft nog wel ruimte om aan de tribune van het Mercure Hotel kleinere optredens te organiseren, maar die ruimte is wel beperkt. Deze transformatie van het Spuiplein betekent dat Amare er een informelere relatie mee kan hebben, vertelt Fransen. Aan deze zijde heeft Amare nu een brasserie waarin het groen van buiten naar binn
en is doorgetrokken. Verder biedt het gebouw hier momenteel nog niet zoveel.

De entree van Amare aan het Spuiplein leidt bezoekers door een passage met een hele lange bank naar de hoofdentree. De bedoeling is dat aan die passage een ‘markt’ ingericht wordt rond alle culturele activiteiten die in de stad plaatsvinden. Door de tussentijdse sluitingen van Amare vanwege de coronacrisis is deze markt nog niet ingericht.

Een vrolijk element in de passage is de omgekeerde kegel met een balie erin. Het element is ontworpen door Brunn Ontwerp en is een knipoog naar eenzelfde soort volume met balie in het voormalige Lucent Danstheater. Wel jammer dat de balie in zijn materialisering weer afwijkt van de materialisering van de houten bank ernaast. Hoeveel lagen kan een gebouw als dit hebben? Waar vraagt het om meer coördinatie en waar juist niet?

Fransen ziet in ieder geval graag dat de gebruikers het gebouw zich nu echt eigen gaan maken. Hij hoopt dat de samenkomst van de kunsten – die dit gebouw symboliseert – straks overal van het gebouw afstraalt. Een extra laag aan het gebouw waar Fransen zelf nu nog aan werkt is de toevoeging van zeer grafische, zwart-witte streetart door kunstenaarscollectief Bier & Brood. De net afgebroken toneeltoren van het voormalige Lucent Danstheater was voorzien van hun kunst. Als het aan Fransen ligt, worden de foyers op de verdiepingen ermee opgesiert, net als Amare Studio. Het gebouw zal er een doorleefder karakter van krijgen.
Herkenbaar als publiek gebouw
Hoewel Amare met z’n bijna 50.000 vierkante meter vloeroppervlakte en zeven bovengrondse lagen een enorm gebouw genoemd kan worden, is het tussen de andere (nieuwe) gebouwen in het Wijnhavenkwartier niet eens zo’n imposante verschijning. De woontorens door MVSA Ar
chitects en Klunder Architects, die er direct naast staan, torenen er letterlijk bovenuit. Ook het stadhuis door Meier Partners is nog iets hoger.

“Door de ‘takken’ in de gevel – die beneden grote openingen creëren en naar boven toe steeds kleinere – onderscheidt Amare zicht van de andere gebouwen en is het direct herkenbaar als publiek gebouw”, vindt Fransen. Bij stadspleinen in het zuiden van Europa zie je wel eens dat een uniforme gevel met colonnade de grote diversiteit aan achterliggende gebouwen samenbindt. Fransen vergelijkt de gevel van Amare graag daarmee: “Maar dan omgekeerd. De gevel omsluit hier geen plein maar een gebouw.”

Binnen de context van Den Haag dringt de vergelijking met een stadspaleis zich ook op. Hun statige gevels geven meestal niet zoveel prijs van de rijkdom binnen, wat bij Amare tot op zekere hoogte ook geldt. Met zijn takkenstructuur maakt de gevel een verwelkomend gebaar naar de stad en geeft het veel prijs van wat er in de plint gebeurd. Maar de foyers en de zalen liggen hoger en daarvan is overdag vanaf de straat niet zoveel te zien. Bij het vallen van de avond verandert dat wel. Dan lichten de foyers op en krijgt iedereen die langskomt een indruk van de vele activiteiten in het gebouw. De betonnen takkenstructuur in de gevel is ontworpen samen met NL Architects. De recht omhoog lopende penanten maken onderdeel uit van de hoofddraagconstructie van het gebouw. De vertakkingen daaruit zijn vooral decoratief en dragen met elkaar de daklijst.
Design Build & Maintain (DBM)
Amare is gebouwd volgens een Design Build & Maintain-contract. Dit betekent dat consortium Cadanz, onder leiding van Boele & Van Eesteren en Visser & Smit Bouw, niet alleen verantwoordelijk is voor het ontwerp en de realisatie van het cultuurgebouw, maar de eerste twintig jaar ook het onderhoud van het gebouw verzorgt. Als hoofdarchitect werkte NOAHH voor dit consortium, in samenwerking dus met Jo Coenen Architects & Urbanists en NL Architects.

Het huidige ontwerp voor Amare volgt op een eerder ontwerp door Neutelings Riedijk Architecten. Dat project werd destijds nog Spuiforum genoemd en werd op traditionele manier ontworpen: de selectie van de architect vond plaats via een ontwerpprijsvraag, vervolgens werd het ontwerp in samenspraak met de opdrachtgever en gebruikers uitgewerkt, en daarna werden bouwers erbij betrokken. Toen het ambitieuze ontwerp van Neutelings Riedijk Architecten richting de uitvoering veel duurder werd dan oorspronkelijk begroot, trok de gemeente Den Haag de stekker eruit. Vervolgens werd het project opnieuw in de markt gezet met DBM-contract. De gemeente zou zo geen risico meer lopen was het idee.

Met het huidige prijskaartje van het gebouw, ruim 220 miljoen euro, kun je je afvragen of het ontwerp van Neutelings Riedijk Architecten in de conjunctuur toen niet ongeveer hetzelfde had gekost. Maar goed, dat is speculeren.

Wel kun je aan Amare aflezen dat aan de DBM-contractvorm wel wat nadelen kleven. Het programma van eisen is van het Spuiforum naar Amare hetzelfde gebleven. Maar architectuur is natuurlijk veel meer dan dat. En dat zie je bijvoorbeeld terug in de manier waarop het gebouw aan de straat staat. Om de kosten te drukken is het gebouw zo compact mogelijk gemaakt. In de zalen en de foyers daaromheen merk je daar weinig van. Maar vooral in de plint en de manier waarop je het gebouw binnenkomt en vervolgens in het gebouw omhoog gaat wel. Daar had het gebouw meer generositeit kunnen gebruiken.

In het DBM-contract was oorspronkelijk ook geen dialoog met de gebruikers meer opgenomen. Bij een eenvoudiger gebouw is dat wellicht niet zo bezwaarlijk, maar bij een complex gebouw als Amare ligt dit anders. Onder druk van de gebruikers heeft de gemeente Den Haag daarom laat in het proces, toen de bouw al was begonnen, alsnog een dialoogronde opgezet. Er zijn toen nog een heel aantal onderdelen in het ontwerp aangepast en verbeterd. Maar op dat moment lag veel in het ontwerp natuurlijk ook al vast. Een eerdere dialoogronde was vast effectiever geweest.

Tenslotte de materialisering. Waar de foyers en zalen echt van hoog niveau zijn, daar zie je toch op onderdelen dat het gebouw eenvoudiger is geworden dan van tevoren gehoopt. Dat begint al bij de niet al te elegant gedetailleerde betonnen takkenstructuur in de gevel. Vervolgens valt bij binnenkomst op dat de gouden bekleding van de concertzaal niet rondom is doorgezet. Waarom niet? Dieper in het gebouw kom je op allerlei plekken aluminium platen op de vloer tegen. Om geluidsoverdracht tussen zalen te voorkomen is het gebouw eigenlijk opgebouwd als vijf losse gebouwen. Die dilataties moeten natuurlijk afgewerkt worden, maar had dat niet strakker gekund? Een ander voorbeeld is de vloer in de concertzaal, die door de gebruikers bedacht was als een beweegbare vloer die zowel vlak als schuin kon staan, maar door de manier waarop dit in het programma van eisen omschreven was, voldeed in de ogen van de bouwers een zaal die vlak begint en vervolgens oploopt ook.
Kruisbestuiving
Veel bezoekers en gebruikers van het gebouw zal het waarschijnlijk niet opvallen. Zij zullen vooral genieten van het feit dat Den Haag nu eindelijk een volwaardige plek heeft gekregen voor dans, theater, klassieke muziek en popmuziek. Met geweldige foyers en prachtig ontworpen zalen.

Voor de instellingen die in Amare hun thuis hebben – het Nederlands Dans Theater (NDT), het Residentie Orkest en het Koninklijk Conservatorium – biedt de gezamenlijke vestiging in Amare ook volop kansen voor onderlinge kruisbestuiving. Het gebouw zit vol met extra deuren waardoor studenten en andere gebruikers eenvoudig mee kunnen kijken bij wat er in de zalen gebeurd, vertelt Fransen trots. Tussen de instellingen lopen ondertussen al allerlei samenwerkingen. Het kan bijna niet anders dan dat het gebouw tot nog veel meer gezamenlijke initiatieven zal leiden. Zullen er straks bijvoorbeeld ook gezamenlijke festivals georganiseerd worden waarbij de verschillende zalen in het gebouw gecombineerd worden? Het gebouw biedt volop mogelijkheden daartoe.

De onderlinge kruisbestuiving wordt aangevuld door de interactie met al die muzikanten, dansers en andere creatieven die zullen optreden in Amare of er gebruik van gaan maken. Daarbij biedt het gebouw ook veel kansen om buiten de zalen initiatieven te ontplooien. De vleugel aan de voet van de traptribune bij de hoofdentree biedt een aanzet daartoe. Zo kan het cultural powerhouse waar Amare tot kan uitgroeien echt de verbinding met de stad leggen, zelfs het nieuwe stadsplein en heringerichte Spuiplein erbij betrekken, en verder richting de Nieuwe Kerk…

Gerelateerde nieuwsberichten

Gerelateerde video's

Gerelateerde bedrijven

Andere nieuwsberichten

Studio for New Realities brengt binnenspel Plaswijckpark onder gevouwen dak

21 november, 2:00

Space&Matter ontwerpt ingetogen houten paviljoen voor BSO in Zeist

21 november, 9:30

MoederscheimMoonen Architects benoemt vijf associates

21 november, 9:00

ECHO Urban Design en RoosRos Architecten winnen tender Machinewerf Vlissingen

20 november, 4:30

Vervoersregio's Rotterdam, Den Haag en Amsterdam willen miljard extra voor OV

21 november, 11:29

Mogelijke proef zelfrijdende pendelbussen tussen station Hoofddorp en Schiphol Trade Park

20 november, 2:15

Fietsflat bij Amsterdam Centraal wordt na 25 jaar gesloopt

20 november, 1:45

Maastricht grootste stijger op lijst van beste steden om te wonen

20 november, 1:15

Minder infraprojecten gaan door na bezuinigingen Prinsjesdag

20 november, 10:40

Om malafide grondspeculatie tegen te gaan, overweegt het kabinet een bedenktijd voor kopers van grond

20 november, 9:00
Michiel van RaaijHoofdredacteur
ATAG Nederland
KUBUS | Specialist in BIM-software
SAPA
Reynaers Aluminium Nederland
Jansen
SAB-profiel bv
Aliplast Aluminium Systems
Kingspan Light & Air
Hagemeister GmbH & Co. KG
ALUCOBOND®
Tarkett BV
Kawneer
Grohe Nederland B.V.
Malaysian Timber Council
OCS | Office Cabling Systems
Swisspearl Nederland
Forster Nederland N.V.
VELUX Commercial Benelux B.V.
Sempergreen
Houthandel van Dam
Aluprof Nederland BV
QbiQ Wall Systems
Forbo Flooring
Schüco Nederland
Cedral
Sto Isoned bv
Triflex bv
Gorter Luiken BV
wienerberger
Knauf Insulation
DUCO Ventilation & Sun Control
BEWI IsoBouw
Mview+
Rockfon (ROCKWOOL B.V.)
Gira Nederland B.V.
Kingspan Geïsoleerde Panelen
GEZE Benelux  B.V.
Renson
Metaglas Groep
ABB | Busch-Jaeger
Jung | Hateha B.V.
Knauf B.V.
Saint-Gobain Glass Benelux
Faay Vianen B.V.
objectflor
Boon Edam Nederland B.V.
Hunter Douglas Architectural
VOLA Nederland BV
Forbo Eurocol Nederland B.V.
EQUITONE gevelpanelen
Holonite B.V.
AXOR + hansgrohe
Tata Steel Colorcoat®
Architectenweb
Over ons
Contact

© 2002 - 2025 Architectenweb BV / Voorwaarden / Privacy / Disclaimer / Sitemap
Annuleren
OK
Sluiten
Doorgaan
Inloggen
Maak een gratis persoonlijk account aan