Abonneer je nu op onze nieuwsbrieven!
Abonneren
Nee, bedankt
Ja, denk met me mee rond de
materialisering van mijn project
De Parade met rechts Theater aan de Parade
Copyright: Ossip van Duivenbode
Theater aan de Parade
Copyright: Ossip van Duivenbode
Café / Restaurant met 'wolkentafels' ontworpen door NOAHH
Copyright: Ossip van Duivenbode
Atrium met links de kleine zaal en rechts de grote zaal
Copyright: Ossip van Duivenbode
Atrium met links de grote zaal en rechts de kleine zaal
Copyright: NOAHH
Artiestenfoyer
Copyright: Ossip van Duivenbode
Garderob
Copyright: Ossip van Duivenbode
Kleine zaal
Copyright: NOAHH
Foyer bij kleine zaal
Copyright: NOAHH
Foyer bij kleine zaal
Copyright: Peter Zwart
Kleine zaal
Copyright: Ossip van Duivenbode
Kleine zaal
Copyright: NOAHH
Grote zaal
Copyright: Ossip van Duivenbode
Grote zaal
Copyright: Ossip van Duivenbode
Grote zaal
Copyright: Ossip van Duivenbode
Grote zaal
Copyright: Ossip van Duivenbode
Grote zaal
Copyright: NOAHH
Grote zaal
Copyright: Ossip van Duivenbode
Grote zaal
Copyright: Ossip van Duivenbode
Atrium met links kleine zaal en rechts grote zaal
Copyright: Ossip van Duivenbode
Theater aan de Parade
Copyright: Ossip van Duivenbode
De Parade met rechtsboven Theater aan de Parade
Copyright: Ossip van Duivenbode
Foyer met zicht op de Parade
Copyright: Ossip van Duivenbode
Foyer met zicht op de Parade
Copyright: NOAHH
Kantoren voor het personeel bovenin in het gebouw
Copyright: Ossip van Duivenbode
Begane grond
Copyright: NOAHH
1e verdieping
Copyright: NOAHH
2e verdieping
Copyright: NOAHH
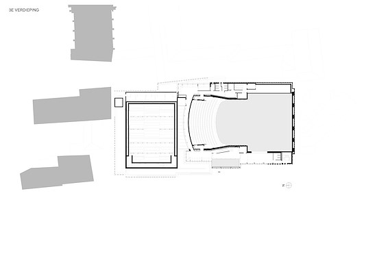
3e verdieping
Copyright: NOAHH
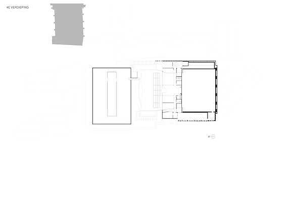
4e verdieping
Copyright: NOAHH
5e verdieping
Copyright: NOAHH
Kelder
Copyright: NOAHH
Doorsnede
Copyright: NOAHH
Situatie
Copyright: NOAHH
Transformer – Theater aan
de Parade in ‘s Hertogenbosch
Een grote en een kleine zaal die op allerlei manieren ingericht kunnen worden, een café/restaurant en verschillende foyers die omgetoverd kunnen worden tot ruimtes voor bijeenkomsten of optredens, vrachtwagens die in het gebouw geschoven kunnen worden of zelfs opgetild… het Theater aan de Parade naar ontwerp van NOAHH is een transformer die zich continu kan aanpassen om zo een grote diversiteit aan activiteiten te kunnen accommoderen.
Naast de reguliere optredens in de grote en kleine zaal worden in Theater aan de Parade door het jaar heen verschillende indoor festivals georganiseerd. Bij die indoor festivals, die meestal meerdere dagen beslaan, wordt het theater als geheel overdag en ‘s avonds geprogrammeerd. Vaak haken die indoor festivals aan op wat er op de Parade gebeurt. Bij Theaterfestival Boulevard, Carnaval, Jazz in Duketown en Opera aan de Parade lopen de activiteiten op de Parade door het gebouw in. In het café/restaurant en de foyers kunnen dan kleinere podia ingericht worden, in de zalen is ruimte voor grotere optredens.

Tegenover de festivals die van buiten naar binnen werken, staan ook zo’n negen festivals per jaar die juist andersom werken, van binnen naar buiten. Het zwaartepunt van bijvoorbeeld het nieuwe Vocalistenfestival ligt in het theater, maar de bijbehorende activiteiten waaieren ook uit over de Parade en verder de stad in.

Een theater is allang geen plek meer waar alleen ‘s avonds in de zalen wat gebeurt. In de nieuwe generatie theaters is er de hele dag van alles te doen. Bij de indoor festivals is de reuring het grootst, maar op andere momenten worden er overdag ook allerlei zakelijke bijeenkomsten georganiseerd, net als vrolijke en educatieve bijeenkomsten voor kinderen, en zelfs activiteiten voor ouderen.
“Iedere keer dat ik er kom zijn de zalen en de foyers weer anders ingericht, voor weer andere activiteiten”, vertelt architect Patrick Fransen van NOAHH. “Dat is ontzettend leuk om te zien, want in het ontwerp van het theater hebben we daar ook op geanticipeerd. Zo zijn alle foyers voorzien van stroompunten om apparatuur op aan te kunnen sluiten en zijn er op strategische plekken ook haken gemaakt om verlichting op te kunnen hangen. Dat geldt trouwens ook voor de plekken voor het laden en lossen.”

Het nieuwe Theater aan de Parade moest ingepast worden in een zeer beperkte bouwenvelop in de oude binnenstad van ‘s Hertogenbosch. “Daarom hebben we ervoor gekozen geen gangen te ontwerpen, maar enkel foyerruimtes, die vervolgens weer aan elkaar gekoppeld zijn. In het theater loop je van de ene foyerruimte naar de andere.” Dit levert een bijzonder prettige ruimtelijkheid op die bij programmering buiten de zalen geweldig werkt. Als bezoeker beweeg je dan eenvoudig van een activiteit in het café/restaurant naar een activiteit in een foyer naar een activiteit in een zaal en omgekeerd.
Open verbindingen
In zijn ontwerp heeft NOAHH de verbindingen tussen ruimtes zo open mogelijk gehouden. Dat begint bij het café/restaurant dat zich met een brede glazen pui opent op het oude plein in de schaduw van de St. Jan. In de zomer is die pui naar het plein zelfs letterlijk open te vouwen. Vervolgens staat het café/restaurant in open verbinding met het smalle atrium dat alle ruimtes in het theater met elkaar verbindt. De trap naar beneden leidt naar een verdiept gelegen foyer en de garderobe, de trap naar boven leidt naar de andere foyers en de zalen. Althans, dat is het basisschema. Want iedere foyer is ook te programmeren en iedere zaal is op allerlei manieren in te richten.

Een van de interessantste en veelzijdigste plekken daarbij is de foyer op -1 die gekoppeld is aan de garderobe. Deze verdiept gelegen foyer is voorzien van donkerbruine, spiegelende wanden en een groot multimediascherm. Overdag kunnen hier bijvoorbeeld filmvoorstellingen gehouden worden en ‘s avonds kan de ruimte omgetoverd worden tot een klein podium waar bijvoorbeeld DJ’s optreden. Het interessante daarbij is dat de foyers die er van boven als het ware op uitkijken bij zo’n optreden dan transformeren tot een soort balkons. “De verschillende foyers vormen dan met elkaar een soort driedimensionaal theater”, vertelt Fransen enthousiast.

De verdiept gelegen foyer is aan de ene zijde gekoppeld aan de garderobe en aan de andere kant aan de artiestenfoyer. Die artiestenfoyer is een wat lagere ruimte die is voorzien van een grid van ronde lampen, peertjes, zoals die vroeger rond de spiegels bij de make-up te vinden waren. Een vouwwand scheidt de artiestenfoyer van de verdiept gelegen foyer. Op gezette momenten kan de artiestenfoyer zodoende bij de feestelijkheden getrokken worden. Het is dan een fascinerende en sfeervolle annex voor de open ruimte ernaast.
Kleine zaal
Een even goede illustratie van de flexibiliteit van het theatergebouw is de kleine zaal op +1. Richting de omliggende foyers hult deze zaal zich in een gouden aluminium huid. Vanaf de trappen omhoog biedt een groot raam alvast een blik op de activiteiten binnen. Vanuit de naastgelegen foyer bieden vier dubbele deuren toegang tot de zaal. Deze dubbele deuren kunnen ook open gezet worden om de kleine zaal en de foyer ernaast als een geheel te laten functioneren.

Binnen is de kleine zaal, die Pleinzaal genoemd wordt, te gebruiken als vlakke vloerzaal maar ook als zaal met tribune. “Je kunt er echt alle kanten mee op”, benadrukt Fransen. De tribune is daarbij een kunststukje op zich. Deze is in vier delen vanuit de wanden neer te zetten en vervolgens uit te vouwen. De zachte stoelen zitten daarbij ingeklapt op de tribunedelen, die hoeven alleen uitgeklapt te worden. Een laatste tribunedeel kan vanuit het plafond naar beneden zakken. In lijn met de gouden buitenzijde van de zaal hebben de stoelen ook een gouden bekleding gekregen.
Het podium zelf bestaat ook weer uit verschillende delen die elk een andere hoogte kunnen krijgen. Zo kan het podium de hoogte van de vloer hebben en dus eigenlijk onzichtbaar zijn, maar kan het podium ook een trap omhoog vormen, of kan het podium als geheel zo hoog zijn dat ervoor wild gedanst kan worden. Alles is mogelijk.

“Vanuit het theater werd in eerste instantie gevraagd om een popzaal”, vertelt Fransen, en de robuuste stalen afwerking van de wanden en het balkon weerspiegelt dat ook. “Maar met de tribune uitgeklapt, met zijn goudkleurige zachte stoelen, is het een heel andere zaal, waar nu ook veel zakelijke bijeenkomsten worden gehouden, en bijvoorbeeld ook voorstellingen voor kinderen.”

De hoeveelheid techniek in het plafond geeft veel popzalen een zeer technische uitstraling. Om die techniek in deze zaal wat te nuanceren heeft NOAHH de lijnvormige verlichting op de wanden doorgezet in het plafond. “Daardoor is de ruimte, die vanwege het bestemmingsplan niet zo hoog mocht worden, toch heel driedimensionaal geworden”, verklaart Fransen.
Grote zaal
Van de verschillende plekken in het theater heeft de grote zaal nog de meest traditionele vorm. In deze zaal is de plek van het publiek grotendeels gefixeerd. Maar toch, ook hier zijn de voorste zeven rijen van de zaal te verwijderen om ruimte te maken voor een orkestbak of om het podium meer de zaal in te trekken. Bij uitvoeringen van klassieke muziek kunnen de weggehaalde stoelen achterop het podium teruggeplaatst worden. “Zo kan ‘en ronde’ gespeeld worden”, legt Fransen uit. “Net als in het Concertgebouw is het ensemble of orkest dan omringd door het publiek.”

Theater aan de Parade vervangt een oud theatergebouw op dezelfde plek. Van de theaterzaal in dat oude gebouw is het betonnen casco hergebruikt in deze nieuwbouw. De maximumcapaciteit van de zaal, van 920 personen, is daarbij ook niet veranderd. Maar alles daaromheen wel. Zo is de grote zaal, net als de kleine zaal, nu uitgevoerd als een doos-in-doos, waardoor er binnen significant meer geluid geproduceerd kan worden zonder voor overlast te zorgen bij de buren.

Andere cruciale verschillen met de oude zaal betreft de vergroting van de toneeltoren, waardoor nu ook grote producties gedraaid kunnen worden, en het ontbreken van een vaste toneellijst, zodat een veel breder toneel beschikbaar is. Op dat bredere toneel kan nu bijvoorbeeld ook opera opgevoerd worden, waar dat voorheen niet kon. Het ontbreken van een vaste toneellijst maakt het nu ook mogelijk om bij uitvoeringen van klassieke muziek de wanden van de zaal visueel door te laten lopen rond het podium. Vanuit de toneeltoren zakken dan wanden naar beneden met dezelfde afwerking als de vaste wanden van de zaal.
Voor de grote zaal heeft NOAHH gekozen voor een afwerking in bamboe in combinatie met een lichte, glanzende stoffering voor de stoelen. De bamboe wandafwerking heeft een perforatie in de vorm van kleine blaadjes, een verwijzing naar de kastanjebomen op de Parade. “Het geluid van het podium wordt via de wanden weer de zaal in gereflecteerd, deze perforaties helpen om het geluid te verstrooien”, licht Fransen toe. De perforaties zijn van achteren aangelicht. In combinatie met de lichte, glanzende stoffering van de stoelen is daarmee een sprankelende zaal ontstaan.

“We wilden een feestelijke zaal ontwerpen en daarbij ver wegblijven van de clichématige rode stoffering”, geeft Fransen aan. “Het vinden van de juiste stof was een behoorlijke zoektocht. Maar de champagnekleur met zijn lichte glans is wat we zochten.” Om vervuiling van de stof door vieze schoenen te voorkomen zijn de achterzijden van de stoelen afgewerkt met bamboe, net
als de onderzijden van de uitklapzittingen. Die bamboe afwerking van de stoelen geeft ze ook een heel eigentijdse uitstraling.

Zoals de kleine zaal een gouden huid en gouden stoelen heeft, zo is de grote zaal binnen het gebouw herkenbaar aan zijn lichtgrijze stucwerk huid en lichte stoelen. In het atrium toont de grote zaal zich met een stapeling van foyers met licht gekromde balustrades waarin het motief van de kastanjeblaadjes terugkomt; de feitelijke buitenwand van de grote zaal ligt in tweede lijn hierachter.

De naam van de grote zaal, Casino Zaal, is een verwijzing naar de oorsprong van het theater. In 1853 richtte Sociëteit Casino aan de Papenhulst in ‘s Hertogenbosch een eerste theater op. Toen het theater in 1934 een Art Deco gebouw aan de Parade betrok, bleef de naam Casino behouden. In 1976 kreeg het theater op dezelfde plek een grotere huisvesting. Uiteindelijk werd in 1994 de naam Casino ingewisseld voor Theater aan de Parade, waarbij de grote zaal voortaan Casino Zaal genoemd werd.
Laden en lossen
In de oude binnenstad van ‘s Hertogenbosch ligt Theater aan de Parade aan drie zijden ingeklemd tussen bestaande bebouwing. “In combinatie met de bijzonder strakke bouwenvelop was dat een enorme uitdaging”, verklaart Fransen. “Het betekent dat werkelijk alles in de gevel aan het plein opgelost moest worden. Dat vroeg voor het laden en lossen om een truc.” Bij de kleine en grote zaal is die truc net iets anders.

Voor de kleine zaal kan een bijna achttien meter lange vrachtwagen achteruit het gebouw in rijden. Op de noordwestelijke hoek van het gebouw kunnen daarvoor overhoeks twee deuren opzij geschoven worden. In het gebouw staat de vrachtwagen vervolgens op een lift die de hele vrachtwagen (!) zo’n zes meter omhoog kan tillen, zodat deze op +1 uitgeladen kan worden. Apparatuur kan vanuit de vrachtwagen direct het podium opgerold worden.

Bij de grote zaal is geen lift maar een enorme ‘lade’ gerealiseerd die uit het gebouw het plein op kan schuiven. Twee achttien meter lange vrachtwagens kunnen op die ‘lade’ parkeren, waarop deze naar binnen kan schuiven. Een achttien meter lange schuifdeur sluit de gevel vervolgens weer af. Fransen: “Dit was de oplossing met de minste impact op de Parade.”

Net zoals het café/restaurant, de foyers en de zalen op allerlei manieren te gebruiken zijn, zo zijn ook de plekken voor het laden & lossen anders te gebruiken. Wanneer er geen vrachtwagens op de ‘lade’ staan kan de schuifdeur daar ook geopend worden om er een podium in te richten. “Je hebt dan een podium direct aan de Parade”, vertelt Fransen enthousiast. “Door extra stekkers kan ook hier eenvoudig apparatuur geïnstalleerd worden.”

Hetzelfde is ook mogelijk met het laden & lossen van de kleine zaal. “Daar is het mogelijk om de lift een meter omhoog te zetten om zo een podium te vormen”, illustreert Fransen.
Geribbelde gevel
Het ontwerp voor de gevel met zijn regelmatige ritme van penanten vergelijkt Fransen met een geribbelde stof. Voor de invulling tussen de penanten heeft NOAHH een toolkit ontwikkeld om tijdens het ontwerpproces flexibel te kunnen reageren op de veranderingen in de indeling van het gebouw. “Gezien vanaf de Parade is de gevel aan zijn uiteinden
behoorlijk gesloten, maar opent deze zich naar het midden toe steeds meer, tot de bakstenen penanten in het midden ook helemaal verdwijnen”, omschrijft Fransen het ontwerp. Het is een soort gradient met in het midden de grootste transparantie.

De grote transparantie van de gevel zorgt ervoor dat vanuit de foyers binnen echt uitgekeken wordt over de Parade. Het theater ervaar je daarom echt als een verlengstuk van de openbare ruimte van de stad. Het gebruikte motief van de kastanjeblaadjes, dat op verschillende plekken in het gebouw terugkomt, onderstreept de verbinding met buiten verder. In een aantal foyers aan het plein is NOAHH zelfs nog een stap verder gegaan door daarin groenwanden op te nemen.

Terug naar de gevel. In zijn ontwerp wilde NOAHH niet het contrast opzoeken met omliggende bebouwing, maar nadrukkelijk de verbinding zoeken. Waar de penanten in een donkerder baksteen uitgevoerd zijn, zijn de delen daartussen in een lichtere baksteen uitgevoerd – precies de kleur van de belendende bebouwing. De penanten eindigen bovenin de gevel in pinakels – een verwijzing naar de pinakels van de verderop gelegen Sint Janskathedraal.

De ontwerpbenadering van NOAHH is geworteld in de moderne beweging. Echt traditioneel wordt het ontwerp dan ook nergens. De penanten worden niet naar beneden steviger, maar juist naar boven toe. Ook vond het bureau het belangrijk dat de kleine zaal en de grote zaal in de gevel afleesbaar zouden zijn. De kleine zaal toont zich aan de stad met een gebold gouden dak, de toneeltoren van de grote zaal toont zich met een gebold lichtgrijs dak.

Gerelateerde nieuwsberichten

Andere nieuwsberichten

OMA gebruikt bestaand gebouw als canvas bij renovatie Edo-Tokyo Museum

17 april, 3:55

Winnaars verkiezing Beste Bossche Gebouw 2020–2025 bekend

17 april, 2:16

Appartementengebouwen door MIX architectuur vormen sluitstuk Noorderhaven Zutphen

17 april, 12:29

EUmies Award naar renovatie congrescentrum in Charleroi en tijdelijke ruimtes Sloveens theater

17 april, 10:54

Woningbouwzaken krijgen langer voorrang bij Raad van State

17 april, 4:49

Inspectie positief over verbetering sociale veiligheid TU Delft

17 april, 11:36

NVM vreest minder nieuwbouw door veranderende voorrang stroomnet

17 april, 9:23

Architecten voor restauratie en herbestemming Rivièrahal gekozen

16 april, 12:00

Bewoners aardbevingsgebied Groningen blijven kritisch op herstel

16 april, 10:34

ING: optoppen en splitsen van woningen steeds minder haalbaar

15 april, 1:22
Michiel van RaaijHoofdredacteur
KUBUS | Specialist in Archicad
SAPA
Reynaers Aluminium Nederland
Jansen
SAB-profiel bv
Aliplast Aluminium Systems
Kingspan Light & Air
ALUCOBOND®
Caparol
Tarkett BV
Kawneer
Grohe Nederland B.V.
Malaysian Timber Council
OCS | Office Cabling Systems
Swisspearl Nederland
Forster Nederland N.V.
VELUX Commercial Benelux B.V.
Sempergreen
Houthandel van Dam
Aluprof Nederland BV
QbiQ Wall Systems
Forbo Flooring
Schüco Nederland
Cedral
Sto Isoned bv
Triflex bv
Gorter Luiken BV
wienerberger
DUCO Ventilation & Sun Control
BEWI IsoBouw
ROCKWOOL B.V.
Mview+
Rockfon (ROCKWOOL B.V.)
Gira Nederland B.V.
Kingspan Geïsoleerde Panelen
GEZE Benelux  B.V.
Renson
Metaglas Groep
ABB | Busch-Jaeger
Jung | Hateha B.V.
Knauf B.V.
Saint-Gobain Glass Benelux
Faay Vianen B.V.
objectflor
Boon Edam Nederland B.V.
Hunter Douglas Architectural
VOLA Nederland BV
Forbo Eurocol Nederland B.V.
EQUITONE gevelpanelen
Holonite B.V.
Kronospan
Tata Steel Colorcoat®
Architectenweb
Over ons
Contact

© 2002 - 2026 Architectenweb BV / Voorwaarden / Privacy / Disclaimer / Sitemap
Annuleren
OK
Sluiten
Doorgaan
Inloggen
Maak een gratis persoonlijk account aan