Projecten
Producten
Bedrijven
Vacatures
Agenda
Awards
Podcasts
more_horiz
Videos
Magazine
Favorieten
Profiel
Uitloggen
Abonneer je nu op onze nieuwsbrieven!
Abonneren
Nee, bedankt
Ja, denk met me mee rond de
materialisering van mijn project
Copyright: Caroline Waltman
Copyright: Meindert Koelink
Copyright: Meindert Koelink
Copyright: Marc Bolsius
Copyright: Meindert Koelink
Copyright: HP Architecten
Copyright: Meindert Koelink
Copyright: Meindert Koelink
Copyright: Meindert Koelink
Copyright: Henri Veraa
Copyright: Caroline Waltman
Copyright: Caroline Waltman
Copyright: Caroline Waltman
Copyright: Caroline Waltman
Ontwerp van HP architecten heelt de hoek van de Bossche Markt
12 augustus 2024, 10:51
Een pand op de hoek van de Markt en de Hinthamerstraat in ‘s-Hertogenbosch stortte in 2016 in. Na het opruimen van het puin bleef er jarenlang een open plek op de hoek van het plein, maar het gat is gedicht. De nieuwbouw is ontworpen door
HP architecten
.
Bureau BouwQ, dat in opdracht van de gemeente Den Bosch de instorting onderzocht, concludeerde dat het weghalen van een scheidingswand in de kelder oorzaak van het ongeluk was. Bij een verbouwing van 24 jaar eerder had de wand onbedoeld een dragende functie gekregen. Dat konden de bouwvakkers in februari 2016 niet weten; de constructie erboven ging schuiven en ’s avonds laat stortte het hele historische pand in.
Twee panden
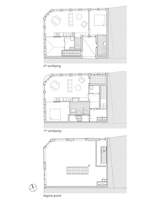
De eigenaresse van het ingestorte pand, Trudie Clingeborg, gaf na een aantal gesprekken en een persoonlijke kennismaking in 2018 de opdracht aan HP architecten om nieuwbouw voor het ontstane gat te ontwerpen. Het nieuwe gebouw diende ruimte te bieden aan een winkel op de begane grond en twee appartementen erboven.
Het oorspronkelijke gebouw bestond uit twee afzonderlijke panden, beide in gebruik bij dezelfde winkelier. De nieuwbouw doet op veel vlakken recht aan de herinnering van het verdwenen gebouw, stelt HP architecten. De nieuwbouw oogt wederom als twee panden, waarbij het gebouwdeel op de hoek ook nadrukkelijk een hoekpand is geworden. Zoals in de oude situatie keert het pand de voorgevel naar de Markt.
Bijzondere materialisatie
HP architecten heeft gezocht naar een zorgvuldige gevelcompositie, die goed past bij de plek en de panden eromheen, legt het bureau uit. Het gebouw voegt zich in de Bossche binnenstad alsof het er al eeuwen staat, terwijl de architecten bij het ontwerp niet dogmatisch naar de geschiedenis van de plek hebben gekeken. In de materialisatie zijn bijvoorbeeld bijzondere keuzes gemaakt.
Naast een baksteen van StoneCycling, gemaakt van gerecyclede bakstenen en toiletpotten, is gekozen voor een vormsteen van Vogelensangh, gebakken in de oudste en enige ringoven die Nederland nog rijk is, vertelt HP architecten. Geanodiseerde aluminium kozijnen zijn toegepast naast zware, gevingerlaste houten kozijnen en minimalistische stalen kozijnen. De kroonlijst bestaat uit houten delen en zachtglanzende groene en grijze keramische elementen.
De kunstenares Christine Jetten maakte speciaal voor dit project meerdere reeksen ambachtelijk geglazuurde stenen en tegels. Jetten maakt geglazuurd keramiek dat wereldwijd in gevels is verwerkt, vertellen de architecten; het was voor het eerst dat keramiek in een gevel werd verwerkt in haar geboortestad. De elementen, waarvan er niet één hetzelfde is, zijn toegepast in de dakranden, rond de ramen en in de plint.
Constructie
De historische kelderbak is behouden en hergebruikt als kelder en tegelijkertijd als fundering. Constructiebureau Van Nunen heeft al vroeg in het ontwerpproces de constructieve mogelijkheden onderzocht. Daarbij bleek dat de oude kelder niet veel gewicht kon gaan dragen. Zowel de constructie als de afbouw zijn daarom in lichte materialen uitgevoerd.
Gekozen is voor een staalconstructie met wanden in houtskeletbouwwanden. De bakstenen zijn in plakken gezaagd en als strips op dampopen isolatiemateriaal aangebracht. Dit betekende een besparing in zowel gewicht als materiaal. In september 2023 opende een nieuwe huurder zijn winkel op de geheelde hoek.
Trefwoorden
winkelpand
den bosch
hp architecten
winkel
gevel
gerecyclede baksteen
stonecycling
's-hertogenbosch
christine jetten
appartement
woningbouw
Locatie
Best gelezen
1
Woontoren Front door Monadnock wint tiende Architectuurprijs Nijmegen
donderdag, 9 april
2
Spoorwegverleden inspireert ontwerp woonblok Wisselspoor 10 in Utrecht
woensdag, 8 april
3
Rotterdam mag woningen gaan bouwen aan de Parkhaven
woensdag, 8 april
4
SeARCH en Heutink Groep winnen tender voor woongebouw Sluisbuurt
vrijdag, 10 april
5
KOW wint met Marker Woods tender voor nieuwe wijk Eschmarkerveld
woensdag, 8 april
Gerelateerde nieuwsberichten
Woonruimte in een voormalig kerkgebouw met optopping
20 maart 2024
Energielab van TU Delft getransformeerd door HP Architecten
8 maart 2023
Flexwonen in een groene omgeving
4 juni 2024
Tijdelijke hotelkamer refereert aan stroschuren in omgeving Veenhuizen
2 augustus 2023
Den Bosch 'pauzeert' aanbesteding voor ontwerp gebiedsontwikkeling Citadelpoort
17 november 2025
Ana Rocha en HP Architecten ontwerpen herbestemming bankgebouw
7 januari 2020
Voids benadert lastig plangebied als aantrekkelijke leefomgeving
20 mei 2025
Keilepand wordt plek voor ontmoeting en kennisdeling
6 november 2019
Gasthuiskwartier Den Bosch nadert voltooiing met bouwstart fase vier
16 april 2024
Campus met onderwijs en woningen in 's Hertogenbosch officieel geopend
7 november 2025
Transformer – Theater aan de Parade in ‘s Hertogenbosch
1 maart 2024
BAi start inschrijving voor Beste Bossche Gebouw 2020 - 2025
12 januari
Bouw woonblok Palazzo in Den Bosch van start gegaan
2 februari 2023
BiermanHenket vult 'gat' in rij historische panden met twee villa's
21 juli 2021
Herontwikkeling Gasthuiskwartier Den Bosch nadert derde fase
13 april 2021
HilberinkBosch voegt prominent woongebouw toe aan Bossche Paleiskwartier
23 november 2020
Herbestemming Bossche Kruithuis naar ontwerp BiermanHenket
14 april 2020
Rotterdam Architectuurprijs 2025 voor Hart van Katendrecht en Milieupark + De HER
6 juni 2025
Nominaties Woongebouw van het Jaar 2024 bekend
4 september 2024
Waag van Schiedam verbouwd tot I-Punt
3 augustus 2016
Nieuwe woningen in stijl Tuinstadwijk Leiden
10 juni 2016
Rotterdam Architectuurprijs voor Eén Blok Stad
20 december 2012
Woonruimte in een voormalig kerkgebouw met optopping
20 maart 2024
Energielab van TU Delft getransformeerd door HP Architecten
8 maart 2023
Flexwonen in een groene omgeving
4 juni 2024
Tijdelijke hotelkamer refereert aan stroschuren in omgeving Veenhuizen
2 augustus 2023
Den Bosch 'pauzeert' aanbesteding voor ontwerp gebiedsontwikkeling Citadelpoort
17 november 2025
Ana Rocha en HP Architecten ontwerpen herbestemming bankgebouw
7 januari 2020
Voids benadert lastig plangebied als aantrekkelijke leefomgeving
20 mei 2025
Keilepand wordt plek voor ontmoeting en kennisdeling
6 november 2019
Gasthuiskwartier Den Bosch nadert voltooiing met bouwstart fase vier
16 april 2024
Campus met onderwijs en woningen in 's Hertogenbosch officieel geopend
7 november 2025
Transformer – Theater aan de Parade in ‘s Hertogenbosch
1 maart 2024
BAi start inschrijving voor Beste Bossche Gebouw 2020 - 2025
12 januari
Bouw woonblok Palazzo in Den Bosch van start gegaan
2 februari 2023
BiermanHenket vult 'gat' in rij historische panden met twee villa's
21 juli 2021
Herontwikkeling Gasthuiskwartier Den Bosch nadert derde fase
13 april 2021
HilberinkBosch voegt prominent woongebouw toe aan Bossche Paleiskwartier
23 november 2020
Herbestemming Bossche Kruithuis naar ontwerp BiermanHenket
14 april 2020
Rotterdam Architectuurprijs 2025 voor Hart van Katendrecht en Milieupark + De HER
6 juni 2025
Nominaties Woongebouw van het Jaar 2024 bekend
4 september 2024
Waag van Schiedam verbouwd tot I-Punt
3 augustus 2016
Nieuwe woningen in stijl Tuinstadwijk Leiden
10 juni 2016
Rotterdam Architectuurprijs voor Eén Blok Stad
20 december 2012
Toon alles
Andere nieuwsberichten
Architect Cees Dam op 93-jarige leeftijd overleden
Gisteren, 14:35
De oprichter van Dam & Partners architecten ontwierp onder meer de Stopera in Amsterdam (samen met Wilhelm Holzbauer), het stadhuis van Almere en het Huis van de Toekomst in Rosmalen.
Powerhouse Company wint aanbesteding voor verbouwing Vista College Maastricht
Gisteren, 12:16
Het onderkomen van de mbo-school wordt gerenoveerd en uitgebreid met een houten gebouwdeel, dat onder meer de nieuwe hoofdentree en twee atria bevat. Ook moet de nieuwbouw de bestaande gebouwen beter met elkaar verbinden.
Stedelijk Museum organiseert tentoonstelling over ontwerper Kho Liang Ie
Gisteren, 10:52
Met zijn ontwerpen voor meubels en interieurs van de jaren vijftig tot zijn dood halverwege de jaren zeventig nam Kho een centrale positie in binnen de Nederlandse vormgeving. Vermaard is onder meer zijn inrichting van luchthaven Schiphol.
Restauratie Atlasbeeld op dak Koninklijk Paleis Amsterdam afgerond
10 april, 3:38
Het beeld op het fronton van het paleis was in juli van zijn plek gehaald voor een uitgebreide onderhoudsbeurt in Antwerpen.
AFM: funderingsproblemen bij bijna 220.000 woningen
Gisteren, 13:25
De huizen van bijna een half miljoen woningeigenaren hebben een hoog risico op funderingsproblemen of een mogelijke kwetsbare fundering.
Oprichter omgevallen vastgoedconcern Evergrande bekent schuld
Gisteren, 09:17
Evergrande was ooit de grootste projectontwikkelaar van China, maar kwam in de problemen toen het zijn schulden niet kon terugbetalen.
Grote en kleine gemeenten balen van bouwregels Zuid-Holland
10 april, 4:31
Grote en kleine gemeenten in Zuid-Holland hebben hun zorgen geuit over nieuwe regels van de provincie, die volgens hen de woningbouw belemmeren.
Twijfels in Zuid-Holland over halen van doelen landelijk gebied
10 april, 12:18
De meeste partijen in de Zuid-Hollandse politiek hebben twijfels over de plannen die in zestien deelgebieden zijn gemaakt voor de aanpak van het landelijk gebied.
Huurprijzen stijgen harder dan koopwoningprijzen
10 april, 9:31
Volgens Huurwoningen.nl en Pararius moesten nieuwe huurders in het eerste kwartaal gemiddeld 21,12 euro per vierkante meter per maand neerleggen.
ABN AMRO: investeringen defensie vergroten druk op bouwcapaciteit
9 april, 12:29
Kazernes, opslagplaatsen en oefenterreinen dingen om dezelfde aannemers, ingenieurs en installateurs die ook nodig zijn voor bijvoorbeeld woningbouw.
Ga naar het nieuws-archief
Robert Muis
Redacteur
1
0
0
0
Voor een optimale gebruikservaring plaatst Architectenweb functionele cookies. Wat de verschillende cookies precies doen leggen we uit in een
overzicht
. Cookies van social media kun je optioneel
aanzetten
.
Akkoord
Instellingen
Annuleren
OK
Sluiten
Doorgaan
Inloggen
Maak een gratis persoonlijk account aan
Feedback
Feedback
Wij horen graag jouw feedback. Laat je reactie achter en eventueel jouw e-mail adres.
Reactie
Verstuur