Projecten
Producten
Bedrijven
Vacatures
Agenda
Awards
Podcasts
more_horiz
Videos
Magazine
Thema's
Favorieten
Profiel
Uitloggen
Abonneer je nu op onze nieuwsbrieven!
Abonneren
Nee, bedankt
Ja, denk met me mee rond de
materialisering van mijn project
Copyright: Thomas Latjes
Copyright: Thomas Latjes
Copyright: Thomas Latjes
Copyright: Thomas Latjes
Copyright: Thomas Latjes
Copyright: Thomas Latjes
Copyright: Thomas Latjes
Copyright: Thomas Latjes
Copyright: Thomas Latjes
Copyright: Thomas Latjes
Copyright: Thomas Latjes
Copyright: Thomas Latjes
Copyright: Thomas Latjes
Copyright: Thomas Latjes
Oude mozaïeken zijn hergebruikt
Copyright: HP Architecten
Historische foto
Copyright: HP Architecten
Copyright: HP Architecten
Copyright: HP Architecten
Woonruimte in een voormalig kerkgebouw met optopping
20 maart 2024, 15:07
De voormalige Fonteinkerk in Voorburg is een groot, markant gebouw uit de wederopbouwperiode, met twee opvallende betonnen torens en een glazen voorgevel. In 2014 raakte het als kerkgebouw buiten gebruik. Naar ontwerp van
HP Architecten
is de kerk getransformeerd tot woongebouw door middel van drie lagen in het gebouw en een optopping van nog eens drie lagen.
In december 1952 begon de gereformeerde kerkenraad een grote financiële actie voor de bouw van een kerk in de wijk West in Voorburg. Architect Gerard Willem van Essen maakte het ontwerp voor een opvallend kerkgebouw, dat werd gerealiseerd aan de Fonteynenburghlaan en in 1958 in gebruik werd genomen.
Karakteristiek monument
De Fonteinkerk bestaat oorspronkelijk uit een hoofdgebouw en een laag bijgebouw. Karakteristiek zijn de twee betonnen pylonen – met in één van die torens een luidklok – aan de voorzijde van het gebouw en de glazen voorgevel. De andere gevels bestaan uit ruw bakstenen metselwerk.
Als gevolg van de krimpende geloofsgemeenschap verloor het gebouw in 2014 zijn functie en besloot de Protestantse Gemeente Voorburg het gebouw te verkopen. Projectontwikkelaars AIVM en Wibaut kochten het kerkgebouw – inmiddels een gemeentelijk monument – met de bedoeling er woningen in te realiseren.
Extra lagen
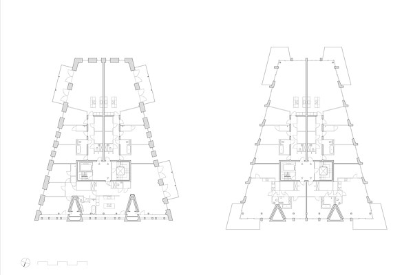
Naar ontwerp van HP Architecten is de voormalige kerk getransformeerd naar woongebouw met negentien appartementen. Daarvan bevinden zich acht appartementen in het oorspronkelijke gebouw en zijn elf woningen in een optopping ondergebracht. Aan de buitenzijde lijken de extra verdiepingen direct op het bestaande gebouw geplaatst; in werkelijkheid is aan de binnenzijde een geheel nieuwe constructie toegevoegd, die de nieuwbouw draagt.
De rigoureuze beslissing om het woningprogramma deels op het bestaande gebouw te plaatsen ontstond na een uitgebreide zoektocht, vertelt HP Architecten. Aanvankelijk voorzag het plan in appartementen in de kerk en een vergelijkbaar aantal woningen in naastgelegen nieuwbouw. Dit programma bleek in combinatie met de gevraagde hoeveelheid parkeerplaatsen nauwelijks op het terrein oplosbaar.
In een participatietraject met omwonenden, en in nauw overleg met partijen als de gemeente Leidschendam-Voorburg, opdrachtgever en monumentencommissie, ontstond het idee voor de optopping. Met deze oplossing kon het terrein rond het gebouw zijn parkachtige opzet behouden, het parkeren op soepele wijze naast het gebouw orden opgelost en konden de volwassen bomen alle gespaard blijven.
Contrast
In de baksteenwanden zijn sleuven gezaagd om de woningen van voldoende daglicht te voorzien. Verder is in het ontwerp bewust gekozen om de stijl van de nieuwbouw een eigen karakter te geven ten opzichte van het bestaande gebouw.
In kleur en toon sluit de drielaagse optopping aan bij het baksteen en beton van de voormalige kerk; in materiaal en textuur biedt de nieuwbouw juist een contrast, leggen de architecten uit. De aluminium gevelpanelen en geanodiseerde kozijnen spelen een gedurende de dag veranderlijk spel met het licht. Dit wordt nog eens versterkt door de kleine hoekverdraaiing in de gevelpanelen en de penanten.
In de woningplattegronden komen de niet-haakse samenkomst van de buitengevels het voelbaarst terug in de woonkamers, vertellen de architecten. De woonkamers zijn steeds gepositioneerd op de hoeken, met uitzicht over Voorburg en Den Haag. Wie op de bovenste verdiepingen over de Vliet kijkt, kan aan de horizon de skyline van Rotterdam zien.
Trefwoorden
optopping
herbestemming kerken
appartementengebouw
gerard willem van essen
hp architecten
voorburg
woningbouw
kerkgebouw
religieus erfgoed
herbestemming
transformatie
Locatie
Best gelezen
1
De Urbanisten schetst perspectief voor vitale en aantrekkelijke Rotterdamse binnenstad
vrijdag, 13 maart
2
Nominaties Amsterdamse Architectuurprijs 2026 bekend
vrijdag, 13 maart
3
Studio Vinke en Loos van Vliet ontwerpen blok met woningen in haven Lelystad
vrijdag, 13 maart
4
Houten Stelthuis van Woonpioniers is aardbevings- en klimaatbestendig
woensdag, 18 maart
5
BureauVanEig verbetert uitstraling Haagse rijtjeswoningen bij verduurzaming
dinsdag, 17 maart
Gerelateerde nieuwsberichten
Bossche School-kerk Heelsum wordt onderkomen van woongemeenschap
23 november 2023
Ontwerp van HP architecten heelt de hoek van de Bossche Markt
12 augustus 2024
Archipelontwerpers plaatst woonblok in een witte aureool
31 augustus 2023
Co-living in een voormalige kerk
31 mei 2022
Woningen in getransformeerde Baumannkerk in gebruik genomen
31 augustus 2022
Praktische handreiking optoppen beschikbaar
4 juni 2024
Dura Vermeer gestart met eigen ‘optopconcept’
3 september 2024
Autonome woonkubussen in voormalige kerk
23 mei 2017
Energielab van TU Delft getransformeerd door HP Architecten
8 maart 2023
Herontwikkeling Gasthuiskwartier Den Bosch nadert derde fase
13 april 2021
Zeeland en bisdom Breda zoeken naar maatwerk bij herbestemming kerken
6 februari
Ana Rocha en HP Architecten ontwerpen herbestemming bankgebouw
7 januari 2020
Powerhouse Company transformeert wederopbouwkerk naar Muziekwerf
19 juli 2023
Nieuw dorpshuis Son en Breugel ondergebracht in voormalige kerk
17 januari 2023
Citystore Arnhem opent in Eusebiuskerk
12 december 2022
Vleermuis lijdt onder sluiting en herbestemming kerken
27 oktober 2022
Sculptuur van Studio Job vormt gevel voor Kunstkerk
4 oktober 2022
Platform31: 170.000 extra woonruimten binnen corporatiewoningen mogelijk
10 december 2024
Hedwig Heinsman toont 3D-geprinte optoppingen tijdens Architectuurbiënnale Venetië
13 mei 2025
DP6 ontwerpt 23 appartementen in Bossche School-kerk Malden
30 september 2022
Plannen voor woningen in Thomaskerk van Duintjer
4 februari 2021
Drie teams werken visie grote stadskerken uit tot schetsontwerp
18 juni 2021
SO-IL transformeert voormalige kerk tot Harlem Artist Studio
13 april 2021
Sporten in een kerkgebouw
29 oktober 2020
Bossche School-kerk Heelsum wordt onderkomen van woongemeenschap
23 november 2023
Ontwerp van HP architecten heelt de hoek van de Bossche Markt
12 augustus 2024
Archipelontwerpers plaatst woonblok in een witte aureool
31 augustus 2023
Co-living in een voormalige kerk
31 mei 2022
Woningen in getransformeerde Baumannkerk in gebruik genomen
31 augustus 2022
Praktische handreiking optoppen beschikbaar
4 juni 2024
Dura Vermeer gestart met eigen ‘optopconcept’
3 september 2024
Autonome woonkubussen in voormalige kerk
23 mei 2017
Energielab van TU Delft getransformeerd door HP Architecten
8 maart 2023
Herontwikkeling Gasthuiskwartier Den Bosch nadert derde fase
13 april 2021
Zeeland en bisdom Breda zoeken naar maatwerk bij herbestemming kerken
6 februari
Ana Rocha en HP Architecten ontwerpen herbestemming bankgebouw
7 januari 2020
Powerhouse Company transformeert wederopbouwkerk naar Muziekwerf
19 juli 2023
Nieuw dorpshuis Son en Breugel ondergebracht in voormalige kerk
17 januari 2023
Citystore Arnhem opent in Eusebiuskerk
12 december 2022
Vleermuis lijdt onder sluiting en herbestemming kerken
27 oktober 2022
Sculptuur van Studio Job vormt gevel voor Kunstkerk
4 oktober 2022
Platform31: 170.000 extra woonruimten binnen corporatiewoningen mogelijk
10 december 2024
Hedwig Heinsman toont 3D-geprinte optoppingen tijdens Architectuurbiënnale Venetië
13 mei 2025
DP6 ontwerpt 23 appartementen in Bossche School-kerk Malden
30 september 2022
Plannen voor woningen in Thomaskerk van Duintjer
4 februari 2021
Drie teams werken visie grote stadskerken uit tot schetsontwerp
18 juni 2021
SO-IL transformeert voormalige kerk tot Harlem Artist Studio
13 april 2021
Sporten in een kerkgebouw
29 oktober 2020
Toon alles
Andere nieuwsberichten
Projecten gezocht voor vijfde Adriaan Dessingprijs
Vandaag, 14:42
De tweejaarlijkse architectuurprijs vestigt de aandacht op bijzondere, gerealiseerde plannen in de Zuid-Hollandse gemeenten Westland en Midden-Delfland. Het kan gaan om nieuwbouw, restauratie of landschappelijke projecten.
Nora Prins en Floor Marree versterken directie ECHO
Vandaag, 12:24
Met de uitbreiding verstevigt ECHO naar eigen zeggen de aansturing van zowel het ontwerpbureau als de adviespraktijk voor gebiedsontwikkeling.
Luxe appartementengebouw naast klooster Etten-Leur door Studio AAAN klaar
Vandaag, 10:50
Bij klooster ’t Withof in Etten-Leur is afgelopen jaar woongebouw De Hoogschout opgeleverd. Het door Studio AAAN ontworpen complex bestaat uit veertig ruime appartementen.
Hogeschool InHolland realiseert nieuw hoofdgebouw op campus Alkmaar
Gisteren, 15:38
Het gebouw, dat is ontworpen door BRTArchitecten, moet een plek worden waar studenten, docenten en andere betrokkenen samenkomen om te leren, onderzoeken en samenwerken. Spil in het ontwerp vormt een doorlopende verbindende ruimte.
Provincie schrapt beoogde locaties windturbines in Groene Hart
Vandaag, 13:35
De provincie had twaalf plekken op het oog, maar dat leidde tot maatschappelijk en politiek verzet.
Staten Utrecht willen netcongestie versneld aanpakken
Vandaag, 09:44
De fracties wezen op de noodzaak van het zo snel mogelijk realiseren van een hoogspanningsstation dat essentieel is voor het opsplitsen van het elektriciteitsnetwerk tussen de Flevopolder, Gelderland en Utrecht.
Rotterdam wil woningbouw versnellen met pilot ‘Ontwikkelaar aan Zet’
Gisteren, 16:33
De gemeente Rotterdam start een pilot waarbij projectontwikkelaars een grotere rol krijgen bij de voorbereiding van woningbouwprojecten.
Veel meer financieringsaanvragen Warmtefonds om hogere gasprijzen
Gisteren, 14:31
De gestegen gasprijzen zorgen ervoor dat veel meer huiseigenaren financiering aanvragen voor het energiezuiniger maken van hun woning.
Grondprijs voor landbouwgrond loopt op tot bijna een ton
Gisteren, 09:36
Ook overheden en andere partijen zoeken naar grond voor onder meer woningbouw, natuur en infrastructuur.
ANWB: betrek bewoners beter bij parkeerplannen in de wijk
17 maart, 2:00
Bewoners vinden naast parkeerruimte groen en leefbaarheid in hun wijk ook belangrijk, stelt de organisatie.
Ga naar het nieuws-archief
Robert Muis
Redacteur
1
0
0
0
Voor een optimale gebruikservaring plaatst Architectenweb functionele cookies. Wat de verschillende cookies precies doen leggen we uit in een
overzicht
. Cookies van social media kun je optioneel
aanzetten
.
Akkoord
Instellingen
Annuleren
OK
Sluiten
Doorgaan
Inloggen
Maak een gratis persoonlijk account aan
Feedback
Feedback
Wij horen graag jouw feedback. Laat je reactie achter en eventueel jouw e-mail adres.
Reactie
Verstuur