Projecten
Producten
Bedrijven
Vacatures
Agenda
Awards
Podcasts
more_horiz
Videos
Magazine
Thema's
Favorieten
Profiel
Uitloggen
Abonneer je nu op onze nieuwsbrieven!
Abonneren
Nee, bedankt
Ja, denk met me mee rond de
materialisering van mijn project
Producten
natuurlijke materialen in het interieur
Copyright: JOUS - Gerard van Beek fotografie
accentuering route uitruk
Copyright: JOUS - Gerard van Beek fotografie
aanzicht vanaf de weg
Copyright: JOUS - Gerard van Beek fotografie
aanzicht vanaf de achterzijde
Copyright: JOUS - Gerard van Beek fotografie
aanzicht vanaf de weg
Copyright: JOUS - Gerard van Beek fotografie
Copyright: JOUS - Gerard van Beek fotografie
wasplaats in gebruik
Copyright: JOUS - Gerard van Beek fotografie
Copyright: JOUS
Copyright: JOUS
Copyright: JOUS
Copyright: JOUS
Copyright: JOUS
Copyright: JOUS
Producttags
AAN
UIT
Nieuwbouw brandweerkazerne VNOG
26 juni 2025
0
0
0
0
De brandweerkazerne in Twello laat zien dat duurzaamheid en karakter hand in hand gaan. Het gebouw combineert een circulaire bouwaanpak met natuurlijke materialen en een sterke landschappelijke inpassing. Het resultaat is een functioneel, toekomstbestendig en beeldbepalend onderkomen voor het brandweerkorps van Twello.
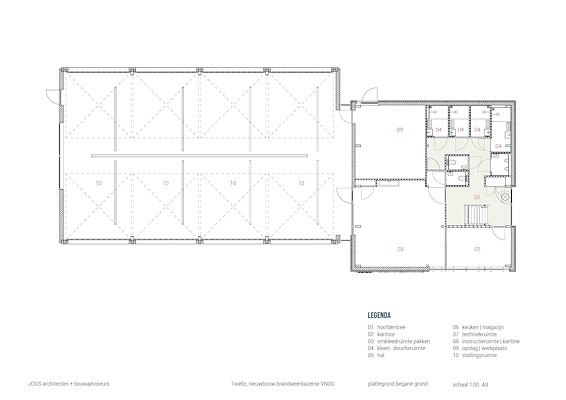
De nieuwe kazerne in Twello is ontworpen als efficiënte doorrijkazerne, met een remise voor vier voertuigen en een compact hoofdgebouw met onder meer kleedruimtes, kantine en instructieruimte. Het ontwerp vertaalt het programma van eisen op een manier die de alledaagse praktijk van het korps optimaal ondersteunt: logisch, overzichtelijk en met korte lijnen. Dankzij het gebruik van circulaire materialen en een slimme indeling is de kazerne niet alleen gebruiksvriendelijk, maar ook onderhoudsarm. De inrichting bevordert het welzijn van het korps door natuurlijke materialen, stoere details en ruimte voor zelfexpressie Buiten biedt een beweeg- en ontspanningstuin ruimte voor fysieke training en mentale rust. De integratie van natuurlijke elementen, zoals een wadi en graskeien, versterkt niet alleen de biodiversiteit maar verhoogt ook de gebruikskwaliteit van het terrein. Zo is een toekomstgerichte werkomgeving ontstaan waarin comfort, veiligheid en duurzaamheid vanzelfsprekend zijn.
Landschappelijke inpassing
Aan de rand van Twello, op een zichtlocatie, staat de kazerne als eigentijdse vertaling van de traditionele zadeldakboerderij. De houten draagconstructie met gelamineerde liggers, zwartbruine houten gevelbekleding en keramische dakpannen sluiten naadloos aan bij de agrarische architectuur van de streek. Het gebouw is zorgvuldig gepositioneerd binnen een groen raamwerk, waarbij openheid en beschutting elkaar afwisselen. De kapoverspanning fungeert als natuurlijke zonwering en versterkt de sculpturale uitstraling van het gebouw. Het contrast tussen stoer metselwerk en warme houtdetails zorgt voor een herkenbaar, uitnodigend beeld dat in het dorp niet onopgemerkt blijft. Binnen wordt deze sfeer doorgezet met natuurlijke materialen, veel daglicht en tactiele afwerkingen, wat bijdraagt aan de belevingswaarde voor de gebruikers én de bezoekers.
Toekomstbestendig
De brandweerkazerne in Twello is circulair ontworpen, met een houten hoofddraagconstructie, houtskeletbouw-gevels met steenstrips en een losmaakbare opbouw. Dit bespaart materiaal en biedt flexibiliteit voor toekomstig hergebruik. De gekozen materialen zijn onderhoudsarm, robuust en grotendeels biobased. Met een BCI-score van 61% – tegenover 29–49% bij vergelijkbare projecten – behoort het gebouw tot de koplopers in circulair bouwen. Terwijl er nog relatief weinig tweedehands materialen zijn toegepast, wat de hergebruikspotentie benadrukt. Het energieconcept is afgestemd op het gebruik: geen overgedimensioneerde installaties, maar een slimme airco-unit en PV-panelen maken het gebouw energie-neutraal. De buitenruimte draagt met waterdoorlatende verharding, vleermuiskasten en een wadi bij aan klimaatadaptatie en biodiversiteit. Ook op sociaal vlak is het duurzaam: de aangename werkomgeving bevordert welzijn en eigenaarschap bij het korps. Zo is Twello klaar voor de toekomst.
Stel jezelf kort voor! Dan weet het betreffende bedrijf wie hun brochure gedownload heeft.
Wil je niet bij elke download jouw gegevens in hoeven voeren?
Klik dan hier om in te loggen
. Heb je nog geen account?
Maak dan hier een gratis account aan
.
Voornaam
Achternaam
E-mailadres
Downloaden
Wanneer je brochures downloadt op Architectenweb.nl worden relevante gegevens van jou – zoals jouw naam en e-mailadres – met het betreffende bedrijf gedeeld. Meer hierover lees je in ons
privacybeleid
.
Wanneer je brochures downloadt op Architectenweb.nl worden relevante gegevens van jou – zoals jouw naam en e-mailadres – met het betreffende bedrijf gedeeld. Meer hierover lees je in ons
privacybeleid
.
Brochure
Stel jezelf kort voor! Dan weet het betreffende bedrijf wie hun model gedownload heeft.
Wil je niet bij elke download jouw gegevens in hoeven voeren?
Klik dan hier om in te loggen
.
Heb je nog geen account?
Maak dan hier een gratis account aan
.
Voornaam
Achternaam
E-mailadres
Downloaden
Wanneer je modellen downloadt op Architectenweb.nl worden relevante gegevens van jou – zoals jouw naam en e-mailadres – met het betreffende bedrijf gedeeld. Meer hierover lees je in ons
privacybeleid
.
Locatie
Trefwoorden
circulair
duurzaam
doelmatig
brandweerkazerne
biobased
JOUS architecten + bouwadviseurs
Neem contact op
Projectdata
Staat van realisatie
Voltooid
Start ontwerpproces
2022
Start bouw
2023
Oplevering
2024
Ingebruikname
2024
Plaats
Twello
Meewerkende partijen
Architect
JOUS architecten + bouwadviseurs
Projectarchitect
Harm Tigchelaar
Opdrachtgever
Gemeente Voorst
Aannemer
dijkhof bouw
Constructeur
Goudstikker - de Vries B.V.
Adviseurs installaties E & W
Schuurmans Installatieadvies B.V.
Fotograaf
Gerard van Beek
Interieurontwerper
JOUS architecten + bouwadviseurs
Landschapsarchitect
JOUS architecten + bouwadviseurs
Gebruiker
VNOG
Projectmanagement
JOUS architecten + bouwadviseurs
Directievoering
JOUS architecten + bouwadviseurs
Leveranciers
Gevelbekleding
InterFaca
Overig
Mosa.
,
Forbo Flooring
Tapijtegels
tarkett
Neem contact op met
JOUS architecten + bouwadviseurs
Je bent momenteel niet ingelogd. Hierdoor is het alleen mogelijk om meer informatie per e-mail op te vragen. Wil je liever gebeld worden of documentatie per post ontvangen?
Klik dan hier om in te loggen
.
Heb je nog geen account?
Maak dan hier een gratis account aan
.
Voornaam
Achternaam
E-mailadres
Opmerkingen
Bij iedere aanvraag worden relevante gegevens van jou gedeeld met het betreffende bedrijf. Meer hierover lees je in ons
privacybeleid
.
Ja, denk met me mee rond de
materialisering van mijn project
Meer projecten van JOUS architecten + bouwadviseurs
Circulaire brandweerkazerne Harlingen
JOUS architecten + bouwadviseurs
Nieuwbouw woonhuis
JOUS architecten + bouwadviseurs
Circulaire brandweerkazerne
JOUS architecten + bouwadviseurs
Circulaire brandweerkazerne Harlingen
JOUS architecten + bouwadviseurs
Nieuwbouw woonhuis
JOUS architecten + bouwadviseurs
Circulaire brandweerkazerne
JOUS architecten + bouwadviseurs
Toon alles
Gerelateerde producten
Novilon Nova Luxe
Unieke luxueuze vinylvloer die niet langer van echt hout en steen te onderscheiden is
Forbo Flooring
Mosa Scenes
Mosa.
Andere Projecten
5Tracks - inspirerende atriums met JUNG
Jung | Hateha B.V.
Totaalrealisatie nieuwe kantoorlocatie A. Vogel
Intermontage B.V.
Sweco Wonderwoods — Duurzame kantoorinrichting
Hal2
Gare Maritime, Brussel
WEBO
De transformatie van de Lintveldebrink
Grohe Nederland B.V.
Sweco WTC Den Haag — Duurzame kantoorinrichting
Hal2
Uitbreiding Hotel Martin's Klooster, Leuven
OWA Benelux - Akoestiek & Design
RVS plinten kantoor Moore DRV
Storax
Nieuwbouw keuken Stark Hoogeveen
KeraStone
Transformatie van meubelzaak naar autobedrijf
Buro De Haan
Sluiseiland Arnhem
Houthandel van Dam
Waterfrontontwikkeling Westboro Beach - Ottawa(CA)
Streetlife B.V.
Ga naar het projecten-overzicht
Voor een optimale gebruikservaring plaatst Architectenweb functionele cookies. Wat de verschillende cookies precies doen leggen we uit in een
overzicht
. Cookies van social media kun je optioneel
aanzetten
.
Akkoord
Instellingen
Annuleren
OK
Sluiten
Doorgaan
Inloggen
Maak een gratis persoonlijk account aan
Feedback
Feedback
Wij horen graag jouw feedback. Laat je reactie achter en eventueel jouw e-mail adres.
Reactie
Verstuur