Projecten
Producten
Bedrijven
Vacatures
Agenda
Awards
Podcasts
more_horiz
Videos
Magazine
Favorieten
Profiel
Uitloggen
Abonneer je nu op onze nieuwsbrieven!
Abonneren
Nee, bedankt
Ja, denk met me mee rond de
materialisering van mijn project
Copyright: Absent Matter
Copyright: Absent Matter
Copyright: Absent Matter
Copyright: Absent Matter
Copyright: Absent Matter
Copyright: Absent Matter
Copyright: Absent Matter
Copyright: Absent Matter
Copyright: Absent Matter
Copyright: Absent Matter
Copyright: Benthem Crouwel Architects
Copyright: Benthem Crouwel Architects
Copyright: Benthem Crouwel Architects
Copyright: Benthem Crouwel Architects
Copyright: Benthem Crouwel Architects
Copyright: Benthem Crouwel Architects
Copyright: Benthem Crouwel Architects
Copyright: Benthem Crouwel Architects
Copyright: Benthem Crouwel Architects
Copyright: Benthem Crouwel Architects
Copyright: Benthem Crouwel Architects
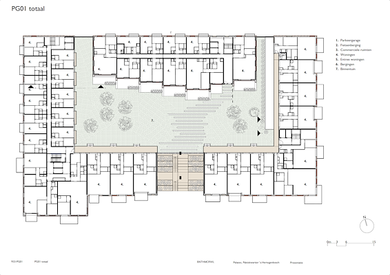
Bouw woonblok Palazzo in Den Bosch van start gegaan
2 februari 2023, 14:41
In het Paleiskwartier in ’s-Hertogenbosch is de bouw van het woonblok Palazzo gestart. Het door
Benthem Crouwel Architects
ontworpen blok bestaat uit vier volumes rond een binnentuin. In het blok aan het Residentieplein komen 233 woningen, laat het bureau donderdag weten.
Palazzo bestaat uit drie geschakelde volumes (inclusief een toren) met een eigen karakter en een losstaand, trapsgewijs opgebouwd volume. In het blok komen verschillende typen woningen, plus winkels en horeca aan de westzijde.
Ter plaatse van de laatstgenoemde functies ligt de plint iets terug, om zo hun onderscheidende karakter binnen het blok te benadrukken. Ook de bovenste verdieping wijkt terug, om de schaal van het blok te verklein en terrassen voor de bewoners te creëren.
Het trapsgewijze ‘noordblok’ wijkt het meest af in vorm en is losgemaakt van de andere volumes, zodat er hier aan drie zijden terrassen grenzend aan de binnentuin ontstaan. Het landschap van de binnentuin loopt via de getrapte zuidzijde van het noordblok tot op de bovenste verdieping. De binnentuin krijgt hierdoor een betere lichtinval en zorgt voor mooi uitzicht vanuit alle omliggende woningen, verklaart Benthem Crouwel.
In het volume aan de zijde van het Residentieplein en de Hofvijver is een grote opening gecreëerd, die vanaf het plein een blik op de binnentuin biedt. De gevel rond deze poort kent een afwijkende materialisatie en vormt zo een ‘krans’ die de opening accentueert.
Kleuren
De kleuren van het woonblok variëren van een dieprode kleur aan de Onderwijsboulevard tot een lichtroze steen aan de Hofvijver. Het noordblok is geheel in een oranje tint uitgevoerd, als contrast met de lichte crèmekleurige geribbelde keramieken platen aan de andere binnentuingevels. Het metselwerk kent veel reliëf door de uitstekende koppen en het willekeurige verband.
De balkons en gevelopeningen lijken willekeurig in de gevel geponst maar zijn gebaseerd op twee type modules, meldt Benthem Crouwel. De ene module heeft een half verdiepte loggia als buitenruimte en de andere module als uitstekend balkon, wat het speelse gevelbeeld moet versterken.
Trefwoorden
woningbouw
benthem crouwel architects
's-hertogenbosch
paleiskwartier
den bosch
Locatie
Best gelezen
1
Woontoren Front door Monadnock wint tiende Architectuurprijs Nijmegen
donderdag, 9 april
2
Architect Cees Dam op 93-jarige leeftijd overleden
dinsdag, 14 april
3
SeARCH en Heutink Groep winnen tender voor woongebouw Sluisbuurt
vrijdag, 10 april
4
Powerhouse Company wint aanbesteding voor verbouwing Vista College Maastricht
dinsdag, 14 april
5
Tien bureaus geselecteerd voor tweede ronde nieuwbouw De Meervaart
woensdag, 15 april
Gerelateerde nieuwsberichten
Campus met onderwijs en woningen in 's Hertogenbosch officieel geopend
7 november 2025
Benthem Crouwel wint prijsvraag voor herontwikkeling deel Praags plein
22 september 2023
Benthem Crouwel Architects en Snøhetta ontwerpen Huis van Cultuur en Bestuur in Delfzijl
3 april 2025
Ontwerp van HP architecten heelt de hoek van de Bossche Markt
12 augustus 2024
Voids benadert lastig plangebied als aantrekkelijke leefomgeving
20 mei 2025
Benthem Crouwel Architects plaatst slotstuk in Paleiskwartier van Den Bosch
13 november 2025
Belgisch-Nederlands team geselecteerd voor ambitieus infrastructuurproject Brussels Airport
26 juni 2025
Officiële opening voor demontabel en flexibel gebouw LAB42
16 september 2022
Publiekruimten in Museum Arnhem voorzien van kenmerkende Modijefsky-mix
15 augustus 2022
Benthem Crouwel Architects ontwerpt woning op hoogste punt van Amersfoort
30 juni 2022
Benthem Crouwel presenteert opgeleverd Museum Arnhem
4 mei 2022
Eerste energieneutrale station van Nederland in gebruik genomen
21 december 2021
Benthem Crouwel ontwerpt gebouwencomplex met groen daklandschap in Praag
25 november 2021
Benthem Crouwel transformeert 17e-eeuws wevershuis tot eigentijdse stadswoning
14 oktober 2021
Team Benthem Crouwel + West 8 ontwerpt nieuw hoofdstation Brno
23 juli 2021
Uitbreiding Equinix Datacenter AM7 opgeleverd
15 juli 2021
Kantoorgebouwen Basisweg Amsterdam herontwikkeld tot District West
15 april 2021
Architecten presenteren geopende Rotterdamsebaan en Victory Boogie Woogietunnel
22 februari 2021
Video: architecten over Rotterdamsebaan en Victory Boogie Woogietunnel
5 februari 2021
Voorbereidingen bouw Vijzelgrachtgarage gestart
26 januari 2021
HilberinkBosch voegt prominent woongebouw toe aan Bossche Paleiskwartier
23 november 2020
Woongebouw ‘Het Hof’ opgeleverd in Den Bosch
15 december 2017
Parkachtige Paleisbrug Den Bosch geopend
13 mei 2015
Campus met onderwijs en woningen in 's Hertogenbosch officieel geopend
7 november 2025
Benthem Crouwel wint prijsvraag voor herontwikkeling deel Praags plein
22 september 2023
Benthem Crouwel Architects en Snøhetta ontwerpen Huis van Cultuur en Bestuur in Delfzijl
3 april 2025
Ontwerp van HP architecten heelt de hoek van de Bossche Markt
12 augustus 2024
Voids benadert lastig plangebied als aantrekkelijke leefomgeving
20 mei 2025
Benthem Crouwel Architects plaatst slotstuk in Paleiskwartier van Den Bosch
13 november 2025
Belgisch-Nederlands team geselecteerd voor ambitieus infrastructuurproject Brussels Airport
26 juni 2025
Officiële opening voor demontabel en flexibel gebouw LAB42
16 september 2022
Publiekruimten in Museum Arnhem voorzien van kenmerkende Modijefsky-mix
15 augustus 2022
Benthem Crouwel Architects ontwerpt woning op hoogste punt van Amersfoort
30 juni 2022
Benthem Crouwel presenteert opgeleverd Museum Arnhem
4 mei 2022
Eerste energieneutrale station van Nederland in gebruik genomen
21 december 2021
Benthem Crouwel ontwerpt gebouwencomplex met groen daklandschap in Praag
25 november 2021
Benthem Crouwel transformeert 17e-eeuws wevershuis tot eigentijdse stadswoning
14 oktober 2021
Team Benthem Crouwel + West 8 ontwerpt nieuw hoofdstation Brno
23 juli 2021
Uitbreiding Equinix Datacenter AM7 opgeleverd
15 juli 2021
Kantoorgebouwen Basisweg Amsterdam herontwikkeld tot District West
15 april 2021
Architecten presenteren geopende Rotterdamsebaan en Victory Boogie Woogietunnel
22 februari 2021
Video: architecten over Rotterdamsebaan en Victory Boogie Woogietunnel
5 februari 2021
Voorbereidingen bouw Vijzelgrachtgarage gestart
26 januari 2021
HilberinkBosch voegt prominent woongebouw toe aan Bossche Paleiskwartier
23 november 2020
Woongebouw ‘Het Hof’ opgeleverd in Den Bosch
15 december 2017
Parkachtige Paleisbrug Den Bosch geopend
13 mei 2015
Toon alles
Gerelateerde podcasts
Gesprek met Annemariken Hilberink en Geert Bosch over gewortelde architectuur
3 februari 2022
Andere nieuwsberichten
Anterieure overeenkomst voor bouw woontoren The Four in Eindhoven
1 uur geleden
Naar verwachting wordt beging volgend jaar gestart met de bouw van woontoren The Four in Eindhoven. De door Mecanoo ontworpen toren op de zogeheten Vierlanderlocatie in Fellenoord bestaat uit 306 woningen.
Jury maakt shortlist Prix de Rome Architectuur 2026 bekend
Vandaag, 09:30
Dérive (Hedwig van der Linden and Kevin Westerveld), Maarten Plomp en Iris van der Wal, Namelok (Wiegert Ambagts en Kaj van Boheemen) en Slodka x Zatta (Izabela Slodka en Federica Zatta) zijn de kanshebbers voor deze editie van de prijs.
Woontoren Front vervult meerdere rollen in Hart van de Waalsprong
Gisteren, 16:31
Vorige week werd de door Monadnock ontworpen woontoren Front onderscheiden met de Architectuurprijs Nijmegen. Het achthoekige gebouw in Lent markeert het centrum van de stadsuitbreiding Hart van de Waalsprong.
Bijzonder erfgoed Fundatie van Renswoude Utrecht gered
Gisteren, 15:29
Hendrick de Keyser Monumenten heeft de Fundatie van Renswoude in Utrecht, een bijzonder goed bewaard ensemble uit de 18e eeuw, verworven. Hiermee blijven gebouw, historisch interieur en collectie als een geheel behouden.
Architecten voor restauratie en herbestemming Rivièrahal gekozen
3 uur geleden
Voor de grootscheepse restauratie en herbestemming van de Rivièrahal in de Rotterdamse Diergaarde Blijdorp zijn Mecanoo en BiermanHenket geselecteerd.
Bewoners aardbevingsgebied Groningen blijven kritisch op herstel
4 uur geleden
Door de complexiteit en onzekerheid van het jarenlange proces ervaren mensen stress en frustratie.
ING: optoppen en splitsen van woningen steeds minder haalbaar
Gisteren, 13:22
Het kabinet-Jetten gaat naar verwachting het doel van 15.000 extra woningen per jaar uit verbouwingen niet halen, stelt ING.
Geen rechtszaak over subsidie ministerie aan Van Gogh Museum
Gisteren, 10:02
De zaak draait om geld dat het museum nodig zegt te hebben voor een renovatie.
AFM: funderingsproblemen bij bijna 220.000 woningen
14 april, 1:25
De huizen van bijna een half miljoen woningeigenaren hebben een hoog risico op funderingsproblemen of een mogelijke kwetsbare fundering.
Oprichter omgevallen vastgoedconcern Evergrande bekent schuld
14 april, 9:17
Evergrande was ooit de grootste projectontwikkelaar van China, maar kwam in de problemen toen het zijn schulden niet kon terugbetalen.
Ga naar het nieuws-archief
Ronnie Weessies
Redacteur
1
0
0
0
Voor een optimale gebruikservaring plaatst Architectenweb functionele cookies. Wat de verschillende cookies precies doen leggen we uit in een
overzicht
. Cookies van social media kun je optioneel
aanzetten
.
Akkoord
Instellingen
Annuleren
OK
Sluiten
Doorgaan
Inloggen
Maak een gratis persoonlijk account aan
Feedback
Feedback
Wij horen graag jouw feedback. Laat je reactie achter en eventueel jouw e-mail adres.
Reactie
Verstuur