Projecten
Producten
Bedrijven
Vacatures
Agenda
Awards
Podcasts
more_horiz
Videos
Magazine
Thema's
Favorieten
Profiel
Uitloggen
Abonneer je nu op onze nieuwsbrieven!
Abonneren
Nee, bedankt
Ja, denk met me mee rond de
materialisering van mijn project
Copyright: Jannes Linders
Copyright: Jannes Linders
Copyright: Jannes Linders
Copyright: Jannes Linders
Copyright: Jannes Linders
Copyright: Jannes Linders
Copyright: Jannes Linders
Copyright: Jannes Linders
Copyright: Jannes Linders
Copyright: Jannes Linders
Copyright: Jannes Linders
Copyright: Jannes Linders
Copyright: Jannes Linders
Copyright: Benthem Crouwel Architects
Copyright: Benthem Crouwel Architects
Copyright: Benthem Crouwel Architects
Copyright: Benthem Crouwel Architects
Copyright: Benthem Crouwel Architects
Uitbreiding Equinix Datacenter AM7 opgeleverd
15 juli 2021, 11:44
Op het bedrijventerrein Amstel III in Amsterdam is een uitbreiding van het Equinix Datacenter AM7 opgeleverd. Het gaat om de tweede fase van een bestaand datacentrum en een nieuw entreegebouw. Royal HaskoningDHV en Benthem Crouwel Architects werkten samen voor het ontwerp van beide bouwdelen en het masterplan voor het gehele terrein.
Het bestaande datacenter en de uitbreiding ervan, beide ontworpen door Royal HaskoningDHV, zijn voorzien van een gevel naar ontwerp van Benthem Crouwel Architects. Het nieuwe entreegebouw is door beide bureaus ontworpen. Oude en nieuwe delen van het datacenter worden verbonden door een corridor die als ruggengraat van AM7 fungeert.
Het datacenter is voorzien van een hoog beveiligde zwart-witte gevel, die bestaat uit geperforeerde, golvende aluminium panelen. Door de afwisseling in het golfpatroon, de kleur en reflectie van de panelen ontstaat er een dynamisch spel van licht en ruimte in het compleet gesloten bouwvolume. De installaties op het dak konden subtiel worden verhuld door de gevel iets te verhogen.
Het lichte entreegebouw, Front of House genoemd, heeft een witte gevel met een subtiele verticale geleding. De gevel is voorzien van grote glasvlakken die de ontvangstruimte van buitenaf zichtbaar maken. Sommige delen van het glas bevatten zeefdrukpatronen die zonlicht dempen en de hoger gelegen kantoren van de nodige privacy voorzien.
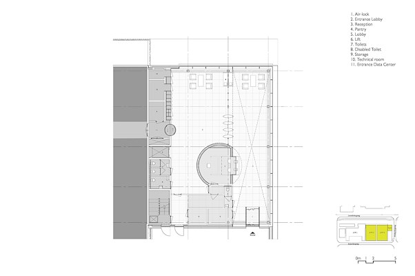
Het drie verdiepingen tellende gebouw, verbonden via trap en lift, sluiten op elke laag aan op het naastgelegen datacenter. De eerste en tweede verdieping bevatten kantoren, vergaderruimtes en ontspanningsruimtes voor klanten. Centraal in de entreehal staat een rode ‘silo’ met daarin de beveiligingslobby en registratiebalie. Alle publieke ruimten in het Front of House zijn rond deze cilindervormige ruimte geplaatst.
Equinix Datacenter AM7 behoort tot de belangrijkste digitale knooppunten van Nederland. Het bedrijventerrein waar AM7 staat wordt de komende jaren herontwikkeld tot een gemengde wijk, waar ook woningen komen. Het datacenter is al geschikt gemaakt voor warmte-uitwisseling met de stad, laten de genoemde bureaus weten.
Trefwoorden
datacenter
amsterdam
royal haskoningdhv
amstel iii
benthem crouwel architects
Locatie
Best gelezen
1
Architectenweb symposium: ontwerpen van autovrije buurten
woensdag, 25 maart
2
MVSA Architects en Powerhouse Company ontwerpen dubbele woontoren bij Den Haag Centraal
maandag, 30 maart
3
Schiphol maakt nieuwe 'huisarchitecten' bekend
donderdag, 26 maart
4
Studioninedots ontwerpt zelfbouwwoning als landschap van gestapelde doosjes
woensdag, 25 maart
5
Mecanoo deelt nieuwe foto's van De Nederlandsche Bank
woensdag, 25 maart
Gerelateerde nieuwsberichten
Benthem Crouwel Architects ontwerpt woning op hoogste punt van Amersfoort
30 juni 2022
Royal HaskoningDHV heet voortaan Haskoning
26 mei 2025
Heijmans bouwt datacenter op onbekende locatie
17 februari 2025
Benthem Crouwel Architects en Snøhetta ontwerpen Huis van Cultuur en Bestuur in Delfzijl
3 april 2025
Eerste woningen in kantoorgebied Amsterdam Bullewijk opgeleverd
3 februari 2023
Bouw woonblok Palazzo in Den Bosch van start gegaan
2 februari 2023
Studio Vinke ontwerpt woongebouw met broedplaats in Amstel III
26 juli 2022
Overeenkomst getekend voor woningbouwproject BRISK in Amstel III
24 maart 2022
Royal HaskoningDHV rekent op meer werk door energietransitie
24 maart 2022
Expositie in Arcam over ruimtelijke manifestatie van technologie
3 maart 2022
Benthem Crouwel ontwerpt gebouwencomplex met groen daklandschap in Praag
25 november 2021
Benthem Crouwel transformeert 17e-eeuws wevershuis tot eigentijdse stadswoning
14 oktober 2021
Team Benthem Crouwel + West 8 ontwerpt nieuw hoofdstation Brno
23 juli 2021
Benthem Crouwel Architects ontwerpt woning op hoogste punt van Amersfoort
30 juni 2022
Royal HaskoningDHV heet voortaan Haskoning
26 mei 2025
Heijmans bouwt datacenter op onbekende locatie
17 februari 2025
Benthem Crouwel Architects en Snøhetta ontwerpen Huis van Cultuur en Bestuur in Delfzijl
3 april 2025
Eerste woningen in kantoorgebied Amsterdam Bullewijk opgeleverd
3 februari 2023
Bouw woonblok Palazzo in Den Bosch van start gegaan
2 februari 2023
Studio Vinke ontwerpt woongebouw met broedplaats in Amstel III
26 juli 2022
Overeenkomst getekend voor woningbouwproject BRISK in Amstel III
24 maart 2022
Royal HaskoningDHV rekent op meer werk door energietransitie
24 maart 2022
Expositie in Arcam over ruimtelijke manifestatie van technologie
3 maart 2022
Benthem Crouwel ontwerpt gebouwencomplex met groen daklandschap in Praag
25 november 2021
Benthem Crouwel transformeert 17e-eeuws wevershuis tot eigentijdse stadswoning
14 oktober 2021
Team Benthem Crouwel + West 8 ontwerpt nieuw hoofdstation Brno
23 juli 2021
Toon alles
Andere nieuwsberichten
Gebouw wooncoöperatie krijgt gevel van hergebruikte ventilatiekanalen
Gisteren, 16:04
Naar verwachting wordt begin volgend jaar gestart met de bouw van een woongebouw voor wooncoöperatie De Bonte Hulst in Amsterdam-Noord. Het gebouw in Buiksloterham is ontworpen door bureau SLA.
Jan Knikker vertrekt bij MVRDV
Gisteren, 14:46
Knikker, die sinds 2016 partner was bij MVRDV, heeft een belangrijke rol gespeeld bij de professionalisering van de pr- en acquisitieactiviteiten van MVRDV en de mede daaruit volgende groei van het bureau.
MVSA Architects en Powerhouse Company ontwerpen dubbele woontoren bij Den Haag Centraal
Gisteren, 13:19
RED Company heeft met Patrizia SE, Staedion en Bellevue CS The Hague overeenstemming bereikt over de ontwikkeling van de Bellevue-locatie pal naast Den Haag Centraal. Voor de bekroning van de twee torens liggen nog drie varianten op tafel.
Woonhuis tegen dijklichaam loopt door tafelconstructie af in hoogte
Gisteren, 12:13
Aan de rand van het Gelderse dorp Herwijnen is het door B2A ontworpen woonhuis Cascade opgeleverd. De 250 vierkante meter omvattende woning rust op een tafelvormige constructie van acht funderingskolommen tegen een dijklichaam.
PBL: politieke keuzes nodig voor aanpassing klimaatverandering
52 minuten geleden
Een verstandige keuze is alvast om alles klimaatadaptief aan te pakken, aldus het Planbureau voor de Leefomgeving.
OM vervolgt oud-werknemers Strukton na Saudische omkopingskwestie
Gisteren, 16:52
Eerder werd al bekend dat het bouwbedrijf voor tien miljoen euro heeft geschikt in de corruptiezaak.
Duitsland trekt acht miljard uit voor extra klimaatmaatregelen
Gisteren, 10:59
Het geld is onder andere bedoeld voor de bouw van extra windmolens en subsidies voor de aanschaf van elektrische auto's.
‘Transformatie en optoppen levert tienduizenden woningen en klimaatwinst op’
27 maart, 11:53
Woningbouw vergt veel grondstoffen, maar de Wetenschappelijke Klimaatraad ziet veel mogelijkheden om het anders aan te pakken.
Zeeuwse Staten willen inspraak inwoners op groeiplan provincie
27 maart, 9:30
Meerdere Statenfracties in de provincie Zeeland hebben opgeroepen de inwoners op een goede wijze te betrekken bij het uitwerken van de strategische agenda 2050.
Minister: meer geld nodig voor Warmtefonds voor duurzamere woning
26 maart, 12:29
Boekholt gaat de komende tijd op zoek naar geld, zei ze in een debat met de Tweede Kamer.
Ga naar het nieuws-archief
Ronnie Weessies
Redacteur
0
0
0
0
Voor een optimale gebruikservaring plaatst Architectenweb functionele cookies. Wat de verschillende cookies precies doen leggen we uit in een
overzicht
. Cookies van social media kun je optioneel
aanzetten
.
Akkoord
Instellingen
Annuleren
OK
Sluiten
Doorgaan
Inloggen
Maak een gratis persoonlijk account aan
Feedback
Feedback
Wij horen graag jouw feedback. Laat je reactie achter en eventueel jouw e-mail adres.
Reactie
Verstuur