Projecten
Producten
Bedrijven
Vacatures
Agenda
Awards
Podcasts
more_horiz
Videos
Magazine
Thema's
Favorieten
Profiel
Uitloggen
Abonneer je nu op onze nieuwsbrieven!
Abonneren
Nee, bedankt
Ja, denk met me mee rond de
materialisering van mijn project
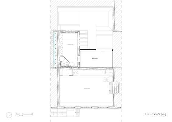
Woonkamer op eerste verdieping
Copyright: Jannes Linders
Copyright: Jannes Linders
Copyright: Jannes Linders
Woonkamer op eerste verdieping
Copyright: Jannes Linders
Woonkamer op eerste verdieping
Copyright: Jannes Linders
Werkkamer op eerste verdieping
Copyright: Jannes Linders
Werkkamer op eerste verdieping
Copyright: Jannes Linders
Werkkamer op eerste verdieping
Copyright: Jannes Linders
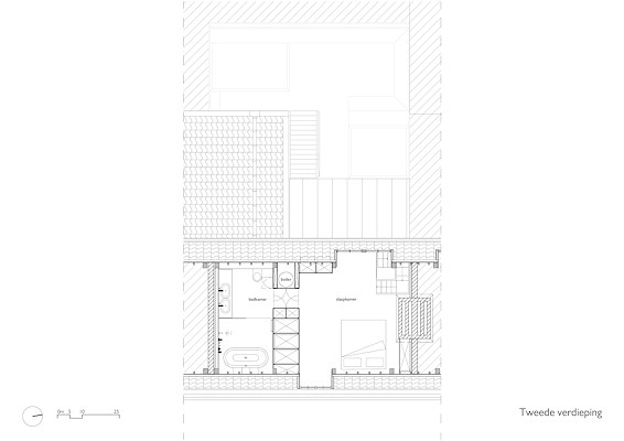
Trap naar zolder
Copyright: Jannes Linders
Badkamer op zolder
Copyright: Jannes Linders
Entreehal op begane grond
Copyright: Jannes Linders
Entreehal op begane grond
Copyright: Jannes Linders
Eetkamer op begane grond
Copyright: Jannes Linders
Keuken op begane grond
Copyright: Jannes Linders
Toilet op begane grond
Copyright: Jannes Linders
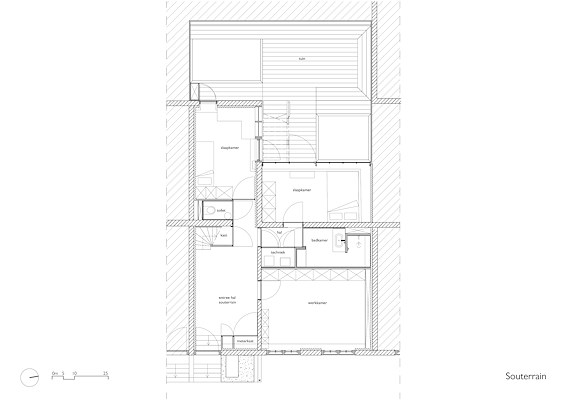
Kelder
Copyright: Jannes Linders
Copyright: Jannes Linders
Copyright: Benthem Crouwel Architects
Copyright: Benthem Crouwel Architects
Copyright: Benthem Crouwel Architects
Copyright: Benthem Crouwel Architects
Copyright: Benthem Crouwel Architects
Copyright: Benthem Crouwel Architects
Copyright: Benthem Crouwel Architects
Copyright: Benthem Crouwel Architects
Copyright: Benthem Crouwel Architects
Benthem Crouwel transformeert 17e-eeuws wevershuis tot eigentijdse stadswoning
14 oktober 2021, 16:45
Het woonhuis van de Vijzelgracht in Amsterdam is een van de tachtig bewaard gebleven wevershuizen in de stad en is rond 1670 ontworpen door Philip Vingboons. In de restauratie en renovatie is de
oorspronkelijke hoofdopzet behouden en zoveel mogelijk origineel materiaal weer zichtbaar gemaakt. Latere uitbouwen zijn verwijderd, en deels vernieuwd teruggebouwd binnen hetzelfde volume.
Na het vertrek van de wevers is de woning aan de Vijzelsgracht op veel verschillende manieren bewoond en gebruikt. Hieraan kwam een abrupt einde door de verzakking in 2008. De gemeente Amsterdam verklaarde het pand onbewoonbaar en voorzag het in 2015 van een nieuwe fundering.
Benthem Crouwel Architects
heeft het huis met zijn rijke geschiedenis nu getransformeerd tot een eigentijdse stadswoning. “Bij de renovatie is gebruik gemaakt van zeer uiteenlopende technieken en materialen, zowel ambachtelijk als innovatief”, verklaart het bureau. “Het huis is met een aantal aanpassingen weer volledig toegerust voor de toekomst, daarnaast zijn ook veel oorspronkelijke elementen bewaard gebleven.”
De aangebouwde twintigste-eeuwse opslagruimte aan de achterzijde heeft weer plaats gemaakt voor een tuin. De nieuw toegevoegde, drie verdiepingen hoge glazen serre, die de niet waardevolle uitbouw van 1870 vervangt, versterkt het contact met deze nieuwe tuin.
Eenheid in verscheidenheid
In de huidige indeling, alsook in de overgebleven ‘sporen’, is het oorspronkelijke gebruik van het huis af te lezen. De zonnige, in grootte variërende kamers hebben ieder hun eigen sfeer. De oude hoofdstructuur is weer zichtbaar en de nog in tact gebleven oorspronkelijke elementen hebben een passende plek gekregen in het nieuwe interieur.
“Het toegepaste kleurpalet is gebruikt als verbinding en versterking van de verschillende materialen en ruimtes”, vertelt Benthem Crouwel Architects. “Het palet van uiteenlopende kleuren verloopt van donker op de benedenverdieping naar licht op de zolderverdieping. De nieuwe zorgvuldige detaillering in combinatie met de oorspronkelijke zeventiende -eeuwse elementen geeft dit huis zijn bijzondere karakter.”
Trefwoorden
renovatie
wevershuis
vijzelgracht
amsterdam
benthem crouwel
benthem crouwel architects
woning
stadswoning
philip vingboons
Best gelezen
1
Luxe appartementengebouw naast klooster Etten-Leur door Studio AAAN klaar
donderdag, 19 maart
2
Houten Stelthuis van Woonpioniers is aardbevings- en klimaatbestendig
woensdag, 18 maart
3
BureauVanEig verbetert uitstraling Haagse rijtjeswoningen bij verduurzaming
dinsdag, 17 maart
4
De nieuwe kleren van de keizer
dinsdag, 17 maart
5
Landschappelijk ontworpen buurt in Vinex-wijk Schuytgraaf voltooid
woensdag, 18 maart
Gerelateerde nieuwsberichten
Benthem Crouwel Architects ontwerpt woning op hoogste punt van Amersfoort
30 juni 2022
Benthem Crouwel Architects en Snøhetta ontwerpen Huis van Cultuur en Bestuur in Delfzijl
3 april 2025
Belgisch-Nederlands team geselecteerd voor ambitieus infrastructuurproject Brussels Airport
26 juni 2025
Jan Benthem te gast in eerste Architectuurcafé Kunstlinie
26 augustus 2021
Team Benthem Crouwel + West 8 ontwerpt nieuw hoofdstation Brno
23 juli 2021
Uitbreiding Equinix Datacenter AM7 opgeleverd
15 juli 2021
Uitreiking Dutch Daylight Award 2020/21 op de langste dag
7 juni 2021
Kantoorgebouwen Basisweg Amsterdam herontwikkeld tot District West
15 april 2021
Architecten presenteren geopende Rotterdamsebaan en Victory Boogie Woogietunnel
22 februari 2021
Video: architecten over Rotterdamsebaan en Victory Boogie Woogietunnel
5 februari 2021
Voorbereidingen bouw Vijzelgrachtgarage gestart
26 januari 2021
Museum Arnhem schuift nieuwe vleugel over stuwwal
23 november 2020
Acht genomineerden voor Dutch Daylight Award 2020
19 oktober 2020
Bouw LAB42 op Amsterdam Science Park gestart
16 oktober 2020
Park rond ING-kantoor Cedar als stedelijke tuin
9 januari 2020
Nieuw kantoorgebouw ING gericht op openheid en verbinding
8 januari 2020
Paviljoen The Traveller zoekt verbinding met omgeving
4 december 2019
Nominaties Publiek gebouw van het Jaar bekend
9 oktober 2019
Nominaties ‘Kantoorgebouw van het Jaar 2019’ bekend
11 september 2019
Benthem Crouwel Architects – genomineerd voor prijs Architect van het Jaar 2019
9 september 2019
Vijf nominaties voor prijs Architect van het Jaar 2019
3 september 2019
Benthem Crouwel Architects
2 september 2019
Verbouwing Museum Arnhem definitief gegund
6 augustus 2019
RAI breidt uit met hal aan Wielingenstraat
22 juli 2019
Benthem Crouwel ontwerpt appartementencomplex Praag
25 juni 2019
Noord-Zuidlijn is BNA Beste Gebouw van het Jaar 2019
17 mei 2019
Gouden A.A.P. 2019 voor Noord-Zuidlijn en Hotel Jakarta
17 april 2019
Benthem Crouwel ontwerpt gebouwencomplex met groen daklandschap in Praag
25 november 2021
Bouw woonblok Palazzo in Den Bosch van start gegaan
2 februari 2023
Benthem Crouwel Architects ontwerpt woning op hoogste punt van Amersfoort
30 juni 2022
Benthem Crouwel Architects en Snøhetta ontwerpen Huis van Cultuur en Bestuur in Delfzijl
3 april 2025
Belgisch-Nederlands team geselecteerd voor ambitieus infrastructuurproject Brussels Airport
26 juni 2025
Jan Benthem te gast in eerste Architectuurcafé Kunstlinie
26 augustus 2021
Team Benthem Crouwel + West 8 ontwerpt nieuw hoofdstation Brno
23 juli 2021
Uitbreiding Equinix Datacenter AM7 opgeleverd
15 juli 2021
Uitreiking Dutch Daylight Award 2020/21 op de langste dag
7 juni 2021
Kantoorgebouwen Basisweg Amsterdam herontwikkeld tot District West
15 april 2021
Architecten presenteren geopende Rotterdamsebaan en Victory Boogie Woogietunnel
22 februari 2021
Video: architecten over Rotterdamsebaan en Victory Boogie Woogietunnel
5 februari 2021
Voorbereidingen bouw Vijzelgrachtgarage gestart
26 januari 2021
Museum Arnhem schuift nieuwe vleugel over stuwwal
23 november 2020
Acht genomineerden voor Dutch Daylight Award 2020
19 oktober 2020
Bouw LAB42 op Amsterdam Science Park gestart
16 oktober 2020
Park rond ING-kantoor Cedar als stedelijke tuin
9 januari 2020
Nieuw kantoorgebouw ING gericht op openheid en verbinding
8 januari 2020
Paviljoen The Traveller zoekt verbinding met omgeving
4 december 2019
Nominaties Publiek gebouw van het Jaar bekend
9 oktober 2019
Nominaties ‘Kantoorgebouw van het Jaar 2019’ bekend
11 september 2019
Benthem Crouwel Architects – genomineerd voor prijs Architect van het Jaar 2019
9 september 2019
Vijf nominaties voor prijs Architect van het Jaar 2019
3 september 2019
Benthem Crouwel Architects
2 september 2019
Verbouwing Museum Arnhem definitief gegund
6 augustus 2019
RAI breidt uit met hal aan Wielingenstraat
22 juli 2019
Benthem Crouwel ontwerpt appartementencomplex Praag
25 juni 2019
Noord-Zuidlijn is BNA Beste Gebouw van het Jaar 2019
17 mei 2019
Gouden A.A.P. 2019 voor Noord-Zuidlijn en Hotel Jakarta
17 april 2019
Benthem Crouwel ontwerpt gebouwencomplex met groen daklandschap in Praag
25 november 2021
Bouw woonblok Palazzo in Den Bosch van start gegaan
2 februari 2023
Toon alles
Gerelateerde video's
Cedar / Hoofdkantoor ING
Benthem Crouwel Architects met HofmanDujardin
Benthem Crouwel Architects
Nominatie voor de prijs voor Architect van het Jaar 2019
Andere nieuwsberichten
PSV presenteert plannen voor uitbreiding Philips Stadion
20 maart, 3:37
De Eindhovense club wil de capaciteit van zijn onderkomen opschroeven met maximaal 25.000 bezoekers. Om dit te bewerkstelligen, komt er een nieuwe schil rond het stadion waarin een derde ring is opgenomen.
Rijkswaterstaat staakt renovatie markante houten Krùsrak-brug in Sneek
20 maart, 11:32
Tijdens de renovatie werd duidelijk dat de constructieve veiligheid van de brug niet langer kan worden verzekerd, laat RWS weten. De uit 2008 stammende Krúsrak-brug over de rijksweg 7 is ontworpen door Onix en Archterbosch Architecten.
KAAN Architecten en De Zwarte Hond winnen tender voor Area 19 TU Eindhoven
20 maart, 10:35
De opdracht omvat het ontwerp van een nieuw onderzoeks- en onderwijsgebouw en de stedenbouwkundige ontwikkeling van een nieuw campusgebied.
Projecten gezocht voor vijfde Adriaan Dessingprijs
19 maart, 2:42
De tweejaarlijkse architectuurprijs vestigt de aandacht op bijzondere, gerealiseerde plannen in de Zuid-Hollandse gemeenten Westland en Midden-Delfland. Het kan gaan om nieuwbouw, restauratie of landschappelijke projecten.
Friesland brengt duizenden karakteristieke boerderijen in kaart
20 maart, 2:16
Door alle informatie over de voor het landschap kenmerkende gebouwen op één plek te brengen, moet het makkelijker worden om ze te behouden.
ING: bijna de helft van de huiseigenaren stelt verduurzaming uit
20 maart, 12:18
De meeste mensen vinden dat de overheid te weinig doet om dit te stimuleren.
Rekenkamer kraakt resultaten EU-innovatiefonds voor verduurzaming
20 maart, 9:25
Het Innovatiefonds van de Europese Unie levert veel minder resultaat op dan verwacht op het gebied van verduurzaming en innovatie.
Provincie schrapt beoogde locaties windturbines in Groene Hart
19 maart, 1:35
De provincie had twaalf plekken op het oog, maar dat leidde tot maatschappelijk en politiek verzet.
Staten Utrecht willen netcongestie versneld aanpakken
19 maart, 9:44
De fracties wezen op de noodzaak van het zo snel mogelijk realiseren van een hoogspanningsstation dat essentieel is voor het opsplitsen van het elektriciteitsnetwerk tussen de Flevopolder, Gelderland en Utrecht.
Rotterdam wil woningbouw versnellen met pilot ‘Ontwikkelaar aan Zet’
18 maart, 4:33
De gemeente Rotterdam start een pilot waarbij projectontwikkelaars een grotere rol krijgen bij de voorbereiding van woningbouwprojecten.
Ga naar het nieuws-archief
0
0
0
0
Voor een optimale gebruikservaring plaatst Architectenweb functionele cookies. Wat de verschillende cookies precies doen leggen we uit in een
overzicht
. Cookies van social media kun je optioneel
aanzetten
.
Akkoord
Instellingen
Annuleren
OK
Sluiten
Doorgaan
Inloggen
Maak een gratis persoonlijk account aan
Feedback
Feedback
Wij horen graag jouw feedback. Laat je reactie achter en eventueel jouw e-mail adres.
Reactie
Verstuur