Projecten
Producten
Bedrijven
Vacatures
Agenda
Awards
Podcasts
more_horiz
Videos
Magazine
Favorieten
Profiel
Uitloggen
Abonneer je nu op onze nieuwsbrieven!
Abonneren
Nee, bedankt
Ja, denk met me mee rond de
materialisering van mijn project
Copyright: NOAHH | Network Oriented Architecture
Copyright: NOAHH | Network Oriented Architecture
Copyright: NOAHH | Network Oriented Architecture
Copyright: NOAHH | Network Oriented Architecture
Copyright: NOAHH | Network Oriented Architecture
Copyright: NOAHH | Network Oriented Architecture
Activiteitgerelateerde en levensloopbestendige villa van NOAHH
19 oktober 2020, 17:17
Vorige week is de bouwvergunning afgegeven voor een door
NOAHH | Network Oriented Architecture
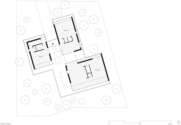
ontworpen woning in Almere Oosterwold. De villa bestaat uit drie aparte delen op een betonnen platform, die met elkaar verbonden zijn door glazen tussendelen. Door deze opzet loopt het landschap als het ware door het interieur heen.
Activiteitgerelateerd wonen en levensloopbestendigheid waren belangrijke uitgangspunten voor het ontwerp van de villa. Vanuit het eerste oogpunt is de woning opgedeeld in een ‘woonhuis, slaaphuis en werkhuis’.
Het woonhuis is het grootste paviljoen met eetkamer en living. Het slaaphuis wordt aan alle kanten door natuur omgeven en maakt het een rustige plek. Het werkhuis ligt het dichtst bij de straat. Hier zijn ook de logiesfaciliteiten voor gasten.
Het levensloopbestendige huis kan in de toekomst verder worden uitgebreid met een ‘zorgpaviljoen’ of een van de bestaande paviljoens kan deze functie krijgen, meldt NOAHH. Om de woning aanpasbaar te maken voor toekomstige veranderingen, is ze opgebouwd uit geprefabriceerde gelamineerde houten constructies, die bovendien demontabel zijn.
Een centrale patio is het brandpunt van zowel het landschap als de villa op de kavel, aldus NOAHH, de gevlinderde monoliet betonvloer versterkt het zowel robuuste als natuurlijke karakter van de woning.
Het plan is om in het eerste kwartaal van volgend jaar te starten met de bouw, laat NOAHH weten.
Trefwoorden
oosterwold
noahh | network oriented architecture
woning
noahh
almere oosterwold
villa
almere
Locatie
Best gelezen
1
Architect Cees Dam op 93-jarige leeftijd overleden
dinsdag, 14 april
2
Powerhouse Company wint aanbesteding voor verbouwing Vista College Maastricht
dinsdag, 14 april
3
Tien bureaus geselecteerd voor tweede ronde nieuwbouw De Meervaart
woensdag, 15 april
4
Voormalig hoofdkantoor Ferro in M4H verbouwd tot bedrijfsverzamelgebouw
woensdag, 15 april
5
Anterieure overeenkomst voor bouw woontoren The Four in Eindhoven
donderdag, 16 april
Gerelateerde nieuwsberichten
NOAHH presenteert opgeleverde Villa Vaartjes in Almere Oosterwold
23 april 2024
NOAHH en Poelmans Reesink tonen definitief ontwerp Sportpark Glanerbrook
21 maart 2023
VPRO-serie volgt mensen die hun ideale dorp willen bouwen in Almere Oosterwold
16 juli 2024
Woongebouw met geïntegreerd groen voor centrum Almere
14 december 2020
Hart van Griffioen – hoe een bewonersinitiatief uitgroeide tot een stedenbouwkundig plan
2 februari
NOAHH ontwerpt nieuw zwembad in Noordersportpark Haarlem
4 november 2025
BFAS+ wint tender voor zorg- en woongebouwen in Almere Haven
6 januari 2021
Geheel ‘off-grid’ erf voor drie generaties door Studiospacious
23 mei 2024
Wildgroei
18 mei 2021
Cirkelbrug Almere beleeft officiële opening
7 oktober 2022
Bureau SLA realiseert woning met 'binnenhuis' en kas in Almere Oosterwold
4 februari 2022
Expressieve draagconstructie maakt huis ook écht van hout
19 november 2021
Villa van louter onbewerkte materialen in buitengebied Sint-Oedenrode
25 juni 2021
Definitief ontwerp van NOAHH voor nieuw dorpsgebouw van Zwartewaal
25 mei 2021
Interieur te gast in een monumentale stolpboerderij
18 maart 2021
Zelfvoorzienend 'zorglandgoed' voor Almere Oosterwold
15 maart 2021
Monumentaal ligt Villa JM in het Brabantse bos
12 maart 2021
Video('s): Almere Boven
18 december 2020
Oude school leeft voort in nieuwbouw Christelijk Lyceum Veenendaal
10 december 2020
Team NOAHH en Braaksma & Roos ontwerpt campus CSG Reggesteyn
24 november 2020
Multifunctioneel centrum en brede school Rockanje in gebruik genomen
3 juli 2020
Groen licht voor definitief ontwerp Theater aan de Parade
2 juni 2020
Cultuurcentrum Hoogeveen: de runner-up
21 februari 2020
Groen licht voor markthal bij Haarlems winkelcentrum
13 januari 2020
Wonen bij de boer in Oosterwold
12 maart 2018
Ecologische woonwijk voor Almere Oosterwold
25 juli 2017
Eerste project Almere Oosterwold van start
8 maart 2016
Almere Oosterwold: zelfbouw ‘to the max’
21 oktober 2015
Verslag tweede dag Het Grote Woningbouwcongres
16 februari 2015
Ontwikkeling Almere Oosterwold van start
8 juli 2013
Ontwikkelstrategie Almere Oosterwold bekend
30 maart 2012
NOAHH presenteert opgeleverde Villa Vaartjes in Almere Oosterwold
23 april 2024
NOAHH en Poelmans Reesink tonen definitief ontwerp Sportpark Glanerbrook
21 maart 2023
VPRO-serie volgt mensen die hun ideale dorp willen bouwen in Almere Oosterwold
16 juli 2024
Woongebouw met geïntegreerd groen voor centrum Almere
14 december 2020
Hart van Griffioen – hoe een bewonersinitiatief uitgroeide tot een stedenbouwkundig plan
2 februari
NOAHH ontwerpt nieuw zwembad in Noordersportpark Haarlem
4 november 2025
BFAS+ wint tender voor zorg- en woongebouwen in Almere Haven
6 januari 2021
Geheel ‘off-grid’ erf voor drie generaties door Studiospacious
23 mei 2024
Wildgroei
18 mei 2021
Cirkelbrug Almere beleeft officiële opening
7 oktober 2022
Bureau SLA realiseert woning met 'binnenhuis' en kas in Almere Oosterwold
4 februari 2022
Expressieve draagconstructie maakt huis ook écht van hout
19 november 2021
Villa van louter onbewerkte materialen in buitengebied Sint-Oedenrode
25 juni 2021
Definitief ontwerp van NOAHH voor nieuw dorpsgebouw van Zwartewaal
25 mei 2021
Interieur te gast in een monumentale stolpboerderij
18 maart 2021
Zelfvoorzienend 'zorglandgoed' voor Almere Oosterwold
15 maart 2021
Monumentaal ligt Villa JM in het Brabantse bos
12 maart 2021
Video('s): Almere Boven
18 december 2020
Oude school leeft voort in nieuwbouw Christelijk Lyceum Veenendaal
10 december 2020
Team NOAHH en Braaksma & Roos ontwerpt campus CSG Reggesteyn
24 november 2020
Multifunctioneel centrum en brede school Rockanje in gebruik genomen
3 juli 2020
Groen licht voor definitief ontwerp Theater aan de Parade
2 juni 2020
Cultuurcentrum Hoogeveen: de runner-up
21 februari 2020
Groen licht voor markthal bij Haarlems winkelcentrum
13 januari 2020
Wonen bij de boer in Oosterwold
12 maart 2018
Ecologische woonwijk voor Almere Oosterwold
25 juli 2017
Eerste project Almere Oosterwold van start
8 maart 2016
Almere Oosterwold: zelfbouw ‘to the max’
21 oktober 2015
Verslag tweede dag Het Grote Woningbouwcongres
16 februari 2015
Ontwikkeling Almere Oosterwold van start
8 juli 2013
Ontwikkelstrategie Almere Oosterwold bekend
30 maart 2012
Toon alles
Andere nieuwsberichten
OMA gebruikt bestaand gebouw als canvas bij renovatie Edo-Tokyo Museum
17 april, 3:55
Na een renovatie van bijna vier jaar is het Edo-Tokyo Museum in de Japanse hoofdstad Tokio heropend. OMA nam het uit 1993 stammende gebouw, dat is ontworpen door de Metabolist Kiyonori Kikutake, onder handen.
Winnaars verkiezing Beste Bossche Gebouw 2020–2025 bekend
17 april, 2:16
De vakjury en het publiek wezen elk in drie categorieën een winnaar aan. Daarnaast kende vakjury nog een wildcard toe aan een project.
Appartementengebouwen door MIX architectuur vormen sluitstuk Noorderhaven Zutphen
17 april, 12:29
In de nieuwe buurt Noorderhaven in Zutphen zijn drie appartementengebouwen naar ontwerp van MIX architectuur opgeleverd. De gebouwen met in totaal tachtig woningen vormen het sluitstuk van de gebiedsontwikkeling.
EUmies Award naar renovatie congrescentrum in Charleroi en tijdelijke ruimtes Sloveens theater
17 april, 10:54
Donderdag zijn de winnaars van de EUmies Award 2026 bekendgemaakt. De renovatie van het congrescentrum Charleroi Palais des Expositions won in de belangrijkste categorie architectuur.
Woningbouwzaken krijgen langer voorrang bij Raad van State
17 april, 4:49
Om het huizentekort tegen te gaan, blijft de Raad van State woningbouwzaken met voorrang behandelen.
Inspectie positief over verbetering sociale veiligheid TU Delft
17 april, 11:36
De TU Delft heeft aanzienlijke stappen gezet om de sociale veiligheid voor medewerkers te verbeteren.
NVM vreest minder nieuwbouw door veranderende voorrang stroomnet
17 april, 9:23
Bouwers kunnen, door onzekerheid over welke projecten straks nog maatschappelijke prioriteit krijgen in een bepaalde regio, besluiten om minder nieuwe huizen te bouwen.
Architecten voor restauratie en herbestemming Rivièrahal gekozen
16 april, 12:00
Voor de grootscheepse restauratie en herbestemming van de Rivièrahal in de Rotterdamse Diergaarde Blijdorp zijn Mecanoo en BiermanHenket geselecteerd.
Bewoners aardbevingsgebied Groningen blijven kritisch op herstel
16 april, 10:34
Door de complexiteit en onzekerheid van het jarenlange proces ervaren mensen stress en frustratie.
ING: optoppen en splitsen van woningen steeds minder haalbaar
15 april, 1:22
Het kabinet-Jetten gaat naar verwachting het doel van 15.000 extra woningen per jaar uit verbouwingen niet halen, stelt ING.
Ga naar het nieuws-archief
Ronnie Weessies
Redacteur
0
0
0
0
Voor een optimale gebruikservaring plaatst Architectenweb functionele cookies. Wat de verschillende cookies precies doen leggen we uit in een
overzicht
. Cookies van social media kun je optioneel
aanzetten
.
Akkoord
Instellingen
Annuleren
OK
Sluiten
Doorgaan
Inloggen
Maak een gratis persoonlijk account aan
Feedback
Feedback
Wij horen graag jouw feedback. Laat je reactie achter en eventueel jouw e-mail adres.
Reactie
Verstuur