Projecten
Producten
Bedrijven
Vacatures
Agenda
Awards
Podcasts
more_horiz
Videos
Magazine
Favorieten
Profiel
Uitloggen
Abonneer je nu op onze nieuwsbrieven!
Abonneren
Nee, bedankt
Ja, denk met me mee rond de
materialisering van mijn project
Copyright: Katja Effting
Copyright: Katja Effting
Copyright: Katja Effting
Copyright: Katja Effting
Het Christelijk Lyceum Veenendaal anno 1968
Copyright: gemeente Veenendaal
Copyright: NOAHH | Network Oriented Architecture
Copyright: NOAHH | Network Oriented Architecture
Copyright: NOAHH | Network Oriented Architecture
Copyright: NOAHH | Network Oriented Architecture
Copyright: NOAHH | Network Oriented Architecture
Copyright: NOAHH | Network Oriented Architecture
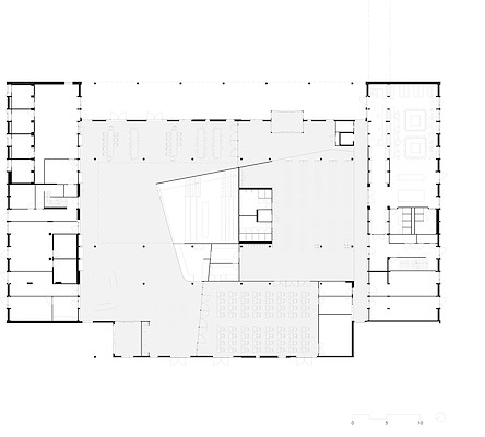
Begane grond
Copyright: NOAHH | Network Oriented Architecture
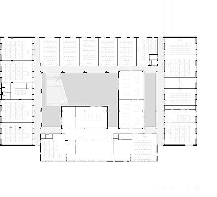
Eerste verdieping
Copyright: NOAHH | Network Oriented Architecture
Tweede verdieping
Copyright: NOAHH | Network Oriented Architecture
Copyright: NOAHH | Network Oriented Architecture
Copyright: NOAHH | Network Oriented Architecture
Oude school leeft voort in nieuwbouw Christelijk Lyceum Veenendaal
10 december 2020, 15:48
Vorige maand heeft het Christelijk Lyceum Veenendaal een nieuwbouwdeel als hart van de school in gebruik genomen. Het nieuwe pand vervangt drie oude gebouwen die op dezelfde plek stonden, het casco van twee flankerende vleugels is hergebruikt.
NOAHH | Network Oriented Architecture
en
Ex Interiors
zijn verantwoordelijk voor het ontwerp.
Het nieuwbouwdeel is gerealiseerd tussen twee bestaande vleugels, die beide zijn gerenoveerd. Het pand vormt niet alleen het fysieke hart van het schoolcomplex, maar dankzij het centrale atrium ook het sociale hart. In het exterieur van het drie verdiepingen tellend volume is het strakke ritme van de vroegere school (die later werd uitgebreid met andersoortige panden) teruggebracht.
Dankzij het atrium in de nieuwbouw zijn de flankerende bestaande delen ontlast van verkeersruimte en konden die efficiënter en flexibeler worden ingedeeld. Het atrium verbindt op speelse wijze alle verdiepingen en biedt zelf ook ruimte voor leer- en werkplekken. De trappen zijn multifunctioneel inzetbaar, onder meer ook voor ouderavonden en voorstellingen.
Tevens worden de verschillende leerrichtingen binnen de school er zichtbaar, onder meer dankzij de ‘etalages’ waarin leerlingen werk kunnen tentoonstellen. Via de sheddaken, een verwijzing naar het type dak dat het industriële verleden van Veenendaal veel voorkwam, wordt de ruimte voorzien van daglicht.
De nieuwbouw is deels opgebouwd met betonpuin van de gesloopte gebouw. Verder zijn onder meer alle ingebouwde airconditioning-apparatuur, een deel van de stalen dakconstructie en oude industriële lampen hergebruikt. Ook hebben oude kunstwerken nieuw leven gekregen, waaronder een werk van Hedda Buijs dat vijftig jaar als reliëf in een muur van het CLV heeft gezeten.
Trefwoorden
school
noahh
ex interiors
veenendaal
noahh | network oriented architecture
Locatie
Best gelezen
1
Tentoonstelling in Het Noordbrabants Museum rond 50 jaar BPD Kunstcollectie
dinsdag, 5 mei
2
Negentiende-eeuwse woningen in Feijenoord gered door er kluswoningen van te maken
maandag, 4 mei
3
Uitkijkradartoren van RO&AD Architecten bereikt hoogste punt
dinsdag, 5 mei
4
Maarten Baas klokt opnieuw in op Schiphol
maandag, 4 mei
5
'Stuttende' en contrasterende installatie voor Besiendershuis Nijmegen
vrijdag, 1 mei
Gerelateerde nieuwsberichten
AM gaat Ritmeesterlocatie in Veenendaal herontwikkelen
4 december 2023
MVRDV en Buro Happold ontwerpen nieuw theater in Veenendaal
14 november 2025
Mens en milieu centraal op campus naar masterplan van Ex Interiors en JDdV
7 februari 2024
NOAHH en Poelmans Reesink tonen definitief ontwerp Sportpark Glanerbrook
21 maart 2023
NOAHH ontwerpt nieuw zwembad in Noordersportpark Haarlem
4 november 2025
Adviesbureau bbn realiseert eigen Paris Proof hoofdkantoor
23 september 2024
Interieuropdracht voor nieuw kantoor Architectenregister naar Ex Interiors
24 april 2025
Ex Interiors geeft jaren 70-woning ruimtelijkheid en tactiliteit
18 maart 2025
Een kantoorinterieur dat historische waarde en een duurzame toekomst verbindt
5 december 2024
Ex Interiors presenteert vloercollectie met natuurlijk karakter
4 april 2022
Ex Interiors schept kleurrijke werkomgeving voor HvA/UvA
31 maart 2022
Winnaars ARC21 Awards bekend
19 november 2021
Ex Interiors ontwerpt hoofdkantoor voor ontmoeten en hybride werken
23 juni 2021
Definitief ontwerp van NOAHH voor nieuw dorpsgebouw van Zwartewaal
25 mei 2021
Ex Interiors creëert ademruimte in een compacte woning
15 april 2021
Interieur te gast in een monumentale stolpboerderij
18 maart 2021
Team NOAHH en Braaksma & Roos ontwerpt campus CSG Reggesteyn
24 november 2020
Activiteitgerelateerde en levensloopbestendige villa van NOAHH
19 oktober 2020
Multifunctioneel centrum en brede school Rockanje in gebruik genomen
3 juli 2020
Groen licht voor definitief ontwerp Theater aan de Parade
2 juni 2020
Cultuurcentrum Hoogeveen: de runner-up
21 februari 2020
Groen licht voor markthal bij Haarlems winkelcentrum
13 januari 2020
Nominaties ‘Schoolgebouw van het Jaar 2019’ bekend
18 september 2019
School annex dorpshuis ontworpen op de krimp
22 mei 2019
AM gaat Ritmeesterlocatie in Veenendaal herontwikkelen
4 december 2023
MVRDV en Buro Happold ontwerpen nieuw theater in Veenendaal
14 november 2025
Mens en milieu centraal op campus naar masterplan van Ex Interiors en JDdV
7 februari 2024
NOAHH en Poelmans Reesink tonen definitief ontwerp Sportpark Glanerbrook
21 maart 2023
NOAHH ontwerpt nieuw zwembad in Noordersportpark Haarlem
4 november 2025
Adviesbureau bbn realiseert eigen Paris Proof hoofdkantoor
23 september 2024
Interieuropdracht voor nieuw kantoor Architectenregister naar Ex Interiors
24 april 2025
Ex Interiors geeft jaren 70-woning ruimtelijkheid en tactiliteit
18 maart 2025
Een kantoorinterieur dat historische waarde en een duurzame toekomst verbindt
5 december 2024
Ex Interiors presenteert vloercollectie met natuurlijk karakter
4 april 2022
Ex Interiors schept kleurrijke werkomgeving voor HvA/UvA
31 maart 2022
Winnaars ARC21 Awards bekend
19 november 2021
Ex Interiors ontwerpt hoofdkantoor voor ontmoeten en hybride werken
23 juni 2021
Definitief ontwerp van NOAHH voor nieuw dorpsgebouw van Zwartewaal
25 mei 2021
Ex Interiors creëert ademruimte in een compacte woning
15 april 2021
Interieur te gast in een monumentale stolpboerderij
18 maart 2021
Team NOAHH en Braaksma & Roos ontwerpt campus CSG Reggesteyn
24 november 2020
Activiteitgerelateerde en levensloopbestendige villa van NOAHH
19 oktober 2020
Multifunctioneel centrum en brede school Rockanje in gebruik genomen
3 juli 2020
Groen licht voor definitief ontwerp Theater aan de Parade
2 juni 2020
Cultuurcentrum Hoogeveen: de runner-up
21 februari 2020
Groen licht voor markthal bij Haarlems winkelcentrum
13 januari 2020
Nominaties ‘Schoolgebouw van het Jaar 2019’ bekend
18 september 2019
School annex dorpshuis ontworpen op de krimp
22 mei 2019
Toon alles
Gerelateerde podcasts
Gesprek met Odette Ex over de terugkeer naar kantoor (en onszelf)
30 september 2021
Andere nieuwsberichten
Amsterdam schrijft eerste tender uit voor gebouw Weespertrekvaart-Oost
Gisteren, 16:22
Het gaat om een woon-werkgebouw dat op de kavels 6 en 7 in het gebied wordt gerealiseerd. Het project omvat een mix van sociale huur-, middeldure huur- en koopwoningen, een collectieve daktuin en voorzieningen in de plint.
Woonhuis met groen geglazuurde gevelstenen voor Buiksloterham
Gisteren, 15:03
Op een beeldbepalende hoekkavel in de Amsterdamse wijk Buiksloterham heeft Jan Bochmann Architecten een opvallende eengezinswoning ontworpen. In overleg met de opdrachtgevers heeft het bureau alle gevels afgewerkt met groen geglazuurde gevelstenen.
‘Rotterdam, een veilige haven?’ is thema van Opbouwdagen 2026
Gisteren, 12:45
Van 15 tot en met 18 mei vindt weer het evenement de Opbouwdagen in Rotterdam plaats.
Symposium rond het ontwerp van scholen – standaardisatie versus maatwerk
Gisteren, 09:00
Op woensdagmiddag 3 juni organiseert Architectenweb samen met Studio Ard Hoksbergen en Stichting Mevrouw Meijer in Xplore Agora in Amsterdam-Noord een symposium rond het ontwerpen van schoolgebouwen.
ABN AMRO: tweedeling koper en huurder op woningmarkt groeit
3 uur geleden
Volgens deskundigen van de bank is wonen de laatste jaren over de gehele linie betaalbaarder geworden. Echter, vooral zittende huiseigenaren profiteren.
HDN: mensen vragen minder hypotheken aan door hogere rente
4 mei, 5:02
De gestegen hypotheekrente maakte zowel kopers als niet-kopers terughoudender.
Nieuwsuur: gifzones belemmeren woningbouw in zeker veertig gemeenten
4 mei, 10:37
De bouw van tienduizenden woningen in Nederland loopt vertraging op door regels rond zogeheten spuitvrije zones.
Verzet natuurorganisaties tegen stroomkabel via Schiermonnikoog
1 mei, 4:39
Negen natuurorganisaties maken zich grote zorgen over het plan om stroom van een nieuw windpark op de Noordzee via Schiermonnikoog aan land te brengen.
ING: huizenprijzen stijgen dit jaar niet verder door hoger aanbod
1 mei, 1:03
Na jaren van groei is het voor het eerst in lange tijd dat een bank verwacht dat de huizenmarkt niet verder groeit.
TenneT mag datacenteraansluiting uitstellen om vol stroomnet
1 mei, 10:11
Een projectontwikkelaar van een datacenter bij Schiphol klaagde hierover en spande een kort geding aan.
Ga naar het nieuws-archief
Ronnie Weessies
Redacteur
0
0
0
0
Voor een optimale gebruikservaring plaatst Architectenweb functionele cookies. Wat de verschillende cookies precies doen leggen we uit in een
overzicht
. Cookies van social media kun je optioneel
aanzetten
.
Akkoord
Instellingen
Annuleren
OK
Sluiten
Doorgaan
Inloggen
Maak een gratis persoonlijk account aan
Feedback
Feedback
Wij horen graag jouw feedback. Laat je reactie achter en eventueel jouw e-mail adres.
Reactie
Verstuur