Projecten
Producten
Bedrijven
Vacatures
Agenda
Awards
Podcasts
more_horiz
Videos
Magazine
Thema's
Favorieten
Profiel
Uitloggen
Copyright: Ossip van Duivenbode
Copyright: Ossip van Duivenbode
Copyright: Ossip van Duivenbode
Copyright: Ossip van Duivenbode
Copyright: Ossip van Duivenbode
Copyright: Ossip van Duivenbode
Copyright: Ossip van Duivenbode
Copyright: Ossip van Duivenbode
Copyright: Ossip van Duivenbode
Copyright: Ossip van Duivenbode
Historisch beeld Raadhuis aan de Berg in Nuenen (circa 1883)
Copyright: diederendirrix
Copyright: diederendirrix
Copyright: diederendirrix
Copyright: diederendirrix
Copyright: diederendirrix
Copyright: diederendirrix
Copyright: diederendirrix
Expressieve uitbreiding voor Van Gogh Village Museum in Nuenen
29 juni 2023, 9:05
In Nuenen is half mei het vernieuwde Van Gogh Village Museum geopend. Onder meer is het museum uitgebreid met een nieuw volume, waarvoor architectenbureau
diederendirrix
leven en werk van Vincent van Gogh verkende en zich liet inspireren door de lokale boerderijtypologie.
Het Van Gogh Village Museum, voorheen bekend als Vincentre, is gewijd aan een belangrijke episode in het leven van Vincent van Gogh. In Nuenen maakte hij zijn eerste belangrijke ontwikkeling als kunstenaar door. Geïnspireerd door het dorpse leven van de boeren, wevers en arbeiders schilderde hij hier een kwart van zijn oeuvre, waaronder ‘De aardappeleters’.
Het monumentale raadhuis aan de Berg, waarin het Vincentre was gehuisvest, werd echter te klein en was toe aan vernieuwing. Omdat de museumuitbreiding zou plaatsvinden in een karakteristiek dorp, aan een historisch lint, heeft diederendirrix sterk naar de context gekeken, zo vertelt het bureau. Het nieuwe Van Gogh Village Museum voegt zich volgens de architecten zowel naar de stijl van de schilder, als die van het dorp.
Historische bebouwing
Het ontwerp van diederendirrix is een eigentijdse interpretatie van lokale historische situatie en bebouwing. Op de open plek naast het huidige museum stonden ooit twee kleine boerderijen. Het nieuw ontworpen volume volgt de historische parcellering en refereert tegelijkertijd aan de langskapboerderijen van weleer.
Naast het statige raadhuis heeft diederendirrix een eigenzinnige variant op een oude schuur. De overgang heeft het architectenbureau duidelijk zichtbaar gehouden door een iets teruggeplaatste, smalle verbinding tussen beide volumes, met bovenin een transparante glazen gang.
Aardse tinten
De kap van het nieuwe gebouw is expressief, maar blijft aan de voorzijde ondergeschikt aan het naastgelegen monument. Gevel en dak vormen hier een visueel geheel door de bekleding van bruine gebakken kleipannen, een verwijzing naar van Goghs voorliefde voor aardse materialen en tinten.
De deeldeuren van de historische boerderijen komen in een nieuwe variant terug in de entree. Die opent het gebouw met een sierlijke boog naar het dorp, met aan de overkant van de straat de pastorie van Van Goghs ouders en het huis ernaast, waar zijn verboden liefde woonde, vertelt diederendirrix.
Interieur
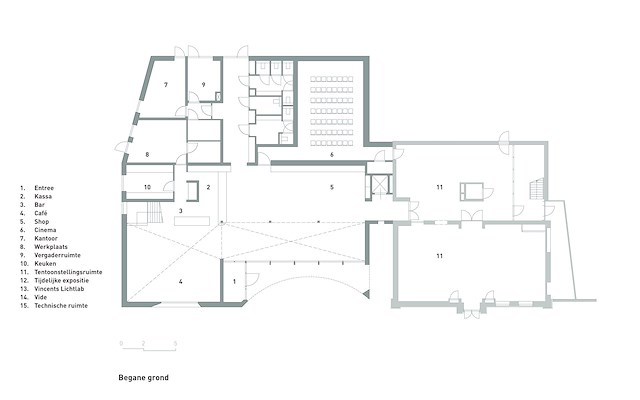
Binnen treffen bezoekers een intiem, integraal ontworpen in aardetinten, met populierenhout uit de omgeving en vloeren van gevlinderd beton. Op de begane grond bevinden zich de filmzaal, het café en de kantoren. De vide met overloop op de verdieping zorgt voor mooie zichtlijnen van binnen naar buiten en vice versa.
Die overloop leidt naar aangrenzende gebouw, naar de zaal voor wisselende exposities en een hightech Lichtlab. In dit Lichtlab, gerealiseerd in samenwerking met ASML, kunnen bezoekers “spelen met licht zoals van Gogh dat ook deed in zijn schilderijen”. De tentoonstellingen zijn ontworpen door Tinker imagineers.
Trefwoorden
museum
publiek gebouw
nuenen
vincentre
tinker imagineers
diederendirrix
van gogh village museum
Locatie
Best gelezen
1
Gemeente Haarlemmermeer kiest plan Ons Erf voor deelgebied Lincolnpark Hoofddorp
woensdag, 3 december
2
De mythe van de architect
dinsdag, 2 december
3
Veel Nederlandse winnaars bij de Archello Awards 2025
dinsdag, 2 december
4
Ibelings van Tilburg geeft boerderij met monumentale schuur in Zoetermeer woonbestemming
dinsdag, 2 december
5
Barcode Architects presenteert opgeleverd stadskantoor van Dresden
vrijdag, 5 december
Gerelateerde nieuwsberichten
Bouw uitbreiding Vincentre Nuenen gestart
22 maart 2022
Diederendirrix wint architectenselectie nieuwbouw poppodium Baroeg
20 juni 2023
Diederendirrix ontwerpt nieuw Archeologisch Depot in Nijmegen
27 maart 2023
Voormalig stadhuis Almelo heeft nieuw leven als woongebouw
30 augustus 2023
Uitbreiding geeft poppodium Nieuwe Nor prominentere uitstraling
20 juni 2022
De Nieuwe Eindhoven gaat nieuwe fase in
27 november 2023
Bloemendaal aan Zee krijgt nieuw hotel aan de duinen
3 januari 2022
Bouw The Newton in buurt Kop Zuidas gestart
22 november 2021
Fibonacci in Amsterdam Oost biedt vooral woningen met middenhuur
5 november 2021
Dirk Roosenburgprijs 2021 voor multifunctioneel centrum 't Karregat
15 oktober 2021
Ontwikkelovereenkomst voor project Diepeveen in Rotterdam getekend
27 juli 2021
Schellensfabriek Eindhoven herontwikkeld met woongebouw erbovenop
16 april 2021
Hotel en 'executive hub' vormen nieuw herkenningspunt boulevard Bloemendaal
29 juli 2024
Groep eigenaren diederendirrix en BureauEAU uitgebreid
12 september 2024
Kantoor voor handelsonderneming op prominente plek in Arnhem
10 februari 2021
Woningbouw op oud industrieterrein Eindhoven klaar
13 november 2020
Woongebouw met getrapte gevel van diederendirrix in spoorzone Strijp S klaar
11 november 2020
Groot deel Brabant wordt Van Gogh Nationaal Park
16 oktober 2024
Diederendirrix: "Bij ons moeten alle medewerkers in één bus blijven passen"
28 februari
Forum Groningen verkozen tot BNA Beste Gebouw van het Jaar
22 oktober 2020
Team met diederendirrix ontwerpt grootschalig nieuwbouwproject bij Amsterdam Sloterdijk
9 december 2024
Diederendirrix ontwerpt sociaal woningbouwproject Picustoren aan Eindhovensch Kanaal
25 juni
Faculteit ITC van Universiteit Twente uitgeroepen tot BNA Beste Gebouw van het Jaar 2024
23 mei 2024
Team diederendirrix verbouwt Stadsschouwburg Nijmegen
29 februari 2024
Nieuwe Nor wint publieksprijs Reynaers Projectprijs 2023
11 oktober 2023
Reynaers Aluminium Nederland
Stemmen Reynaers Projectprijs 2023 gestart
1 juni 2023
Reynaers Aluminium Nederland
Erasmus MC krijgt een campus
3 februari 2022
Nominaties 'Publiek gebouw van het Jaar 2020' zijn bekend
7 oktober 2020
Schetsontwerp uitbreiding Vincentre Nuenen gepresenteerd
24 juni 2020
DomusDela in voormalig klooster Mariënhage geopend
25 november 2019
Being Development mag VDMA-terrein Eindhoven ontwikkelen
22 november 2019
Lee Towers in Rotterdam opgeleverd
11 november 2019
Zorghotel Domstate uitgeroepen tot Zorggebouw van het Jaar 2019
31 oktober 2019
Nieuwe partners voor Diederendirrix en bureauEAU
8 oktober 2019
Nominaties Zorggebouw van het Jaar 2019 bekend
25 september 2019
Woontoren completeert ensemble spoorzone Strijp S
24 januari 2019
Interieur Zorghotel Domstate schept rust en stimuleert beweging
5 december 2018
Eindhoven tekent voor minimaal 500 woningen in centrum
10 oktober 2018
Nieuw entreegebied Nationaal Archief door Van Eijk & Van der Lubbe
14 september 2018
Herbestemming oude klooster Mariënhage Eindhoven van start
22 februari 2018
diederendirrix renoveert Stadskantoor Sittard-Geleen
20 november 2017
Rijksmonumentaal postkantoor Venlo wordt museum
30 oktober 2017
Een refter in een voormalige drukkerij
31 augustus 2017
Overal zicht op sporters in Activum
16 februari 2017
Binnencampus met warm houten hart
5 december 2016
Clubhuis met ruim zicht over de velden
9 september 2016
Eindhoven transformeert klooster Mariënhage
20 juni 2016
Excursie met diederendirrix door Eindhoven
30 mei 2016
Nieuwe vestiging diederendirrix in Rotterdam
20 april 2016
Eerste fase renovatie ’t Karregat afgerond
25 januari 2016
Drie woongebouwen Strijp S in aanbouw
7 januari 2016
Philips Bedrijfsschool wordt woongebouw
27 oktober 2015
Nieuw raadhuis op oude fundamenten
16 september 2015
Multifunctioneel complex Musa Katendrecht klaar
21 juli 2015
EVA verbouwt drukkerij tot multifunctioneel pand
10 juni 2015
Kantoor Brabants Dagblad wordt woongebouw
26 mei 2015
Woningbouw op historisch industrieterrein
26 maart 2015
diederendirrix presenteert gebouw Cortinghborg
25 maart 2015
Woontoren op oud terrein Philips Lighting
2 maart 2015
Restaurant met industrieel karakter op Strijp-S
23 februari 2015
Diederendirrix ontwerpt nieuwe Zalmplaatschool
11 november 2014
Hoogste gebouw TU/e wordt woontoren
25 september 2014
Nieuw onderkomen voor Eindhovense hockeyers
15 september 2014
'Onhollands' woonblok OpZuid Amsterdam klaar
11 juli 2014
Verslag van Het Grote Transformatie en Renovatiecongres
26 juni 2014
Cepezed en Lingotto keynotes op congres Architectenweb
3 juni 2014
Het Grote Transformatie- en Renovatiecongres
26 mei 2014
Reynaers Projectprijs 2013 voor Nedinscofabriek
18 februari 2014
Golvende façade aan stationsplein Den Bosch
3 december 2013
Zuidelijk deel Cortinghborg Groningen opgeleverd
25 oktober 2013
Transformatie Gebouw Anton afgerond
6 juni 2013
Ketelhuis Ceres BNA Gebouw van het Jaar 2013
17 mei 2013
Het Grote Transformatiecongres groot succes
19 april 2013
Bert Dirrix: context belangrijk bij transformatie
7 maart 2013
Zes consortia voor aanbesteding VROM-gebouw
5 oktober 2012
Ketelhuis TU Eindhoven getransformeerd
27 september 2012
Start bouw Amsterdams woonblok Opzuid
19 juni 2012
Architecten Lange Stallen Breda gekozen
30 mei 2012
Prijsvraag voor Eindhovense Edisonstraat
13 december 2011
Bouw Strijp R Eindhoven van start
24 oktober 2011
FABRIC en LOLA ontwerpen landgoed
8 september 2011
Flexibele jongerenwoningen in Den Bosch
3 november 2009
Ontwerpen Kenniscluster Arnhem openbaar
17 juni 2009
Drie scenario’s suikerfabriek De Zeeland
13 mei 2009
Vijf architecten voor Kenniscluster Arnhem
27 april 2009
Vijf kanshebbers voor nieuwbouw Vindicat
14 januari 2009
‘Multifunctionele’ opdracht voor diederendirrix
1 september 2008
Bouw uitbreiding Vincentre Nuenen gestart
22 maart 2022
Diederendirrix wint architectenselectie nieuwbouw poppodium Baroeg
20 juni 2023
Diederendirrix ontwerpt nieuw Archeologisch Depot in Nijmegen
27 maart 2023
Voormalig stadhuis Almelo heeft nieuw leven als woongebouw
30 augustus 2023
Uitbreiding geeft poppodium Nieuwe Nor prominentere uitstraling
20 juni 2022
De Nieuwe Eindhoven gaat nieuwe fase in
27 november 2023
Bloemendaal aan Zee krijgt nieuw hotel aan de duinen
3 januari 2022
Bouw The Newton in buurt Kop Zuidas gestart
22 november 2021
Fibonacci in Amsterdam Oost biedt vooral woningen met middenhuur
5 november 2021
Dirk Roosenburgprijs 2021 voor multifunctioneel centrum 't Karregat
15 oktober 2021
Ontwikkelovereenkomst voor project Diepeveen in Rotterdam getekend
27 juli 2021
Schellensfabriek Eindhoven herontwikkeld met woongebouw erbovenop
16 april 2021
Hotel en 'executive hub' vormen nieuw herkenningspunt boulevard Bloemendaal
29 juli 2024
Groep eigenaren diederendirrix en BureauEAU uitgebreid
12 september 2024
Kantoor voor handelsonderneming op prominente plek in Arnhem
10 februari 2021
Woningbouw op oud industrieterrein Eindhoven klaar
13 november 2020
Woongebouw met getrapte gevel van diederendirrix in spoorzone Strijp S klaar
11 november 2020
Groot deel Brabant wordt Van Gogh Nationaal Park
16 oktober 2024
Diederendirrix: "Bij ons moeten alle medewerkers in één bus blijven passen"
28 februari
Forum Groningen verkozen tot BNA Beste Gebouw van het Jaar
22 oktober 2020
Team met diederendirrix ontwerpt grootschalig nieuwbouwproject bij Amsterdam Sloterdijk
9 december 2024
Diederendirrix ontwerpt sociaal woningbouwproject Picustoren aan Eindhovensch Kanaal
25 juni
Faculteit ITC van Universiteit Twente uitgeroepen tot BNA Beste Gebouw van het Jaar 2024
23 mei 2024
Team diederendirrix verbouwt Stadsschouwburg Nijmegen
29 februari 2024
Nieuwe Nor wint publieksprijs Reynaers Projectprijs 2023
11 oktober 2023
Reynaers Aluminium Nederland
Stemmen Reynaers Projectprijs 2023 gestart
1 juni 2023
Reynaers Aluminium Nederland
Erasmus MC krijgt een campus
3 februari 2022
Nominaties 'Publiek gebouw van het Jaar 2020' zijn bekend
7 oktober 2020
Schetsontwerp uitbreiding Vincentre Nuenen gepresenteerd
24 juni 2020
DomusDela in voormalig klooster Mariënhage geopend
25 november 2019
Being Development mag VDMA-terrein Eindhoven ontwikkelen
22 november 2019
Lee Towers in Rotterdam opgeleverd
11 november 2019
Zorghotel Domstate uitgeroepen tot Zorggebouw van het Jaar 2019
31 oktober 2019
Nieuwe partners voor Diederendirrix en bureauEAU
8 oktober 2019
Nominaties Zorggebouw van het Jaar 2019 bekend
25 september 2019
Woontoren completeert ensemble spoorzone Strijp S
24 januari 2019
Interieur Zorghotel Domstate schept rust en stimuleert beweging
5 december 2018
Eindhoven tekent voor minimaal 500 woningen in centrum
10 oktober 2018
Nieuw entreegebied Nationaal Archief door Van Eijk & Van der Lubbe
14 september 2018
Herbestemming oude klooster Mariënhage Eindhoven van start
22 februari 2018
diederendirrix renoveert Stadskantoor Sittard-Geleen
20 november 2017
Rijksmonumentaal postkantoor Venlo wordt museum
30 oktober 2017
Een refter in een voormalige drukkerij
31 augustus 2017
Overal zicht op sporters in Activum
16 februari 2017
Binnencampus met warm houten hart
5 december 2016
Clubhuis met ruim zicht over de velden
9 september 2016
Eindhoven transformeert klooster Mariënhage
20 juni 2016
Excursie met diederendirrix door Eindhoven
30 mei 2016
Nieuwe vestiging diederendirrix in Rotterdam
20 april 2016
Eerste fase renovatie ’t Karregat afgerond
25 januari 2016
Drie woongebouwen Strijp S in aanbouw
7 januari 2016
Philips Bedrijfsschool wordt woongebouw
27 oktober 2015
Nieuw raadhuis op oude fundamenten
16 september 2015
Multifunctioneel complex Musa Katendrecht klaar
21 juli 2015
EVA verbouwt drukkerij tot multifunctioneel pand
10 juni 2015
Kantoor Brabants Dagblad wordt woongebouw
26 mei 2015
Woningbouw op historisch industrieterrein
26 maart 2015
diederendirrix presenteert gebouw Cortinghborg
25 maart 2015
Woontoren op oud terrein Philips Lighting
2 maart 2015
Restaurant met industrieel karakter op Strijp-S
23 februari 2015
Diederendirrix ontwerpt nieuwe Zalmplaatschool
11 november 2014
Hoogste gebouw TU/e wordt woontoren
25 september 2014
Nieuw onderkomen voor Eindhovense hockeyers
15 september 2014
'Onhollands' woonblok OpZuid Amsterdam klaar
11 juli 2014
Verslag van Het Grote Transformatie en Renovatiecongres
26 juni 2014
Cepezed en Lingotto keynotes op congres Architectenweb
3 juni 2014
Het Grote Transformatie- en Renovatiecongres
26 mei 2014
Reynaers Projectprijs 2013 voor Nedinscofabriek
18 februari 2014
Golvende façade aan stationsplein Den Bosch
3 december 2013
Zuidelijk deel Cortinghborg Groningen opgeleverd
25 oktober 2013
Transformatie Gebouw Anton afgerond
6 juni 2013
Ketelhuis Ceres BNA Gebouw van het Jaar 2013
17 mei 2013
Het Grote Transformatiecongres groot succes
19 april 2013
Bert Dirrix: context belangrijk bij transformatie
7 maart 2013
Zes consortia voor aanbesteding VROM-gebouw
5 oktober 2012
Ketelhuis TU Eindhoven getransformeerd
27 september 2012
Start bouw Amsterdams woonblok Opzuid
19 juni 2012
Architecten Lange Stallen Breda gekozen
30 mei 2012
Prijsvraag voor Eindhovense Edisonstraat
13 december 2011
Bouw Strijp R Eindhoven van start
24 oktober 2011
FABRIC en LOLA ontwerpen landgoed
8 september 2011
Flexibele jongerenwoningen in Den Bosch
3 november 2009
Ontwerpen Kenniscluster Arnhem openbaar
17 juni 2009
Drie scenario’s suikerfabriek De Zeeland
13 mei 2009
Vijf architecten voor Kenniscluster Arnhem
27 april 2009
Vijf kanshebbers voor nieuwbouw Vindicat
14 januari 2009
‘Multifunctionele’ opdracht voor diederendirrix
1 september 2008
Toon alles
Andere nieuwsberichten
Amsterdam schrijft architectenprijsvraag uit voor nieuwbouw theater De Meervaart
5 december, 4:45
Behalve het nieuwe gebouw, dat in een hoek van de Sloterplas komt te staan, behelst de prijsvraag ook een herinrichting van de zuidwestoever van het meer.
Barcode Architects presenteert opgeleverd stadskantoor van Dresden
5 december, 2:53
Het door Barcode Architects en Tchoban Voss Architekten ontworpen stadskantoor van Dresden is geopend. Het 34.000 vierkante meter omvattend gebouw maakt deel uit van de vernieuwing van het Ferdinandplatz in het centrum van de Duitse stad.
MIX architectuur en MAAK space ontwerpen landschappelijk woonveld in Leidschendam
5 december, 1:45
MIX architectuur en MAAK space ontwierpen in opdracht van ontwikkelaar Blauwhoed een landschappelijk woonveld met 64 grondgebonden woningen dat onderdeel is van de gebiedsontwikkeling Vlietvoorde in Leidschendam.
Nieuwbouw Algemeen Ziekenhuis Diest in gebruik genomen
5 december, 11:55
Het door archipelago ontworpen gebouw wordt omringd door groen, een conditie waarvan gebruik is gemaakt door veel uitzicht te creëren. Ook is op het maaiveld een colonnade gerealiseerd, die de overgang van binnen naar buiten verzacht.
Gelderland steekt ruim 27 miljoen in versnelling woningbouw
5 december, 3:40
Het geld gaat met name naar het aanpakken van de knelpunten waar grote nieuwbouwprojecten tegenaan lopen.
Invoering hogere stikstofgrens op 1 januari nog zeer onzeker
5 december, 12:44
Het demissionaire kabinet kan dit plan om Nederland van het stikstofslot te halen alleen doorzetten als aan harde voorwaarden is voldaan.
Noord-Holland ziet woningbouw toenemen, maar tempo moet omhoog
5 december, 9:09
Het aantal woningen in Noord-Holland waarvan de bouw is begonnen is sinds het voorjaar van 2024 sterk toegenomen.
Staten Utrecht verdeeld over plan voor verbouwing provinciehuis
4 december, 1:15
Meerdere Statenfracties in de provincie Utrecht hebben twijfels over het plan voor de verbouwing van het provinciehuis.
‘Ambtenaren zeer ontevreden over privatisering bouwtoezicht’
4 december, 10:00
Ambtenaren zeggen de grip te zijn kwijtgeraakt, meldt Binnenlands Bestuur.
Wang Shu en Lu Wenyu worden curator Architectuurbiënnale van Venetië in 2027
3 december, 2:52
De Chinese architecten en docenten verzorgen de artistieke leiding van de twintigste editie van de Venetiaanse architectuurmanifestatie.
Ga naar het nieuws-archief
Robert Muis
Redacteur
1
0
0
0
Voor een optimale gebruikservaring plaatst Architectenweb functionele cookies. Wat de verschillende cookies precies doen leggen we uit in een
overzicht
. Cookies van social media kun je optioneel
aanzetten
.
Akkoord
Instellingen
Annuleren
OK
Sluiten
Doorgaan
Inloggen
Maak een gratis persoonlijk account aan
Feedback
Feedback
Wij horen graag jouw feedback. Laat je reactie achter en eventueel jouw e-mail adres.
Reactie
Verstuur